Property
Account |
| Property ID: | 28418 | Abbreviated Legal Description: | EISENBEIS BAY VIEW BLK 7, LOT 1 (LS 90' STRIP W OF PIPELINE LOTS 2 & 3 W/PTN S/VAC ST ADJ |
| Parcel # / Geo ID: | 948600702 | Agent Code: | |
| Type: | Real | | |
| Tax Area: | 0111 - 1-50F1E1H2L1 | Land Use Code | 91 |
| Open Space: | N | DFL | N |
| Historic Property: | N | Remodel Property: | N |
| Multi-Family Redevelopment: | N | | |
| Township: | 30N | Section: | 16 |
| Range: | 1W |
Location |
| Address: | | Mapsco: | 028/043 |
| Neighborhood: | SR20 / OTTO ST / GLEN COVE COMMERCIAL AREA NORTH | Map ID: | |
| Neighborhood CD: | 5350C |
Owner |
| Name: | HAIDEN ROULST | Owner ID: | 112980 |
| Mailing Address: | 203 FREDERICKS ST STE D PORT TOWNSEND, WA 98368-9821 | % Ownership: | 100.0000000000% |
| | | Exemptions: | |
Pay Tax Due
Select the appropriate checkbox next to the year to be paid. Multiple years may be selected.
*Convenience Fee not included
Taxes and Assessment Details
Property Tax Information as of
03/10/2026
Click on "Statement Details" to expand or collapse a tax statement.
* Please enter a valid date ** Please enter a valid date *
Statement Details |
| 2026 | 17757 | STATE - STATE LEVY (SCHOOL) | $23.59 | $23.57 | $0.00 | $0.00 | $0.00 | $47.16 |
| 2026 | 17757 | COUNTY - COUNTY LEVIES (CE, DD, VET, MH) | $9.45 | $9.41 | $0.00 | $0.00 | $0.00 | $18.86 |
| 2026 | 17757 | CONSERVE - CONSERVATION FUTURES | $0.29 | $0.28 | $0.00 | $0.00 | $0.00 | $0.57 |
| 2026 | 17757 | COROADS - COUNTY ROADS (ROADS, DIV TO CE) | $7.61 | $7.60 | $0.00 | $0.00 | $0.00 | $15.21 |
| 2026 | 17757 | PORTPT - PORT DISTRICT | $3.82 | $3.80 | $0.00 | $0.00 | $0.00 | $7.62 |
| 2026 | 17757 | PUD1 - PUD #1 | $0.62 | $0.61 | $0.00 | $0.00 | $0.00 | $1.23 |
| 2026 | 17757 | LIB1 - LIBRARY DIST #1 | $2.95 | $2.94 | $0.00 | $0.00 | $0.00 | $5.89 |
| 2026 | 17757 | HD2 - HOSP DIST #2 | $0.55 | $0.55 | $0.00 | $0.00 | $0.00 | $1.10 |
| 2026 | 17757 | SD50 - SCHOOL DIST #50 | $18.69 | $18.67 | $0.00 | $0.00 | $0.00 | $37.36 |
| 2026 | 17757 | FD1 - FIRE DISTRICT #1 | $12.49 | $12.48 | $0.00 | $0.00 | $0.00 | $24.97 |
| 2026 | 17757 | EMS1 - FIRE DIST #1 EMS | $4.80 | $4.80 | $0.00 | $0.00 | $0.00 | $9.60 |
| 2026 | 17757 | FPLCA - DNR Landowner Contingency Assmt | $3.00 | $3.00 | $0.00 | $0.00 | $0.00 | $6.00 |
| 2026 | 17757 | JCCD - JC Conservation District | $2.53 | $2.53 | $0.00 | $0.00 | $0.00 | $5.06 |
| 2026 | 17757 | NWA - Noxious Weed Assessment | $2.98 | $2.97 | $0.00 | $0.00 | $0.00 | $5.95 |
| 2026 | 17757 | WAT - Clean Water District | $13.00 | $13.00 | $0.00 | $0.00 | $0.00 | $26.00 |
| 2026 | 17757 | TOTAL: | $106.37 | $106.21 | $0.00 | $0.00 | $0.00 | $212.58 |
|
| 2026 | 17757 | $106.37 | $106.21 | $0.00 | $0.00 | $0.00 | $212.58 |
Statement Details |
| 2025 | 17812 | STATE - STATE LEVY (SCHOOL) | $14.12 | $14.11 | $0.00 | $0.00 | $28.23 | $0.00 |
| 2025 | 17812 | COUNTY - COUNTY LEVIES (CE, DD, VET, MH) | $5.55 | $5.54 | $0.00 | $0.00 | $11.09 | $0.00 |
| 2025 | 17812 | CONSERVE - CONSERVATION FUTURES | $0.17 | $0.16 | $0.00 | $0.00 | $0.33 | $0.00 |
| 2025 | 17812 | COROADS - COUNTY ROADS (ROADS, DIV TO CE) | $4.45 | $4.45 | $0.00 | $0.00 | $8.90 | $0.00 |
| 2025 | 17812 | PORTPT - PORT DISTRICT | $2.27 | $2.26 | $0.00 | $0.00 | $4.53 | $0.00 |
| 2025 | 17812 | PUD1 - PUD #1 | $0.37 | $0.36 | $0.00 | $0.00 | $0.73 | $0.00 |
| 2025 | 17812 | LIB1 - LIBRARY DIST #1 | $1.72 | $1.72 | $0.00 | $0.00 | $3.44 | $0.00 |
| 2025 | 17812 | HD2 - HOSP DIST #2 | $0.33 | $0.32 | $0.00 | $0.00 | $0.65 | $0.00 |
| 2025 | 17812 | SD50 - SCHOOL DIST #50 | $10.32 | $10.31 | $0.00 | $0.00 | $20.63 | $0.00 |
| 2025 | 17812 | FD1 - FIRE DISTRICT #1 | $7.33 | $7.32 | $0.00 | $0.00 | $14.65 | $0.00 |
| 2025 | 17812 | EMS1 - FIRE DIST #1 EMS | $2.82 | $2.81 | $0.00 | $0.00 | $5.63 | $0.00 |
| 2025 | 17812 | FPLCA - DNR Landowner Contingency Assmt | $3.00 | $3.00 | $0.00 | $0.00 | $6.00 | $0.00 |
| 2025 | 17812 | JCCD - JC Conservation District | $2.53 | $2.53 | $0.00 | $0.00 | $5.06 | $0.00 |
| 2025 | 17812 | NWA - Noxious Weed Assessment | $2.15 | $2.15 | $0.00 | $0.00 | $4.30 | $0.00 |
| 2025 | 17812 | WAT - Clean Water District | $13.00 | $13.00 | $0.00 | $0.00 | $26.00 | $0.00 |
| 2025 | 17812 | TOTAL: | $70.13 | $70.04 | $0.00 | $0.00 | $140.17 | $0.00 |
|
| 2025 | 17812 | $70.13 | $70.04 | $0.00 | $0.00 | $140.17 | $0.00 |
Statement Details |
| 2024 | 17846 | STATE - STATE LEVY (SCHOOL) | $13.00 | $13.00 | $0.00 | $0.00 | $26.00 | $0.00 |
| 2024 | 17846 | COUNTY - COUNTY LEVIES (CE, DD, VET, MH) | $5.56 | $5.56 | $0.00 | $0.00 | $11.12 | $0.00 |
| 2024 | 17846 | CONSERVE - CONSERVATION FUTURES | $0.17 | $0.16 | $0.00 | $0.00 | $0.33 | $0.00 |
| 2024 | 17846 | COROADS - COUNTY ROADS (ROADS, DIV TO CE) | $4.48 | $4.47 | $0.00 | $0.00 | $8.95 | $0.00 |
| 2024 | 17846 | PORTPT - PORT DISTRICT | $2.30 | $2.29 | $0.00 | $0.00 | $4.59 | $0.00 |
| 2024 | 17846 | PUD1 - PUD #1 | $0.37 | $0.36 | $0.00 | $0.00 | $0.73 | $0.00 |
| 2024 | 17846 | LIB1 - LIBRARY DIST #1 | $1.73 | $1.73 | $0.00 | $0.00 | $3.46 | $0.00 |
| 2024 | 17846 | HD2 - HOSP DIST #2 | $0.33 | $0.32 | $0.00 | $0.00 | $0.65 | $0.00 |
| 2024 | 17846 | SD50 - SCHOOL DIST #50 | $10.53 | $10.51 | $0.00 | $0.00 | $21.04 | $0.00 |
| 2024 | 17846 | FD1 - FIRE DISTRICT #1 | $7.36 | $7.35 | $0.00 | $0.00 | $14.71 | $0.00 |
| 2024 | 17846 | EMS1 - FIRE DIST #1 EMS | $2.81 | $2.81 | $0.00 | $0.00 | $5.62 | $0.00 |
| 2024 | 17846 | FPLCA - DNR Landowner Contingency Assmt | $3.00 | $3.00 | $0.00 | $0.00 | $6.00 | $0.00 |
| 2024 | 17846 | JCCD - JC Conservation District | $2.53 | $2.53 | $0.00 | $0.00 | $5.06 | $0.00 |
| 2024 | 17846 | NWA - Noxious Weed Assessment | $2.15 | $2.15 | $0.00 | $0.00 | $4.30 | $0.00 |
| 2024 | 17846 | WAT - Clean Water District | $12.50 | $12.50 | $0.00 | $0.00 | $25.00 | $0.00 |
| 2024 | 17846 | TOTAL: | $68.82 | $68.74 | $0.00 | $0.00 | $137.56 | $0.00 |
|
| 2024 | 17846 | $68.82 | $68.74 | $0.00 | $0.00 | $137.56 | $0.00 |
Statement Details |
| 2023 | 17879 | STATE - STATE LEVY (SCHOOL) | $11.45 | $11.45 | $0.00 | $0.00 | $22.90 | $0.00 |
| 2023 | 17879 | COUNTY - COUNTY LEVIES (CE, DD, VET, MH) | $5.00 | $5.00 | $0.00 | $0.00 | $10.00 | $0.00 |
| 2023 | 17879 | CONSERVE - CONSERVATION FUTURES | $0.15 | $0.15 | $0.00 | $0.00 | $0.30 | $0.00 |
| 2023 | 17879 | COROADS - COUNTY ROADS (ROADS, DIV TO CE) | $4.05 | $4.03 | $0.00 | $0.00 | $8.08 | $0.00 |
| 2023 | 17879 | PORTPT - PORT DISTRICT | $2.11 | $2.10 | $0.00 | $0.00 | $4.21 | $0.00 |
| 2023 | 17879 | PUD1 - PUD #1 | $0.33 | $0.33 | $0.00 | $0.00 | $0.66 | $0.00 |
| 2023 | 17879 | LIB1 - LIBRARY DIST #1 | $1.57 | $1.56 | $0.00 | $0.00 | $3.13 | $0.00 |
| 2023 | 17879 | HD2 - HOSP DIST #2 | $0.30 | $0.28 | $0.00 | $0.00 | $0.58 | $0.00 |
| 2023 | 17879 | SD50 - SCHOOL DIST #50 | $9.09 | $9.08 | $0.00 | $0.00 | $18.17 | $0.00 |
| 2023 | 17879 | FD1 - FIRE DISTRICT #1 | $4.12 | $4.11 | $0.00 | $0.00 | $8.23 | $0.00 |
| 2023 | 17879 | EMS1 - FIRE DIST #1 EMS | $1.75 | $1.75 | $0.00 | $0.00 | $3.50 | $0.00 |
| 2023 | 17879 | FPLCA - DNR Landowner Contingency Assmt | $3.00 | $3.00 | $0.00 | $0.00 | $6.00 | $0.00 |
| 2023 | 17879 | JCCD - JC Conservation District | $2.53 | $2.53 | $0.00 | $0.00 | $5.06 | $0.00 |
| 2023 | 17879 | NWA - Noxious Weed Assessment | $2.15 | $2.15 | $0.00 | $0.00 | $4.30 | $0.00 |
| 2023 | 17879 | WAT - Clean Water District | $12.00 | $12.00 | $0.00 | $0.00 | $24.00 | $0.00 |
| 2023 | 17879 | TOTAL: | $59.60 | $59.52 | $0.00 | $0.00 | $119.12 | $0.00 |
|
| 2023 | 17879 | $59.60 | $59.52 | $0.00 | $0.00 | $119.12 | $0.00 |
Values
| (+) Improvement Homesite Value: | + | $0 | |
| (+) Improvement Non-Homesite Value: | + | $0 | |
| (+) Land Homesite Value: | + | $0 | |
| (+) Land Non-Homesite Value: | + | $20,514 | |
| (+) Curr Use (HS): | + | $0 | $0 |
| (+) Curr Use (NHS): | + | $0 | $0 |
| | | -------------------------- | |
| (=) Market Value: | = | $20,514 | |
| (–) Productivity Loss: | – | $0 | |
| | | -------------------------- | |
| (=) Subtotal: | = | $20,514 | |
| (+) Senior Appraised Value: | + | $0 | |
| (+) Non-Senior Appraised Value: | + | $20,514 | |
| | | -------------------------- | |
| (=) Total Appraised Value: | = | $20,514 | |
| (–) Senior Exemption Loss: | – | $0 | |
| (–) Exemption Loss: | – | $0 | |
| | | -------------------------- | |
| (=) Taxable Value: | = | $20,514 | |
Taxing Jurisdiction
| Owner: | HAIDEN ROULST | | |
| % Ownership: | 100.0000000000% | | |
| Total Value: | $20,514 | | |
| Tax Area: | 0111 - 1-50F1E1H2L1 |
| CE | COUNTY CURRENT EXPENSE | 0.9034619479 | $20,514 | $20,514 | $18.53 | | |
| CNTYDD | DEVELOPMENTAL DISABILITIES | 0.0052121823 | $20,514 | $20,514 | $0.11 | | |
| CNTYVET | VETERANS RELIEF | 0.0052777810 | $20,514 | $20,514 | $0.11 | | |
| MENTAL | MENTAL HEALTH | 0.0052121823 | $20,514 | $20,514 | $0.11 | | |
| ROADS | COUNTY ROADS | 0.7415066410 | $20,514 | $20,514 | $15.21 | | |
| ROADSCU | COUNTY ROADS TO CUR EXP | 0.0000000000 | $20,514 | $20,514 | $0.00 | | |
| HOSP2CASH | HOSP DIST #2 GENERAL | 0.0536075306 | $20,514 | $20,514 | $1.10 | | |
| SCH50BOND | SCHOOL DIST #50 BOND 2016 | 0.5377451389 | $20,514 | $20,514 | $11.03 | | |
| SCH50CP | SCHOOL DIST #50 CAP PROJ | 0.4573475088 | $20,514 | $20,514 | $9.38 | | |
| SCH50MO | SCHOOL DIST #50 EP & O | 0.8262822886 | $20,514 | $20,514 | $16.95 | | |
| CONSERVE | CONSERVATION FUTURES | 0.0275621078 | $20,514 | $20,514 | $0.57 | | |
| EMS1 | FIRE DIST #1 EMS | 0.4679948282 | $20,514 | $20,514 | $9.60 | | |
| FD1 | FIRE DIST #1 GENERAL | 1.2171942929 | $20,514 | $20,514 | $24.97 | | |
| LIB1 | LIBRARY DIST #1 GENERAL | 0.2868827388 | $20,514 | $20,514 | $5.89 | | |
| PORTPT | PORT OF PT GENERAL | 0.1134941229 | $20,514 | $20,514 | $2.33 | | |
| PORTPTIDD | PORT OF PT IDD 2019 | 0.2577346692 | $20,514 | $20,514 | $5.29 | | |
| PUD1 | PUD #1 GENERAL | 0.0597888892 | $20,514 | $20,514 | $1.23 | | |
| STATE | STATE SCHOOL PART 1 | 1.4940692947 | $20,514 | $20,514 | $30.65 | | |
| STATE2 | STATE SCHOOL PART 2 | 0.8050170049 | $20,514 | $20,514 | $16.51 | | |
| | Total Tax Rate: | 8.2653911500 | | | | | |
| | | | | Taxes w/Current Exemptions: | $169.57 | | |
| | | | | Taxes w/o Exemptions: | $169.57 | | |
Improvement / Building
Sketch
| No sketches available for this property. |
Property Image
Land
| 1 | 5350-6275Q | | 0.2978 | 12973.00 | 0.00 | 0.00 | 1.00 | $20,514 | $0 |
Roll Value History
| 2026 | N/A | N/A | N/A | N/A | N/A |
| 2025 | $0 | $20,514 | $0 | $20,514 | $20,514 |
| 2024 | $0 | $11,773 | $0 | $11,773 | $11,773 |
| 2023 | $0 | $11,238 | $0 | $11,238 | $11,238 |
| 2022 | $0 | $9,730 | $0 | $9,730 | $9,730 |
Deed and Sales History
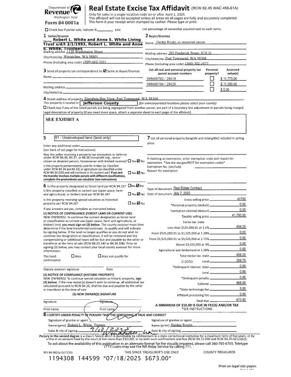
| 1 | 07/07/2025 | REC | Real Estate Contract | ROBERT L & ANNE S WHITE LIVING TRUST | HAIDEN ROULST | | | $41,750.00 | 144599 | |
|   | |
| 2 | 08/21/2003 | QCD | Quit Claim Deed | WHITE, ROBERT L/ANNE S | WHITE, ROBERT L/ANNE S TRUSTEE | 0 | 0 | $0.00 | 98267 | 0 |
Payout Agreement
| No payout information available.. |