Property
Account |
| Property ID: | 28420 | Abbreviated Legal Description: | EISENBEIS BAY VIEW BLK 7, LOTS 4 THRU 6 W/PTN S/VAC ST ADJ |
| Parcel # / Geo ID: | 948600704 | Agent Code: | |
| Type: | Real | | |
| Tax Area: | 0111 - 1-50F1E1H2L1 | Land Use Code | 91 |
| Open Space: | N | DFL | N |
| Historic Property: | N | Remodel Property: | N |
| Multi-Family Redevelopment: | N | | |
| Township: | 30N | Section: | 16 |
| Range: | 1W |
Location |
| Address: | | Mapsco: | 028/044 |
| Neighborhood: | SR20 / OTTO ST / GLEN COVE COMMERCIAL AREA NORTH | Map ID: | |
| Neighborhood CD: | 5350C |
Owner |
| Name: | HAIDEN ROULST | Owner ID: | 112980 |
| Mailing Address: | 203 FREDERICKS ST STE D PORT TOWNSEND, WA 98368-9821 | % Ownership: | 100.0000000000% |
| | | Exemptions: | |
Pay Tax Due
Select the appropriate checkbox next to the year to be paid. Multiple years may be selected.
*Convenience Fee not included
Taxes and Assessment Details
Property Tax Information as of
03/12/2026
Click on "Statement Details" to expand or collapse a tax statement.
* Please enter a valid date ** Please enter a valid date *
Statement Details |
| 2026 | 17759 | STATE - STATE LEVY (SCHOOL) | $22.44 | $22.43 | $0.00 | $0.00 | $0.00 | $44.87 |
| 2026 | 17759 | COUNTY - COUNTY LEVIES (CE, DD, VET, MH) | $8.97 | $8.96 | $0.00 | $0.00 | $0.00 | $17.93 |
| 2026 | 17759 | CONSERVE - CONSERVATION FUTURES | $0.27 | $0.27 | $0.00 | $0.00 | $0.00 | $0.54 |
| 2026 | 17759 | COROADS - COUNTY ROADS (ROADS, DIV TO CE) | $7.24 | $7.23 | $0.00 | $0.00 | $0.00 | $14.47 |
| 2026 | 17759 | PORTPT - PORT DISTRICT | $3.63 | $3.62 | $0.00 | $0.00 | $0.00 | $7.25 |
| 2026 | 17759 | PUD1 - PUD #1 | $0.59 | $0.58 | $0.00 | $0.00 | $0.00 | $1.17 |
| 2026 | 17759 | LIB1 - LIBRARY DIST #1 | $2.80 | $2.80 | $0.00 | $0.00 | $0.00 | $5.60 |
| 2026 | 17759 | HD2 - HOSP DIST #2 | $0.53 | $0.52 | $0.00 | $0.00 | $0.00 | $1.05 |
| 2026 | 17759 | SD50 - SCHOOL DIST #50 | $17.79 | $17.77 | $0.00 | $0.00 | $0.00 | $35.56 |
| 2026 | 17759 | FD1 - FIRE DISTRICT #1 | $11.88 | $11.88 | $0.00 | $0.00 | $0.00 | $23.76 |
| 2026 | 17759 | EMS1 - FIRE DIST #1 EMS | $4.57 | $4.56 | $0.00 | $0.00 | $0.00 | $9.13 |
| 2026 | 17759 | FP - DNR Forest Fire Protection Assmt | $8.50 | $8.50 | $0.00 | $0.00 | $0.00 | $17.00 |
| 2026 | 17759 | FPLCA - DNR Landowner Contingency Assmt | $3.00 | $3.00 | $0.00 | $0.00 | $0.00 | $6.00 |
| 2026 | 17759 | JCCD - JC Conservation District | $2.53 | $2.53 | $0.00 | $0.00 | $0.00 | $5.06 |
| 2026 | 17759 | NWA - Noxious Weed Assessment | $2.98 | $2.97 | $0.00 | $0.00 | $0.00 | $5.95 |
| 2026 | 17759 | WAT - Clean Water District | $13.00 | $13.00 | $0.00 | $0.00 | $0.00 | $26.00 |
| 2026 | 17759 | FP ADMIN - FP ADMIN | $0.50 | $0.00 | $0.00 | $0.00 | $0.00 | $0.50 |
| 2026 | 17759 | TOTAL: | $111.22 | $110.62 | $0.00 | $0.00 | $0.00 | $221.84 |
|
| 2026 | 17759 | $111.22 | $110.62 | $0.00 | $0.00 | $0.00 | $221.84 |
Statement Details |
| 2025 | 17814 | STATE - STATE LEVY (SCHOOL) | $13.43 | $13.43 | $0.00 | $0.00 | $26.86 | $0.00 |
| 2025 | 17814 | COUNTY - COUNTY LEVIES (CE, DD, VET, MH) | $5.28 | $5.28 | $0.00 | $0.00 | $10.56 | $0.00 |
| 2025 | 17814 | CONSERVE - CONSERVATION FUTURES | $0.16 | $0.16 | $0.00 | $0.00 | $0.32 | $0.00 |
| 2025 | 17814 | COROADS - COUNTY ROADS (ROADS, DIV TO CE) | $4.24 | $4.22 | $0.00 | $0.00 | $8.46 | $0.00 |
| 2025 | 17814 | PORTPT - PORT DISTRICT | $2.16 | $2.15 | $0.00 | $0.00 | $4.31 | $0.00 |
| 2025 | 17814 | PUD1 - PUD #1 | $0.35 | $0.34 | $0.00 | $0.00 | $0.69 | $0.00 |
| 2025 | 17814 | LIB1 - LIBRARY DIST #1 | $1.64 | $1.63 | $0.00 | $0.00 | $3.27 | $0.00 |
| 2025 | 17814 | HD2 - HOSP DIST #2 | $0.31 | $0.31 | $0.00 | $0.00 | $0.62 | $0.00 |
| 2025 | 17814 | SD50 - SCHOOL DIST #50 | $9.82 | $9.81 | $0.00 | $0.00 | $19.63 | $0.00 |
| 2025 | 17814 | FD1 - FIRE DISTRICT #1 | $6.97 | $6.97 | $0.00 | $0.00 | $13.94 | $0.00 |
| 2025 | 17814 | EMS1 - FIRE DIST #1 EMS | $2.68 | $2.68 | $0.00 | $0.00 | $5.36 | $0.00 |
| 2025 | 17814 | FP - DNR Forest Fire Protection Assmt | $8.50 | $8.50 | $0.00 | $0.00 | $17.00 | $0.00 |
| 2025 | 17814 | FPLCA - DNR Landowner Contingency Assmt | $3.00 | $3.00 | $0.00 | $0.00 | $6.00 | $0.00 |
| 2025 | 17814 | JCCD - JC Conservation District | $2.53 | $2.53 | $0.00 | $0.00 | $5.06 | $0.00 |
| 2025 | 17814 | NWA - Noxious Weed Assessment | $2.15 | $2.15 | $0.00 | $0.00 | $4.30 | $0.00 |
| 2025 | 17814 | WAT - Clean Water District | $13.00 | $13.00 | $0.00 | $0.00 | $26.00 | $0.00 |
| 2025 | 17814 | FP ADMIN - FP ADMIN | $0.50 | $0.00 | $0.00 | $0.00 | $0.50 | $0.00 |
| 2025 | 17814 | TOTAL: | $76.72 | $76.16 | $0.00 | $0.00 | $152.88 | $0.00 |
|
| 2025 | 17814 | $76.72 | $76.16 | $0.00 | $0.00 | $152.88 | $0.00 |
Statement Details |
| 2024 | 17848 | STATE - STATE LEVY (SCHOOL) | $12.37 | $12.37 | $0.00 | $0.00 | $24.74 | $0.00 |
| 2024 | 17848 | COUNTY - COUNTY LEVIES (CE, DD, VET, MH) | $5.29 | $5.29 | $0.00 | $0.00 | $10.58 | $0.00 |
| 2024 | 17848 | CONSERVE - CONSERVATION FUTURES | $0.16 | $0.16 | $0.00 | $0.00 | $0.32 | $0.00 |
| 2024 | 17848 | COROADS - COUNTY ROADS (ROADS, DIV TO CE) | $4.26 | $4.26 | $0.00 | $0.00 | $8.52 | $0.00 |
| 2024 | 17848 | PORTPT - PORT DISTRICT | $2.19 | $2.18 | $0.00 | $0.00 | $4.37 | $0.00 |
| 2024 | 17848 | PUD1 - PUD #1 | $0.35 | $0.35 | $0.00 | $0.00 | $0.70 | $0.00 |
| 2024 | 17848 | LIB1 - LIBRARY DIST #1 | $1.65 | $1.65 | $0.00 | $0.00 | $3.30 | $0.00 |
| 2024 | 17848 | HD2 - HOSP DIST #2 | $0.31 | $0.31 | $0.00 | $0.00 | $0.62 | $0.00 |
| 2024 | 17848 | SD50 - SCHOOL DIST #50 | $10.01 | $9.99 | $0.00 | $0.00 | $20.00 | $0.00 |
| 2024 | 17848 | FD1 - FIRE DISTRICT #1 | $7.00 | $6.99 | $0.00 | $0.00 | $13.99 | $0.00 |
| 2024 | 17848 | EMS1 - FIRE DIST #1 EMS | $2.68 | $2.67 | $0.00 | $0.00 | $5.35 | $0.00 |
| 2024 | 17848 | FP - DNR Forest Fire Protection Assmt | $8.50 | $8.50 | $0.00 | $0.00 | $17.00 | $0.00 |
| 2024 | 17848 | FPLCA - DNR Landowner Contingency Assmt | $3.00 | $3.00 | $0.00 | $0.00 | $6.00 | $0.00 |
| 2024 | 17848 | JCCD - JC Conservation District | $2.53 | $2.53 | $0.00 | $0.00 | $5.06 | $0.00 |
| 2024 | 17848 | NWA - Noxious Weed Assessment | $2.15 | $2.15 | $0.00 | $0.00 | $4.30 | $0.00 |
| 2024 | 17848 | WAT - Clean Water District | $12.50 | $12.50 | $0.00 | $0.00 | $25.00 | $0.00 |
| 2024 | 17848 | FP ADMIN - FP ADMIN | $0.50 | $0.00 | $0.00 | $0.00 | $0.50 | $0.00 |
| 2024 | 17848 | TOTAL: | $75.45 | $74.90 | $0.00 | $0.00 | $150.35 | $0.00 |
|
| 2024 | 17848 | $75.45 | $74.90 | $0.00 | $0.00 | $150.35 | $0.00 |
Statement Details |
| 2023 | 17881 | STATE - STATE LEVY (SCHOOL) | $10.28 | $10.27 | $0.00 | $0.00 | $20.55 | $0.00 |
| 2023 | 17881 | COUNTY - COUNTY LEVIES (CE, DD, VET, MH) | $4.50 | $4.46 | $0.00 | $0.00 | $8.96 | $0.00 |
| 2023 | 17881 | CONSERVE - CONSERVATION FUTURES | $0.14 | $0.13 | $0.00 | $0.00 | $0.27 | $0.00 |
| 2023 | 17881 | COROADS - COUNTY ROADS (ROADS, DIV TO CE) | $3.64 | $3.62 | $0.00 | $0.00 | $7.26 | $0.00 |
| 2023 | 17881 | PORTPT - PORT DISTRICT | $1.90 | $1.88 | $0.00 | $0.00 | $3.78 | $0.00 |
| 2023 | 17881 | PUD1 - PUD #1 | $0.30 | $0.29 | $0.00 | $0.00 | $0.59 | $0.00 |
| 2023 | 17881 | LIB1 - LIBRARY DIST #1 | $1.41 | $1.40 | $0.00 | $0.00 | $2.81 | $0.00 |
| 2023 | 17881 | HD2 - HOSP DIST #2 | $0.27 | $0.26 | $0.00 | $0.00 | $0.53 | $0.00 |
| 2023 | 17881 | SD50 - SCHOOL DIST #50 | $8.16 | $8.14 | $0.00 | $0.00 | $16.30 | $0.00 |
| 2023 | 17881 | FD1 - FIRE DISTRICT #1 | $3.70 | $3.69 | $0.00 | $0.00 | $7.39 | $0.00 |
| 2023 | 17881 | EMS1 - FIRE DIST #1 EMS | $1.57 | $1.57 | $0.00 | $0.00 | $3.14 | $0.00 |
| 2023 | 17881 | FP - DNR Forest Fire Protection Assmt | $8.50 | $8.50 | $0.00 | $0.00 | $17.00 | $0.00 |
| 2023 | 17881 | FPLCA - DNR Landowner Contingency Assmt | $3.00 | $3.00 | $0.00 | $0.00 | $6.00 | $0.00 |
| 2023 | 17881 | JCCD - JC Conservation District | $2.53 | $2.53 | $0.00 | $0.00 | $5.06 | $0.00 |
| 2023 | 17881 | NWA - Noxious Weed Assessment | $2.15 | $2.15 | $0.00 | $0.00 | $4.30 | $0.00 |
| 2023 | 17881 | WAT - Clean Water District | $12.00 | $12.00 | $0.00 | $0.00 | $24.00 | $0.00 |
| 2023 | 17881 | FP ADMIN - FP ADMIN | $0.50 | $0.00 | $0.00 | $0.00 | $0.50 | $0.00 |
| 2023 | 17881 | TOTAL: | $64.55 | $63.89 | $0.00 | $0.00 | $128.44 | $0.00 |
|
| 2023 | 17881 | $64.55 | $63.89 | $0.00 | $0.00 | $128.44 | $0.00 |
Values
| (+) Improvement Homesite Value: | + | $0 | |
| (+) Improvement Non-Homesite Value: | + | $0 | |
| (+) Land Homesite Value: | + | $0 | |
| (+) Land Non-Homesite Value: | + | $19,517 | |
| (+) Curr Use (HS): | + | $0 | $0 |
| (+) Curr Use (NHS): | + | $0 | $0 |
| | | -------------------------- | |
| (=) Market Value: | = | $19,517 | |
| (–) Productivity Loss: | – | $0 | |
| | | -------------------------- | |
| (=) Subtotal: | = | $19,517 | |
| (+) Senior Appraised Value: | + | $0 | |
| (+) Non-Senior Appraised Value: | + | $19,517 | |
| | | -------------------------- | |
| (=) Total Appraised Value: | = | $19,517 | |
| (–) Senior Exemption Loss: | – | $0 | |
| (–) Exemption Loss: | – | $0 | |
| | | -------------------------- | |
| (=) Taxable Value: | = | $19,517 | |
Taxing Jurisdiction
| Owner: | HAIDEN ROULST | | |
| % Ownership: | 100.0000000000% | | |
| Total Value: | N/A | | |
| Tax Area: | 0111 - 1-50F1E1H2L1 |
| CE | COUNTY CURRENT EXPENSE | N/A | N/A | N/A | N/A | | |
| CNTYDD | DEVELOPMENTAL DISABILITIES | N/A | N/A | N/A | N/A | | |
| CNTYVET | VETERANS RELIEF | N/A | N/A | N/A | N/A | | |
| MENTAL | MENTAL HEALTH | N/A | N/A | N/A | N/A | | |
| ROADS | COUNTY ROADS | N/A | N/A | N/A | N/A | | |
| HOSP2CASH | HOSP DIST #2 GENERAL | N/A | N/A | N/A | N/A | | |
| SCH50BOND | SCHOOL DIST #50 BOND 2016 | N/A | N/A | N/A | N/A | | |
| SCH50CP | SCHOOL DIST #50 CAP PROJ | N/A | N/A | N/A | N/A | | |
| SCH50MO | SCHOOL DIST #50 EP & O | N/A | N/A | N/A | N/A | | |
| CONSERVE | CONSERVATION FUTURES | N/A | N/A | N/A | N/A | | |
| EMS1 | FIRE DIST #1 EMS | N/A | N/A | N/A | N/A | | |
| FD1 | FIRE DIST #1 GENERAL | N/A | N/A | N/A | N/A | | |
| LIB1 | LIBRARY DIST #1 GENERAL | N/A | N/A | N/A | N/A | | |
| PORTPT | PORT OF PT GENERAL | N/A | N/A | N/A | N/A | | |
| PORTPTIDD | PORT OF PT IDD 2019 | N/A | N/A | N/A | N/A | | |
| PUD1 | PUD #1 GENERAL | N/A | N/A | N/A | N/A | | |
| STATE | STATE SCHOOL PART 1 | N/A | N/A | N/A | N/A | | |
| STATE2 | STATE SCHOOL PART 2 | N/A | N/A | N/A | N/A | | |
| | Total Tax Rate: | N/A | | | | | |
| | | | | Taxes w/Current Exemptions: | N/A | | |
| | | | | Taxes w/o Exemptions: | N/A | | |
Improvement / Building
Sketch
| No sketches available for this property. |
Property Image
Land
| 1 | 5350-6277Q | | 0.4452 | 19395.00 | 0.00 | 0.00 | 1.00 | $19,517 | $0 |
Roll Value History
| 2026 | N/A | N/A | N/A | N/A | N/A |
| 2025 | $0 | $19,517 | $0 | $19,517 | $19,517 |
| 2024 | $0 | $11,200 | $0 | $11,200 | $11,200 |
| 2023 | $0 | $10,691 | $0 | $10,691 | $10,691 |
| 2022 | $0 | $8,728 | $0 | $8,728 | $8,728 |
Deed and Sales History
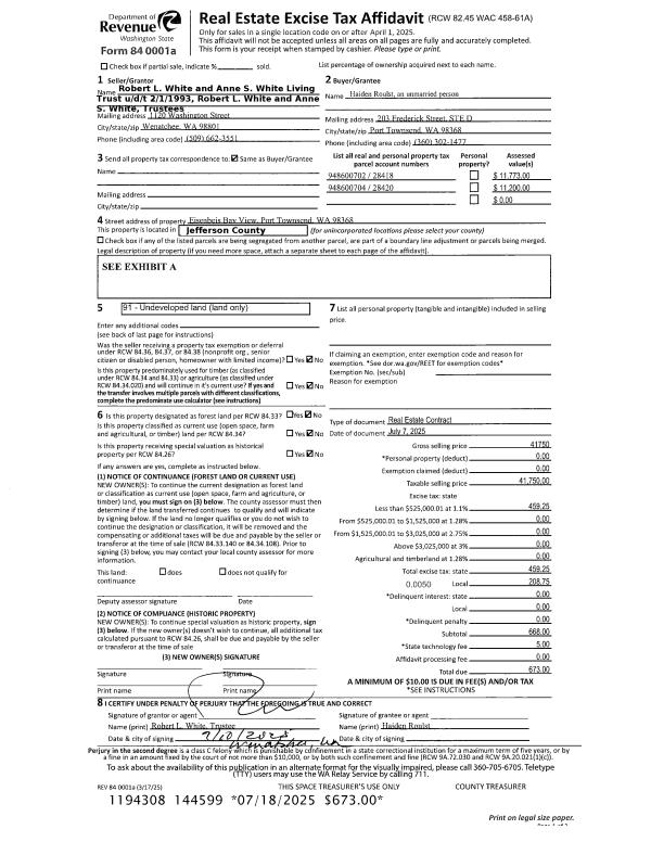
| 1 | 07/07/2025 | REC | Real Estate Contract | ROBERT L & ANNE S WHITE LIVING TRUST | HAIDEN ROULST | | | $41,750.00 | 144599 | |
|   | |
| 2 | 02/02/2021 | SWD | Statutory Warranty Deed | PATRICK J AHLERS | ROBERT L & ANNE S WHITE LIVING TRUST | | | $7,500.00 | 136085 | |
Payout Agreement
| No payout information available.. |