Property
Account |
| Property ID: | 28510 | Abbreviated Legal Description: | EISENBEIS BAY VIEW BLK 31 PARCEL D BND TGTH THRU BLA#107144 SURVEY V31 PG4 ADJ QTA |
| Parcel # / Geo ID: | 948603110 | Agent Code: | |
| Type: | Real | | |
| Tax Area: | 0111 - 1-50F1E1H2L1 | Land Use Code | 11 |
| Open Space: | N | DFL | N |
| Historic Property: | N | Remodel Property: | N |
| Multi-Family Redevelopment: | N | | |
| Township: | 30N | Section: | 16 |
| Range: | 1W |
Location |
| Address: | 131 LOUISA ST PORT TOWNSEND, WA 98368 | Mapsco: | 030/008 |
| Neighborhood: | PHILLIPS BAY-VIEW, SANTA BARBARA, DENNY, EISENBEIS BAY-VIEW | Map ID: | |
| Neighborhood CD: | 5350 |
Owner |
| Name: | LEAH R KILGORE | Owner ID: | 93481 |
| Mailing Address: | 131 LOUISA ST PORT TOWNSEND, WA 98368-2360 | % Ownership: | 100.0000000000% |
| | | Exemptions: | |
Pay Tax Due
Select the appropriate checkbox next to the year to be paid. Multiple years may be selected.
*Convenience Fee not included
Taxes and Assessment Details
Property Tax Information as of
03/11/2026
Click on "Statement Details" to expand or collapse a tax statement.
* Please enter a valid date ** Please enter a valid date *
Statement Details |
| 2026 | 17849 | STATE - STATE LEVY (SCHOOL) | $749.96 | $749.95 | $0.00 | $0.00 | $0.00 | $1499.91 |
| 2026 | 17849 | COUNTY - COUNTY LEVIES (CE, DD, VET, MH) | $299.83 | $299.82 | $0.00 | $0.00 | $0.00 | $599.65 |
| 2026 | 17849 | CONSERVE - CONSERVATION FUTURES | $8.99 | $8.99 | $0.00 | $0.00 | $0.00 | $17.98 |
| 2026 | 17849 | COROADS - COUNTY ROADS (ROADS, DIV TO CE) | $241.88 | $241.88 | $0.00 | $0.00 | $0.00 | $483.76 |
| 2026 | 17849 | PORTPT - PORT DISTRICT | $121.09 | $121.09 | $0.00 | $0.00 | $0.00 | $242.18 |
| 2026 | 17849 | PUD1 - PUD #1 | $19.51 | $19.50 | $0.00 | $0.00 | $0.00 | $39.01 |
| 2026 | 17849 | LIB1 - LIBRARY DIST #1 | $93.58 | $93.58 | $0.00 | $0.00 | $0.00 | $187.16 |
| 2026 | 17849 | HD2 - HOSP DIST #2 | $17.49 | $17.48 | $0.00 | $0.00 | $0.00 | $34.97 |
| 2026 | 17849 | SD50 - SCHOOL DIST #50 | $594.13 | $594.12 | $0.00 | $0.00 | $0.00 | $1188.25 |
| 2026 | 17849 | FD1 - FIRE DISTRICT #1 | $397.05 | $397.04 | $0.00 | $0.00 | $0.00 | $794.09 |
| 2026 | 17849 | EMS1 - FIRE DIST #1 EMS | $152.66 | $152.66 | $0.00 | $0.00 | $0.00 | $305.32 |
| 2026 | 17849 | FP - DNR Forest Fire Protection Assmt | $8.50 | $8.50 | $0.00 | $0.00 | $0.00 | $17.00 |
| 2026 | 17849 | FPLCA - DNR Landowner Contingency Assmt | $3.00 | $3.00 | $0.00 | $0.00 | $0.00 | $6.00 |
| 2026 | 17849 | JCCD - JC Conservation District | $2.55 | $2.55 | $0.00 | $0.00 | $0.00 | $5.10 |
| 2026 | 17849 | NWA - Noxious Weed Assessment | $2.98 | $2.97 | $0.00 | $0.00 | $0.00 | $5.95 |
| 2026 | 17849 | OSS - On Site Septic | $23.10 | $23.10 | $0.00 | $0.00 | $0.00 | $46.20 |
| 2026 | 17849 | WAT - Clean Water District | $13.00 | $13.00 | $0.00 | $0.00 | $0.00 | $26.00 |
| 2026 | 17849 | FP ADMIN - FP ADMIN | $0.50 | $0.00 | $0.00 | $0.00 | $0.00 | $0.50 |
| 2026 | 17849 | TOTAL: | $2749.80 | $2749.23 | $0.00 | $0.00 | $0.00 | $5499.03 |
|
| 2026 | 17849 | $2749.80 | $2749.23 | $0.00 | $0.00 | $0.00 | $5499.03 |
Statement Details |
| 2025 | 17904 | STATE - STATE LEVY (SCHOOL) | $749.39 | $749.38 | $0.00 | $0.00 | $1498.77 | $0.00 |
| 2025 | 17904 | COUNTY - COUNTY LEVIES (CE, DD, VET, MH) | $294.70 | $294.68 | $0.00 | $0.00 | $589.38 | $0.00 |
| 2025 | 17904 | CONSERVE - CONSERVATION FUTURES | $8.84 | $8.83 | $0.00 | $0.00 | $17.67 | $0.00 |
| 2025 | 17904 | COROADS - COUNTY ROADS (ROADS, DIV TO CE) | $236.10 | $236.09 | $0.00 | $0.00 | $472.19 | $0.00 |
| 2025 | 17904 | PORTPT - PORT DISTRICT | $120.26 | $120.24 | $0.00 | $0.00 | $240.50 | $0.00 |
| 2025 | 17904 | PUD1 - PUD #1 | $19.29 | $19.28 | $0.00 | $0.00 | $38.57 | $0.00 |
| 2025 | 17904 | LIB1 - LIBRARY DIST #1 | $91.35 | $91.34 | $0.00 | $0.00 | $182.69 | $0.00 |
| 2025 | 17904 | HD2 - HOSP DIST #2 | $17.20 | $17.19 | $0.00 | $0.00 | $34.39 | $0.00 |
| 2025 | 17904 | SD50 - SCHOOL DIST #50 | $547.68 | $547.67 | $0.00 | $0.00 | $1095.35 | $0.00 |
| 2025 | 17904 | FD1 - FIRE DISTRICT #1 | $388.88 | $388.88 | $0.00 | $0.00 | $777.76 | $0.00 |
| 2025 | 17904 | EMS1 - FIRE DIST #1 EMS | $149.58 | $149.57 | $0.00 | $0.00 | $299.15 | $0.00 |
| 2025 | 17904 | FP - DNR Forest Fire Protection Assmt | $8.50 | $8.50 | $0.00 | $0.00 | $17.00 | $0.00 |
| 2025 | 17904 | FPLCA - DNR Landowner Contingency Assmt | $3.00 | $3.00 | $0.00 | $0.00 | $6.00 | $0.00 |
| 2025 | 17904 | JCCD - JC Conservation District | $2.55 | $2.55 | $0.00 | $0.00 | $5.10 | $0.00 |
| 2025 | 17904 | NWA - Noxious Weed Assessment | $2.15 | $2.15 | $0.00 | $0.00 | $4.30 | $0.00 |
| 2025 | 17904 | OSS - On Site Septic | $21.50 | $21.50 | $0.00 | $0.00 | $43.00 | $0.00 |
| 2025 | 17904 | WAT - Clean Water District | $13.00 | $13.00 | $0.00 | $0.00 | $26.00 | $0.00 |
| 2025 | 17904 | FP ADMIN - FP ADMIN | $0.50 | $0.00 | $0.00 | $0.00 | $0.50 | $0.00 |
| 2025 | 17904 | TOTAL: | $2674.47 | $2673.85 | $0.00 | $0.00 | $5348.32 | $0.00 |
|
| 2025 | 17904 | $2674.47 | $2673.85 | $0.00 | $0.00 | $5348.32 | $0.00 |
Statement Details |
| 2024 | 17938 | STATE - STATE LEVY (SCHOOL) | $664.69 | $664.67 | $0.00 | $0.00 | $1329.36 | $0.00 |
| 2024 | 17938 | COUNTY - COUNTY LEVIES (CE, DD, VET, MH) | $284.44 | $284.40 | $0.00 | $0.00 | $568.84 | $0.00 |
| 2024 | 17938 | CONSERVE - CONSERVATION FUTURES | $8.53 | $8.53 | $0.00 | $0.00 | $17.06 | $0.00 |
| 2024 | 17938 | COROADS - COUNTY ROADS (ROADS, DIV TO CE) | $228.87 | $228.87 | $0.00 | $0.00 | $457.74 | $0.00 |
| 2024 | 17938 | PORTPT - PORT DISTRICT | $117.48 | $117.48 | $0.00 | $0.00 | $234.96 | $0.00 |
| 2024 | 17938 | PUD1 - PUD #1 | $18.68 | $18.68 | $0.00 | $0.00 | $37.36 | $0.00 |
| 2024 | 17938 | LIB1 - LIBRARY DIST #1 | $88.55 | $88.54 | $0.00 | $0.00 | $177.09 | $0.00 |
| 2024 | 17938 | HD2 - HOSP DIST #2 | $16.60 | $16.59 | $0.00 | $0.00 | $33.19 | $0.00 |
| 2024 | 17938 | SD50 - SCHOOL DIST #50 | $537.77 | $537.75 | $0.00 | $0.00 | $1075.52 | $0.00 |
| 2024 | 17938 | FD1 - FIRE DISTRICT #1 | $376.08 | $376.07 | $0.00 | $0.00 | $752.15 | $0.00 |
| 2024 | 17938 | EMS1 - FIRE DIST #1 EMS | $143.65 | $143.64 | $0.00 | $0.00 | $287.29 | $0.00 |
| 2024 | 17938 | FP - DNR Forest Fire Protection Assmt | $8.50 | $8.50 | $0.00 | $0.00 | $17.00 | $0.00 |
| 2024 | 17938 | FPLCA - DNR Landowner Contingency Assmt | $3.00 | $3.00 | $0.00 | $0.00 | $6.00 | $0.00 |
| 2024 | 17938 | JCCD - JC Conservation District | $2.55 | $2.55 | $0.00 | $0.00 | $5.10 | $0.00 |
| 2024 | 17938 | NWA - Noxious Weed Assessment | $2.15 | $2.15 | $0.00 | $0.00 | $4.30 | $0.00 |
| 2024 | 17938 | OSS - On Site Septic | $21.00 | $21.00 | $0.00 | $0.00 | $42.00 | $0.00 |
| 2024 | 17938 | WAT - Clean Water District | $12.50 | $12.50 | $0.00 | $0.00 | $25.00 | $0.00 |
| 2024 | 17938 | FP ADMIN - FP ADMIN | $0.50 | $0.00 | $0.00 | $0.00 | $0.50 | $0.00 |
| 2024 | 17938 | TOTAL: | $2535.54 | $2534.92 | $0.00 | $0.00 | $5070.46 | $0.00 |
|
| 2024 | 17938 | $2535.54 | $2534.92 | $0.00 | $0.00 | $5070.46 | $0.00 |
Statement Details |
| 2023 | 17971 | STATE - STATE LEVY (SCHOOL) | $614.05 | $614.04 | $0.00 | $0.00 | $1228.09 | $0.00 |
| 2023 | 17971 | COUNTY - COUNTY LEVIES (CE, DD, VET, MH) | $267.95 | $267.95 | $0.00 | $0.00 | $535.90 | $0.00 |
| 2023 | 17971 | CONSERVE - CONSERVATION FUTURES | $8.04 | $8.03 | $0.00 | $0.00 | $16.07 | $0.00 |
| 2023 | 17971 | COROADS - COUNTY ROADS (ROADS, DIV TO CE) | $216.80 | $216.78 | $0.00 | $0.00 | $433.58 | $0.00 |
| 2023 | 17971 | PORTPT - PORT DISTRICT | $112.88 | $112.87 | $0.00 | $0.00 | $225.75 | $0.00 |
| 2023 | 17971 | PUD1 - PUD #1 | $17.76 | $17.76 | $0.00 | $0.00 | $35.52 | $0.00 |
| 2023 | 17971 | LIB1 - LIBRARY DIST #1 | $83.88 | $83.87 | $0.00 | $0.00 | $167.75 | $0.00 |
| 2023 | 17971 | HD2 - HOSP DIST #2 | $15.64 | $15.63 | $0.00 | $0.00 | $31.27 | $0.00 |
| 2023 | 17971 | SD50 - SCHOOL DIST #50 | $487.27 | $487.25 | $0.00 | $0.00 | $974.52 | $0.00 |
| 2023 | 17971 | FD1 - FIRE DISTRICT #1 | $220.74 | $220.74 | $0.00 | $0.00 | $441.48 | $0.00 |
| 2023 | 17971 | EMS1 - FIRE DIST #1 EMS | $93.90 | $93.90 | $0.00 | $0.00 | $187.80 | $0.00 |
| 2023 | 17971 | FP - DNR Forest Fire Protection Assmt | $8.50 | $8.50 | $0.00 | $0.00 | $17.00 | $0.00 |
| 2023 | 17971 | FPLCA - DNR Landowner Contingency Assmt | $3.00 | $3.00 | $0.00 | $0.00 | $6.00 | $0.00 |
| 2023 | 17971 | JCCD - JC Conservation District | $2.55 | $2.55 | $0.00 | $0.00 | $5.10 | $0.00 |
| 2023 | 17971 | NWA - Noxious Weed Assessment | $2.15 | $2.15 | $0.00 | $0.00 | $4.30 | $0.00 |
| 2023 | 17971 | OSS - On Site Septic | $20.50 | $20.50 | $0.00 | $0.00 | $41.00 | $0.00 |
| 2023 | 17971 | WAT - Clean Water District | $12.00 | $12.00 | $0.00 | $0.00 | $24.00 | $0.00 |
| 2023 | 17971 | FP ADMIN - FP ADMIN | $0.50 | $0.00 | $0.00 | $0.00 | $0.50 | $0.00 |
| 2023 | 17971 | TOTAL: | $2188.11 | $2187.52 | $0.00 | $0.00 | $4375.63 | $0.00 |
|
| 2023 | 17971 | $2188.11 | $2187.52 | $0.00 | $0.00 | $4375.63 | $0.00 |
Values
| (+) Improvement Homesite Value: | + | $0 | |
| (+) Improvement Non-Homesite Value: | + | $537,395 | |
| (+) Land Homesite Value: | + | $0 | |
| (+) Land Non-Homesite Value: | + | $115,000 | |
| (+) Curr Use (HS): | + | $0 | $0 |
| (+) Curr Use (NHS): | + | $0 | $0 |
| | | -------------------------- | |
| (=) Market Value: | = | $652,395 | |
| (–) Productivity Loss: | – | $0 | |
| | | -------------------------- | |
| (=) Subtotal: | = | $652,395 | |
| (+) Senior Appraised Value: | + | $0 | |
| (+) Non-Senior Appraised Value: | + | $652,395 | |
| | | -------------------------- | |
| (=) Total Appraised Value: | = | $652,395 | |
| (–) Senior Exemption Loss: | – | $0 | |
| (–) Exemption Loss: | – | $0 | |
| | | -------------------------- | |
| (=) Taxable Value: | = | $652,395 | |
Taxing Jurisdiction
| Owner: | LEAH R KILGORE | | |
| % Ownership: | 100.0000000000% | | |
| Total Value: | $652,395 | | |
| Tax Area: | 0111 - 1-50F1E1H2L1 |
| CE | COUNTY CURRENT EXPENSE | 0.9034619479 | $652,395 | $652,395 | $589.41 | | |
| CNTYDD | DEVELOPMENTAL DISABILITIES | 0.0052121823 | $652,395 | $652,395 | $3.40 | | |
| CNTYVET | VETERANS RELIEF | 0.0052777810 | $652,395 | $652,395 | $3.44 | | |
| MENTAL | MENTAL HEALTH | 0.0052121823 | $652,395 | $652,395 | $3.40 | | |
| ROADS | COUNTY ROADS | 0.7415066410 | $652,395 | $652,395 | $483.76 | | |
| ROADSCU | COUNTY ROADS TO CUR EXP | 0.0000000000 | $652,395 | $652,395 | $0.00 | | |
| HOSP2CASH | HOSP DIST #2 GENERAL | 0.0536075306 | $652,395 | $652,395 | $34.97 | | |
| SCH50BOND | SCHOOL DIST #50 BOND 2016 | 0.5377451389 | $652,395 | $652,395 | $350.82 | | |
| SCH50CP | SCHOOL DIST #50 CAP PROJ | 0.4573475088 | $652,395 | $652,395 | $298.37 | | |
| SCH50MO | SCHOOL DIST #50 EP & O | 0.8262822886 | $652,395 | $652,395 | $539.06 | | |
| CONSERVE | CONSERVATION FUTURES | 0.0275621078 | $652,395 | $652,395 | $17.98 | | |
| EMS1 | FIRE DIST #1 EMS | 0.4679948282 | $652,395 | $652,395 | $305.32 | | |
| FD1 | FIRE DIST #1 GENERAL | 1.2171942929 | $652,395 | $652,395 | $794.09 | | |
| LIB1 | LIBRARY DIST #1 GENERAL | 0.2868827388 | $652,395 | $652,395 | $187.16 | | |
| PORTPT | PORT OF PT GENERAL | 0.1134941229 | $652,395 | $652,395 | $74.04 | | |
| PORTPTIDD | PORT OF PT IDD 2019 | 0.2577346692 | $652,395 | $652,395 | $168.14 | | |
| PUD1 | PUD #1 GENERAL | 0.0597888892 | $652,395 | $652,395 | $39.01 | | |
| STATE | STATE SCHOOL PART 1 | 1.4940692947 | $652,395 | $652,395 | $974.72 | | |
| STATE2 | STATE SCHOOL PART 2 | 0.8050170049 | $652,395 | $652,395 | $525.19 | | |
| | Total Tax Rate: | 8.2653911500 | | | | | |
| | | | | Taxes w/Current Exemptions: | $5,392.28 | | |
| | | | | Taxes w/o Exemptions: | $5,392.28 | | |
Improvement / Building
| Improvement #1: | Residential Bldg | State Code: | 11 | 2060.0 sqft | Value: | $537,395 |
| Bathrooms (#): | 3 (FULL) | Bedrooms (#): | 3 | | Exterior Wall: | SI/ST | Floor Construction: | FRAME | | Foundation: | CONPR | Heating/Cooling: | HTWTR | | Roof Cover: | COMP |   |   |
|
| | Type | Description | Class CD | Sub Class CD | Year Built | Area |
| | MA | Main Area | 5- | 15SF | 2008 | 992.0 |
| | MA2 | Second Floor Main Area | 5- | 15SF | 2008 | 1068.0 |
| | HDECK | House Deck | 4 | * | 2008 | 382.0 |
| | GATT | House Attached Garage | 4 | 15SF | 2008 | 576.0 |
Sketch
| No sketches available for this property. |
Property Image
Land
| 1 | 5350-1375S | | 0.0000 | 0.00 | 0.00 | 0.00 | 1.00 | $115,000 | $0 |
Roll Value History
| 2026 | N/A | N/A | N/A | N/A | N/A |
| 2025 | $537,395 | $115,000 | $0 | $652,395 | $652,395 |
| 2024 | $515,003 | $110,000 | $0 | $625,003 | $625,003 |
| 2023 | $474,837 | $99,750 | $0 | $574,587 | $574,587 |
| 2022 | $431,670 | $90,000 | $0 | $521,670 | $521,670 |
Deed and Sales History
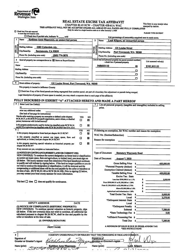
| 1 | 08/07/2020 | SWD | Statutory Warranty Deed | KATHLEEN ANNE MAGNUSON | LEAH R KILGORE | | | $455,000.00 | 134845 | |
| 2 | 05/09/2016 | SWD | Statutory Warranty Deed | TIMOTHY & MARION RUYBALID | KATHLEEN ANNE MAGNUSON | | | $339,000.00 | 125360 | |
| 3 | 03/21/2014 | SWD | Statutory Warranty Deed | DOUG NORK | TIMOTHY & MARION RUYBALID | | | $282,000.00 | 120907 | |
| 4 | 07/19/2007 | QCD | Quit Claim Deed | EADES, JAMES/MARSHA | NORK, DOUG/NOEL | | | $0.00 | 109654 | 0 |
| 5 | 07/20/2006 | BLA | Boundary Line Adjustment | EADES, JAMES E, EADES, MA | EADES, JAMES/MARSHA | | | $0.00 | 107144 | 0 |
Payout Agreement
| No payout information available.. |