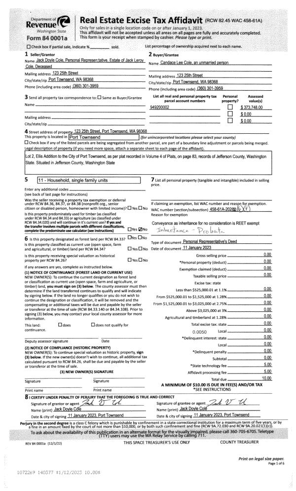
Property
Account |
| Property ID: | 28561 | Abbreviated Legal Description: | ELLIS ADDITION LOT 2 |
| Parcel # / Geo ID: | 949200002 | Agent Code: | |
| Type: | Real | | |
| Tax Area: | 0110 - C-50F1E1H2 | Land Use Code | 11 |
| Open Space: | N | DFL | N |
| Historic Property: | N | Remodel Property: | N |
| Multi-Family Redevelopment: | N | | |
| Township: | 30N | Section: | 3 |
| Range: | 1W |
Location |
| Address: | 123 25TH ST PORT TOWNSEND, WA 98368 | Mapsco: | 044/046 |
| Neighborhood: | ELLIS AND PEDERSEN ADD | Map ID: | |
| Neighborhood CD: | 6125 |
Owner |
| Name: | CANDACE L COLE | Owner ID: | 108188 |
| Mailing Address: | 123 25TH ST PORT TOWNSEND, WA 98368-6219 | % Ownership: | 100.0000000000% |
| | | Exemptions: | |
Pay Tax Due
Select the appropriate checkbox next to the year to be paid. Multiple years may be selected.
*Convenience Fee not included
Taxes and Assessment Details
Property Tax Information as of
03/11/2026
Click on "Statement Details" to expand or collapse a tax statement.
* Please enter a valid date ** Please enter a valid date *
Statement Details |
| 2026 | 17899 | STATE - STATE LEVY (SCHOOL) | $576.78 | $576.77 | $0.00 | $0.00 | $0.00 | $1153.55 |
| 2026 | 17899 | COUNTY - COUNTY LEVIES (CE, DD, VET, MH) | $230.61 | $230.59 | $0.00 | $0.00 | $0.00 | $461.20 |
| 2026 | 17899 | CONSERVE - CONSERVATION FUTURES | $6.92 | $6.91 | $0.00 | $0.00 | $0.00 | $13.83 |
| 2026 | 17899 | CITYPT - CITY OF PT | $327.32 | $327.30 | $0.00 | $0.00 | $0.00 | $654.62 |
| 2026 | 17899 | PORTPT - PORT DISTRICT | $93.14 | $93.13 | $0.00 | $0.00 | $0.00 | $186.27 |
| 2026 | 17899 | PUD1 - PUD #1 | $15.00 | $15.00 | $0.00 | $0.00 | $0.00 | $30.00 |
| 2026 | 17899 | HD2 - HOSP DIST #2 | $13.45 | $13.45 | $0.00 | $0.00 | $0.00 | $26.90 |
| 2026 | 17899 | SD50 - SCHOOL DIST #50 | $456.94 | $456.92 | $0.00 | $0.00 | $0.00 | $913.86 |
| 2026 | 17899 | FD1 - FIRE DISTRICT #1 | $305.36 | $305.36 | $0.00 | $0.00 | $0.00 | $610.72 |
| 2026 | 17899 | EMS1 - FIRE DIST #1 EMS | $117.41 | $117.40 | $0.00 | $0.00 | $0.00 | $234.81 |
| 2026 | 17899 | JCCD - JC Conservation District | $2.55 | $2.55 | $0.00 | $0.00 | $0.00 | $5.10 |
| 2026 | 17899 | NWA - Noxious Weed Assessment | $2.98 | $2.97 | $0.00 | $0.00 | $0.00 | $5.95 |
| 2026 | 17899 | TOTAL: | $2148.46 | $2148.35 | $0.00 | $0.00 | $0.00 | $4296.81 |
|
| 2026 | 17899 | $2148.46 | $2148.35 | $0.00 | $0.00 | $0.00 | $4296.81 |
Statement Details |
| 2025 | 17954 | STATE - STATE LEVY (SCHOOL) | $481.64 | $481.62 | $0.00 | $0.00 | $963.26 | $0.00 |
| 2025 | 17954 | COUNTY - COUNTY LEVIES (CE, DD, VET, MH) | $189.40 | $189.39 | $0.00 | $0.00 | $378.79 | $0.00 |
| 2025 | 17954 | CONSERVE - CONSERVATION FUTURES | $5.68 | $5.68 | $0.00 | $0.00 | $11.36 | $0.00 |
| 2025 | 17954 | CITYPT - CITY OF PT | $273.13 | $273.13 | $0.00 | $0.00 | $546.26 | $0.00 |
| 2025 | 17954 | PORTPT - PORT DISTRICT | $77.29 | $77.28 | $0.00 | $0.00 | $154.57 | $0.00 |
| 2025 | 17954 | PUD1 - PUD #1 | $12.40 | $12.39 | $0.00 | $0.00 | $24.79 | $0.00 |
| 2025 | 17954 | HD2 - HOSP DIST #2 | $11.05 | $11.05 | $0.00 | $0.00 | $22.10 | $0.00 |
| 2025 | 17954 | SD50 - SCHOOL DIST #50 | $352.01 | $351.99 | $0.00 | $0.00 | $704.00 | $0.00 |
| 2025 | 17954 | FD1 - FIRE DISTRICT #1 | $249.94 | $249.93 | $0.00 | $0.00 | $499.87 | $0.00 |
| 2025 | 17954 | EMS1 - FIRE DIST #1 EMS | $96.13 | $96.13 | $0.00 | $0.00 | $192.26 | $0.00 |
| 2025 | 17954 | JCCD - JC Conservation District | $2.55 | $2.55 | $0.00 | $0.00 | $5.10 | $0.00 |
| 2025 | 17954 | NWA - Noxious Weed Assessment | $2.15 | $2.15 | $0.00 | $0.00 | $4.30 | $0.00 |
| 2025 | 17954 | TOTAL: | $1753.37 | $1753.29 | $0.00 | $0.00 | $3506.66 | $0.00 |
|
| 2025 | 17954 | $1753.37 | $1753.29 | $0.00 | $0.00 | $3506.66 | $0.00 |
Statement Details |
| 2024 | 17988 | STATE - STATE LEVY (SCHOOL) | $438.14 | $438.13 | $0.00 | $0.00 | $876.27 | $0.00 |
| 2024 | 17988 | COUNTY - COUNTY LEVIES (CE, DD, VET, MH) | $187.49 | $187.48 | $0.00 | $0.00 | $374.97 | $0.00 |
| 2024 | 17988 | CONSERVE - CONSERVATION FUTURES | $5.62 | $5.62 | $0.00 | $0.00 | $11.24 | $0.00 |
| 2024 | 17988 | CITYPT - CITY OF PT | $267.89 | $267.88 | $0.00 | $0.00 | $535.77 | $0.00 |
| 2024 | 17988 | PORTPT - PORT DISTRICT | $77.44 | $77.44 | $0.00 | $0.00 | $154.88 | $0.00 |
| 2024 | 17988 | PUD1 - PUD #1 | $12.32 | $12.31 | $0.00 | $0.00 | $24.63 | $0.00 |
| 2024 | 17988 | HD2 - HOSP DIST #2 | $10.94 | $10.94 | $0.00 | $0.00 | $21.88 | $0.00 |
| 2024 | 17988 | SD50 - SCHOOL DIST #50 | $354.48 | $354.47 | $0.00 | $0.00 | $708.95 | $0.00 |
| 2024 | 17988 | FD1 - FIRE DISTRICT #1 | $247.90 | $247.89 | $0.00 | $0.00 | $495.79 | $0.00 |
| 2024 | 17988 | EMS1 - FIRE DIST #1 EMS | $94.69 | $94.68 | $0.00 | $0.00 | $189.37 | $0.00 |
| 2024 | 17988 | JCCD - JC Conservation District | $2.55 | $2.55 | $0.00 | $0.00 | $5.10 | $0.00 |
| 2024 | 17988 | NWA - Noxious Weed Assessment | $2.15 | $2.15 | $0.00 | $0.00 | $4.30 | $0.00 |
| 2024 | 17988 | TOTAL: | $1701.61 | $1701.54 | $0.00 | $0.00 | $3403.15 | $0.00 |
|
| 2024 | 17988 | $1701.61 | $1701.54 | $0.00 | $0.00 | $3403.15 | $0.00 |
Statement Details |
| 2023 | 18021 | STATE - STATE LEVY (SCHOOL) | $439.94 | $439.93 | $0.00 | $0.00 | $879.87 | $0.00 |
| 2023 | 18021 | COUNTY - COUNTY LEVIES (CE, DD, VET, MH) | $191.98 | $191.97 | $0.00 | $0.00 | $383.95 | $0.00 |
| 2023 | 18021 | CONSERVE - CONSERVATION FUTURES | $5.76 | $5.75 | $0.00 | $0.00 | $11.51 | $0.00 |
| 2023 | 18021 | CITYPT - CITY OF PT | $271.33 | $271.32 | $0.00 | $0.00 | $542.65 | $0.00 |
| 2023 | 18021 | PORTPT - PORT DISTRICT | $80.88 | $80.86 | $0.00 | $0.00 | $161.74 | $0.00 |
| 2023 | 18021 | PUD1 - PUD #1 | $12.73 | $12.72 | $0.00 | $0.00 | $25.45 | $0.00 |
| 2023 | 18021 | HD2 - HOSP DIST #2 | $11.21 | $11.20 | $0.00 | $0.00 | $22.41 | $0.00 |
| 2023 | 18021 | SD50 - SCHOOL DIST #50 | $349.10 | $349.09 | $0.00 | $0.00 | $698.19 | $0.00 |
| 2023 | 18021 | FD1 - FIRE DISTRICT #1 | $158.15 | $158.14 | $0.00 | $0.00 | $316.29 | $0.00 |
| 2023 | 18021 | EMS1 - FIRE DIST #1 EMS | $67.28 | $67.27 | $0.00 | $0.00 | $134.55 | $0.00 |
| 2023 | 18021 | JCCD - JC Conservation District | $2.55 | $2.55 | $0.00 | $0.00 | $5.10 | $0.00 |
| 2023 | 18021 | NWA - Noxious Weed Assessment | $2.15 | $2.15 | $0.00 | $0.00 | $4.30 | $0.00 |
| 2023 | 18021 | TOTAL: | $1593.06 | $1592.95 | $0.00 | $0.00 | $3186.01 | $0.00 |
|
| 2023 | 18021 | $1593.06 | $1592.95 | $0.00 | $0.00 | $3186.01 | $0.00 |
Values
| (+) Improvement Homesite Value: | + | $0 | |
| (+) Improvement Non-Homesite Value: | + | $376,746 | |
| (+) Land Homesite Value: | + | $0 | |
| (+) Land Non-Homesite Value: | + | $125,000 | |
| (+) Curr Use (HS): | + | $0 | $0 |
| (+) Curr Use (NHS): | + | $0 | $0 |
| | | -------------------------- | |
| (=) Market Value: | = | $501,746 | |
| (–) Productivity Loss: | – | $0 | |
| | | -------------------------- | |
| (=) Subtotal: | = | $501,746 | |
| (+) Senior Appraised Value: | + | $0 | |
| (+) Non-Senior Appraised Value: | + | $501,746 | |
| | | -------------------------- | |
| (=) Total Appraised Value: | = | $501,746 | |
| (–) Senior Exemption Loss: | – | $0 | |
| (–) Exemption Loss: | – | $0 | |
| | | -------------------------- | |
| (=) Taxable Value: | = | $501,746 | |
Taxing Jurisdiction
| Owner: | CANDACE L COLE | | |
| % Ownership: | 100.0000000000% | | |
| Total Value: | $501,746 | | |
| Tax Area: | 0110 - C-50F1E1H2 |
| CE | COUNTY CURRENT EXPENSE | 0.9034619479 | $501,746 | $501,746 | $453.31 | | |
| CNTYDD | DEVELOPMENTAL DISABILITIES | 0.0052121823 | $501,746 | $501,746 | $2.62 | | |
| CNTYVET | VETERANS RELIEF | 0.0052777810 | $501,746 | $501,746 | $2.65 | | |
| MENTAL | MENTAL HEALTH | 0.0052121823 | $501,746 | $501,746 | $2.62 | | |
| PTGEN | CITY OF PT GENERAL | 0.8551967795 | $501,746 | $501,746 | $429.09 | | |
| PTLLL | CITY OF PT - LIBRARY LID LIFT | 0.4010114288 | $501,746 | $501,746 | $201.21 | | |
| PTMVBOND | CITY OF PT MV BOND | 0.0484717981 | $501,746 | $501,746 | $24.32 | | |
| HOSP2CASH | HOSP DIST #2 GENERAL | 0.0536075306 | $501,746 | $501,746 | $26.90 | | |
| SCH50BOND | SCHOOL DIST #50 BOND 2016 | 0.5377451389 | $501,746 | $501,746 | $269.81 | | |
| SCH50CP | SCHOOL DIST #50 CAP PROJ | 0.4573475088 | $501,746 | $501,746 | $229.47 | | |
| SCH50MO | SCHOOL DIST #50 EP & O | 0.8262822886 | $501,746 | $501,746 | $414.58 | | |
| CONSERVE | CONSERVATION FUTURES | 0.0275621078 | $501,746 | $501,746 | $13.83 | | |
| EMS1 | FIRE DIST #1 EMS | 0.4679948282 | $501,746 | $501,746 | $234.81 | | |
| FD1 | FIRE DIST #1 GENERAL | 1.2171942929 | $501,746 | $501,746 | $610.72 | | |
| PORTPT | PORT OF PT GENERAL | 0.1134941229 | $501,746 | $501,746 | $56.95 | | |
| PORTPTIDD | PORT OF PT IDD 2019 | 0.2577346692 | $501,746 | $501,746 | $129.32 | | |
| PUD1 | PUD #1 GENERAL | 0.0597888892 | $501,746 | $501,746 | $30.00 | | |
| STATE | STATE SCHOOL PART 1 | 1.4940692947 | $501,746 | $501,746 | $749.64 | | |
| STATE2 | STATE SCHOOL PART 2 | 0.8050170049 | $501,746 | $501,746 | $403.91 | | |
| | Total Tax Rate: | 8.5416817766 | | | | | |
| | | | | Taxes w/Current Exemptions: | $4,285.76 | | |
| | | | | Taxes w/o Exemptions: | $4,285.76 | | |
Improvement / Building
| Improvement #1: | Residential Bldg | State Code: | 11 | 1842.0 sqft | Value: | $376,746 |
| Bathrooms (#): | 2 (FULL) | Bedrooms (#): | 3 | | Exterior Wall: | SI/ST | Fireplace: | SIN 1-AVG | | Floor Construction: | FRAME | Foundation: | CONPR | | Heating/Cooling: | ELBB | Inside Verify: | YES-FIX | | Roof Cover: | COMP |   |   |
|
| | Type | Description | Class CD | Sub Class CD | Year Built | Area |
| | MA | Main Area | 4 | 1S | 1967 | 1842.0 |
| | PATIO | House Patio | 4 | 1S | 1967 | 200.0 |
| | HENCL | House Enclosure | 4 | 1S | 1967 | 108.0 |
| | GATT | House Attached Garage | 4 | 1S | 1967 | 400.0 |
| | HCPOR | House Concrete Porch | 4 | 1S | 1967 | 120.0 |
| | HDECK | House Deck | 4 | 1S | 1967 | 119.0 |
| | SHED | Shed (Table Not Dep) | 3 | 1S | 1967 | 280.0 |
Sketch
Property Image
Land
| 1 | 6125-1275S | | 0.0000 | 0.00 | 0.00 | 0.00 | 1.00 | $125,000 | $0 |
Roll Value History
| 2026 | N/A | N/A | N/A | N/A | N/A |
| 2025 | $376,746 | $125,000 | $0 | $501,746 | $501,746 |
| 2024 | $286,191 | $115,500 | $0 | $401,691 | $401,691 |
| 2023 | $273,748 | $105,000 | $0 | $378,748 | $378,748 |
| 2022 | $273,748 | $100,000 | $0 | $373,748 | $373,748 |
Deed and Sales History
| 1 | 01/11/2023 | PRD | Personal Representatives Deed | JACK L COLE | CANDACE L COLE | | | | 140377 | |
| 2 | 07/30/2007 | QCD | Quit Claim Deed | COLE, JACK L | COLE, CANDACE L/JACK L | | | $0.00 | 109730 | 0 |
| 3 | 06/28/2000 | QCD | Quit Claim Deed | COLE, PAMELA J | COLE, JACK L | 0 | 0 | $0.00 | 90081 | 0 |
Payout Agreement
| No payout information available.. |