Property
Account |
| Property ID: | 28574 | Abbreviated Legal Description: | ELLIS ADDITION LOT 15 |
| Parcel # / Geo ID: | 949200015 | Agent Code: | |
| Type: | Real | | |
| Tax Area: | 0110 - C-50F1E1H2 | Land Use Code | 11 |
| Open Space: | N | DFL | N |
| Historic Property: | N | Remodel Property: | N |
| Multi-Family Redevelopment: | N | | |
| Township: | 30N | Section: | 3 |
| Range: | 1W |
Location |
| Address: | 2531 SAN JUAN AVE PORT TOWNSEND, WA 98368 | Mapsco: | 044/059 |
| Neighborhood: | ELLIS AND PEDERSEN ADD | Map ID: | |
| Neighborhood CD: | 6125 |
Owner |
| Name: | NATHAN & KRISTA HAMAR | Owner ID: | 98760 |
| Mailing Address: | 2531 SAN JUAN AVE PORT TOWNSEND, WA 98368-6255 | % Ownership: | 100.0000000000% |
| | | Exemptions: | |
Pay Tax Due
Select the appropriate checkbox next to the year to be paid. Multiple years may be selected.
*Convenience Fee not included
Taxes and Assessment Details
Property Tax Information as of
03/10/2026
Click on "Statement Details" to expand or collapse a tax statement.
* Please enter a valid date ** Please enter a valid date *
Statement Details |
| 2026 | 17912 | STATE - STATE LEVY (SCHOOL) | $535.77 | $535.77 | $0.00 | $0.00 | $0.00 | $1071.54 |
| 2026 | 17912 | COUNTY - COUNTY LEVIES (CE, DD, VET, MH) | $214.21 | $214.19 | $0.00 | $0.00 | $0.00 | $428.40 |
| 2026 | 17912 | CONSERVE - CONSERVATION FUTURES | $6.43 | $6.42 | $0.00 | $0.00 | $0.00 | $12.85 |
| 2026 | 17912 | CITYPT - CITY OF PT | $304.04 | $304.03 | $0.00 | $0.00 | $0.00 | $608.07 |
| 2026 | 17912 | PORTPT - PORT DISTRICT | $86.51 | $86.51 | $0.00 | $0.00 | $0.00 | $173.02 |
| 2026 | 17912 | PUD1 - PUD #1 | $13.94 | $13.93 | $0.00 | $0.00 | $0.00 | $27.87 |
| 2026 | 17912 | HD2 - HOSP DIST #2 | $12.49 | $12.49 | $0.00 | $0.00 | $0.00 | $24.98 |
| 2026 | 17912 | SD50 - SCHOOL DIST #50 | $424.46 | $424.44 | $0.00 | $0.00 | $0.00 | $848.90 |
| 2026 | 17912 | FD1 - FIRE DISTRICT #1 | $283.65 | $283.65 | $0.00 | $0.00 | $0.00 | $567.30 |
| 2026 | 17912 | EMS1 - FIRE DIST #1 EMS | $109.06 | $109.06 | $0.00 | $0.00 | $0.00 | $218.12 |
| 2026 | 17912 | JCCD - JC Conservation District | $2.55 | $2.55 | $0.00 | $0.00 | $0.00 | $5.10 |
| 2026 | 17912 | NWA - Noxious Weed Assessment | $2.98 | $2.97 | $0.00 | $0.00 | $0.00 | $5.95 |
| 2026 | 17912 | TOTAL: | $1996.09 | $1996.01 | $0.00 | $0.00 | $0.00 | $3992.10 |
|
| 2026 | 17912 | $1996.09 | $1996.01 | $0.00 | $0.00 | $0.00 | $3992.10 |
Statement Details |
| 2025 | 17967 | STATE - STATE LEVY (SCHOOL) | $475.26 | $475.25 | $0.00 | $0.00 | $950.51 | $0.00 |
| 2025 | 17967 | COUNTY - COUNTY LEVIES (CE, DD, VET, MH) | $186.90 | $186.87 | $0.00 | $0.00 | $373.77 | $0.00 |
| 2025 | 17967 | CONSERVE - CONSERVATION FUTURES | $5.61 | $5.60 | $0.00 | $0.00 | $11.21 | $0.00 |
| 2025 | 17967 | CITYPT - CITY OF PT | $269.52 | $269.51 | $0.00 | $0.00 | $539.03 | $0.00 |
| 2025 | 17967 | PORTPT - PORT DISTRICT | $76.27 | $76.25 | $0.00 | $0.00 | $152.52 | $0.00 |
| 2025 | 17967 | PUD1 - PUD #1 | $12.23 | $12.23 | $0.00 | $0.00 | $24.46 | $0.00 |
| 2025 | 17967 | HD2 - HOSP DIST #2 | $10.91 | $10.90 | $0.00 | $0.00 | $21.81 | $0.00 |
| 2025 | 17967 | SD50 - SCHOOL DIST #50 | $347.34 | $347.32 | $0.00 | $0.00 | $694.66 | $0.00 |
| 2025 | 17967 | FD1 - FIRE DISTRICT #1 | $246.62 | $246.62 | $0.00 | $0.00 | $493.24 | $0.00 |
| 2025 | 17967 | EMS1 - FIRE DIST #1 EMS | $94.86 | $94.85 | $0.00 | $0.00 | $189.71 | $0.00 |
| 2025 | 17967 | JCCD - JC Conservation District | $2.55 | $2.55 | $0.00 | $0.00 | $5.10 | $0.00 |
| 2025 | 17967 | NWA - Noxious Weed Assessment | $2.15 | $2.15 | $0.00 | $0.00 | $4.30 | $0.00 |
| 2025 | 17967 | TOTAL: | $1730.22 | $1730.10 | $0.00 | $0.00 | $3460.32 | $0.00 |
|
| 2025 | 17967 | $1730.22 | $1730.10 | $0.00 | $0.00 | $3460.32 | $0.00 |
Statement Details |
| 2024 | 18001 | STATE - STATE LEVY (SCHOOL) | $432.21 | $432.20 | $0.00 | $0.00 | $864.41 | $0.00 |
| 2024 | 18001 | COUNTY - COUNTY LEVIES (CE, DD, VET, MH) | $184.96 | $184.93 | $0.00 | $0.00 | $369.89 | $0.00 |
| 2024 | 18001 | CONSERVE - CONSERVATION FUTURES | $5.55 | $5.54 | $0.00 | $0.00 | $11.09 | $0.00 |
| 2024 | 18001 | CITYPT - CITY OF PT | $264.27 | $264.26 | $0.00 | $0.00 | $528.53 | $0.00 |
| 2024 | 18001 | PORTPT - PORT DISTRICT | $76.40 | $76.38 | $0.00 | $0.00 | $152.78 | $0.00 |
| 2024 | 18001 | PUD1 - PUD #1 | $12.15 | $12.15 | $0.00 | $0.00 | $24.30 | $0.00 |
| 2024 | 18001 | HD2 - HOSP DIST #2 | $10.79 | $10.79 | $0.00 | $0.00 | $21.58 | $0.00 |
| 2024 | 18001 | SD50 - SCHOOL DIST #50 | $349.68 | $349.67 | $0.00 | $0.00 | $699.35 | $0.00 |
| 2024 | 18001 | FD1 - FIRE DISTRICT #1 | $244.54 | $244.54 | $0.00 | $0.00 | $489.08 | $0.00 |
| 2024 | 18001 | EMS1 - FIRE DIST #1 EMS | $93.41 | $93.40 | $0.00 | $0.00 | $186.81 | $0.00 |
| 2024 | 18001 | JCCD - JC Conservation District | $2.55 | $2.55 | $0.00 | $0.00 | $5.10 | $0.00 |
| 2024 | 18001 | NWA - Noxious Weed Assessment | $2.15 | $2.15 | $0.00 | $0.00 | $4.30 | $0.00 |
| 2024 | 18001 | TOTAL: | $1678.66 | $1678.56 | $0.00 | $0.00 | $3357.22 | $0.00 |
|
| 2024 | 18001 | $1678.66 | $1678.56 | $0.00 | $0.00 | $3357.22 | $0.00 |
Statement Details |
| 2023 | 18034 | STATE - STATE LEVY (SCHOOL) | $433.90 | $433.89 | $0.00 | $0.00 | $867.79 | $0.00 |
| 2023 | 18034 | COUNTY - COUNTY LEVIES (CE, DD, VET, MH) | $189.35 | $189.33 | $0.00 | $0.00 | $378.68 | $0.00 |
| 2023 | 18034 | CONSERVE - CONSERVATION FUTURES | $5.68 | $5.68 | $0.00 | $0.00 | $11.36 | $0.00 |
| 2023 | 18034 | CITYPT - CITY OF PT | $267.61 | $267.59 | $0.00 | $0.00 | $535.20 | $0.00 |
| 2023 | 18034 | PORTPT - PORT DISTRICT | $79.76 | $79.76 | $0.00 | $0.00 | $159.52 | $0.00 |
| 2023 | 18034 | PUD1 - PUD #1 | $12.55 | $12.55 | $0.00 | $0.00 | $25.10 | $0.00 |
| 2023 | 18034 | HD2 - HOSP DIST #2 | $11.06 | $11.04 | $0.00 | $0.00 | $22.10 | $0.00 |
| 2023 | 18034 | SD50 - SCHOOL DIST #50 | $344.32 | $344.30 | $0.00 | $0.00 | $688.62 | $0.00 |
| 2023 | 18034 | FD1 - FIRE DISTRICT #1 | $155.98 | $155.98 | $0.00 | $0.00 | $311.96 | $0.00 |
| 2023 | 18034 | EMS1 - FIRE DIST #1 EMS | $66.35 | $66.35 | $0.00 | $0.00 | $132.70 | $0.00 |
| 2023 | 18034 | JCCD - JC Conservation District | $2.55 | $2.55 | $0.00 | $0.00 | $5.10 | $0.00 |
| 2023 | 18034 | NWA - Noxious Weed Assessment | $2.15 | $2.15 | $0.00 | $0.00 | $4.30 | $0.00 |
| 2023 | 18034 | TOTAL: | $1571.26 | $1571.17 | $0.00 | $0.00 | $3142.43 | $0.00 |
|
| 2023 | 18034 | $1571.26 | $1571.17 | $0.00 | $0.00 | $3142.43 | $0.00 |
Values
| (+) Improvement Homesite Value: | + | $304,035 | |
| (+) Improvement Non-Homesite Value: | + | $27,536 | |
| (+) Land Homesite Value: | + | $134,500 | |
| (+) Land Non-Homesite Value: | + | $0 | |
| (+) Curr Use (HS): | + | $0 | $0 |
| (+) Curr Use (NHS): | + | $0 | $0 |
| | | -------------------------- | |
| (=) Market Value: | = | $466,071 | |
| (–) Productivity Loss: | – | $0 | |
| | | -------------------------- | |
| (=) Subtotal: | = | $466,071 | |
| (+) Senior Appraised Value: | + | $0 | |
| (+) Non-Senior Appraised Value: | + | $466,071 | |
| | | -------------------------- | |
| (=) Total Appraised Value: | = | $466,071 | |
| (–) Senior Exemption Loss: | – | $0 | |
| (–) Exemption Loss: | – | $0 | |
| | | -------------------------- | |
| (=) Taxable Value: | = | $466,071 | |
Taxing Jurisdiction
| Owner: | NATHAN & KRISTA HAMAR | | |
| % Ownership: | 100.0000000000% | | |
| Total Value: | $466,071 | | |
| Tax Area: | 0110 - C-50F1E1H2 |
| CE | COUNTY CURRENT EXPENSE | 0.9034619479 | $466,071 | $466,071 | $421.08 | | |
| CNTYDD | DEVELOPMENTAL DISABILITIES | 0.0052121823 | $466,071 | $466,071 | $2.43 | | |
| CNTYVET | VETERANS RELIEF | 0.0052777810 | $466,071 | $466,071 | $2.46 | | |
| MENTAL | MENTAL HEALTH | 0.0052121823 | $466,071 | $466,071 | $2.43 | | |
| PTGEN | CITY OF PT GENERAL | 0.8551967795 | $466,071 | $466,071 | $398.58 | | |
| PTLLL | CITY OF PT - LIBRARY LID LIFT | 0.4010114288 | $466,071 | $466,071 | $186.90 | | |
| PTMVBOND | CITY OF PT MV BOND | 0.0484717981 | $466,071 | $466,071 | $22.59 | | |
| HOSP2CASH | HOSP DIST #2 GENERAL | 0.0536075306 | $466,071 | $466,071 | $24.98 | | |
| SCH50BOND | SCHOOL DIST #50 BOND 2016 | 0.5377451389 | $466,071 | $466,071 | $250.63 | | |
| SCH50CP | SCHOOL DIST #50 CAP PROJ | 0.4573475088 | $466,071 | $466,071 | $213.16 | | |
| SCH50MO | SCHOOL DIST #50 EP & O | 0.8262822886 | $466,071 | $466,071 | $385.11 | | |
| CONSERVE | CONSERVATION FUTURES | 0.0275621078 | $466,071 | $466,071 | $12.85 | | |
| EMS1 | FIRE DIST #1 EMS | 0.4679948282 | $466,071 | $466,071 | $218.12 | | |
| FD1 | FIRE DIST #1 GENERAL | 1.2171942929 | $466,071 | $466,071 | $567.30 | | |
| PORTPT | PORT OF PT GENERAL | 0.1134941229 | $466,071 | $466,071 | $52.90 | | |
| PORTPTIDD | PORT OF PT IDD 2019 | 0.2577346692 | $466,071 | $466,071 | $120.12 | | |
| PUD1 | PUD #1 GENERAL | 0.0597888892 | $466,071 | $466,071 | $27.87 | | |
| STATE | STATE SCHOOL PART 1 | 1.4940692947 | $466,071 | $466,071 | $696.34 | | |
| STATE2 | STATE SCHOOL PART 2 | 0.8050170049 | $466,071 | $466,071 | $375.20 | | |
| | Total Tax Rate: | 8.5416817766 | | | | | |
| | | | | Taxes w/Current Exemptions: | $3,981.05 | | |
| | | | | Taxes w/o Exemptions: | $3,981.05 | | |
Improvement / Building
| Improvement #1: | Residential Bldg | State Code: | 11 | 1144.0 sqft | Value: | $304,035 |
| Bathrooms (#): | 2 (FULL) | Bedrooms (#): | 2 | | Exterior Wall: | PL/T1 | Fireplace: | SIN 1-AVG | | Floor Construction: | FRAME | Foundation: | CONPR | | Heating/Cooling: | F/A | Inside Verify: | YES-FIX | | Roof Cover: | COMP |   |   |
|
| | Type | Description | Class CD | Sub Class CD | Year Built | Area |
| | MA | Main Area | 4- | 1S | 1974 | 1144.0 |
| | HRPO | House Roof Patio | 4 | 1S | 1974 | 300.0 |
| | HCPOR | House Concrete Porch | 4 | 1S | 1974 | 48.0 |
| | GATT | House Attached Garage | 4 | 1S | 1974 | 396.0 |
| | PATIO | House Patio | 4 | 1S | 1974 | 306.2 |
| Improvement #2: | Residential Bldg | State Code: | 11 | 252.0 sqft | Value: | $27,536 |
| Bathrooms (#): | 1 (FULL) | Bedrooms (#): | 1 | | Exterior Wall: | SI/ST | Foundation: | CONPR | | Heating/Cooling: | HPUMP | Roof Cover: | COMP |
|
Sketch
Property Image
Land
| 1 | 6125-1275S | | 0.0000 | 0.00 | 0.00 | 0.00 | 1.00 | $134,500 | $0 |
Roll Value History
| 2026 | N/A | N/A | N/A | N/A | N/A |
| 2025 | $331,571 | $134,500 | $0 | $466,071 | $466,071 |
| 2024 | $272,470 | $123,900 | $0 | $396,370 | $396,370 |
| 2023 | $260,623 | $113,000 | $0 | $373,623 | $373,623 |
| 2022 | $260,623 | $108,000 | $0 | $368,623 | $368,623 |
Deed and Sales History
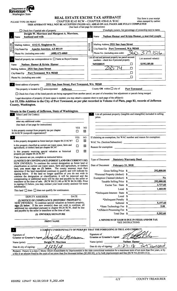
| 1 | 02/21/2018 | SWD | Statutory Warranty Deed | DWIGHT W & MARGARET A MORRISON | NATHAN & KRISTA HAMAR | | | $292,000.00 | 129647 | |
| 2 | 10/19/2015 | SWD | Statutory Warranty Deed | FRANKIE OLIN | DWIGHT W & MARGARET A MORRISON | | | $183,500.00 | 124215 | |
Payout Agreement
| No payout information available.. |