Property
Account |
| Property ID: | 28579 | Abbreviated Legal Description: | ESTATE ADDITION BLK 170 LOTS 2 & 4 W/S1/2 VAC LINCOLN ADJ |
| Parcel # / Geo ID: | 949817002 | Agent Code: | |
| Type: | Real | | |
| Tax Area: | 0110 - C-50F1E1H2 | Land Use Code | 11 |
| Open Space: | N | DFL | N |
| Historic Property: | N | Remodel Property: | N |
| Multi-Family Redevelopment: | N | | |
| Township: | 30N | Section: | 11 |
| Range: | 1W |
Location |
| Address: | 735 GAINES ST PORT TOWNSEND, WA 98368 | Mapsco: | 045/025 |
| Neighborhood: | KEARNEY ST COMMERCIAL AREA | Map ID: | |
| Neighborhood CD: | 6265C |
Owner |
| Name: | LAUREN EHNEBUSKE | Owner ID: | 106595 |
| Mailing Address: | JEREMY DAVIS 735 GAINES ST PORT TOWNSEND, WA 98368-7923 | % Ownership: | 100.0000000000% |
| | | Exemptions: | |
Pay Tax Due
Select the appropriate checkbox next to the year to be paid. Multiple years may be selected.
*Convenience Fee not included
Taxes and Assessment Details
Property Tax Information as of
03/09/2026
Click on "Statement Details" to expand or collapse a tax statement.
* Please enter a valid date ** Please enter a valid date *
Statement Details |
| 2026 | 17917 | STATE - STATE LEVY (SCHOOL) | $405.45 | $405.43 | $0.00 | $0.00 | $0.00 | $810.88 |
| 2026 | 17917 | COUNTY - COUNTY LEVIES (CE, DD, VET, MH) | $162.10 | $162.09 | $0.00 | $0.00 | $0.00 | $324.19 |
| 2026 | 17917 | CONSERVE - CONSERVATION FUTURES | $4.86 | $4.86 | $0.00 | $0.00 | $0.00 | $9.72 |
| 2026 | 17917 | CITYPT - CITY OF PT | $230.08 | $230.07 | $0.00 | $0.00 | $0.00 | $460.15 |
| 2026 | 17917 | PORTPT - PORT DISTRICT | $65.47 | $65.46 | $0.00 | $0.00 | $0.00 | $130.93 |
| 2026 | 17917 | PUD1 - PUD #1 | $10.55 | $10.54 | $0.00 | $0.00 | $0.00 | $21.09 |
| 2026 | 17917 | HD2 - HOSP DIST #2 | $9.46 | $9.45 | $0.00 | $0.00 | $0.00 | $18.91 |
| 2026 | 17917 | SD50 - SCHOOL DIST #50 | $321.20 | $321.19 | $0.00 | $0.00 | $0.00 | $642.39 |
| 2026 | 17917 | FD1 - FIRE DISTRICT #1 | $214.65 | $214.65 | $0.00 | $0.00 | $0.00 | $429.30 |
| 2026 | 17917 | EMS1 - FIRE DIST #1 EMS | $82.53 | $82.53 | $0.00 | $0.00 | $0.00 | $165.06 |
| 2026 | 17917 | JCCD - JC Conservation District | $2.55 | $2.55 | $0.00 | $0.00 | $0.00 | $5.10 |
| 2026 | 17917 | NWA - Noxious Weed Assessment | $2.98 | $2.97 | $0.00 | $0.00 | $0.00 | $5.95 |
| 2026 | 17917 | TOTAL: | $1511.88 | $1511.79 | $0.00 | $0.00 | $0.00 | $3023.67 |
|
| 2026 | 17917 | $1511.88 | $1511.79 | $0.00 | $0.00 | $0.00 | $3023.67 |
Statement Details |
| 2025 | 17972 | STATE - STATE LEVY (SCHOOL) | $415.05 | $415.05 | $0.00 | $0.00 | $830.10 | $0.00 |
| 2025 | 17972 | COUNTY - COUNTY LEVIES (CE, DD, VET, MH) | $163.24 | $163.20 | $0.00 | $0.00 | $326.44 | $0.00 |
| 2025 | 17972 | CONSERVE - CONSERVATION FUTURES | $4.90 | $4.89 | $0.00 | $0.00 | $9.79 | $0.00 |
| 2025 | 17972 | CITYPT - CITY OF PT | $235.38 | $235.37 | $0.00 | $0.00 | $470.75 | $0.00 |
| 2025 | 17972 | PORTPT - PORT DISTRICT | $66.61 | $66.60 | $0.00 | $0.00 | $133.21 | $0.00 |
| 2025 | 17972 | PUD1 - PUD #1 | $10.68 | $10.68 | $0.00 | $0.00 | $21.36 | $0.00 |
| 2025 | 17972 | HD2 - HOSP DIST #2 | $9.52 | $9.52 | $0.00 | $0.00 | $19.04 | $0.00 |
| 2025 | 17972 | SD50 - SCHOOL DIST #50 | $303.34 | $303.32 | $0.00 | $0.00 | $606.66 | $0.00 |
| 2025 | 17972 | FD1 - FIRE DISTRICT #1 | $215.38 | $215.38 | $0.00 | $0.00 | $430.76 | $0.00 |
| 2025 | 17972 | EMS1 - FIRE DIST #1 EMS | $82.84 | $82.84 | $0.00 | $0.00 | $165.68 | $0.00 |
| 2025 | 17972 | JCCD - JC Conservation District | $2.55 | $2.55 | $0.00 | $0.00 | $5.10 | $0.00 |
| 2025 | 17972 | NWA - Noxious Weed Assessment | $2.15 | $2.15 | $0.00 | $0.00 | $4.30 | $0.00 |
| 2025 | 17972 | TOTAL: | $1511.64 | $1511.55 | $0.00 | $0.00 | $3023.19 | $0.00 |
|
| 2025 | 17972 | $1511.64 | $1511.55 | $0.00 | $0.00 | $3023.19 | $0.00 |
Statement Details |
| 2024 | 18006 | STATE - STATE LEVY (SCHOOL) | $376.29 | $376.27 | $0.00 | $0.00 | $752.56 | $0.00 |
| 2024 | 18006 | COUNTY - COUNTY LEVIES (CE, DD, VET, MH) | $161.02 | $161.01 | $0.00 | $0.00 | $322.03 | $0.00 |
| 2024 | 18006 | CONSERVE - CONSERVATION FUTURES | $4.83 | $4.83 | $0.00 | $0.00 | $9.66 | $0.00 |
| 2024 | 18006 | CITYPT - CITY OF PT | $230.07 | $230.06 | $0.00 | $0.00 | $460.13 | $0.00 |
| 2024 | 18006 | PORTPT - PORT DISTRICT | $66.51 | $66.50 | $0.00 | $0.00 | $133.01 | $0.00 |
| 2024 | 18006 | PUD1 - PUD #1 | $10.58 | $10.57 | $0.00 | $0.00 | $21.15 | $0.00 |
| 2024 | 18006 | HD2 - HOSP DIST #2 | $9.40 | $9.39 | $0.00 | $0.00 | $18.79 | $0.00 |
| 2024 | 18006 | SD50 - SCHOOL DIST #50 | $304.43 | $304.42 | $0.00 | $0.00 | $608.85 | $0.00 |
| 2024 | 18006 | FD1 - FIRE DISTRICT #1 | $212.90 | $212.90 | $0.00 | $0.00 | $425.80 | $0.00 |
| 2024 | 18006 | EMS1 - FIRE DIST #1 EMS | $81.32 | $81.32 | $0.00 | $0.00 | $162.64 | $0.00 |
| 2024 | 18006 | JCCD - JC Conservation District | $2.55 | $2.55 | $0.00 | $0.00 | $5.10 | $0.00 |
| 2024 | 18006 | NWA - Noxious Weed Assessment | $2.15 | $2.15 | $0.00 | $0.00 | $4.30 | $0.00 |
| 2024 | 18006 | TOTAL: | $1462.05 | $1461.97 | $0.00 | $0.00 | $2924.02 | $0.00 |
|
| 2024 | 18006 | $1462.05 | $1461.97 | $0.00 | $0.00 | $2924.02 | $0.00 |
Statement Details |
| 2023 | 18039 | STATE - STATE LEVY (SCHOOL) | $311.51 | $311.50 | $0.00 | $0.00 | $623.01 | $0.00 |
| 2023 | 18039 | COUNTY - COUNTY LEVIES (CE, DD, VET, MH) | $135.93 | $135.92 | $0.00 | $0.00 | $271.85 | $0.00 |
| 2023 | 18039 | CONSERVE - CONSERVATION FUTURES | $4.08 | $4.07 | $0.00 | $0.00 | $8.15 | $0.00 |
| 2023 | 18039 | CITYPT - CITY OF PT | $192.13 | $192.11 | $0.00 | $0.00 | $384.24 | $0.00 |
| 2023 | 18039 | PORTPT - PORT DISTRICT | $57.27 | $57.25 | $0.00 | $0.00 | $114.52 | $0.00 |
| 2023 | 18039 | PUD1 - PUD #1 | $9.01 | $9.01 | $0.00 | $0.00 | $18.02 | $0.00 |
| 2023 | 18039 | HD2 - HOSP DIST #2 | $7.94 | $7.92 | $0.00 | $0.00 | $15.86 | $0.00 |
| 2023 | 18039 | SD50 - SCHOOL DIST #50 | $247.19 | $247.18 | $0.00 | $0.00 | $494.37 | $0.00 |
| 2023 | 18039 | FD1 - FIRE DISTRICT #1 | $111.98 | $111.98 | $0.00 | $0.00 | $223.96 | $0.00 |
| 2023 | 18039 | EMS1 - FIRE DIST #1 EMS | $47.64 | $47.63 | $0.00 | $0.00 | $95.27 | $0.00 |
| 2023 | 18039 | JCCD - JC Conservation District | $2.55 | $2.55 | $0.00 | $0.00 | $5.10 | $0.00 |
| 2023 | 18039 | NWA - Noxious Weed Assessment | $2.15 | $2.15 | $0.00 | $0.00 | $4.30 | $0.00 |
| 2023 | 18039 | TOTAL: | $1129.38 | $1129.27 | $0.00 | $0.00 | $2258.65 | $0.00 |
|
| 2023 | 18039 | $1129.38 | $1129.27 | $0.00 | $0.00 | $2258.65 | $0.00 |
Values
| (+) Improvement Homesite Value: | + | $0 | |
| (+) Improvement Non-Homesite Value: | + | $161,455 | |
| (+) Land Homesite Value: | + | $0 | |
| (+) Land Non-Homesite Value: | + | $191,240 | |
| (+) Curr Use (HS): | + | $0 | $0 |
| (+) Curr Use (NHS): | + | $0 | $0 |
| | | -------------------------- | |
| (=) Market Value: | = | $352,695 | |
| (–) Productivity Loss: | – | $0 | |
| | | -------------------------- | |
| (=) Subtotal: | = | $352,695 | |
| (+) Senior Appraised Value: | + | $0 | |
| (+) Non-Senior Appraised Value: | + | $352,695 | |
| | | -------------------------- | |
| (=) Total Appraised Value: | = | $352,695 | |
| (–) Senior Exemption Loss: | – | $0 | |
| (–) Exemption Loss: | – | $0 | |
| | | -------------------------- | |
| (=) Taxable Value: | = | $352,695 | |
Taxing Jurisdiction
| Owner: | LAUREN EHNEBUSKE | | |
| % Ownership: | 100.0000000000% | | |
| Total Value: | $352,695 | | |
| Tax Area: | 0110 - C-50F1E1H2 |
| CE | COUNTY CURRENT EXPENSE | 0.9034619479 | $352,695 | $352,695 | $318.65 | | |
| CNTYDD | DEVELOPMENTAL DISABILITIES | 0.0052121823 | $352,695 | $352,695 | $1.84 | | |
| CNTYVET | VETERANS RELIEF | 0.0052777810 | $352,695 | $352,695 | $1.86 | | |
| MENTAL | MENTAL HEALTH | 0.0052121823 | $352,695 | $352,695 | $1.84 | | |
| PTGEN | CITY OF PT GENERAL | 0.8551967795 | $352,695 | $352,695 | $301.62 | | |
| PTLLL | CITY OF PT - LIBRARY LID LIFT | 0.4010114288 | $352,695 | $352,695 | $141.43 | | |
| PTMVBOND | CITY OF PT MV BOND | 0.0484717981 | $352,695 | $352,695 | $17.10 | | |
| HOSP2CASH | HOSP DIST #2 GENERAL | 0.0536075306 | $352,695 | $352,695 | $18.91 | | |
| SCH50BOND | SCHOOL DIST #50 BOND 2016 | 0.5377451389 | $352,695 | $352,695 | $189.66 | | |
| SCH50CP | SCHOOL DIST #50 CAP PROJ | 0.4573475088 | $352,695 | $352,695 | $161.30 | | |
| SCH50MO | SCHOOL DIST #50 EP & O | 0.8262822886 | $352,695 | $352,695 | $291.43 | | |
| CONSERVE | CONSERVATION FUTURES | 0.0275621078 | $352,695 | $352,695 | $9.72 | | |
| EMS1 | FIRE DIST #1 EMS | 0.4679948282 | $352,695 | $352,695 | $165.06 | | |
| FD1 | FIRE DIST #1 GENERAL | 1.2171942929 | $352,695 | $352,695 | $429.30 | | |
| PORTPT | PORT OF PT GENERAL | 0.1134941229 | $352,695 | $352,695 | $40.03 | | |
| PORTPTIDD | PORT OF PT IDD 2019 | 0.2577346692 | $352,695 | $352,695 | $90.90 | | |
| PUD1 | PUD #1 GENERAL | 0.0597888892 | $352,695 | $352,695 | $21.09 | | |
| STATE | STATE SCHOOL PART 1 | 1.4940692947 | $352,695 | $352,695 | $526.95 | | |
| STATE2 | STATE SCHOOL PART 2 | 0.8050170049 | $352,695 | $352,695 | $283.93 | | |
| | Total Tax Rate: | 8.5416817766 | | | | | |
| | | | | Taxes w/Current Exemptions: | $3,012.62 | | |
| | | | | Taxes w/o Exemptions: | $3,012.62 | | |
Improvement / Building
| Improvement #1: | Residential Bldg | State Code: | 11 | 848.0 sqft | Value: | $161,455 |
| Bathrooms (#): | 1 (FULL) | Bedrooms (#): | 1 | | Exterior Wall: | SI/ST | Fireplace: | WD ST-GOOD | | Floor Construction: | FRAME | Foundation: | PO&BL | | Heating/Cooling: | ELBB | Inside Verify: | NO | | Roof Cover: | COMP |   |   |
|
| | Type | Description | Class CD | Sub Class CD | Year Built | Area |
| | MA | Main Area | 4 | 1S | 1960 | 848.0 |
| | HDECK | House Deck | 3 | * | 1960 | 189.0 |
| | OTHER | Other | 4 | * | 1960 | 175.0 |
Sketch
Property Image
Land
| 1 | 6265-3275Q | | 0.3702 | 16124.00 | 0.00 | 0.00 | 1.00 | $191,240 | $0 |
Roll Value History
| 2026 | N/A | N/A | N/A | N/A | N/A |
| 2025 | $161,455 | $191,240 | $0 | $352,695 | $352,695 |
| 2024 | $145,355 | $200,802 | $0 | $346,157 | $346,157 |
| 2023 | $139,036 | $186,240 | $0 | $325,276 | $325,276 |
| 2022 | $83,402 | $181,240 | $0 | $264,642 | $264,642 |
Deed and Sales History
| 1 | 03/02/2022 | SWD | Statutory Warranty Deed | LORI RICE | LAUREN EHNEBUSKE | | | $425,000.00 | 138675 | |
| 2 | 04/26/2019 | PRD | Personal Representatives Deed | | | | | | 132196 | |
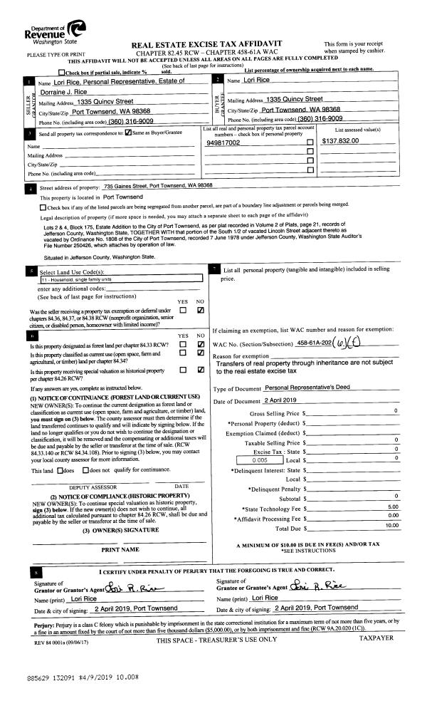
| 3 | 04/02/2019 | PRD | Personal Representatives Deed | DORRAINE J RICE | LORI RICE | | | | 132091 | |
Payout Agreement
| No payout information available.. |