Property
Account |
| Property ID: | 28584 | Abbreviated Legal Description: | ESTATE ADDITION BLK 175 LOTS 1,3,5,7(S55'EA) & N1/2 VAC LINCOLN ST ADJ |
| Parcel # / Geo ID: | 949817501 | Agent Code: | |
| Type: | Real | | |
| Tax Area: | 0110 - C-50F1E1H2 | Land Use Code | 91 |
| Open Space: | N | DFL | N |
| Historic Property: | N | Remodel Property: | N |
| Multi-Family Redevelopment: | N | | |
| Township: | 30N | Section: | 11 |
| Range: | 1W |
Location |
| Address: | | Mapsco: | 045/039 |
| Neighborhood: | KEARNEY ST COMMERCIAL AREA | Map ID: | |
| Neighborhood CD: | 6265C |
Owner |
| Name: | KATHLEEN HUDSON | Owner ID: | 18603 |
| Mailing Address: | 132 STILLPOINT LN PORT TOWNSEND, WA 98368 | % Ownership: | 100.0000000000% |
| | | Exemptions: | |
Pay Tax Due
There is currently No Amount Due on this property.
Taxes and Assessment Details
Property Tax Information as of
03/11/2026
Click on "Statement Details" to expand or collapse a tax statement.
* Please enter a valid date ** Please enter a valid date *
Statement Details |
| 2026 | 17922 | STATE - STATE LEVY (SCHOOL) | $231.48 | $231.47 | $0.00 | $0.00 | $462.95 | $0.00 |
| 2026 | 17922 | COUNTY - COUNTY LEVIES (CE, DD, VET, MH) | $92.55 | $92.53 | $0.00 | $0.00 | $185.08 | $0.00 |
| 2026 | 17922 | CONSERVE - CONSERVATION FUTURES | $2.78 | $2.77 | $0.00 | $0.00 | $5.55 | $0.00 |
| 2026 | 17922 | CITYPT - CITY OF PT | $131.36 | $131.35 | $0.00 | $0.00 | $262.71 | $0.00 |
| 2026 | 17922 | PORTPT - PORT DISTRICT | $37.38 | $37.37 | $0.00 | $0.00 | $74.75 | $0.00 |
| 2026 | 17922 | PUD1 - PUD #1 | $6.02 | $6.02 | $0.00 | $0.00 | $12.04 | $0.00 |
| 2026 | 17922 | HD2 - HOSP DIST #2 | $5.40 | $5.39 | $0.00 | $0.00 | $10.79 | $0.00 |
| 2026 | 17922 | SD50 - SCHOOL DIST #50 | $183.38 | $183.37 | $0.00 | $0.00 | $366.75 | $0.00 |
| 2026 | 17922 | FD1 - FIRE DISTRICT #1 | $122.55 | $122.54 | $0.00 | $0.00 | $245.09 | $0.00 |
| 2026 | 17922 | EMS1 - FIRE DIST #1 EMS | $47.12 | $47.12 | $0.00 | $0.00 | $94.24 | $0.00 |
| 2026 | 17922 | JCCD - JC Conservation District | $2.53 | $2.53 | $0.00 | $0.00 | $5.06 | $0.00 |
| 2026 | 17922 | NWA - Noxious Weed Assessment | $2.98 | $2.97 | $0.00 | $0.00 | $5.95 | $0.00 |
| 2026 | 17922 | TOTAL: | $865.53 | $865.43 | $0.00 | $0.00 | $1730.96 | $0.00 |
|
| 2026 | 17922 | $865.53 | $865.43 | $0.00 | $0.00 | $1730.96 | $0.00 |
Statement Details |
| 2025 | 17977 | STATE - STATE LEVY (SCHOOL) | $253.51 | $253.50 | $0.00 | $0.00 | $507.01 | $0.00 |
| 2025 | 17977 | COUNTY - COUNTY LEVIES (CE, DD, VET, MH) | $99.70 | $99.68 | $0.00 | $0.00 | $199.38 | $0.00 |
| 2025 | 17977 | CONSERVE - CONSERVATION FUTURES | $2.99 | $2.99 | $0.00 | $0.00 | $5.98 | $0.00 |
| 2025 | 17977 | CITYPT - CITY OF PT | $143.77 | $143.75 | $0.00 | $0.00 | $287.52 | $0.00 |
| 2025 | 17977 | PORTPT - PORT DISTRICT | $40.68 | $40.68 | $0.00 | $0.00 | $81.36 | $0.00 |
| 2025 | 17977 | PUD1 - PUD #1 | $6.53 | $6.52 | $0.00 | $0.00 | $13.05 | $0.00 |
| 2025 | 17977 | HD2 - HOSP DIST #2 | $5.82 | $5.81 | $0.00 | $0.00 | $11.63 | $0.00 |
| 2025 | 17977 | SD50 - SCHOOL DIST #50 | $185.28 | $185.27 | $0.00 | $0.00 | $370.55 | $0.00 |
| 2025 | 17977 | FD1 - FIRE DISTRICT #1 | $131.55 | $131.55 | $0.00 | $0.00 | $263.10 | $0.00 |
| 2025 | 17977 | EMS1 - FIRE DIST #1 EMS | $50.60 | $50.60 | $0.00 | $0.00 | $101.20 | $0.00 |
| 2025 | 17977 | JCCD - JC Conservation District | $2.53 | $2.53 | $0.00 | $0.00 | $5.06 | $0.00 |
| 2025 | 17977 | NWA - Noxious Weed Assessment | $2.15 | $2.15 | $0.00 | $0.00 | $4.30 | $0.00 |
| 2025 | 17977 | TOTAL: | $925.11 | $925.03 | $0.00 | $0.00 | $1850.14 | $0.00 |
|
| 2025 | 17977 | $925.11 | $925.03 | $0.00 | $0.00 | $1850.14 | $0.00 |
Statement Details |
| 2024 | 18011 | STATE - STATE LEVY (SCHOOL) | $232.94 | $232.92 | $0.00 | $0.00 | $465.86 | $0.00 |
| 2024 | 18011 | COUNTY - COUNTY LEVIES (CE, DD, VET, MH) | $99.69 | $99.67 | $0.00 | $0.00 | $199.36 | $0.00 |
| 2024 | 18011 | CONSERVE - CONSERVATION FUTURES | $2.99 | $2.99 | $0.00 | $0.00 | $5.98 | $0.00 |
| 2024 | 18011 | CITYPT - CITY OF PT | $142.43 | $142.41 | $0.00 | $0.00 | $284.84 | $0.00 |
| 2024 | 18011 | PORTPT - PORT DISTRICT | $41.17 | $41.16 | $0.00 | $0.00 | $82.33 | $0.00 |
| 2024 | 18011 | PUD1 - PUD #1 | $6.55 | $6.54 | $0.00 | $0.00 | $13.09 | $0.00 |
| 2024 | 18011 | HD2 - HOSP DIST #2 | $5.82 | $5.81 | $0.00 | $0.00 | $11.63 | $0.00 |
| 2024 | 18011 | SD50 - SCHOOL DIST #50 | $188.45 | $188.45 | $0.00 | $0.00 | $376.90 | $0.00 |
| 2024 | 18011 | FD1 - FIRE DISTRICT #1 | $131.80 | $131.79 | $0.00 | $0.00 | $263.59 | $0.00 |
| 2024 | 18011 | EMS1 - FIRE DIST #1 EMS | $50.34 | $50.34 | $0.00 | $0.00 | $100.68 | $0.00 |
| 2024 | 18011 | JCCD - JC Conservation District | $2.53 | $2.53 | $0.00 | $0.00 | $5.06 | $0.00 |
| 2024 | 18011 | NWA - Noxious Weed Assessment | $2.15 | $2.15 | $0.00 | $0.00 | $4.30 | $0.00 |
| 2024 | 18011 | TOTAL: | $906.86 | $906.76 | $0.00 | $0.00 | $1813.62 | $0.00 |
|
| 2024 | 18011 | $906.86 | $906.76 | $0.00 | $0.00 | $1813.62 | $0.00 |
Statement Details |
| 2023 | 18044 | STATE - STATE LEVY (SCHOOL) | $237.02 | $237.01 | $0.00 | $0.00 | $474.03 | $0.00 |
| 2023 | 18044 | COUNTY - COUNTY LEVIES (CE, DD, VET, MH) | $103.44 | $103.41 | $0.00 | $0.00 | $206.85 | $0.00 |
| 2023 | 18044 | CONSERVE - CONSERVATION FUTURES | $3.10 | $3.10 | $0.00 | $0.00 | $6.20 | $0.00 |
| 2023 | 18044 | CITYPT - CITY OF PT | $146.19 | $146.17 | $0.00 | $0.00 | $292.36 | $0.00 |
| 2023 | 18044 | PORTPT - PORT DISTRICT | $43.57 | $43.57 | $0.00 | $0.00 | $87.14 | $0.00 |
| 2023 | 18044 | PUD1 - PUD #1 | $6.86 | $6.85 | $0.00 | $0.00 | $13.71 | $0.00 |
| 2023 | 18044 | HD2 - HOSP DIST #2 | $6.04 | $6.04 | $0.00 | $0.00 | $12.08 | $0.00 |
| 2023 | 18044 | SD50 - SCHOOL DIST #50 | $188.09 | $188.07 | $0.00 | $0.00 | $376.16 | $0.00 |
| 2023 | 18044 | FD1 - FIRE DISTRICT #1 | $85.21 | $85.20 | $0.00 | $0.00 | $170.41 | $0.00 |
| 2023 | 18044 | EMS1 - FIRE DIST #1 EMS | $36.25 | $36.24 | $0.00 | $0.00 | $72.49 | $0.00 |
| 2023 | 18044 | JCCD - JC Conservation District | $2.53 | $2.53 | $0.00 | $0.00 | $5.06 | $0.00 |
| 2023 | 18044 | NWA - Noxious Weed Assessment | $2.15 | $2.15 | $0.00 | $0.00 | $4.30 | $0.00 |
| 2023 | 18044 | TOTAL: | $860.45 | $860.34 | $0.00 | $0.00 | $1720.79 | $0.00 |
|
| 2023 | 18044 | $860.45 | $860.34 | $0.00 | $0.00 | $1720.79 | $0.00 |
Values
| (+) Improvement Homesite Value: | + | $0 | |
| (+) Improvement Non-Homesite Value: | + | $0 | |
| (+) Land Homesite Value: | + | $0 | |
| (+) Land Non-Homesite Value: | + | $201,360 | |
| (+) Curr Use (HS): | + | $0 | $0 |
| (+) Curr Use (NHS): | + | $0 | $0 |
| | | -------------------------- | |
| (=) Market Value: | = | $201,360 | |
| (–) Productivity Loss: | – | $0 | |
| | | -------------------------- | |
| (=) Subtotal: | = | $201,360 | |
| (+) Senior Appraised Value: | + | $0 | |
| (+) Non-Senior Appraised Value: | + | $201,360 | |
| | | -------------------------- | |
| (=) Total Appraised Value: | = | $201,360 | |
| (–) Senior Exemption Loss: | – | $0 | |
| (–) Exemption Loss: | – | $0 | |
| | | -------------------------- | |
| (=) Taxable Value: | = | $201,360 | |
Taxing Jurisdiction
| Owner: | KATHLEEN HUDSON | | |
| % Ownership: | 100.0000000000% | | |
| Total Value: | N/A | | |
| Tax Area: | 0110 - C-50F1E1H2 |
| CE | COUNTY CURRENT EXPENSE | N/A | N/A | N/A | N/A | | |
| CNTYDD | DEVELOPMENTAL DISABILITIES | N/A | N/A | N/A | N/A | | |
| CNTYVET | VETERANS RELIEF | N/A | N/A | N/A | N/A | | |
| MENTAL | MENTAL HEALTH | N/A | N/A | N/A | N/A | | |
| PTGEN | CITY OF PT GENERAL | N/A | N/A | N/A | N/A | | |
| PTLLL | CITY OF PT - LIBRARY LID LIFT | N/A | N/A | N/A | N/A | | |
| PTMVBOND | CITY OF PT MV BOND | N/A | N/A | N/A | N/A | | |
| HOSP2CASH | HOSP DIST #2 GENERAL | N/A | N/A | N/A | N/A | | |
| SCH50BOND | SCHOOL DIST #50 BOND 2016 | N/A | N/A | N/A | N/A | | |
| SCH50CP | SCHOOL DIST #50 CAP PROJ | N/A | N/A | N/A | N/A | | |
| SCH50MO | SCHOOL DIST #50 EP & O | N/A | N/A | N/A | N/A | | |
| CONSERVE | CONSERVATION FUTURES | N/A | N/A | N/A | N/A | | |
| EMS1 | FIRE DIST #1 EMS | N/A | N/A | N/A | N/A | | |
| FD1 | FIRE DIST #1 GENERAL | N/A | N/A | N/A | N/A | | |
| PORTPT | PORT OF PT GENERAL | N/A | N/A | N/A | N/A | | |
| PORTPTIDD | PORT OF PT IDD 2019 | N/A | N/A | N/A | N/A | | |
| PUD1 | PUD #1 GENERAL | N/A | N/A | N/A | N/A | | |
| STATE | STATE SCHOOL PART 1 | N/A | N/A | N/A | N/A | | |
| STATE2 | STATE SCHOOL PART 2 | N/A | N/A | N/A | N/A | | |
| | Total Tax Rate: | N/A | | | | | |
| | | | | Taxes w/Current Exemptions: | N/A | | |
| | | | | Taxes w/o Exemptions: | N/A | | |
Improvement / Building
Sketch
| No sketches available for this property. |
Property Image
Land
| 1 | 6265-3275Q | | 0.4623 | 20136.00 | 0.00 | 0.00 | 1.00 | $201,360 | $0 |
Roll Value History
| 2026 | N/A | N/A | N/A | N/A | N/A |
| 2025 | $0 | $201,360 | $0 | $201,360 | $201,360 |
| 2024 | $0 | $211,428 | $0 | $211,428 | $211,428 |
| 2023 | $0 | $201,360 | $0 | $201,360 | $201,360 |
| 2022 | $0 | $201,360 | $0 | $201,360 | $201,360 |
Deed and Sales History
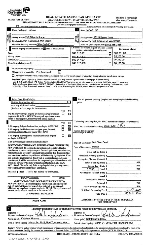
| 1 | 08/01/2017 | QCD | Quit Claim Deed | LOCO2 LLC | KATHLEEN HUDSON | | | | 128250 | |
| 2 | 03/23/2016 | QCD | Quit Claim Deed | KATHLEEN HUDSON | LOCO2 LLC | | | | 125051 | |
| 3 | 10/23/2015 | SWD | Statutory Warranty Deed | THE HUBER FAMILY TRUST | KATHLEEN HUDSON | | | $175,000.00 | 124233 | |
|   | |
| 4 | 04/18/2013 | QCD | Quit Claim Deed | KATHLEEN HUBER JOHNSON | THE HUBER FAMILY TRUST | | | | 119121 | |
Payout Agreement
| No payout information available.. |