Property
Account |
| Property ID: | 28602 | Abbreviated Legal Description: | TRAILS END HOMESITES BLK 1 LOT 3(N1/2) |
| Parcel # / Geo ID: | 950100103 | Agent Code: | |
| Type: | Real | | |
| Tax Area: | 0213 - 1-49F1E1H2L1 | Land Use Code | 91 |
| Open Space: | N | DFL | N |
| Historic Property: | N | Remodel Property: | N |
| Multi-Family Redevelopment: | N | | |
| Township: | 27N | Section: | 16 |
| Range: | 1E |
Location |
| Address: | | Mapsco: | 139/003 |
| Neighborhood: | TRAILS END HOMESITES (ALL DIVISIONS) | Map ID: | |
| Neighborhood CD: | 3435 |
Owner |
| Name: | LARRY A & RAYLEE W JENSEN | Owner ID: | 109618 |
| Mailing Address: | 420 AEROVIEW DR YAKIMA, WA 98908-8061 | % Ownership: | 100.0000000000% |
| | | Exemptions: | |
Pay Tax Due
Select the appropriate checkbox next to the year to be paid. Multiple years may be selected.
*Convenience Fee not included
Taxes and Assessment Details
Property Tax Information as of
03/11/2026
Click on "Statement Details" to expand or collapse a tax statement.
* Please enter a valid date ** Please enter a valid date *
Statement Details |
| 2026 | 17940 | STATE - STATE LEVY (SCHOOL) | $6.77 | $6.75 | $0.00 | $0.00 | $0.00 | $13.52 |
| 2026 | 17940 | COUNTY - COUNTY LEVIES (CE, DD, VET, MH) | $2.72 | $2.68 | $0.00 | $0.00 | $0.00 | $5.40 |
| 2026 | 17940 | CONSERVE - CONSERVATION FUTURES | $0.08 | $0.08 | $0.00 | $0.00 | $0.00 | $0.16 |
| 2026 | 17940 | COROADS - COUNTY ROADS (ROADS, DIV TO CE) | $2.18 | $2.18 | $0.00 | $0.00 | $0.00 | $4.36 |
| 2026 | 17940 | PORTPT - PORT DISTRICT | $1.10 | $1.09 | $0.00 | $0.00 | $0.00 | $2.19 |
| 2026 | 17940 | PUD1 - PUD #1 | $0.18 | $0.17 | $0.00 | $0.00 | $0.00 | $0.35 |
| 2026 | 17940 | LIB1 - LIBRARY DIST #1 | $0.85 | $0.84 | $0.00 | $0.00 | $0.00 | $1.69 |
| 2026 | 17940 | HD2 - HOSP DIST #2 | $0.16 | $0.16 | $0.00 | $0.00 | $0.00 | $0.32 |
| 2026 | 17940 | SD49 - SCHOOL DIST #49 | $3.73 | $3.71 | $0.00 | $0.00 | $0.00 | $7.44 |
| 2026 | 17940 | FD1 - FIRE DISTRICT #1 | $3.58 | $3.58 | $0.00 | $0.00 | $0.00 | $7.16 |
| 2026 | 17940 | EMS1 - FIRE DIST #1 EMS | $1.38 | $1.37 | $0.00 | $0.00 | $0.00 | $2.75 |
| 2026 | 17940 | FPLCA - DNR Landowner Contingency Assmt | $3.00 | $3.00 | $0.00 | $0.00 | $0.00 | $6.00 |
| 2026 | 17940 | JCCD - JC Conservation District | $2.53 | $2.53 | $0.00 | $0.00 | $0.00 | $5.06 |
| 2026 | 17940 | NWA - Noxious Weed Assessment | $2.98 | $2.97 | $0.00 | $0.00 | $0.00 | $5.95 |
| 2026 | 17940 | WAT - Clean Water District | $13.00 | $13.00 | $0.00 | $0.00 | $0.00 | $26.00 |
| 2026 | 17940 | TOTAL: | $44.24 | $44.11 | $0.00 | $0.00 | $0.00 | $88.35 |
|
| 2026 | 17940 | $44.24 | $44.11 | $0.00 | $0.00 | $0.00 | $88.35 |
Statement Details |
| 2025 | 17995 | STATE - STATE LEVY (SCHOOL) | $6.72 | $6.71 | $0.00 | $0.00 | $13.43 | $0.00 |
| 2025 | 17995 | COUNTY - COUNTY LEVIES (CE, DD, VET, MH) | $2.66 | $2.62 | $0.00 | $0.00 | $5.28 | $0.00 |
| 2025 | 17995 | CONSERVE - CONSERVATION FUTURES | $0.08 | $0.08 | $0.00 | $0.00 | $0.16 | $0.00 |
| 2025 | 17995 | COROADS - COUNTY ROADS (ROADS, DIV TO CE) | $2.12 | $2.11 | $0.00 | $0.00 | $4.23 | $0.00 |
| 2025 | 17995 | PORTPT - PORT DISTRICT | $1.08 | $1.07 | $0.00 | $0.00 | $2.15 | $0.00 |
| 2025 | 17995 | PUD1 - PUD #1 | $0.18 | $0.17 | $0.00 | $0.00 | $0.35 | $0.00 |
| 2025 | 17995 | LIB1 - LIBRARY DIST #1 | $0.82 | $0.82 | $0.00 | $0.00 | $1.64 | $0.00 |
| 2025 | 17995 | HD2 - HOSP DIST #2 | $0.16 | $0.15 | $0.00 | $0.00 | $0.31 | $0.00 |
| 2025 | 17995 | SD49 - SCHOOL DIST #49 | $3.61 | $3.59 | $0.00 | $0.00 | $7.20 | $0.00 |
| 2025 | 17995 | FD1 - FIRE DISTRICT #1 | $3.49 | $3.48 | $0.00 | $0.00 | $6.97 | $0.00 |
| 2025 | 17995 | EMS1 - FIRE DIST #1 EMS | $1.34 | $1.34 | $0.00 | $0.00 | $2.68 | $0.00 |
| 2025 | 17995 | FPLCA - DNR Landowner Contingency Assmt | $3.00 | $3.00 | $0.00 | $0.00 | $6.00 | $0.00 |
| 2025 | 17995 | JCCD - JC Conservation District | $2.53 | $2.53 | $0.00 | $0.00 | $5.06 | $0.00 |
| 2025 | 17995 | NWA - Noxious Weed Assessment | $2.15 | $2.15 | $0.00 | $0.00 | $4.30 | $0.00 |
| 2025 | 17995 | WAT - Clean Water District | $13.00 | $13.00 | $0.00 | $0.00 | $26.00 | $0.00 |
| 2025 | 17995 | TOTAL: | $42.94 | $42.82 | $0.00 | $0.00 | $85.76 | $0.00 |
|
| 2025 | 17995 | $42.94 | $42.82 | $0.00 | $0.00 | $85.76 | $0.00 |
Statement Details |
| 2024 | 18029 | STATE - STATE LEVY (SCHOOL) | $6.48 | $6.47 | $0.00 | $0.00 | $12.95 | $0.00 |
| 2024 | 18029 | COUNTY - COUNTY LEVIES (CE, DD, VET, MH) | $2.79 | $2.75 | $0.00 | $0.00 | $5.54 | $0.00 |
| 2024 | 18029 | CONSERVE - CONSERVATION FUTURES | $0.09 | $0.08 | $0.00 | $0.00 | $0.17 | $0.00 |
| 2024 | 18029 | COROADS - COUNTY ROADS (ROADS, DIV TO CE) | $2.23 | $2.23 | $0.00 | $0.00 | $4.46 | $0.00 |
| 2024 | 18029 | PORTPT - PORT DISTRICT | $1.15 | $1.14 | $0.00 | $0.00 | $2.29 | $0.00 |
| 2024 | 18029 | PUD1 - PUD #1 | $0.18 | $0.18 | $0.00 | $0.00 | $0.36 | $0.00 |
| 2024 | 18029 | LIB1 - LIBRARY DIST #1 | $0.87 | $0.86 | $0.00 | $0.00 | $1.73 | $0.00 |
| 2024 | 18029 | HD2 - HOSP DIST #2 | $0.16 | $0.16 | $0.00 | $0.00 | $0.32 | $0.00 |
| 2024 | 18029 | SD49 - SCHOOL DIST #49 | $2.90 | $2.89 | $0.00 | $0.00 | $5.79 | $0.00 |
| 2024 | 18029 | FD1 - FIRE DISTRICT #1 | $3.67 | $3.66 | $0.00 | $0.00 | $7.33 | $0.00 |
| 2024 | 18029 | EMS1 - FIRE DIST #1 EMS | $1.40 | $1.40 | $0.00 | $0.00 | $2.80 | $0.00 |
| 2024 | 18029 | FPLCA - DNR Landowner Contingency Assmt | $3.00 | $3.00 | $0.00 | $0.00 | $6.00 | $0.00 |
| 2024 | 18029 | JCCD - JC Conservation District | $2.53 | $2.53 | $0.00 | $0.00 | $5.06 | $0.00 |
| 2024 | 18029 | NWA - Noxious Weed Assessment | $2.15 | $2.15 | $0.00 | $0.00 | $4.30 | $0.00 |
| 2024 | 18029 | WAT - Clean Water District | $12.50 | $12.50 | $0.00 | $0.00 | $25.00 | $0.00 |
| 2024 | 18029 | TOTAL: | $42.10 | $42.00 | $0.00 | $0.00 | $84.10 | $0.00 |
|
| 2024 | 18029 | $42.10 | $42.00 | $0.00 | $0.00 | $84.10 | $0.00 |
Statement Details |
| 2023 | 18062 | STATE - STATE LEVY (SCHOOL) | $6.60 | $6.58 | $0.00 | $0.00 | $13.18 | $0.00 |
| 2023 | 18062 | COUNTY - COUNTY LEVIES (CE, DD, VET, MH) | $2.89 | $2.85 | $0.00 | $0.00 | $5.74 | $0.00 |
| 2023 | 18062 | CONSERVE - CONSERVATION FUTURES | $0.09 | $0.08 | $0.00 | $0.00 | $0.17 | $0.00 |
| 2023 | 18062 | COROADS - COUNTY ROADS (ROADS, DIV TO CE) | $2.33 | $2.32 | $0.00 | $0.00 | $4.65 | $0.00 |
| 2023 | 18062 | PORTPT - PORT DISTRICT | $1.22 | $1.20 | $0.00 | $0.00 | $2.42 | $0.00 |
| 2023 | 18062 | PUD1 - PUD #1 | $0.19 | $0.19 | $0.00 | $0.00 | $0.38 | $0.00 |
| 2023 | 18062 | LIB1 - LIBRARY DIST #1 | $0.90 | $0.90 | $0.00 | $0.00 | $1.80 | $0.00 |
| 2023 | 18062 | HD2 - HOSP DIST #2 | $0.18 | $0.16 | $0.00 | $0.00 | $0.34 | $0.00 |
| 2023 | 18062 | SD49 - SCHOOL DIST #49 | $3.09 | $3.08 | $0.00 | $0.00 | $6.17 | $0.00 |
| 2023 | 18062 | FD3 - FIRE DISTRICT #3 | $2.86 | $2.86 | $0.00 | $0.00 | $5.72 | $0.00 |
| 2023 | 18062 | EMS3 - FIRE DIST #3 EMS | $1.03 | $1.02 | $0.00 | $0.00 | $2.05 | $0.00 |
| 2023 | 18062 | FPLCA - DNR Landowner Contingency Assmt | $3.00 | $3.00 | $0.00 | $0.00 | $6.00 | $0.00 |
| 2023 | 18062 | JCCD - JC Conservation District | $2.53 | $2.53 | $0.00 | $0.00 | $5.06 | $0.00 |
| 2023 | 18062 | NWA - Noxious Weed Assessment | $2.15 | $2.15 | $0.00 | $0.00 | $4.30 | $0.00 |
| 2023 | 18062 | WAT - Clean Water District | $12.00 | $12.00 | $0.00 | $0.00 | $24.00 | $0.00 |
| 2023 | 18062 | TOTAL: | $41.06 | $40.92 | $0.00 | $0.00 | $81.98 | $0.00 |
|
| 2023 | 18062 | $41.06 | $40.92 | $0.00 | $0.00 | $81.98 | $0.00 |
Values
| (+) Improvement Homesite Value: | + | $0 | |
| (+) Improvement Non-Homesite Value: | + | $0 | |
| (+) Land Homesite Value: | + | $0 | |
| (+) Land Non-Homesite Value: | + | $5,880 | |
| (+) Curr Use (HS): | + | $0 | $0 |
| (+) Curr Use (NHS): | + | $0 | $0 |
| | | -------------------------- | |
| (=) Market Value: | = | $5,880 | |
| (–) Productivity Loss: | – | $0 | |
| | | -------------------------- | |
| (=) Subtotal: | = | $5,880 | |
| (+) Senior Appraised Value: | + | $0 | |
| (+) Non-Senior Appraised Value: | + | $5,880 | |
| | | -------------------------- | |
| (=) Total Appraised Value: | = | $5,880 | |
| (–) Senior Exemption Loss: | – | $0 | |
| (–) Exemption Loss: | – | $0 | |
| | | -------------------------- | |
| (=) Taxable Value: | = | $5,880 | |
Taxing Jurisdiction
| Owner: | LARRY A & RAYLEE W JENSEN | | |
| % Ownership: | 100.0000000000% | | |
| Total Value: | $5,880 | | |
| Tax Area: | 0213 - 1-49F1E1H2L1 |
| CE | COUNTY CURRENT EXPENSE | 0.9034619479 | $5,880 | $5,880 | $5.31 | | |
| CNTYDD | DEVELOPMENTAL DISABILITIES | 0.0052121823 | $5,880 | $5,880 | $0.03 | | |
| CNTYVET | VETERANS RELIEF | 0.0052777810 | $5,880 | $5,880 | $0.03 | | |
| MENTAL | MENTAL HEALTH | 0.0052121823 | $5,880 | $5,880 | $0.03 | | |
| ROADS | COUNTY ROADS | 0.7415066410 | $5,880 | $5,880 | $4.36 | | |
| ROADSCU | COUNTY ROADS TO CUR EXP | 0.0000000000 | $5,880 | $5,880 | $0.00 | | |
| HOSP2CASH | HOSP DIST #2 GENERAL | 0.0536075306 | $5,880 | $5,880 | $0.32 | | |
| SCH49CP | SCHOOL DIST #49 CAP PROJ | 0.6279093905 | $5,880 | $5,880 | $3.69 | | |
| SCH49MO | SCHOOL DIST #49 EP & O | 0.6376483602 | $5,880 | $5,880 | $3.75 | | |
| CONSERVE | CONSERVATION FUTURES | 0.0275621078 | $5,880 | $5,880 | $0.16 | | |
| EMS1 | FIRE DIST #1 EMS | 0.4679948282 | $5,880 | $5,880 | $2.75 | | |
| FD1 | FIRE DIST #1 GENERAL | 1.2171942929 | $5,880 | $5,880 | $7.16 | | |
| LIB1 | LIBRARY DIST #1 GENERAL | 0.2868827388 | $5,880 | $5,880 | $1.69 | | |
| PORTPT | PORT OF PT GENERAL | 0.1134941229 | $5,880 | $5,880 | $0.67 | | |
| PORTPTIDD | PORT OF PT IDD 2019 | 0.2577346692 | $5,880 | $5,880 | $1.52 | | |
| PUD1 | PUD #1 GENERAL | 0.0597888892 | $5,880 | $5,880 | $0.35 | | |
| STATE | STATE SCHOOL PART 1 | 1.4940692947 | $5,880 | $5,880 | $8.79 | | |
| STATE2 | STATE SCHOOL PART 2 | 0.8050170049 | $5,880 | $5,880 | $4.73 | | |
| | Total Tax Rate: | 7.7095739644 | | | | | |
| | | | | Taxes w/Current Exemptions: | $45.34 | | |
| | | | | Taxes w/o Exemptions: | $45.34 | | |
Improvement / Building
Sketch
| No sketches available for this property. |
Property Image
Land
| 1 | 3435-1177L | | 0.0000 | 0.00 | 0.00 | 0.00 | 1.00 | $5,880 | $0 |
Roll Value History
| 2026 | N/A | N/A | N/A | N/A | N/A |
| 2025 | $0 | $5,880 | $0 | $5,880 | $5,880 |
| 2024 | $0 | $5,600 | $0 | $5,600 | $5,600 |
| 2023 | $0 | $5,600 | $0 | $5,600 | $5,600 |
| 2022 | $0 | $5,600 | $0 | $5,600 | $5,600 |
Deed and Sales History
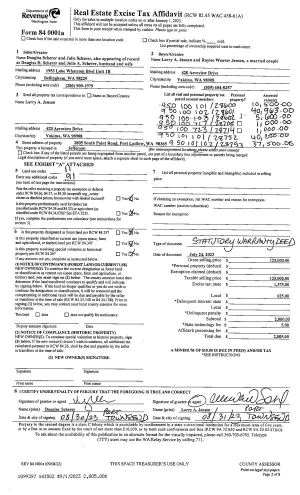
| 1 | 07/24/2023 | SWD | Statutory Warranty Deed | DOUGLAS SCHERER | LARRY A & RAYLEE W JENSEN | | | $125,000.00 | 141502 | |
|   | |
| 2 | 09/10/2008 | SWD | Statutory Warranty Deed | HALE, LILLIAN | SCHERER, DOUGLAS/JULIE A | 0 | 0 | $8,800.00 | 111905 | 0 |
| 3 | 12/02/1996 | QCD | Quit Claim Deed | MERRIMAN, PATRICK | GASTMAN, DAVE H/LILLIAN K | 0 | 0 | $3,500.00 | 80886 | 0 |
| 4 | 02/24/1995 | SWD | Statutory Warranty Deed | SHEIRBON, WAYNE L | MERRIMAN, PATRICK | 0 | 0 | $3,000.00 | 76356 | 0 |
| 5 | 09/13/1993 | SWD | Statutory Warranty Deed | SHEIRBON, JOHN W | SHEIRBON, WAYNE L | 0 | 0 | $0.00 | 73305 | 0 |
Payout Agreement
| No payout information available.. |