Property
Account |
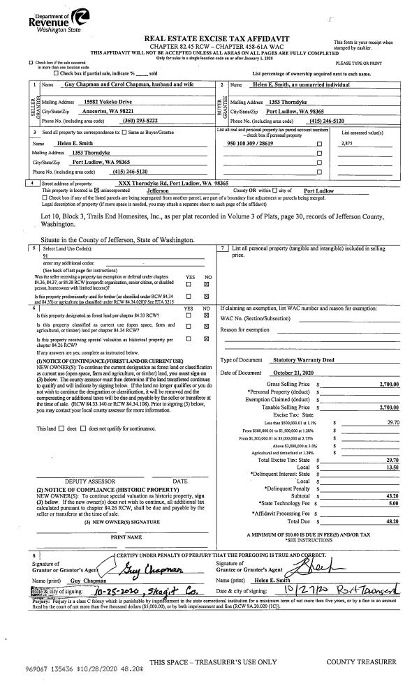
| Property ID: | 28619 | Abbreviated Legal Description: | TRAILS END HOMESITES BLK 3 LOT 10 |
| Parcel # / Geo ID: | 950100309 | Agent Code: | |
| Type: | Real | | |
| Tax Area: | 0213 - 1-49F1E1H2L1 | Land Use Code | 91 |
| Open Space: | N | DFL | N |
| Historic Property: | N | Remodel Property: | N |
| Multi-Family Redevelopment: | N | | |
| Township: | 27N | Section: | 16 |
| Range: | 1E |
Location |
| Address: | | Mapsco: | 139/028 |
| Neighborhood: | TRAILS END HOMESITES (ALL DIVISIONS) | Map ID: | |
| Neighborhood CD: | 3435 |
Owner |
| Name: | HELEN E SMITH | Owner ID: | 101771 |
| Mailing Address: | 1353 THORNDYKE RD PORT LUDLOW, WA 98365-9530 | % Ownership: | 100.0000000000% |
| | | Exemptions: | |
Pay Tax Due
Select the appropriate checkbox next to the year to be paid. Multiple years may be selected.
*Convenience Fee not included
Taxes and Assessment Details
Property Tax Information as of
03/11/2026
Click on "Statement Details" to expand or collapse a tax statement.
* Please enter a valid date ** Please enter a valid date *
Statement Details |
| 2026 | 17954 | STATE - STATE LEVY (SCHOOL) | $4.23 | $4.22 | $0.00 | $0.00 | $0.00 | $8.45 |
| 2026 | 17954 | COUNTY - COUNTY LEVIES (CE, DD, VET, MH) | $1.69 | $1.69 | $0.00 | $0.00 | $0.00 | $3.38 |
| 2026 | 17954 | CONSERVE - CONSERVATION FUTURES | $0.05 | $0.05 | $0.00 | $0.00 | $0.00 | $0.10 |
| 2026 | 17954 | COROADS - COUNTY ROADS (ROADS, DIV TO CE) | $1.37 | $1.36 | $0.00 | $0.00 | $0.00 | $2.73 |
| 2026 | 17954 | PORTPT - PORT DISTRICT | $0.69 | $0.68 | $0.00 | $0.00 | $0.00 | $1.37 |
| 2026 | 17954 | PUD1 - PUD #1 | $0.11 | $0.11 | $0.00 | $0.00 | $0.00 | $0.22 |
| 2026 | 17954 | LIB1 - LIBRARY DIST #1 | $0.53 | $0.52 | $0.00 | $0.00 | $0.00 | $1.05 |
| 2026 | 17954 | HD2 - HOSP DIST #2 | $0.10 | $0.10 | $0.00 | $0.00 | $0.00 | $0.20 |
| 2026 | 17954 | SD49 - SCHOOL DIST #49 | $2.33 | $2.32 | $0.00 | $0.00 | $0.00 | $4.65 |
| 2026 | 17954 | FD1 - FIRE DISTRICT #1 | $2.24 | $2.23 | $0.00 | $0.00 | $0.00 | $4.47 |
| 2026 | 17954 | EMS1 - FIRE DIST #1 EMS | $0.86 | $0.86 | $0.00 | $0.00 | $0.00 | $1.72 |
| 2026 | 17954 | FPLCA - DNR Landowner Contingency Assmt | $3.00 | $3.00 | $0.00 | $0.00 | $0.00 | $6.00 |
| 2026 | 17954 | JCCD - JC Conservation District | $2.53 | $2.53 | $0.00 | $0.00 | $0.00 | $5.06 |
| 2026 | 17954 | NWA - Noxious Weed Assessment | $2.98 | $2.97 | $0.00 | $0.00 | $0.00 | $5.95 |
| 2026 | 17954 | WAT - Clean Water District | $13.00 | $13.00 | $0.00 | $0.00 | $0.00 | $26.00 |
| 2026 | 17954 | TOTAL: | $35.71 | $35.64 | $0.00 | $0.00 | $0.00 | $71.35 |
|
| 2026 | 17954 | $35.71 | $35.64 | $0.00 | $0.00 | $0.00 | $71.35 |
Statement Details |
| 2025 | 18012 | STATE - STATE LEVY (SCHOOL) | $4.20 | $4.20 | $0.00 | $0.00 | $8.40 | $0.00 |
| 2025 | 18012 | COUNTY - COUNTY LEVIES (CE, DD, VET, MH) | $1.65 | $1.65 | $0.00 | $0.00 | $3.30 | $0.00 |
| 2025 | 18012 | CONSERVE - CONSERVATION FUTURES | $0.05 | $0.05 | $0.00 | $0.00 | $0.10 | $0.00 |
| 2025 | 18012 | COROADS - COUNTY ROADS (ROADS, DIV TO CE) | $1.33 | $1.32 | $0.00 | $0.00 | $2.65 | $0.00 |
| 2025 | 18012 | PORTPT - PORT DISTRICT | $0.68 | $0.67 | $0.00 | $0.00 | $1.35 | $0.00 |
| 2025 | 18012 | PUD1 - PUD #1 | $0.11 | $0.11 | $0.00 | $0.00 | $0.22 | $0.00 |
| 2025 | 18012 | LIB1 - LIBRARY DIST #1 | $0.51 | $0.51 | $0.00 | $0.00 | $1.02 | $0.00 |
| 2025 | 18012 | HD2 - HOSP DIST #2 | $0.10 | $0.09 | $0.00 | $0.00 | $0.19 | $0.00 |
| 2025 | 18012 | SD49 - SCHOOL DIST #49 | $2.25 | $2.25 | $0.00 | $0.00 | $4.50 | $0.00 |
| 2025 | 18012 | FD1 - FIRE DISTRICT #1 | $2.18 | $2.18 | $0.00 | $0.00 | $4.36 | $0.00 |
| 2025 | 18012 | EMS1 - FIRE DIST #1 EMS | $0.84 | $0.84 | $0.00 | $0.00 | $1.68 | $0.00 |
| 2025 | 18012 | FPLCA - DNR Landowner Contingency Assmt | $3.00 | $3.00 | $0.00 | $0.00 | $6.00 | $0.00 |
| 2025 | 18012 | JCCD - JC Conservation District | $2.53 | $2.53 | $0.00 | $0.00 | $5.06 | $0.00 |
| 2025 | 18012 | NWA - Noxious Weed Assessment | $2.15 | $2.15 | $0.00 | $0.00 | $4.30 | $0.00 |
| 2025 | 18012 | WAT - Clean Water District | $13.00 | $13.00 | $0.00 | $0.00 | $26.00 | $0.00 |
| 2025 | 18012 | TOTAL: | $34.58 | $34.55 | $0.00 | $0.00 | $69.13 | $0.00 |
|
| 2025 | 18012 | $34.58 | $34.55 | $0.00 | $0.00 | $69.13 | $0.00 |
Statement Details |
| 2024 | 18046 | STATE - STATE LEVY (SCHOOL) | $4.06 | $4.04 | $0.00 | $0.00 | $8.10 | $0.00 |
| 2024 | 18046 | COUNTY - COUNTY LEVIES (CE, DD, VET, MH) | $1.74 | $1.73 | $0.00 | $0.00 | $3.47 | $0.00 |
| 2024 | 18046 | CONSERVE - CONSERVATION FUTURES | $0.05 | $0.05 | $0.00 | $0.00 | $0.10 | $0.00 |
| 2024 | 18046 | COROADS - COUNTY ROADS (ROADS, DIV TO CE) | $1.40 | $1.39 | $0.00 | $0.00 | $2.79 | $0.00 |
| 2024 | 18046 | PORTPT - PORT DISTRICT | $0.72 | $0.71 | $0.00 | $0.00 | $1.43 | $0.00 |
| 2024 | 18046 | PUD1 - PUD #1 | $0.12 | $0.11 | $0.00 | $0.00 | $0.23 | $0.00 |
| 2024 | 18046 | LIB1 - LIBRARY DIST #1 | $0.54 | $0.54 | $0.00 | $0.00 | $1.08 | $0.00 |
| 2024 | 18046 | HD2 - HOSP DIST #2 | $0.10 | $0.10 | $0.00 | $0.00 | $0.20 | $0.00 |
| 2024 | 18046 | SD49 - SCHOOL DIST #49 | $1.82 | $1.80 | $0.00 | $0.00 | $3.62 | $0.00 |
| 2024 | 18046 | FD1 - FIRE DISTRICT #1 | $2.29 | $2.29 | $0.00 | $0.00 | $4.58 | $0.00 |
| 2024 | 18046 | EMS1 - FIRE DIST #1 EMS | $0.88 | $0.87 | $0.00 | $0.00 | $1.75 | $0.00 |
| 2024 | 18046 | FPLCA - DNR Landowner Contingency Assmt | $3.00 | $3.00 | $0.00 | $0.00 | $6.00 | $0.00 |
| 2024 | 18046 | JCCD - JC Conservation District | $2.53 | $2.53 | $0.00 | $0.00 | $5.06 | $0.00 |
| 2024 | 18046 | NWA - Noxious Weed Assessment | $2.15 | $2.15 | $0.00 | $0.00 | $4.30 | $0.00 |
| 2024 | 18046 | WAT - Clean Water District | $12.50 | $12.50 | $0.00 | $0.00 | $25.00 | $0.00 |
| 2024 | 18046 | TOTAL: | $33.90 | $33.81 | $0.00 | $0.00 | $67.71 | $0.00 |
|
| 2024 | 18046 | $33.90 | $33.81 | $0.00 | $0.00 | $67.71 | $0.00 |
Statement Details |
| 2023 | 18079 | STATE - STATE LEVY (SCHOOL) | $4.13 | $4.11 | $0.00 | $0.00 | $8.24 | $0.00 |
| 2023 | 18079 | COUNTY - COUNTY LEVIES (CE, DD, VET, MH) | $1.80 | $1.79 | $0.00 | $0.00 | $3.59 | $0.00 |
| 2023 | 18079 | CONSERVE - CONSERVATION FUTURES | $0.06 | $0.05 | $0.00 | $0.00 | $0.11 | $0.00 |
| 2023 | 18079 | COROADS - COUNTY ROADS (ROADS, DIV TO CE) | $1.45 | $1.45 | $0.00 | $0.00 | $2.90 | $0.00 |
| 2023 | 18079 | PORTPT - PORT DISTRICT | $0.76 | $0.75 | $0.00 | $0.00 | $1.51 | $0.00 |
| 2023 | 18079 | PUD1 - PUD #1 | $0.12 | $0.12 | $0.00 | $0.00 | $0.24 | $0.00 |
| 2023 | 18079 | LIB1 - LIBRARY DIST #1 | $0.57 | $0.56 | $0.00 | $0.00 | $1.13 | $0.00 |
| 2023 | 18079 | HD2 - HOSP DIST #2 | $0.11 | $0.10 | $0.00 | $0.00 | $0.21 | $0.00 |
| 2023 | 18079 | SD49 - SCHOOL DIST #49 | $1.94 | $1.92 | $0.00 | $0.00 | $3.86 | $0.00 |
| 2023 | 18079 | FD3 - FIRE DISTRICT #3 | $1.79 | $1.79 | $0.00 | $0.00 | $3.58 | $0.00 |
| 2023 | 18079 | EMS3 - FIRE DIST #3 EMS | $0.64 | $0.64 | $0.00 | $0.00 | $1.28 | $0.00 |
| 2023 | 18079 | FPLCA - DNR Landowner Contingency Assmt | $3.00 | $3.00 | $0.00 | $0.00 | $6.00 | $0.00 |
| 2023 | 18079 | JCCD - JC Conservation District | $2.53 | $2.53 | $0.00 | $0.00 | $5.06 | $0.00 |
| 2023 | 18079 | NWA - Noxious Weed Assessment | $2.15 | $2.15 | $0.00 | $0.00 | $4.30 | $0.00 |
| 2023 | 18079 | WAT - Clean Water District | $12.00 | $12.00 | $0.00 | $0.00 | $24.00 | $0.00 |
| 2023 | 18079 | TOTAL: | $33.05 | $32.96 | $0.00 | $0.00 | $66.01 | $0.00 |
|
| 2023 | 18079 | $33.05 | $32.96 | $0.00 | $0.00 | $66.01 | $0.00 |
Values
| (+) Improvement Homesite Value: | + | $0 | |
| (+) Improvement Non-Homesite Value: | + | $0 | |
| (+) Land Homesite Value: | + | $0 | |
| (+) Land Non-Homesite Value: | + | $3,675 | |
| (+) Curr Use (HS): | + | $0 | $0 |
| (+) Curr Use (NHS): | + | $0 | $0 |
| | | -------------------------- | |
| (=) Market Value: | = | $3,675 | |
| (–) Productivity Loss: | – | $0 | |
| | | -------------------------- | |
| (=) Subtotal: | = | $3,675 | |
| (+) Senior Appraised Value: | + | $0 | |
| (+) Non-Senior Appraised Value: | + | $3,675 | |
| | | -------------------------- | |
| (=) Total Appraised Value: | = | $3,675 | |
| (–) Senior Exemption Loss: | – | $0 | |
| (–) Exemption Loss: | – | $0 | |
| | | -------------------------- | |
| (=) Taxable Value: | = | $3,675 | |
Taxing Jurisdiction
| Owner: | HELEN E SMITH | | |
| % Ownership: | 100.0000000000% | | |
| Total Value: | $3,675 | | |
| Tax Area: | 0213 - 1-49F1E1H2L1 |
| CE | COUNTY CURRENT EXPENSE | 0.9034619479 | $3,675 | $3,675 | $3.32 | | |
| CNTYDD | DEVELOPMENTAL DISABILITIES | 0.0052121823 | $3,675 | $3,675 | $0.02 | | |
| CNTYVET | VETERANS RELIEF | 0.0052777810 | $3,675 | $3,675 | $0.02 | | |
| MENTAL | MENTAL HEALTH | 0.0052121823 | $3,675 | $3,675 | $0.02 | | |
| ROADS | COUNTY ROADS | 0.7415066410 | $3,675 | $3,675 | $2.73 | | |
| ROADSCU | COUNTY ROADS TO CUR EXP | 0.0000000000 | $3,675 | $3,675 | $0.00 | | |
| HOSP2CASH | HOSP DIST #2 GENERAL | 0.0536075306 | $3,675 | $3,675 | $0.20 | | |
| SCH49CP | SCHOOL DIST #49 CAP PROJ | 0.6279093905 | $3,675 | $3,675 | $2.31 | | |
| SCH49MO | SCHOOL DIST #49 EP & O | 0.6376483602 | $3,675 | $3,675 | $2.34 | | |
| CONSERVE | CONSERVATION FUTURES | 0.0275621078 | $3,675 | $3,675 | $0.10 | | |
| EMS1 | FIRE DIST #1 EMS | 0.4679948282 | $3,675 | $3,675 | $1.72 | | |
| FD1 | FIRE DIST #1 GENERAL | 1.2171942929 | $3,675 | $3,675 | $4.47 | | |
| LIB1 | LIBRARY DIST #1 GENERAL | 0.2868827388 | $3,675 | $3,675 | $1.05 | | |
| PORTPT | PORT OF PT GENERAL | 0.1134941229 | $3,675 | $3,675 | $0.42 | | |
| PORTPTIDD | PORT OF PT IDD 2019 | 0.2577346692 | $3,675 | $3,675 | $0.95 | | |
| PUD1 | PUD #1 GENERAL | 0.0597888892 | $3,675 | $3,675 | $0.22 | | |
| STATE | STATE SCHOOL PART 1 | 1.4940692947 | $3,675 | $3,675 | $5.49 | | |
| STATE2 | STATE SCHOOL PART 2 | 0.8050170049 | $3,675 | $3,675 | $2.96 | | |
| | Total Tax Rate: | 7.7095739644 | | | | | |
| | | | | Taxes w/Current Exemptions: | $28.34 | | |
| | | | | Taxes w/o Exemptions: | $28.34 | | |
Improvement / Building
Sketch
| No sketches available for this property. |
Property Image
Land
| 1 | 3435-1177L | | 0.0000 | 0.00 | 0.00 | 0.00 | 1.00 | $3,675 | $0 |
Roll Value History
| 2026 | N/A | N/A | N/A | N/A | N/A |
| 2025 | $0 | $3,675 | $0 | $3,675 | $3,675 |
| 2024 | $0 | $3,500 | $0 | $3,500 | $3,500 |
| 2023 | $0 | $3,500 | $0 | $3,500 | $3,500 |
| 2022 | $0 | $3,500 | $0 | $3,500 | $3,500 |
Deed and Sales History
| 1 | 10/21/2020 | SWD | Statutory Warranty Deed | GUY CHAPMAN | HELEN E SMITH | | | $2,700.00 | 135436 | |
Payout Agreement
| No payout information available.. |