Property
Account |
| Property ID: | 28630 | Abbreviated Legal Description: | TRAILS END HOMESITES BLK 3 LOT 22 SUBJ/REST COVT#554194 |
| Parcel # / Geo ID: | 950100321 | Agent Code: | |
| Type: | Real | | |
| Tax Area: | 0213 - 1-49F1E1H2L1 | Land Use Code | 11 |
| Open Space: | N | DFL | N |
| Historic Property: | N | Remodel Property: | N |
| Multi-Family Redevelopment: | N | | |
| Township: | 27N | Section: | 16 |
| Range: | 1E |
Location |
| Address: | | Mapsco: | 139/040 |
| Neighborhood: | TRAILS END HOMESITES (ALL DIVISIONS) | Map ID: | |
| Neighborhood CD: | 3435 |
Owner |
| Name: | BRIAN ZUMWALT | Owner ID: | 102660 |
| Mailing Address: | 1513 THORNDYKE RD PORT LUDLOW, WA 98365-8221 | % Ownership: | 100.0000000000% |
| | | Exemptions: | |
Pay Tax Due
Select the appropriate checkbox next to the year to be paid. Multiple years may be selected.
*Convenience Fee not included
Taxes and Assessment Details
Property Tax Information as of
03/11/2026
Click on "Statement Details" to expand or collapse a tax statement.
* Please enter a valid date ** Please enter a valid date *
Statement Details |
| 2026 | 17965 | STATE - STATE LEVY (SCHOOL) | $66.39 | $66.38 | $0.00 | $0.00 | $0.00 | $132.77 |
| 2026 | 17965 | COUNTY - COUNTY LEVIES (CE, DD, VET, MH) | $26.54 | $26.53 | $0.00 | $0.00 | $0.00 | $53.07 |
| 2026 | 17965 | CONSERVE - CONSERVATION FUTURES | $0.80 | $0.79 | $0.00 | $0.00 | $0.00 | $1.59 |
| 2026 | 17965 | COROADS - COUNTY ROADS (ROADS, DIV TO CE) | $21.41 | $21.41 | $0.00 | $0.00 | $0.00 | $42.82 |
| 2026 | 17965 | PORTPT - PORT DISTRICT | $10.72 | $10.71 | $0.00 | $0.00 | $0.00 | $21.43 |
| 2026 | 17965 | PUD1 - PUD #1 | $1.73 | $1.72 | $0.00 | $0.00 | $0.00 | $3.45 |
| 2026 | 17965 | LIB1 - LIBRARY DIST #1 | $8.29 | $8.28 | $0.00 | $0.00 | $0.00 | $16.57 |
| 2026 | 17965 | HD2 - HOSP DIST #2 | $1.55 | $1.55 | $0.00 | $0.00 | $0.00 | $3.10 |
| 2026 | 17965 | SD49 - SCHOOL DIST #49 | $36.54 | $36.54 | $0.00 | $0.00 | $0.00 | $73.08 |
| 2026 | 17965 | FD1 - FIRE DISTRICT #1 | $35.15 | $35.14 | $0.00 | $0.00 | $0.00 | $70.29 |
| 2026 | 17965 | EMS1 - FIRE DIST #1 EMS | $13.52 | $13.51 | $0.00 | $0.00 | $0.00 | $27.03 |
| 2026 | 17965 | FPLCA - DNR Landowner Contingency Assmt | $3.00 | $3.00 | $0.00 | $0.00 | $0.00 | $6.00 |
| 2026 | 17965 | JCCD - JC Conservation District | $2.55 | $2.55 | $0.00 | $0.00 | $0.00 | $5.10 |
| 2026 | 17965 | NWA - Noxious Weed Assessment | $2.98 | $2.97 | $0.00 | $0.00 | $0.00 | $5.95 |
| 2026 | 17965 | WAT - Clean Water District | $13.00 | $13.00 | $0.00 | $0.00 | $0.00 | $26.00 |
| 2026 | 17965 | TOTAL: | $244.17 | $244.08 | $0.00 | $0.00 | $0.00 | $488.25 |
|
| 2026 | 17965 | $244.17 | $244.08 | $0.00 | $0.00 | $0.00 | $488.25 |
Statement Details |
| 2025 | 18023 | STATE - STATE LEVY (SCHOOL) | $65.95 | $65.94 | $0.00 | $0.00 | $131.89 | $0.00 |
| 2025 | 18023 | COUNTY - COUNTY LEVIES (CE, DD, VET, MH) | $25.94 | $25.92 | $0.00 | $0.00 | $51.86 | $0.00 |
| 2025 | 18023 | CONSERVE - CONSERVATION FUTURES | $0.78 | $0.78 | $0.00 | $0.00 | $1.56 | $0.00 |
| 2025 | 18023 | COROADS - COUNTY ROADS (ROADS, DIV TO CE) | $20.78 | $20.77 | $0.00 | $0.00 | $41.55 | $0.00 |
| 2025 | 18023 | PORTPT - PORT DISTRICT | $10.58 | $10.58 | $0.00 | $0.00 | $21.16 | $0.00 |
| 2025 | 18023 | PUD1 - PUD #1 | $1.70 | $1.69 | $0.00 | $0.00 | $3.39 | $0.00 |
| 2025 | 18023 | LIB1 - LIBRARY DIST #1 | $8.04 | $8.04 | $0.00 | $0.00 | $16.08 | $0.00 |
| 2025 | 18023 | HD2 - HOSP DIST #2 | $1.52 | $1.51 | $0.00 | $0.00 | $3.03 | $0.00 |
| 2025 | 18023 | SD49 - SCHOOL DIST #49 | $35.34 | $35.34 | $0.00 | $0.00 | $70.68 | $0.00 |
| 2025 | 18023 | FD1 - FIRE DISTRICT #1 | $34.22 | $34.22 | $0.00 | $0.00 | $68.44 | $0.00 |
| 2025 | 18023 | EMS1 - FIRE DIST #1 EMS | $13.16 | $13.16 | $0.00 | $0.00 | $26.32 | $0.00 |
| 2025 | 18023 | FPLCA - DNR Landowner Contingency Assmt | $3.00 | $3.00 | $0.00 | $0.00 | $6.00 | $0.00 |
| 2025 | 18023 | JCCD - JC Conservation District | $2.55 | $2.55 | $0.00 | $0.00 | $5.10 | $0.00 |
| 2025 | 18023 | NWA - Noxious Weed Assessment | $2.15 | $2.15 | $0.00 | $0.00 | $4.30 | $0.00 |
| 2025 | 18023 | WAT - Clean Water District | $13.00 | $13.00 | $0.00 | $0.00 | $26.00 | $0.00 |
| 2025 | 18023 | TOTAL: | $238.71 | $238.65 | $0.00 | $0.00 | $477.36 | $0.00 |
|
| 2025 | 18023 | $238.71 | $238.65 | $0.00 | $0.00 | $477.36 | $0.00 |
Statement Details |
| 2024 | 18057 | STATE - STATE LEVY (SCHOOL) | $63.63 | $63.62 | $0.00 | $0.00 | $127.25 | $0.00 |
| 2024 | 18057 | COUNTY - COUNTY LEVIES (CE, DD, VET, MH) | $27.24 | $27.21 | $0.00 | $0.00 | $54.45 | $0.00 |
| 2024 | 18057 | CONSERVE - CONSERVATION FUTURES | $0.82 | $0.81 | $0.00 | $0.00 | $1.63 | $0.00 |
| 2024 | 18057 | COROADS - COUNTY ROADS (ROADS, DIV TO CE) | $21.91 | $21.90 | $0.00 | $0.00 | $43.81 | $0.00 |
| 2024 | 18057 | PORTPT - PORT DISTRICT | $11.25 | $11.24 | $0.00 | $0.00 | $22.49 | $0.00 |
| 2024 | 18057 | PUD1 - PUD #1 | $1.79 | $1.79 | $0.00 | $0.00 | $3.58 | $0.00 |
| 2024 | 18057 | LIB1 - LIBRARY DIST #1 | $8.48 | $8.47 | $0.00 | $0.00 | $16.95 | $0.00 |
| 2024 | 18057 | HD2 - HOSP DIST #2 | $1.59 | $1.59 | $0.00 | $0.00 | $3.18 | $0.00 |
| 2024 | 18057 | SD49 - SCHOOL DIST #49 | $28.41 | $28.41 | $0.00 | $0.00 | $56.82 | $0.00 |
| 2024 | 18057 | FD1 - FIRE DISTRICT #1 | $36.00 | $36.00 | $0.00 | $0.00 | $72.00 | $0.00 |
| 2024 | 18057 | EMS1 - FIRE DIST #1 EMS | $13.75 | $13.75 | $0.00 | $0.00 | $27.50 | $0.00 |
| 2024 | 18057 | FPLCA - DNR Landowner Contingency Assmt | $3.00 | $3.00 | $0.00 | $0.00 | $6.00 | $0.00 |
| 2024 | 18057 | JCCD - JC Conservation District | $2.55 | $2.55 | $0.00 | $0.00 | $5.10 | $0.00 |
| 2024 | 18057 | NWA - Noxious Weed Assessment | $2.15 | $2.15 | $0.00 | $0.00 | $4.30 | $0.00 |
| 2024 | 18057 | WAT - Clean Water District | $12.50 | $12.50 | $0.00 | $0.00 | $25.00 | $0.00 |
| 2024 | 18057 | TOTAL: | $235.07 | $234.99 | $0.00 | $0.00 | $470.06 | $0.00 |
|
| 2024 | 18057 | $235.07 | $234.99 | $0.00 | $0.00 | $470.06 | $0.00 |
Statement Details |
| 2023 | 18090 | STATE - STATE LEVY (SCHOOL) | $64.74 | $64.74 | $0.00 | $0.00 | $129.48 | $0.00 |
| 2023 | 18090 | COUNTY - COUNTY LEVIES (CE, DD, VET, MH) | $28.25 | $28.24 | $0.00 | $0.00 | $56.49 | $0.00 |
| 2023 | 18090 | CONSERVE - CONSERVATION FUTURES | $0.85 | $0.84 | $0.00 | $0.00 | $1.69 | $0.00 |
| 2023 | 18090 | COROADS - COUNTY ROADS (ROADS, DIV TO CE) | $22.87 | $22.85 | $0.00 | $0.00 | $45.72 | $0.00 |
| 2023 | 18090 | PORTPT - PORT DISTRICT | $11.90 | $11.90 | $0.00 | $0.00 | $23.80 | $0.00 |
| 2023 | 18090 | PUD1 - PUD #1 | $1.88 | $1.87 | $0.00 | $0.00 | $3.75 | $0.00 |
| 2023 | 18090 | LIB1 - LIBRARY DIST #1 | $8.85 | $8.84 | $0.00 | $0.00 | $17.69 | $0.00 |
| 2023 | 18090 | HD2 - HOSP DIST #2 | $1.65 | $1.64 | $0.00 | $0.00 | $3.29 | $0.00 |
| 2023 | 18090 | SD49 - SCHOOL DIST #49 | $30.27 | $30.26 | $0.00 | $0.00 | $60.53 | $0.00 |
| 2023 | 18090 | FD3 - FIRE DISTRICT #3 | $28.11 | $28.10 | $0.00 | $0.00 | $56.21 | $0.00 |
| 2023 | 18090 | EMS3 - FIRE DIST #3 EMS | $10.05 | $10.05 | $0.00 | $0.00 | $20.10 | $0.00 |
| 2023 | 18090 | FPLCA - DNR Landowner Contingency Assmt | $3.00 | $3.00 | $0.00 | $0.00 | $6.00 | $0.00 |
| 2023 | 18090 | JCCD - JC Conservation District | $2.53 | $2.53 | $0.00 | $0.00 | $5.06 | $0.00 |
| 2023 | 18090 | NWA - Noxious Weed Assessment | $2.15 | $2.15 | $0.00 | $0.00 | $4.30 | $0.00 |
| 2023 | 18090 | WAT - Clean Water District | $12.00 | $12.00 | $0.00 | $0.00 | $24.00 | $0.00 |
| 2023 | 18090 | TOTAL: | $229.10 | $229.01 | $0.00 | $0.00 | $458.11 | $0.00 |
|
| 2023 | 18090 | $229.10 | $229.01 | $0.00 | $0.00 | $458.11 | $0.00 |
Values
| (+) Improvement Homesite Value: | + | $0 | |
| (+) Improvement Non-Homesite Value: | + | $0 | |
| (+) Land Homesite Value: | + | $0 | |
| (+) Land Non-Homesite Value: | + | $57,750 | |
| (+) Curr Use (HS): | + | $0 | $0 |
| (+) Curr Use (NHS): | + | $0 | $0 |
| | | -------------------------- | |
| (=) Market Value: | = | $57,750 | |
| (–) Productivity Loss: | – | $0 | |
| | | -------------------------- | |
| (=) Subtotal: | = | $57,750 | |
| (+) Senior Appraised Value: | + | $0 | |
| (+) Non-Senior Appraised Value: | + | $57,750 | |
| | | -------------------------- | |
| (=) Total Appraised Value: | = | $57,750 | |
| (–) Senior Exemption Loss: | – | $0 | |
| (–) Exemption Loss: | – | $0 | |
| | | -------------------------- | |
| (=) Taxable Value: | = | $57,750 | |
Taxing Jurisdiction
| Owner: | BRIAN ZUMWALT | | |
| % Ownership: | 100.0000000000% | | |
| Total Value: | N/A | | |
| Tax Area: | 0213 - 1-49F1E1H2L1 |
| CE | COUNTY CURRENT EXPENSE | N/A | N/A | N/A | N/A | | |
| CNTYDD | DEVELOPMENTAL DISABILITIES | N/A | N/A | N/A | N/A | | |
| CNTYVET | VETERANS RELIEF | N/A | N/A | N/A | N/A | | |
| MENTAL | MENTAL HEALTH | N/A | N/A | N/A | N/A | | |
| ROADS | COUNTY ROADS | N/A | N/A | N/A | N/A | | |
| HOSP2CASH | HOSP DIST #2 GENERAL | N/A | N/A | N/A | N/A | | |
| SCH49CP | SCHOOL DIST #49 CAP PROJ | N/A | N/A | N/A | N/A | | |
| SCH49MO | SCHOOL DIST #49 EP & O | N/A | N/A | N/A | N/A | | |
| CONSERVE | CONSERVATION FUTURES | N/A | N/A | N/A | N/A | | |
| EMS1 | FIRE DIST #1 EMS | N/A | N/A | N/A | N/A | | |
| FD1 | FIRE DIST #1 GENERAL | N/A | N/A | N/A | N/A | | |
| LIB1 | LIBRARY DIST #1 GENERAL | N/A | N/A | N/A | N/A | | |
| PORTPT | PORT OF PT GENERAL | N/A | N/A | N/A | N/A | | |
| PORTPTIDD | PORT OF PT IDD 2019 | N/A | N/A | N/A | N/A | | |
| PUD1 | PUD #1 GENERAL | N/A | N/A | N/A | N/A | | |
| STATE | STATE SCHOOL PART 1 | N/A | N/A | N/A | N/A | | |
| STATE2 | STATE SCHOOL PART 2 | N/A | N/A | N/A | N/A | | |
| | Total Tax Rate: | N/A | | | | | |
| | | | | Taxes w/Current Exemptions: | N/A | | |
| | | | | Taxes w/o Exemptions: | N/A | | |
Improvement / Building
Sketch
| No sketches available for this property. |
Property Image
Land
| 1 | 3435-1145L | | 0.0000 | 0.00 | 0.00 | 0.00 | 1.00 | $57,750 | $0 |
Roll Value History
| 2026 | N/A | N/A | N/A | N/A | N/A |
| 2025 | $0 | $57,750 | $0 | $57,750 | $57,750 |
| 2024 | $0 | $55,000 | $0 | $55,000 | $55,000 |
| 2023 | $0 | $55,000 | $0 | $55,000 | $55,000 |
| 2022 | $0 | $55,000 | $0 | $55,000 | $55,000 |
Deed and Sales History
| 1 | 05/13/2020 | SWD | Statutory Warranty Deed | GREGORY D LAWSON | BRIAN ZUMWALT | | | $379,900.00 | 134357 | |
|   | |
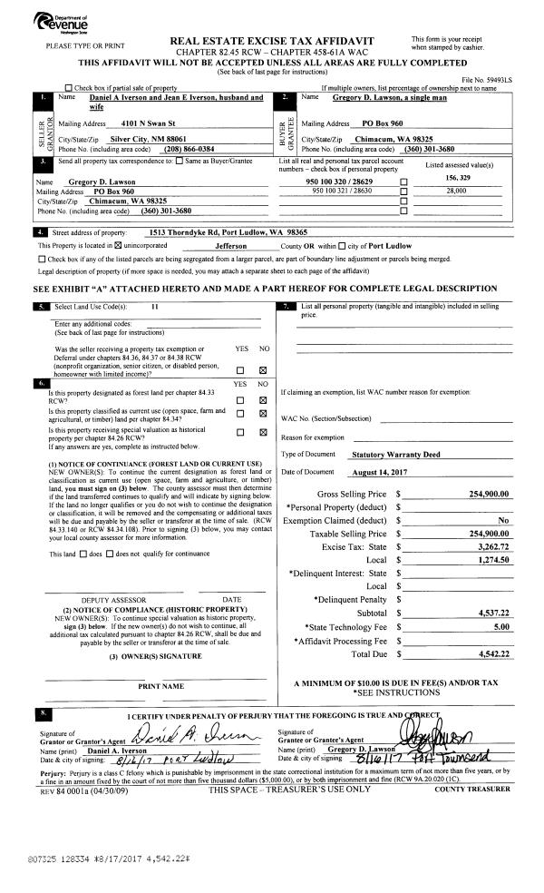
| 2 | 08/14/2017 | SWD | Statutory Warranty Deed | DANIEL A IVERSON | GREGORY D LAWSON | | | $254,900.00 | 128334 | |
|   | |
| 3 | 11/19/2010 | QCD | Quit Claim Deed | IVERSON, DANIEL/JEAN E TR | IVERSON, DANIEL/JEAN | 0 | 0 | $0.00 | 115222 | 0 |
| 4 | 10/31/2003 | SWD | Statutory Warranty Deed | THOMSON, C/J & D/C MORGAN | IVERSON, DANIEL & JEAN/TRUSTEE | 0 | 0 | $35,000.00 | 98691 | 0 |
|   | |
Payout Agreement
| No payout information available.. |