Property
Account |
| Property ID: | 28645 | Abbreviated Legal Description: | TRAILS END HOMESITES BLK 3 LOT 43 & PTN VAC ST ADJ |
| Parcel # / Geo ID: | 950100341 | Agent Code: | |
| Type: | Real | | |
| Tax Area: | 0213 - 1-49F1E1H2L1 | Land Use Code | 11 |
| Open Space: | N | DFL | N |
| Historic Property: | N | Remodel Property: | N |
| Multi-Family Redevelopment: | N | | |
| Township: | 27N | Section: | 16 |
| Range: | 1E |
Location |
| Address: | 1251 THORNDYKE RD PORT LUDLOW, WA 98365 | Mapsco: | 139/060 |
| Neighborhood: | TRAILS END HOMESITES (ALL DIVISIONS) | Map ID: | |
| Neighborhood CD: | 3435 |
Owner |
| Name: | KEVIN R & CANDACE C KVINSLAND | Owner ID: | 98949 |
| Mailing Address: | 1251 THORNDYKE RD PORT LUDLOW, WA 98365-9530 | % Ownership: | 100.0000000000% |
| | | Exemptions: | |
Pay Tax Due
Select the appropriate checkbox next to the year to be paid. Multiple years may be selected.
*Convenience Fee not included
Taxes and Assessment Details
Property Tax Information as of
03/11/2026
Click on "Statement Details" to expand or collapse a tax statement.
* Please enter a valid date ** Please enter a valid date *
Statement Details |
| 2026 | 17980 | STATE - STATE LEVY (SCHOOL) | $419.68 | $419.68 | $0.00 | $0.00 | $0.00 | $839.36 |
| 2026 | 17980 | COUNTY - COUNTY LEVIES (CE, DD, VET, MH) | $167.79 | $167.78 | $0.00 | $0.00 | $0.00 | $335.57 |
| 2026 | 17980 | CONSERVE - CONSERVATION FUTURES | $5.03 | $5.03 | $0.00 | $0.00 | $0.00 | $10.06 |
| 2026 | 17980 | COROADS - COUNTY ROADS (ROADS, DIV TO CE) | $135.36 | $135.35 | $0.00 | $0.00 | $0.00 | $270.71 |
| 2026 | 17980 | PORTPT - PORT DISTRICT | $67.77 | $67.77 | $0.00 | $0.00 | $0.00 | $135.54 |
| 2026 | 17980 | PUD1 - PUD #1 | $10.92 | $10.91 | $0.00 | $0.00 | $0.00 | $21.83 |
| 2026 | 17980 | LIB1 - LIBRARY DIST #1 | $52.37 | $52.37 | $0.00 | $0.00 | $0.00 | $104.74 |
| 2026 | 17980 | HD2 - HOSP DIST #2 | $9.79 | $9.78 | $0.00 | $0.00 | $0.00 | $19.57 |
| 2026 | 17980 | SD49 - SCHOOL DIST #49 | $231.02 | $231.02 | $0.00 | $0.00 | $0.00 | $462.04 |
| 2026 | 17980 | FD1 - FIRE DISTRICT #1 | $222.19 | $222.19 | $0.00 | $0.00 | $0.00 | $444.38 |
| 2026 | 17980 | EMS1 - FIRE DIST #1 EMS | $85.43 | $85.43 | $0.00 | $0.00 | $0.00 | $170.86 |
| 2026 | 17980 | JCCD - JC Conservation District | $2.55 | $2.55 | $0.00 | $0.00 | $0.00 | $5.10 |
| 2026 | 17980 | NWA - Noxious Weed Assessment | $2.98 | $2.97 | $0.00 | $0.00 | $0.00 | $5.95 |
| 2026 | 17980 | OSS - On Site Septic | $23.10 | $23.10 | $0.00 | $0.00 | $0.00 | $46.20 |
| 2026 | 17980 | WAT - Clean Water District | $13.00 | $13.00 | $0.00 | $0.00 | $0.00 | $26.00 |
| 2026 | 17980 | TOTAL: | $1448.98 | $1448.93 | $0.00 | $0.00 | $0.00 | $2897.91 |
|
| 2026 | 17980 | $1448.98 | $1448.93 | $0.00 | $0.00 | $0.00 | $2897.91 |
Statement Details |
| 2025 | 18038 | STATE - STATE LEVY (SCHOOL) | $417.54 | $417.54 | $0.00 | $0.00 | $835.08 | $0.00 |
| 2025 | 18038 | COUNTY - COUNTY LEVIES (CE, DD, VET, MH) | $164.20 | $164.19 | $0.00 | $0.00 | $328.39 | $0.00 |
| 2025 | 18038 | CONSERVE - CONSERVATION FUTURES | $4.93 | $4.92 | $0.00 | $0.00 | $9.85 | $0.00 |
| 2025 | 18038 | COROADS - COUNTY ROADS (ROADS, DIV TO CE) | $131.55 | $131.54 | $0.00 | $0.00 | $263.09 | $0.00 |
| 2025 | 18038 | PORTPT - PORT DISTRICT | $67.01 | $66.99 | $0.00 | $0.00 | $134.00 | $0.00 |
| 2025 | 18038 | PUD1 - PUD #1 | $10.75 | $10.74 | $0.00 | $0.00 | $21.49 | $0.00 |
| 2025 | 18038 | LIB1 - LIBRARY DIST #1 | $50.90 | $50.89 | $0.00 | $0.00 | $101.79 | $0.00 |
| 2025 | 18038 | HD2 - HOSP DIST #2 | $9.58 | $9.58 | $0.00 | $0.00 | $19.16 | $0.00 |
| 2025 | 18038 | SD49 - SCHOOL DIST #49 | $223.78 | $223.77 | $0.00 | $0.00 | $447.55 | $0.00 |
| 2025 | 18038 | FD1 - FIRE DISTRICT #1 | $216.68 | $216.67 | $0.00 | $0.00 | $433.35 | $0.00 |
| 2025 | 18038 | EMS1 - FIRE DIST #1 EMS | $83.34 | $83.34 | $0.00 | $0.00 | $166.68 | $0.00 |
| 2025 | 18038 | JCCD - JC Conservation District | $2.55 | $2.55 | $0.00 | $0.00 | $5.10 | $0.00 |
| 2025 | 18038 | NWA - Noxious Weed Assessment | $2.15 | $2.15 | $0.00 | $0.00 | $4.30 | $0.00 |
| 2025 | 18038 | OSS - On Site Septic | $21.50 | $21.50 | $0.00 | $0.00 | $43.00 | $0.00 |
| 2025 | 18038 | WAT - Clean Water District | $13.00 | $13.00 | $0.00 | $0.00 | $26.00 | $0.00 |
| 2025 | 18038 | TOTAL: | $1419.46 | $1419.37 | $0.00 | $0.00 | $2838.83 | $0.00 |
|
| 2025 | 18038 | $1419.46 | $1419.37 | $0.00 | $0.00 | $2838.83 | $0.00 |
Statement Details |
| 2024 | 18072 | STATE - STATE LEVY (SCHOOL) | $397.06 | $397.05 | $0.00 | $0.00 | $794.11 | $0.00 |
| 2024 | 18072 | COUNTY - COUNTY LEVIES (CE, DD, VET, MH) | $169.91 | $169.90 | $0.00 | $0.00 | $339.81 | $0.00 |
| 2024 | 18072 | CONSERVE - CONSERVATION FUTURES | $5.10 | $5.09 | $0.00 | $0.00 | $10.19 | $0.00 |
| 2024 | 18072 | COROADS - COUNTY ROADS (ROADS, DIV TO CE) | $136.72 | $136.71 | $0.00 | $0.00 | $273.43 | $0.00 |
| 2024 | 18072 | PORTPT - PORT DISTRICT | $70.18 | $70.18 | $0.00 | $0.00 | $140.36 | $0.00 |
| 2024 | 18072 | PUD1 - PUD #1 | $11.16 | $11.16 | $0.00 | $0.00 | $22.32 | $0.00 |
| 2024 | 18072 | LIB1 - LIBRARY DIST #1 | $52.90 | $52.89 | $0.00 | $0.00 | $105.79 | $0.00 |
| 2024 | 18072 | HD2 - HOSP DIST #2 | $9.92 | $9.91 | $0.00 | $0.00 | $19.83 | $0.00 |
| 2024 | 18072 | SD49 - SCHOOL DIST #49 | $177.31 | $177.30 | $0.00 | $0.00 | $354.61 | $0.00 |
| 2024 | 18072 | FD1 - FIRE DISTRICT #1 | $224.66 | $224.65 | $0.00 | $0.00 | $449.31 | $0.00 |
| 2024 | 18072 | EMS1 - FIRE DIST #1 EMS | $85.81 | $85.81 | $0.00 | $0.00 | $171.62 | $0.00 |
| 2024 | 18072 | JCCD - JC Conservation District | $2.55 | $2.55 | $0.00 | $0.00 | $5.10 | $0.00 |
| 2024 | 18072 | NWA - Noxious Weed Assessment | $2.15 | $2.15 | $0.00 | $0.00 | $4.30 | $0.00 |
| 2024 | 18072 | OSS - On Site Septic | $21.00 | $21.00 | $0.00 | $0.00 | $42.00 | $0.00 |
| 2024 | 18072 | WAT - Clean Water District | $12.50 | $12.50 | $0.00 | $0.00 | $25.00 | $0.00 |
| 2024 | 18072 | TOTAL: | $1378.93 | $1378.85 | $0.00 | $0.00 | $2757.78 | $0.00 |
|
| 2024 | 18072 | $1378.93 | $1378.85 | $0.00 | $0.00 | $2757.78 | $0.00 |
Statement Details |
| 2023 | 18105 | STATE - STATE LEVY (SCHOOL) | $398.13 | $398.13 | $0.00 | $0.00 | $796.26 | $0.00 |
| 2023 | 18105 | COUNTY - COUNTY LEVIES (CE, DD, VET, MH) | $173.74 | $173.72 | $0.00 | $0.00 | $347.46 | $0.00 |
| 2023 | 18105 | CONSERVE - CONSERVATION FUTURES | $5.21 | $5.21 | $0.00 | $0.00 | $10.42 | $0.00 |
| 2023 | 18105 | COROADS - COUNTY ROADS (ROADS, DIV TO CE) | $140.57 | $140.55 | $0.00 | $0.00 | $281.12 | $0.00 |
| 2023 | 18105 | PORTPT - PORT DISTRICT | $73.19 | $73.18 | $0.00 | $0.00 | $146.37 | $0.00 |
| 2023 | 18105 | PUD1 - PUD #1 | $11.52 | $11.51 | $0.00 | $0.00 | $23.03 | $0.00 |
| 2023 | 18105 | LIB1 - LIBRARY DIST #1 | $54.38 | $54.38 | $0.00 | $0.00 | $108.76 | $0.00 |
| 2023 | 18105 | HD2 - HOSP DIST #2 | $10.14 | $10.14 | $0.00 | $0.00 | $20.28 | $0.00 |
| 2023 | 18105 | SD49 - SCHOOL DIST #49 | $186.11 | $186.10 | $0.00 | $0.00 | $372.21 | $0.00 |
| 2023 | 18105 | FD3 - FIRE DISTRICT #3 | $172.84 | $172.84 | $0.00 | $0.00 | $345.68 | $0.00 |
| 2023 | 18105 | EMS3 - FIRE DIST #3 EMS | $61.79 | $61.79 | $0.00 | $0.00 | $123.58 | $0.00 |
| 2023 | 18105 | JCCD - JC Conservation District | $2.55 | $2.55 | $0.00 | $0.00 | $5.10 | $0.00 |
| 2023 | 18105 | NWA - Noxious Weed Assessment | $2.15 | $2.15 | $0.00 | $0.00 | $4.30 | $0.00 |
| 2023 | 18105 | OSS - On Site Septic | $20.50 | $20.50 | $0.00 | $0.00 | $41.00 | $0.00 |
| 2023 | 18105 | WAT - Clean Water District | $12.00 | $12.00 | $0.00 | $0.00 | $24.00 | $0.00 |
| 2023 | 18105 | TOTAL: | $1324.82 | $1324.75 | $0.00 | $0.00 | $2649.57 | $0.00 |
|
| 2023 | 18105 | $1324.82 | $1324.75 | $0.00 | $0.00 | $2649.57 | $0.00 |
Values
| (+) Improvement Homesite Value: | + | $0 | |
| (+) Improvement Non-Homesite Value: | + | $246,961 | |
| (+) Land Homesite Value: | + | $0 | |
| (+) Land Non-Homesite Value: | + | $118,125 | |
| (+) Curr Use (HS): | + | $0 | $0 |
| (+) Curr Use (NHS): | + | $0 | $0 |
| | | -------------------------- | |
| (=) Market Value: | = | $365,086 | |
| (–) Productivity Loss: | – | $0 | |
| | | -------------------------- | |
| (=) Subtotal: | = | $365,086 | |
| (+) Senior Appraised Value: | + | $0 | |
| (+) Non-Senior Appraised Value: | + | $365,086 | |
| | | -------------------------- | |
| (=) Total Appraised Value: | = | $365,086 | |
| (–) Senior Exemption Loss: | – | $0 | |
| (–) Exemption Loss: | – | $0 | |
| | | -------------------------- | |
| (=) Taxable Value: | = | $365,086 | |
Taxing Jurisdiction
| Owner: | KEVIN R & CANDACE C KVINSLAND | | |
| % Ownership: | 100.0000000000% | | |
| Total Value: | $365,086 | | |
| Tax Area: | 0213 - 1-49F1E1H2L1 |
| CE | COUNTY CURRENT EXPENSE | 0.9034619479 | $365,086 | $365,086 | $329.84 | | |
| CNTYDD | DEVELOPMENTAL DISABILITIES | 0.0052121823 | $365,086 | $365,086 | $1.90 | | |
| CNTYVET | VETERANS RELIEF | 0.0052777810 | $365,086 | $365,086 | $1.93 | | |
| MENTAL | MENTAL HEALTH | 0.0052121823 | $365,086 | $365,086 | $1.90 | | |
| ROADS | COUNTY ROADS | 0.7415066410 | $365,086 | $365,086 | $270.71 | | |
| ROADSCU | COUNTY ROADS TO CUR EXP | 0.0000000000 | $365,086 | $365,086 | $0.00 | | |
| HOSP2CASH | HOSP DIST #2 GENERAL | 0.0536075306 | $365,086 | $365,086 | $19.57 | | |
| SCH49CP | SCHOOL DIST #49 CAP PROJ | 0.6279093905 | $365,086 | $365,086 | $229.24 | | |
| SCH49MO | SCHOOL DIST #49 EP & O | 0.6376483602 | $365,086 | $365,086 | $232.80 | | |
| CONSERVE | CONSERVATION FUTURES | 0.0275621078 | $365,086 | $365,086 | $10.06 | | |
| EMS1 | FIRE DIST #1 EMS | 0.4679948282 | $365,086 | $365,086 | $170.86 | | |
| FD1 | FIRE DIST #1 GENERAL | 1.2171942929 | $365,086 | $365,086 | $444.38 | | |
| LIB1 | LIBRARY DIST #1 GENERAL | 0.2868827388 | $365,086 | $365,086 | $104.74 | | |
| PORTPT | PORT OF PT GENERAL | 0.1134941229 | $365,086 | $365,086 | $41.44 | | |
| PORTPTIDD | PORT OF PT IDD 2019 | 0.2577346692 | $365,086 | $365,086 | $94.10 | | |
| PUD1 | PUD #1 GENERAL | 0.0597888892 | $365,086 | $365,086 | $21.83 | | |
| STATE | STATE SCHOOL PART 1 | 1.4940692947 | $365,086 | $365,086 | $545.46 | | |
| STATE2 | STATE SCHOOL PART 2 | 0.8050170049 | $365,086 | $365,086 | $293.90 | | |
| | Total Tax Rate: | 7.7095739644 | | | | | |
| | | | | Taxes w/Current Exemptions: | $2,814.66 | | |
| | | | | Taxes w/o Exemptions: | $2,814.66 | | |
Improvement / Building
| Improvement #1: | Manufactured Home | State Code: | 11 | 1532.0 sqft | Value: | $246,961 |
| Bathrooms (#): | 2 (FULL) | Bedrooms (#): | 3 | | Exterior Wall: | SI/ST | Fireplace: | SIN 1-GOOD | | Floor Construction: | FRAME | Foundation: | CONBL | | Heating/Cooling: | F/A | Inside Verify: | YES | | Roof Cover: | COMP |   |   |
|
| | Type | Description | Class CD | Sub Class CD | Year Built | Area |
| | MA | Main Area | 6 | MDBL | 2003 | 1532.0 |
| | PATIO | House Patio | 6 | * | 2003 | 280.0 |
| | HDECK | House Deck | 6 | * | 2003 | 74.0 |
| | HDECK | House Deck | 6 | * | 2003 | 441.0 |
| | OTHER | Other | 5 | * | 2003 | 0.0 |
Sketch
Property Image
Land
| 1 | 3435-1145L | | 0.0000 | 0.00 | 0.00 | 0.00 | 1.00 | $118,125 | $0 |
Roll Value History
| 2026 | N/A | N/A | N/A | N/A | N/A |
| 2025 | $246,961 | $118,125 | $0 | $365,086 | $365,086 |
| 2024 | $235,736 | $112,500 | $0 | $348,236 | $348,236 |
| 2023 | $235,736 | $107,500 | $0 | $343,236 | $343,236 |
| 2022 | $235,735 | $102,500 | $0 | $338,235 | $338,235 |
Deed and Sales History
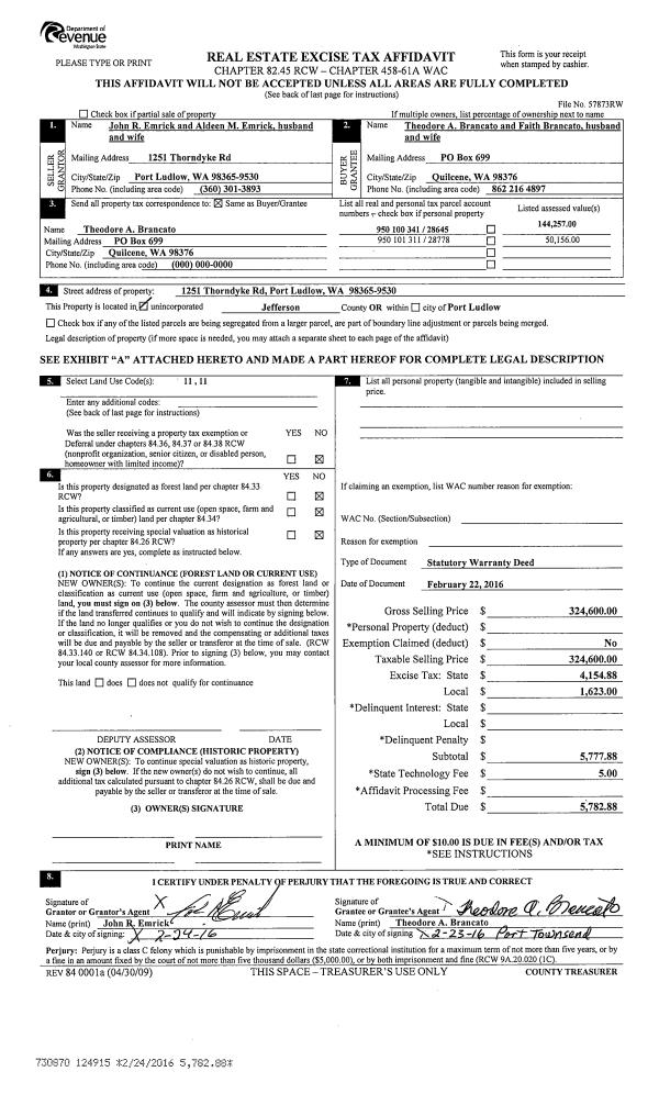
| 1 | 03/23/2018 | SWD | Statutory Warranty Deed | THEODORE & FAITH BRANCATO | KEVIN R & CANDACE C KVINSLAND | | | $344,600.00 | 129851 | |
|   | |
| 2 | 02/22/2016 | SWD | Statutory Warranty Deed | | | | | | 129833 | |
| 3 | 02/22/2016 | SWD | Statutory Warranty Deed | JOHN R EMRICK TRUSTEE | THEODORE & FAITH BRANCATO | | | $324,600.00 | 124915 | |
|   | |
| 4 | 02/14/2008 | SWD | Statutory Warranty Deed | EMRICK, JOHN R/ALDEEN M | EMRICK, JOHN R/ALDEEN M TRUSTE | | | $0.00 | 111241 | 0 |
| 5 | 02/14/2008 | SWD | Statutory Warranty Deed | EMRICK, JOHN R/ALDEEN | EMRICK FAMILY TRUST | 0 | 0 | $0.00 | 111846 | 0 |
| 6 | 07/25/2003 | SWD | Statutory Warranty Deed | JUNTARA, CHAIYONG/DARA | EMRICK, JOHN/ALDEEN M | 0 | 0 | $62,000.00 | 97888 | 0 |
|   | |
Payout Agreement
| No payout information available.. |