Property
Account |
| Property ID: | 28674 | Abbreviated Legal Description: | TRAILS END HOMESITES BLK 4 LOTS 47 & 48 |
| Parcel # / Geo ID: | 950100438 | Agent Code: | |
| Type: | Real | | |
| Tax Area: | 0213 - 1-49F1E1H2L1 | Land Use Code | 91 |
| Open Space: | N | DFL | N |
| Historic Property: | N | Remodel Property: | N |
| Multi-Family Redevelopment: | N | | |
| Township: | 27N | Section: | 16 |
| Range: | 1E |
Location |
| Address: | | Mapsco: | 140/038 |
| Neighborhood: | TRAILS END HOMESITES (ALL DIVISIONS) | Map ID: | |
| Neighborhood CD: | 3435 |
Owner |
| Name: | TISA L & WILFRIED HOFER | Owner ID: | 109059 |
| Mailing Address: | 8211 S 123RD PL SEATTLE, WA 98178-4416 | % Ownership: | 100.0000000000% |
| | | Exemptions: | |
Pay Tax Due
Select the appropriate checkbox next to the year to be paid. Multiple years may be selected.
*Convenience Fee not included
Taxes and Assessment Details
Property Tax Information as of
03/09/2026
Click on "Statement Details" to expand or collapse a tax statement.
* Please enter a valid date ** Please enter a valid date *
Statement Details |
| 2026 | 18001 | STATE - STATE LEVY (SCHOOL) | $117.09 | $117.07 | $0.00 | $0.00 | $0.00 | $234.16 |
| 2026 | 18001 | COUNTY - COUNTY LEVIES (CE, DD, VET, MH) | $46.82 | $46.80 | $0.00 | $0.00 | $0.00 | $93.62 |
| 2026 | 18001 | CONSERVE - CONSERVATION FUTURES | $1.41 | $1.40 | $0.00 | $0.00 | $0.00 | $2.81 |
| 2026 | 18001 | COROADS - COUNTY ROADS (ROADS, DIV TO CE) | $37.76 | $37.76 | $0.00 | $0.00 | $0.00 | $75.52 |
| 2026 | 18001 | PORTPT - PORT DISTRICT | $18.91 | $18.90 | $0.00 | $0.00 | $0.00 | $37.81 |
| 2026 | 18001 | PUD1 - PUD #1 | $3.05 | $3.04 | $0.00 | $0.00 | $0.00 | $6.09 |
| 2026 | 18001 | LIB1 - LIBRARY DIST #1 | $14.61 | $14.61 | $0.00 | $0.00 | $0.00 | $29.22 |
| 2026 | 18001 | HD2 - HOSP DIST #2 | $2.73 | $2.73 | $0.00 | $0.00 | $0.00 | $5.46 |
| 2026 | 18001 | SD49 - SCHOOL DIST #49 | $64.45 | $64.44 | $0.00 | $0.00 | $0.00 | $128.89 |
| 2026 | 18001 | FD1 - FIRE DISTRICT #1 | $61.99 | $61.98 | $0.00 | $0.00 | $0.00 | $123.97 |
| 2026 | 18001 | EMS1 - FIRE DIST #1 EMS | $23.84 | $23.83 | $0.00 | $0.00 | $0.00 | $47.67 |
| 2026 | 18001 | JCCD - JC Conservation District | $2.53 | $2.53 | $0.00 | $0.00 | $0.00 | $5.06 |
| 2026 | 18001 | NWA - Noxious Weed Assessment | $2.98 | $2.97 | $0.00 | $0.00 | $0.00 | $5.95 |
| 2026 | 18001 | WAT - Clean Water District | $13.00 | $13.00 | $0.00 | $0.00 | $0.00 | $26.00 |
| 2026 | 18001 | TOTAL: | $411.17 | $411.06 | $0.00 | $0.00 | $0.00 | $822.23 |
|
| 2026 | 18001 | $411.17 | $411.06 | $0.00 | $0.00 | $0.00 | $822.23 |
Statement Details |
| 2025 | 18059 | STATE - STATE LEVY (SCHOOL) | $116.31 | $116.30 | $0.00 | $0.00 | $232.61 | $0.00 |
| 2025 | 18059 | COUNTY - COUNTY LEVIES (CE, DD, VET, MH) | $45.74 | $45.73 | $0.00 | $0.00 | $91.47 | $0.00 |
| 2025 | 18059 | CONSERVE - CONSERVATION FUTURES | $1.37 | $1.37 | $0.00 | $0.00 | $2.74 | $0.00 |
| 2025 | 18059 | COROADS - COUNTY ROADS (ROADS, DIV TO CE) | $36.65 | $36.63 | $0.00 | $0.00 | $73.28 | $0.00 |
| 2025 | 18059 | PORTPT - PORT DISTRICT | $18.67 | $18.65 | $0.00 | $0.00 | $37.32 | $0.00 |
| 2025 | 18059 | PUD1 - PUD #1 | $3.00 | $2.99 | $0.00 | $0.00 | $5.99 | $0.00 |
| 2025 | 18059 | LIB1 - LIBRARY DIST #1 | $14.18 | $14.17 | $0.00 | $0.00 | $28.35 | $0.00 |
| 2025 | 18059 | HD2 - HOSP DIST #2 | $2.67 | $2.67 | $0.00 | $0.00 | $5.34 | $0.00 |
| 2025 | 18059 | SD49 - SCHOOL DIST #49 | $62.34 | $62.33 | $0.00 | $0.00 | $124.67 | $0.00 |
| 2025 | 18059 | FD1 - FIRE DISTRICT #1 | $60.36 | $60.35 | $0.00 | $0.00 | $120.71 | $0.00 |
| 2025 | 18059 | EMS1 - FIRE DIST #1 EMS | $23.22 | $23.21 | $0.00 | $0.00 | $46.43 | $0.00 |
| 2025 | 18059 | JCCD - JC Conservation District | $2.53 | $2.53 | $0.00 | $0.00 | $5.06 | $0.00 |
| 2025 | 18059 | NWA - Noxious Weed Assessment | $2.15 | $2.15 | $0.00 | $0.00 | $4.30 | $0.00 |
| 2025 | 18059 | WAT - Clean Water District | $13.00 | $13.00 | $0.00 | $0.00 | $26.00 | $0.00 |
| 2025 | 18059 | TOTAL: | $402.19 | $402.08 | $0.00 | $0.00 | $804.27 | $0.00 |
|
| 2025 | 18059 | $402.19 | $402.08 | $0.00 | $0.00 | $804.27 | $0.00 |
Statement Details |
| 2024 | 18094 | STATE - STATE LEVY (SCHOOL) | $108.75 | $108.73 | $0.00 | $0.00 | $217.48 | $0.00 |
| 2024 | 18094 | COUNTY - COUNTY LEVIES (CE, DD, VET, MH) | $46.55 | $46.52 | $0.00 | $0.00 | $93.07 | $0.00 |
| 2024 | 18094 | CONSERVE - CONSERVATION FUTURES | $1.40 | $1.39 | $0.00 | $0.00 | $2.79 | $0.00 |
| 2024 | 18094 | COROADS - COUNTY ROADS (ROADS, DIV TO CE) | $37.45 | $37.43 | $0.00 | $0.00 | $74.88 | $0.00 |
| 2024 | 18094 | PORTPT - PORT DISTRICT | $19.23 | $19.21 | $0.00 | $0.00 | $38.44 | $0.00 |
| 2024 | 18094 | PUD1 - PUD #1 | $3.06 | $3.05 | $0.00 | $0.00 | $6.11 | $0.00 |
| 2024 | 18094 | LIB1 - LIBRARY DIST #1 | $14.49 | $14.48 | $0.00 | $0.00 | $28.97 | $0.00 |
| 2024 | 18094 | HD2 - HOSP DIST #2 | $2.72 | $2.71 | $0.00 | $0.00 | $5.43 | $0.00 |
| 2024 | 18094 | SD49 - SCHOOL DIST #49 | $48.56 | $48.55 | $0.00 | $0.00 | $97.11 | $0.00 |
| 2024 | 18094 | FD1 - FIRE DISTRICT #1 | $61.53 | $61.52 | $0.00 | $0.00 | $123.05 | $0.00 |
| 2024 | 18094 | EMS1 - FIRE DIST #1 EMS | $23.50 | $23.50 | $0.00 | $0.00 | $47.00 | $0.00 |
| 2024 | 18094 | JCCD - JC Conservation District | $2.53 | $2.53 | $0.00 | $0.00 | $5.06 | $0.00 |
| 2024 | 18094 | NWA - Noxious Weed Assessment | $2.15 | $2.15 | $0.00 | $0.00 | $4.30 | $0.00 |
| 2024 | 18094 | WAT - Clean Water District | $12.50 | $12.50 | $0.00 | $0.00 | $25.00 | $0.00 |
| 2024 | 18094 | TOTAL: | $384.42 | $384.27 | $0.00 | $0.00 | $768.69 | $0.00 |
|
| 2024 | 18094 | $384.42 | $384.27 | $0.00 | $0.00 | $768.69 | $0.00 |
Statement Details |
| 2023 | 18131 | STATE - STATE LEVY (SCHOOL) | $28.26 | $28.24 | $0.00 | $0.00 | $56.50 | $0.00 |
| 2023 | 18131 | COUNTY - COUNTY LEVIES (CE, DD, VET, MH) | $12.33 | $12.32 | $0.00 | $0.00 | $24.65 | $0.00 |
| 2023 | 18131 | CONSERVE - CONSERVATION FUTURES | $0.37 | $0.37 | $0.00 | $0.00 | $0.74 | $0.00 |
| 2023 | 18131 | COROADS - COUNTY ROADS (ROADS, DIV TO CE) | $9.98 | $9.97 | $0.00 | $0.00 | $19.95 | $0.00 |
| 2023 | 18131 | PORTPT - PORT DISTRICT | $5.19 | $5.19 | $0.00 | $0.00 | $10.38 | $0.00 |
| 2023 | 18131 | PUD1 - PUD #1 | $0.82 | $0.81 | $0.00 | $0.00 | $1.63 | $0.00 |
| 2023 | 18131 | LIB1 - LIBRARY DIST #1 | $3.86 | $3.86 | $0.00 | $0.00 | $7.72 | $0.00 |
| 2023 | 18131 | HD2 - HOSP DIST #2 | $0.72 | $0.72 | $0.00 | $0.00 | $1.44 | $0.00 |
| 2023 | 18131 | SD49 - SCHOOL DIST #49 | $13.21 | $13.20 | $0.00 | $0.00 | $26.41 | $0.00 |
| 2023 | 18131 | FD3 - FIRE DISTRICT #3 | $12.27 | $12.26 | $0.00 | $0.00 | $24.53 | $0.00 |
| 2023 | 18131 | EMS3 - FIRE DIST #3 EMS | $4.39 | $4.38 | $0.00 | $0.00 | $8.77 | $0.00 |
| 2023 | 18131 | JCCD - JC Conservation District | $2.53 | $2.53 | $0.00 | $0.00 | $5.06 | $0.00 |
| 2023 | 18131 | NWA - Noxious Weed Assessment | $2.15 | $2.15 | $0.00 | $0.00 | $4.30 | $0.00 |
| 2023 | 18131 | WAT - Clean Water District | $12.00 | $12.00 | $0.00 | $0.00 | $24.00 | $0.00 |
| 2023 | 18131 | TOTAL: | $108.08 | $108.00 | $0.00 | $0.00 | $216.08 | $0.00 |
|
| 2023 | 18131 | $108.08 | $108.00 | $0.00 | $0.00 | $216.08 | $0.00 |
Values
| (+) Improvement Homesite Value: | + | $0 | |
| (+) Improvement Non-Homesite Value: | + | $0 | |
| (+) Land Homesite Value: | + | $0 | |
| (+) Land Non-Homesite Value: | + | $101,850 | |
| (+) Curr Use (HS): | + | $0 | $0 |
| (+) Curr Use (NHS): | + | $0 | $0 |
| | | -------------------------- | |
| (=) Market Value: | = | $101,850 | |
| (–) Productivity Loss: | – | $0 | |
| | | -------------------------- | |
| (=) Subtotal: | = | $101,850 | |
| (+) Senior Appraised Value: | + | $0 | |
| (+) Non-Senior Appraised Value: | + | $101,850 | |
| | | -------------------------- | |
| (=) Total Appraised Value: | = | $101,850 | |
| (–) Senior Exemption Loss: | – | $0 | |
| (–) Exemption Loss: | – | $0 | |
| | | -------------------------- | |
| (=) Taxable Value: | = | $101,850 | |
Taxing Jurisdiction
| Owner: | TISA L & WILFRIED HOFER | | |
| % Ownership: | 100.0000000000% | | |
| Total Value: | $101,850 | | |
| Tax Area: | 0213 - 1-49F1E1H2L1 |
| CE | COUNTY CURRENT EXPENSE | 0.9034619479 | $101,850 | $101,850 | $92.02 | | |
| CNTYDD | DEVELOPMENTAL DISABILITIES | 0.0052121823 | $101,850 | $101,850 | $0.53 | | |
| CNTYVET | VETERANS RELIEF | 0.0052777810 | $101,850 | $101,850 | $0.54 | | |
| MENTAL | MENTAL HEALTH | 0.0052121823 | $101,850 | $101,850 | $0.53 | | |
| ROADS | COUNTY ROADS | 0.7415066410 | $101,850 | $101,850 | $75.52 | | |
| ROADSCU | COUNTY ROADS TO CUR EXP | 0.0000000000 | $101,850 | $101,850 | $0.00 | | |
| HOSP2CASH | HOSP DIST #2 GENERAL | 0.0536075306 | $101,850 | $101,850 | $5.46 | | |
| SCH49CP | SCHOOL DIST #49 CAP PROJ | 0.6279093905 | $101,850 | $101,850 | $63.95 | | |
| SCH49MO | SCHOOL DIST #49 EP & O | 0.6376483602 | $101,850 | $101,850 | $64.94 | | |
| CONSERVE | CONSERVATION FUTURES | 0.0275621078 | $101,850 | $101,850 | $2.81 | | |
| EMS1 | FIRE DIST #1 EMS | 0.4679948282 | $101,850 | $101,850 | $47.67 | | |
| FD1 | FIRE DIST #1 GENERAL | 1.2171942929 | $101,850 | $101,850 | $123.97 | | |
| LIB1 | LIBRARY DIST #1 GENERAL | 0.2868827388 | $101,850 | $101,850 | $29.22 | | |
| PORTPT | PORT OF PT GENERAL | 0.1134941229 | $101,850 | $101,850 | $11.56 | | |
| PORTPTIDD | PORT OF PT IDD 2019 | 0.2577346692 | $101,850 | $101,850 | $26.25 | | |
| PUD1 | PUD #1 GENERAL | 0.0597888892 | $101,850 | $101,850 | $6.09 | | |
| STATE | STATE SCHOOL PART 1 | 1.4940692947 | $101,850 | $101,850 | $152.17 | | |
| STATE2 | STATE SCHOOL PART 2 | 0.8050170049 | $101,850 | $101,850 | $81.99 | | |
| | Total Tax Rate: | 7.7095739644 | | | | | |
| | | | | Taxes w/Current Exemptions: | $785.22 | | |
| | | | | Taxes w/o Exemptions: | $785.22 | | |
Improvement / Building
Sketch
| No sketches available for this property. |
Property Image
Land
| 1 | 3435-1173L | | 0.0000 | 0.00 | 0.00 | 0.00 | 2.00 | $101,850 | $0 |
Roll Value History
| 2026 | N/A | N/A | N/A | N/A | N/A |
| 2025 | $0 | $101,850 | $0 | $101,850 | $101,850 |
| 2024 | $0 | $97,000 | $0 | $97,000 | $97,000 |
| 2023 | $0 | $94,000 | $0 | $94,000 | $94,000 |
| 2022 | $0 | $24,000 | $0 | $24,000 | $24,000 |
Deed and Sales History
| 1 | 06/08/2023 | SWD | Statutory Warranty Deed | COURTNEY WILLS | TISA L & WILFRIED HOFER | | | $135,000.00 | 141036 | |
|   | |
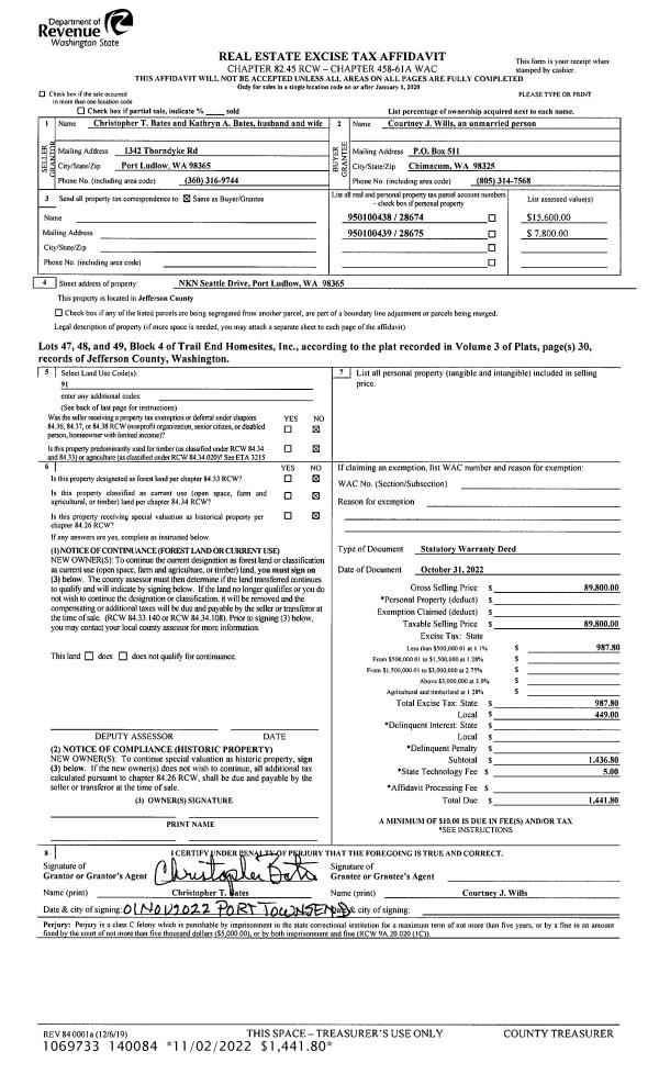
| 2 | 10/31/2022 | SWD | Statutory Warranty Deed | CHRISTOPHER T BATES | COURTNEY WILLS | | | $89,800.00 | 140084 | |
|   | |
| 3 | 11/15/2005 | SWD | Statutory Warranty Deed | CONVERS, JAMES E/JEAN M | BATES, CHRISTOPHER T/KATHRYN A | 0 | 0 | $48,000.00 | 105385 | 0 |
|   | |
Payout Agreement
| No payout information available.. |