Property
Account |
| Property ID: | 28675 | Abbreviated Legal Description: | TRAILS END HOMESITES BLK 4 LOT 49 |
| Parcel # / Geo ID: | 950100439 | Agent Code: | |
| Type: | Real | | |
| Tax Area: | 0213 - 1-49F1E1H2L1 | Land Use Code | 91 |
| Open Space: | N | DFL | N |
| Historic Property: | N | Remodel Property: | N |
| Multi-Family Redevelopment: | N | | |
| Township: | 27N | Section: | 16 |
| Range: | 1E |
Location |
| Address: | 387 SEATTLE DR PORT LUDLOW, WA 98365 | Mapsco: | 140/039 |
| Neighborhood: | TRAILS END HOMESITES (ALL DIVISIONS) | Map ID: | |
| Neighborhood CD: | 3435 |
Owner |
| Name: | TISA L & WILFRIED HOFER | Owner ID: | 109059 |
| Mailing Address: | 8211 S 123RD PL SEATTLE, WA 98178-4416 | % Ownership: | 100.0000000000% |
| | | Exemptions: | |
Pay Tax Due
Select the appropriate checkbox next to the year to be paid. Multiple years may be selected.
*Convenience Fee not included
Taxes and Assessment Details
Property Tax Information as of
03/09/2026
Click on "Statement Details" to expand or collapse a tax statement.
* Please enter a valid date ** Please enter a valid date *
Statement Details |
| 2026 | 18002 | STATE - STATE LEVY (SCHOOL) | $48.29 | $48.27 | $0.00 | $0.00 | $0.00 | $96.56 |
| 2026 | 18002 | COUNTY - COUNTY LEVIES (CE, DD, VET, MH) | $19.31 | $19.30 | $0.00 | $0.00 | $0.00 | $38.61 |
| 2026 | 18002 | CONSERVE - CONSERVATION FUTURES | $0.58 | $0.58 | $0.00 | $0.00 | $0.00 | $1.16 |
| 2026 | 18002 | COROADS - COUNTY ROADS (ROADS, DIV TO CE) | $15.57 | $15.57 | $0.00 | $0.00 | $0.00 | $31.14 |
| 2026 | 18002 | PORTPT - PORT DISTRICT | $7.80 | $7.79 | $0.00 | $0.00 | $0.00 | $15.59 |
| 2026 | 18002 | PUD1 - PUD #1 | $1.26 | $1.25 | $0.00 | $0.00 | $0.00 | $2.51 |
| 2026 | 18002 | LIB1 - LIBRARY DIST #1 | $6.03 | $6.02 | $0.00 | $0.00 | $0.00 | $12.05 |
| 2026 | 18002 | HD2 - HOSP DIST #2 | $1.13 | $1.12 | $0.00 | $0.00 | $0.00 | $2.25 |
| 2026 | 18002 | SD49 - SCHOOL DIST #49 | $26.58 | $26.57 | $0.00 | $0.00 | $0.00 | $53.15 |
| 2026 | 18002 | FD1 - FIRE DISTRICT #1 | $25.56 | $25.56 | $0.00 | $0.00 | $0.00 | $51.12 |
| 2026 | 18002 | EMS1 - FIRE DIST #1 EMS | $9.83 | $9.83 | $0.00 | $0.00 | $0.00 | $19.66 |
| 2026 | 18002 | FP - DNR Forest Fire Protection Assmt | $8.50 | $8.50 | $0.00 | $0.00 | $0.00 | $17.00 |
| 2026 | 18002 | FPLCA - DNR Landowner Contingency Assmt | $3.00 | $3.00 | $0.00 | $0.00 | $0.00 | $6.00 |
| 2026 | 18002 | JCCD - JC Conservation District | $2.53 | $2.53 | $0.00 | $0.00 | $0.00 | $5.06 |
| 2026 | 18002 | NWA - Noxious Weed Assessment | $2.98 | $2.97 | $0.00 | $0.00 | $0.00 | $5.95 |
| 2026 | 18002 | OSS - On Site Septic | $23.10 | $23.10 | $0.00 | $0.00 | $0.00 | $46.20 |
| 2026 | 18002 | WAT - Clean Water District | $13.00 | $13.00 | $0.00 | $0.00 | $0.00 | $26.00 |
| 2026 | 18002 | FP ADMIN - FP ADMIN | $0.50 | $0.00 | $0.00 | $0.00 | $0.00 | $0.50 |
| 2026 | 18002 | TOTAL: | $215.55 | $214.96 | $0.00 | $0.00 | $0.00 | $430.51 |
|
| 2026 | 18002 | $215.55 | $214.96 | $0.00 | $0.00 | $0.00 | $430.51 |
Statement Details |
| 2025 | 18060 | STATE - STATE LEVY (SCHOOL) | $47.96 | $47.96 | $0.00 | $0.00 | $95.92 | $0.00 |
| 2025 | 18060 | COUNTY - COUNTY LEVIES (CE, DD, VET, MH) | $18.87 | $18.85 | $0.00 | $0.00 | $37.72 | $0.00 |
| 2025 | 18060 | CONSERVE - CONSERVATION FUTURES | $0.57 | $0.56 | $0.00 | $0.00 | $1.13 | $0.00 |
| 2025 | 18060 | COROADS - COUNTY ROADS (ROADS, DIV TO CE) | $15.12 | $15.10 | $0.00 | $0.00 | $30.22 | $0.00 |
| 2025 | 18060 | PORTPT - PORT DISTRICT | $7.70 | $7.69 | $0.00 | $0.00 | $15.39 | $0.00 |
| 2025 | 18060 | PUD1 - PUD #1 | $1.24 | $1.23 | $0.00 | $0.00 | $2.47 | $0.00 |
| 2025 | 18060 | LIB1 - LIBRARY DIST #1 | $5.85 | $5.84 | $0.00 | $0.00 | $11.69 | $0.00 |
| 2025 | 18060 | HD2 - HOSP DIST #2 | $1.10 | $1.10 | $0.00 | $0.00 | $2.20 | $0.00 |
| 2025 | 18060 | SD49 - SCHOOL DIST #49 | $25.71 | $25.70 | $0.00 | $0.00 | $51.41 | $0.00 |
| 2025 | 18060 | FD1 - FIRE DISTRICT #1 | $24.89 | $24.89 | $0.00 | $0.00 | $49.78 | $0.00 |
| 2025 | 18060 | EMS1 - FIRE DIST #1 EMS | $9.58 | $9.57 | $0.00 | $0.00 | $19.15 | $0.00 |
| 2025 | 18060 | FP - DNR Forest Fire Protection Assmt | $8.50 | $8.50 | $0.00 | $0.00 | $17.00 | $0.00 |
| 2025 | 18060 | FPLCA - DNR Landowner Contingency Assmt | $3.00 | $3.00 | $0.00 | $0.00 | $6.00 | $0.00 |
| 2025 | 18060 | JCCD - JC Conservation District | $2.53 | $2.53 | $0.00 | $0.00 | $5.06 | $0.00 |
| 2025 | 18060 | NWA - Noxious Weed Assessment | $2.15 | $2.15 | $0.00 | $0.00 | $4.30 | $0.00 |
| 2025 | 18060 | OSS - On Site Septic | $21.50 | $21.50 | $0.00 | $0.00 | $43.00 | $0.00 |
| 2025 | 18060 | WAT - Clean Water District | $13.00 | $13.00 | $0.00 | $0.00 | $26.00 | $0.00 |
| 2025 | 18060 | FP ADMIN - FP ADMIN | $0.50 | $0.00 | $0.00 | $0.00 | $0.50 | $0.00 |
| 2025 | 18060 | TOTAL: | $209.77 | $209.17 | $0.00 | $0.00 | $418.94 | $0.00 |
|
| 2025 | 18060 | $209.77 | $209.17 | $0.00 | $0.00 | $418.94 | $0.00 |
Statement Details |
| 2024 | 18095 | STATE - STATE LEVY (SCHOOL) | $46.28 | $46.26 | $0.00 | $0.00 | $92.54 | $0.00 |
| 2024 | 18095 | COUNTY - COUNTY LEVIES (CE, DD, VET, MH) | $19.81 | $19.79 | $0.00 | $0.00 | $39.60 | $0.00 |
| 2024 | 18095 | CONSERVE - CONSERVATION FUTURES | $0.60 | $0.59 | $0.00 | $0.00 | $1.19 | $0.00 |
| 2024 | 18095 | COROADS - COUNTY ROADS (ROADS, DIV TO CE) | $15.94 | $15.93 | $0.00 | $0.00 | $31.87 | $0.00 |
| 2024 | 18095 | PORTPT - PORT DISTRICT | $8.19 | $8.17 | $0.00 | $0.00 | $16.36 | $0.00 |
| 2024 | 18095 | PUD1 - PUD #1 | $1.30 | $1.30 | $0.00 | $0.00 | $2.60 | $0.00 |
| 2024 | 18095 | LIB1 - LIBRARY DIST #1 | $6.17 | $6.16 | $0.00 | $0.00 | $12.33 | $0.00 |
| 2024 | 18095 | HD2 - HOSP DIST #2 | $1.16 | $1.15 | $0.00 | $0.00 | $2.31 | $0.00 |
| 2024 | 18095 | SD49 - SCHOOL DIST #49 | $20.67 | $20.66 | $0.00 | $0.00 | $41.33 | $0.00 |
| 2024 | 18095 | FD1 - FIRE DISTRICT #1 | $26.18 | $26.18 | $0.00 | $0.00 | $52.36 | $0.00 |
| 2024 | 18095 | EMS1 - FIRE DIST #1 EMS | $10.00 | $10.00 | $0.00 | $0.00 | $20.00 | $0.00 |
| 2024 | 18095 | FP - DNR Forest Fire Protection Assmt | $8.50 | $8.50 | $0.00 | $0.00 | $17.00 | $0.00 |
| 2024 | 18095 | FPLCA - DNR Landowner Contingency Assmt | $3.00 | $3.00 | $0.00 | $0.00 | $6.00 | $0.00 |
| 2024 | 18095 | JCCD - JC Conservation District | $2.53 | $2.53 | $0.00 | $0.00 | $5.06 | $0.00 |
| 2024 | 18095 | NWA - Noxious Weed Assessment | $2.15 | $2.15 | $0.00 | $0.00 | $4.30 | $0.00 |
| 2024 | 18095 | WAT - Clean Water District | $12.50 | $12.50 | $0.00 | $0.00 | $25.00 | $0.00 |
| 2024 | 18095 | FP ADMIN - FP ADMIN | $0.50 | $0.00 | $0.00 | $0.00 | $0.50 | $0.00 |
| 2024 | 18095 | TOTAL: | $185.48 | $184.87 | $0.00 | $0.00 | $370.35 | $0.00 |
|
| 2024 | 18095 | $185.48 | $184.87 | $0.00 | $0.00 | $370.35 | $0.00 |
Statement Details |
| 2023 | 18132 | STATE - STATE LEVY (SCHOOL) | $14.13 | $14.12 | $0.00 | $0.00 | $28.25 | $0.00 |
| 2023 | 18132 | COUNTY - COUNTY LEVIES (CE, DD, VET, MH) | $6.18 | $6.15 | $0.00 | $0.00 | $12.33 | $0.00 |
| 2023 | 18132 | CONSERVE - CONSERVATION FUTURES | $0.19 | $0.18 | $0.00 | $0.00 | $0.37 | $0.00 |
| 2023 | 18132 | COROADS - COUNTY ROADS (ROADS, DIV TO CE) | $4.99 | $4.98 | $0.00 | $0.00 | $9.97 | $0.00 |
| 2023 | 18132 | PORTPT - PORT DISTRICT | $2.60 | $2.59 | $0.00 | $0.00 | $5.19 | $0.00 |
| 2023 | 18132 | PUD1 - PUD #1 | $0.41 | $0.41 | $0.00 | $0.00 | $0.82 | $0.00 |
| 2023 | 18132 | LIB1 - LIBRARY DIST #1 | $1.93 | $1.93 | $0.00 | $0.00 | $3.86 | $0.00 |
| 2023 | 18132 | HD2 - HOSP DIST #2 | $0.37 | $0.35 | $0.00 | $0.00 | $0.72 | $0.00 |
| 2023 | 18132 | SD49 - SCHOOL DIST #49 | $6.61 | $6.60 | $0.00 | $0.00 | $13.21 | $0.00 |
| 2023 | 18132 | FD3 - FIRE DISTRICT #3 | $6.13 | $6.13 | $0.00 | $0.00 | $12.26 | $0.00 |
| 2023 | 18132 | EMS3 - FIRE DIST #3 EMS | $2.19 | $2.19 | $0.00 | $0.00 | $4.38 | $0.00 |
| 2023 | 18132 | FP - DNR Forest Fire Protection Assmt | $8.50 | $8.50 | $0.00 | $0.00 | $17.00 | $0.00 |
| 2023 | 18132 | FPLCA - DNR Landowner Contingency Assmt | $3.00 | $3.00 | $0.00 | $0.00 | $6.00 | $0.00 |
| 2023 | 18132 | JCCD - JC Conservation District | $2.53 | $2.53 | $0.00 | $0.00 | $5.06 | $0.00 |
| 2023 | 18132 | NWA - Noxious Weed Assessment | $2.15 | $2.15 | $0.00 | $0.00 | $4.30 | $0.00 |
| 2023 | 18132 | WAT - Clean Water District | $12.00 | $12.00 | $0.00 | $0.00 | $24.00 | $0.00 |
| 2023 | 18132 | FP ADMIN - FP ADMIN | $0.50 | $0.00 | $0.00 | $0.00 | $0.50 | $0.00 |
| 2023 | 18132 | TOTAL: | $74.41 | $73.81 | $0.00 | $0.00 | $148.22 | $0.00 |
|
| 2023 | 18132 | $74.41 | $73.81 | $0.00 | $0.00 | $148.22 | $0.00 |
Values
| (+) Improvement Homesite Value: | + | $0 | |
| (+) Improvement Non-Homesite Value: | + | $0 | |
| (+) Land Homesite Value: | + | $0 | |
| (+) Land Non-Homesite Value: | + | $42,000 | |
| (+) Curr Use (HS): | + | $0 | $0 |
| (+) Curr Use (NHS): | + | $0 | $0 |
| | | -------------------------- | |
| (=) Market Value: | = | $42,000 | |
| (–) Productivity Loss: | – | $0 | |
| | | -------------------------- | |
| (=) Subtotal: | = | $42,000 | |
| (+) Senior Appraised Value: | + | $0 | |
| (+) Non-Senior Appraised Value: | + | $42,000 | |
| | | -------------------------- | |
| (=) Total Appraised Value: | = | $42,000 | |
| (–) Senior Exemption Loss: | – | $0 | |
| (–) Exemption Loss: | – | $0 | |
| | | -------------------------- | |
| (=) Taxable Value: | = | $42,000 | |
Taxing Jurisdiction
| Owner: | TISA L & WILFRIED HOFER | | |
| % Ownership: | 100.0000000000% | | |
| Total Value: | N/A | | |
| Tax Area: | 0213 - 1-49F1E1H2L1 |
| CE | COUNTY CURRENT EXPENSE | N/A | N/A | N/A | N/A | | |
| CNTYDD | DEVELOPMENTAL DISABILITIES | N/A | N/A | N/A | N/A | | |
| CNTYVET | VETERANS RELIEF | N/A | N/A | N/A | N/A | | |
| MENTAL | MENTAL HEALTH | N/A | N/A | N/A | N/A | | |
| ROADS | COUNTY ROADS | N/A | N/A | N/A | N/A | | |
| HOSP2CASH | HOSP DIST #2 GENERAL | N/A | N/A | N/A | N/A | | |
| SCH49CP | SCHOOL DIST #49 CAP PROJ | N/A | N/A | N/A | N/A | | |
| SCH49MO | SCHOOL DIST #49 EP & O | N/A | N/A | N/A | N/A | | |
| CONSERVE | CONSERVATION FUTURES | N/A | N/A | N/A | N/A | | |
| EMS1 | FIRE DIST #1 EMS | N/A | N/A | N/A | N/A | | |
| FD1 | FIRE DIST #1 GENERAL | N/A | N/A | N/A | N/A | | |
| LIB1 | LIBRARY DIST #1 GENERAL | N/A | N/A | N/A | N/A | | |
| PORTPT | PORT OF PT GENERAL | N/A | N/A | N/A | N/A | | |
| PORTPTIDD | PORT OF PT IDD 2019 | N/A | N/A | N/A | N/A | | |
| PUD1 | PUD #1 GENERAL | N/A | N/A | N/A | N/A | | |
| STATE | STATE SCHOOL PART 1 | N/A | N/A | N/A | N/A | | |
| STATE2 | STATE SCHOOL PART 2 | N/A | N/A | N/A | N/A | | |
| | Total Tax Rate: | N/A | | | | | |
| | | | | Taxes w/Current Exemptions: | N/A | | |
| | | | | Taxes w/o Exemptions: | N/A | | |
Improvement / Building
Sketch
| No sketches available for this property. |
Property Image
Land
| 1 | 3435-1155L | | 0.0000 | 0.00 | 0.00 | 0.00 | 1.00 | $42,000 | $0 |
Roll Value History
| 2026 | N/A | N/A | N/A | N/A | N/A |
| 2025 | $0 | $42,000 | $0 | $42,000 | $42,000 |
| 2024 | $0 | $40,000 | $0 | $40,000 | $40,000 |
| 2023 | $0 | $40,000 | $0 | $40,000 | $40,000 |
| 2022 | $0 | $12,000 | $0 | $12,000 | $12,000 |
Deed and Sales History
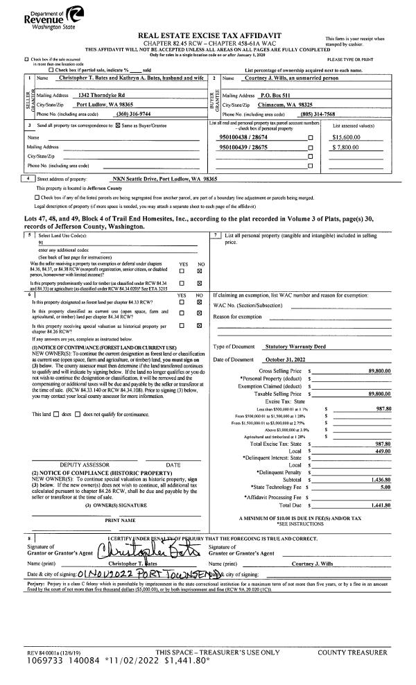
| 1 | 06/08/2023 | SWD | Statutory Warranty Deed | COURTNEY WILLS | TISA L & WILFRIED HOFER | | | $135,000.00 | 141036 | |
|   | |
| 2 | 10/31/2022 | SWD | Statutory Warranty Deed | CHRISTOPHER T BATES | COURTNEY WILLS | | | $89,800.00 | 140084 | |
|   | |
| 3 | 11/15/2005 | SWD | Statutory Warranty Deed | CONVERS, JAMES E/JEAN M | BATES, CHRISTOPHER T/KATHRYN A | 0 | 0 | $48,000.00 | 105385 | 0 |
|   | |
Payout Agreement
| No payout information available.. |