Property
Account |
| Property ID: | 28694 | Abbreviated Legal Description: | TRAILS END 1ST ADDITION BLK 7 LOT 3 SUBJ/EASE |
| Parcel # / Geo ID: | 950100702 | Agent Code: | |
| Type: | Real | | |
| Tax Area: | 0213 - 1-49F1E1H2L1 | Land Use Code | 91 |
| Open Space: | N | DFL | N |
| Historic Property: | N | Remodel Property: | N |
| Multi-Family Redevelopment: | N | | |
| Township: | 27N | Section: | 16 |
| Range: | 1E |
Location |
| Address: | | Mapsco: | 141/008 |
| Neighborhood: | TRAILS END HOMESITES (ALL DIVISIONS) | Map ID: | |
| Neighborhood CD: | 3435 |
Owner |
| Name: | DEBORAH L REITHMEYER TRUST | Owner ID: | 93323 |
| Mailing Address: | DEBORAH L REITHMEYER TRUSTEE 60 SOUTH BEACH DR PORT LUDLOW, WA 98365 | % Ownership: | 100.0000000000% |
| | | Exemptions: | |
Pay Tax Due
Select the appropriate checkbox next to the year to be paid. Multiple years may be selected.
*Convenience Fee not included
Taxes and Assessment Details
Property Tax Information as of
03/12/2026
Click on "Statement Details" to expand or collapse a tax statement.
* Please enter a valid date ** Please enter a valid date *
Statement Details |
| 2026 | 18020 | STATE - STATE LEVY (SCHOOL) | $6.28 | $6.28 | $0.00 | $0.00 | $0.00 | $12.56 |
| 2026 | 18020 | COUNTY - COUNTY LEVIES (CE, DD, VET, MH) | $2.53 | $2.49 | $0.00 | $0.00 | $0.00 | $5.02 |
| 2026 | 18020 | CONSERVE - CONSERVATION FUTURES | $0.08 | $0.07 | $0.00 | $0.00 | $0.00 | $0.15 |
| 2026 | 18020 | COROADS - COUNTY ROADS (ROADS, DIV TO CE) | $2.03 | $2.02 | $0.00 | $0.00 | $0.00 | $4.05 |
| 2026 | 18020 | PORTPT - PORT DISTRICT | $1.02 | $1.01 | $0.00 | $0.00 | $0.00 | $2.03 |
| 2026 | 18020 | PUD1 - PUD #1 | $0.17 | $0.16 | $0.00 | $0.00 | $0.00 | $0.33 |
| 2026 | 18020 | LIB1 - LIBRARY DIST #1 | $0.79 | $0.78 | $0.00 | $0.00 | $0.00 | $1.57 |
| 2026 | 18020 | HD2 - HOSP DIST #2 | $0.15 | $0.14 | $0.00 | $0.00 | $0.00 | $0.29 |
| 2026 | 18020 | SD49 - SCHOOL DIST #49 | $3.46 | $3.45 | $0.00 | $0.00 | $0.00 | $6.91 |
| 2026 | 18020 | FD1 - FIRE DISTRICT #1 | $3.33 | $3.32 | $0.00 | $0.00 | $0.00 | $6.65 |
| 2026 | 18020 | EMS1 - FIRE DIST #1 EMS | $1.28 | $1.28 | $0.00 | $0.00 | $0.00 | $2.56 |
| 2026 | 18020 | JCCD - JC Conservation District | $2.53 | $2.53 | $0.00 | $0.00 | $0.00 | $5.06 |
| 2026 | 18020 | NWA - Noxious Weed Assessment | $2.98 | $2.97 | $0.00 | $0.00 | $0.00 | $5.95 |
| 2026 | 18020 | WAT - Clean Water District | $13.00 | $13.00 | $0.00 | $0.00 | $0.00 | $26.00 |
| 2026 | 18020 | TOTAL: | $39.63 | $39.50 | $0.00 | $0.00 | $0.00 | $79.13 |
|
| 2026 | 18020 | $39.63 | $39.50 | $0.00 | $0.00 | $0.00 | $79.13 |
Statement Details |
| 2025 | 18079 | STATE - STATE LEVY (SCHOOL) | $6.24 | $6.23 | $0.00 | $0.00 | $12.47 | $0.00 |
| 2025 | 18079 | COUNTY - COUNTY LEVIES (CE, DD, VET, MH) | $2.47 | $2.44 | $0.00 | $0.00 | $4.91 | $0.00 |
| 2025 | 18079 | CONSERVE - CONSERVATION FUTURES | $0.08 | $0.07 | $0.00 | $0.00 | $0.15 | $0.00 |
| 2025 | 18079 | COROADS - COUNTY ROADS (ROADS, DIV TO CE) | $1.97 | $1.96 | $0.00 | $0.00 | $3.93 | $0.00 |
| 2025 | 18079 | PORTPT - PORT DISTRICT | $1.01 | $1.00 | $0.00 | $0.00 | $2.01 | $0.00 |
| 2025 | 18079 | PUD1 - PUD #1 | $0.16 | $0.16 | $0.00 | $0.00 | $0.32 | $0.00 |
| 2025 | 18079 | LIB1 - LIBRARY DIST #1 | $0.76 | $0.76 | $0.00 | $0.00 | $1.52 | $0.00 |
| 2025 | 18079 | HD2 - HOSP DIST #2 | $0.15 | $0.14 | $0.00 | $0.00 | $0.29 | $0.00 |
| 2025 | 18079 | SD49 - SCHOOL DIST #49 | $3.35 | $3.33 | $0.00 | $0.00 | $6.68 | $0.00 |
| 2025 | 18079 | FD1 - FIRE DISTRICT #1 | $3.24 | $3.23 | $0.00 | $0.00 | $6.47 | $0.00 |
| 2025 | 18079 | EMS1 - FIRE DIST #1 EMS | $1.25 | $1.24 | $0.00 | $0.00 | $2.49 | $0.00 |
| 2025 | 18079 | JCCD - JC Conservation District | $2.53 | $2.53 | $0.00 | $0.00 | $5.06 | $0.00 |
| 2025 | 18079 | NWA - Noxious Weed Assessment | $2.15 | $2.15 | $0.00 | $0.00 | $4.30 | $0.00 |
| 2025 | 18079 | WAT - Clean Water District | $13.00 | $13.00 | $0.00 | $0.00 | $26.00 | $0.00 |
| 2025 | 18079 | TOTAL: | $38.36 | $38.24 | $0.00 | $0.00 | $76.60 | $0.00 |
|
| 2025 | 18079 | $38.36 | $38.24 | $0.00 | $0.00 | $76.60 | $0.00 |
Statement Details |
| 2024 | 18114 | STATE - STATE LEVY (SCHOOL) | $6.02 | $6.01 | $0.00 | $0.00 | $12.03 | $0.00 |
| 2024 | 18114 | COUNTY - COUNTY LEVIES (CE, DD, VET, MH) | $2.59 | $2.56 | $0.00 | $0.00 | $5.15 | $0.00 |
| 2024 | 18114 | CONSERVE - CONSERVATION FUTURES | $0.08 | $0.07 | $0.00 | $0.00 | $0.15 | $0.00 |
| 2024 | 18114 | COROADS - COUNTY ROADS (ROADS, DIV TO CE) | $2.08 | $2.07 | $0.00 | $0.00 | $4.15 | $0.00 |
| 2024 | 18114 | PORTPT - PORT DISTRICT | $1.07 | $1.06 | $0.00 | $0.00 | $2.13 | $0.00 |
| 2024 | 18114 | PUD1 - PUD #1 | $0.17 | $0.17 | $0.00 | $0.00 | $0.34 | $0.00 |
| 2024 | 18114 | LIB1 - LIBRARY DIST #1 | $0.80 | $0.80 | $0.00 | $0.00 | $1.60 | $0.00 |
| 2024 | 18114 | HD2 - HOSP DIST #2 | $0.15 | $0.15 | $0.00 | $0.00 | $0.30 | $0.00 |
| 2024 | 18114 | SD49 - SCHOOL DIST #49 | $2.69 | $2.68 | $0.00 | $0.00 | $5.37 | $0.00 |
| 2024 | 18114 | FD1 - FIRE DISTRICT #1 | $3.41 | $3.40 | $0.00 | $0.00 | $6.81 | $0.00 |
| 2024 | 18114 | EMS1 - FIRE DIST #1 EMS | $1.30 | $1.30 | $0.00 | $0.00 | $2.60 | $0.00 |
| 2024 | 18114 | JCCD - JC Conservation District | $2.53 | $2.53 | $0.00 | $0.00 | $5.06 | $0.00 |
| 2024 | 18114 | NWA - Noxious Weed Assessment | $2.15 | $2.15 | $0.00 | $0.00 | $4.30 | $0.00 |
| 2024 | 18114 | WAT - Clean Water District | $12.50 | $12.50 | $0.00 | $0.00 | $25.00 | $0.00 |
| 2024 | 18114 | TOTAL: | $37.54 | $37.45 | $0.00 | $0.00 | $74.99 | $0.00 |
|
| 2024 | 18114 | $37.54 | $37.45 | $0.00 | $0.00 | $74.99 | $0.00 |
Statement Details |
| 2023 | 18151 | STATE - STATE LEVY (SCHOOL) | $6.13 | $6.12 | $0.00 | $0.00 | $12.25 | $0.00 |
| 2023 | 18151 | COUNTY - COUNTY LEVIES (CE, DD, VET, MH) | $2.69 | $2.65 | $0.00 | $0.00 | $5.34 | $0.00 |
| 2023 | 18151 | CONSERVE - CONSERVATION FUTURES | $0.08 | $0.08 | $0.00 | $0.00 | $0.16 | $0.00 |
| 2023 | 18151 | COROADS - COUNTY ROADS (ROADS, DIV TO CE) | $2.16 | $2.16 | $0.00 | $0.00 | $4.32 | $0.00 |
| 2023 | 18151 | PORTPT - PORT DISTRICT | $1.13 | $1.12 | $0.00 | $0.00 | $2.25 | $0.00 |
| 2023 | 18151 | PUD1 - PUD #1 | $0.18 | $0.17 | $0.00 | $0.00 | $0.35 | $0.00 |
| 2023 | 18151 | LIB1 - LIBRARY DIST #1 | $0.84 | $0.83 | $0.00 | $0.00 | $1.67 | $0.00 |
| 2023 | 18151 | HD2 - HOSP DIST #2 | $0.16 | $0.15 | $0.00 | $0.00 | $0.31 | $0.00 |
| 2023 | 18151 | SD49 - SCHOOL DIST #49 | $2.86 | $2.86 | $0.00 | $0.00 | $5.72 | $0.00 |
| 2023 | 18151 | FD3 - FIRE DISTRICT #3 | $2.66 | $2.65 | $0.00 | $0.00 | $5.31 | $0.00 |
| 2023 | 18151 | EMS3 - FIRE DIST #3 EMS | $0.95 | $0.95 | $0.00 | $0.00 | $1.90 | $0.00 |
| 2023 | 18151 | JCCD - JC Conservation District | $2.53 | $2.53 | $0.00 | $0.00 | $5.06 | $0.00 |
| 2023 | 18151 | NWA - Noxious Weed Assessment | $2.15 | $2.15 | $0.00 | $0.00 | $4.30 | $0.00 |
| 2023 | 18151 | WAT - Clean Water District | $12.00 | $12.00 | $0.00 | $0.00 | $24.00 | $0.00 |
| 2023 | 18151 | TOTAL: | $36.52 | $36.42 | $0.00 | $0.00 | $72.94 | $0.00 |
|
| 2023 | 18151 | $36.52 | $36.42 | $0.00 | $0.00 | $72.94 | $0.00 |
Values
| (+) Improvement Homesite Value: | + | $0 | |
| (+) Improvement Non-Homesite Value: | + | $0 | |
| (+) Land Homesite Value: | + | $0 | |
| (+) Land Non-Homesite Value: | + | $5,460 | |
| (+) Curr Use (HS): | + | $0 | $0 |
| (+) Curr Use (NHS): | + | $0 | $0 |
| | | -------------------------- | |
| (=) Market Value: | = | $5,460 | |
| (–) Productivity Loss: | – | $0 | |
| | | -------------------------- | |
| (=) Subtotal: | = | $5,460 | |
| (+) Senior Appraised Value: | + | $0 | |
| (+) Non-Senior Appraised Value: | + | $5,460 | |
| | | -------------------------- | |
| (=) Total Appraised Value: | = | $5,460 | |
| (–) Senior Exemption Loss: | – | $0 | |
| (–) Exemption Loss: | – | $0 | |
| | | -------------------------- | |
| (=) Taxable Value: | = | $5,460 | |
Taxing Jurisdiction
| Owner: | DEBORAH L REITHMEYER TRUST | | |
| % Ownership: | 100.0000000000% | | |
| Total Value: | N/A | | |
| Tax Area: | 0213 - 1-49F1E1H2L1 |
| CE | COUNTY CURRENT EXPENSE | N/A | N/A | N/A | N/A | | |
| CNTYDD | DEVELOPMENTAL DISABILITIES | N/A | N/A | N/A | N/A | | |
| CNTYVET | VETERANS RELIEF | N/A | N/A | N/A | N/A | | |
| MENTAL | MENTAL HEALTH | N/A | N/A | N/A | N/A | | |
| ROADS | COUNTY ROADS | N/A | N/A | N/A | N/A | | |
| HOSP2CASH | HOSP DIST #2 GENERAL | N/A | N/A | N/A | N/A | | |
| SCH49CP | SCHOOL DIST #49 CAP PROJ | N/A | N/A | N/A | N/A | | |
| SCH49MO | SCHOOL DIST #49 EP & O | N/A | N/A | N/A | N/A | | |
| CONSERVE | CONSERVATION FUTURES | N/A | N/A | N/A | N/A | | |
| EMS1 | FIRE DIST #1 EMS | N/A | N/A | N/A | N/A | | |
| FD1 | FIRE DIST #1 GENERAL | N/A | N/A | N/A | N/A | | |
| LIB1 | LIBRARY DIST #1 GENERAL | N/A | N/A | N/A | N/A | | |
| PORTPT | PORT OF PT GENERAL | N/A | N/A | N/A | N/A | | |
| PORTPTIDD | PORT OF PT IDD 2019 | N/A | N/A | N/A | N/A | | |
| PUD1 | PUD #1 GENERAL | N/A | N/A | N/A | N/A | | |
| STATE | STATE SCHOOL PART 1 | N/A | N/A | N/A | N/A | | |
| STATE2 | STATE SCHOOL PART 2 | N/A | N/A | N/A | N/A | | |
| | Total Tax Rate: | N/A | | | | | |
| | | | | Taxes w/Current Exemptions: | N/A | | |
| | | | | Taxes w/o Exemptions: | N/A | | |
Improvement / Building
Sketch
| No sketches available for this property. |
Property Image
Land
| 1 | 3435-1113L | | 0.0000 | 0.00 | 0.00 | 0.00 | 1.00 | $5,460 | $0 |
Roll Value History
| 2026 | N/A | N/A | N/A | N/A | N/A |
| 2025 | $0 | $5,460 | $0 | $5,460 | $5,460 |
| 2024 | $0 | $5,200 | $0 | $5,200 | $5,200 |
| 2023 | $0 | $5,200 | $0 | $5,200 | $5,200 |
| 2022 | $0 | $5,200 | $0 | $5,200 | $5,200 |
Deed and Sales History
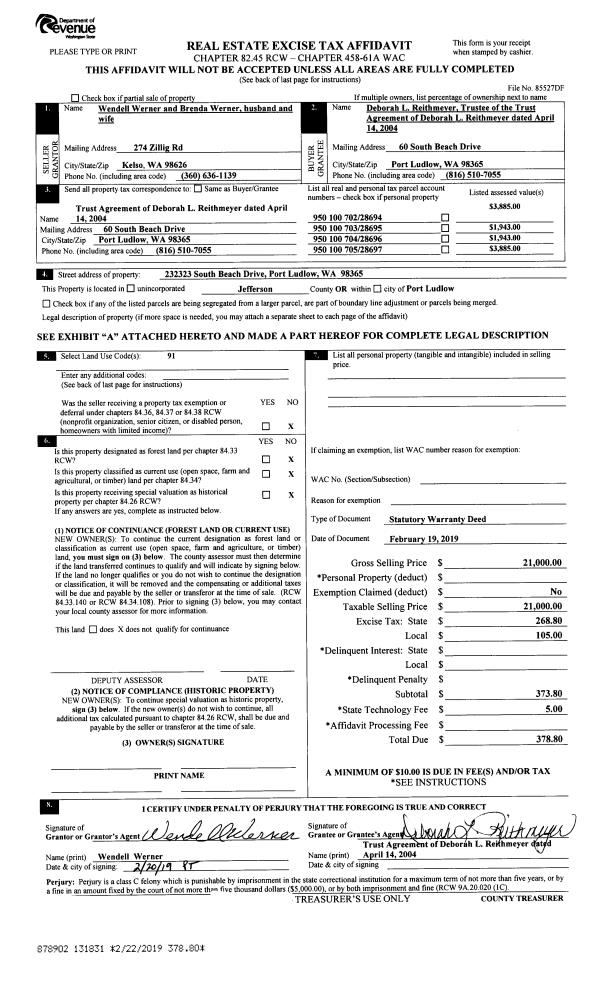
| 1 | 02/19/2019 | SWD | Statutory Warranty Deed | BRENDA WERNER | DEBORAH L REITHMEYER TRUST | | | $21,000.00 | 131831 | |
|   | |
| 2 | 06/15/2006 | QCD | Quit Claim Deed | HARNDEN, MILTON D/JUDITH | WERNER, WENDELL/BRENDA | | | $10,000.00 | 107037 | 0 |
Payout Agreement
| No payout information available.. |