Property
Account |
| Property ID: | 28710 | Abbreviated Legal Description: | TRAIL'S END 1ST ADD BLK 7 LOT 18 |
| Parcel # / Geo ID: | 950100719 | Agent Code: | |
| Type: | Real | | |
| Tax Area: | 0213 - 1-49F1E1H2L1 | Land Use Code | 91 |
| Open Space: | N | DFL | N |
| Historic Property: | N | Remodel Property: | N |
| Multi-Family Redevelopment: | N | | |
| Township: | 27N | Section: | 16 |
| Range: | 1E |
Location |
| Address: | | Mapsco: | 141/026 |
| Neighborhood: | TRAILS END HOMESITES (ALL DIVISIONS) | Map ID: | |
| Neighborhood CD: | 3435 |
Owner |
| Name: | WILSON FAMILY CAMPSITE LLC | Owner ID: | 113163 |
| Mailing Address: | 4860 WASHTENAW AVE STE I BOX 491 ANN ARBOR, MI 48108-3401 | % Ownership: | 100.0000000000% |
| | | Exemptions: | |
Pay Tax Due
Select the appropriate checkbox next to the year to be paid. Multiple years may be selected.
*Convenience Fee not included
Taxes and Assessment Details
Property Tax Information as of
03/17/2026
Click on "Statement Details" to expand or collapse a tax statement.
* Please enter a valid date ** Please enter a valid date *
Statement Details |
| 2026 | 18036 | STATE - STATE LEVY (SCHOOL) | $7.25 | $7.23 | $0.00 | $0.00 | $0.00 | $14.48 |
| 2026 | 18036 | COUNTY - COUNTY LEVIES (CE, DD, VET, MH) | $2.91 | $2.87 | $0.00 | $0.00 | $0.00 | $5.78 |
| 2026 | 18036 | CONSERVE - CONSERVATION FUTURES | $0.09 | $0.08 | $0.00 | $0.00 | $0.00 | $0.17 |
| 2026 | 18036 | COROADS - COUNTY ROADS (ROADS, DIV TO CE) | $2.34 | $2.33 | $0.00 | $0.00 | $0.00 | $4.67 |
| 2026 | 18036 | PORTPT - PORT DISTRICT | $1.17 | $1.17 | $0.00 | $0.00 | $0.00 | $2.34 |
| 2026 | 18036 | PUD1 - PUD #1 | $0.19 | $0.19 | $0.00 | $0.00 | $0.00 | $0.38 |
| 2026 | 18036 | LIB1 - LIBRARY DIST #1 | $0.91 | $0.90 | $0.00 | $0.00 | $0.00 | $1.81 |
| 2026 | 18036 | HD2 - HOSP DIST #2 | $0.17 | $0.17 | $0.00 | $0.00 | $0.00 | $0.34 |
| 2026 | 18036 | SD49 - SCHOOL DIST #49 | $3.99 | $3.99 | $0.00 | $0.00 | $0.00 | $7.98 |
| 2026 | 18036 | FD1 - FIRE DISTRICT #1 | $3.84 | $3.83 | $0.00 | $0.00 | $0.00 | $7.67 |
| 2026 | 18036 | EMS1 - FIRE DIST #1 EMS | $1.48 | $1.47 | $0.00 | $0.00 | $0.00 | $2.95 |
| 2026 | 18036 | FP - DNR Forest Fire Protection Assmt | $8.50 | $8.50 | $0.00 | $0.00 | $0.00 | $17.00 |
| 2026 | 18036 | FPLCA - DNR Landowner Contingency Assmt | $3.00 | $3.00 | $0.00 | $0.00 | $0.00 | $6.00 |
| 2026 | 18036 | JCCD - JC Conservation District | $2.53 | $2.53 | $0.00 | $0.00 | $0.00 | $5.06 |
| 2026 | 18036 | NWA - Noxious Weed Assessment | $2.98 | $2.97 | $0.00 | $0.00 | $0.00 | $5.95 |
| 2026 | 18036 | WAT - Clean Water District | $13.00 | $13.00 | $0.00 | $0.00 | $0.00 | $26.00 |
| 2026 | 18036 | FP ADMIN - FP ADMIN | $0.50 | $0.00 | $0.00 | $0.00 | $0.00 | $0.50 |
| 2026 | 18036 | TOTAL: | $54.85 | $54.23 | $0.00 | $0.00 | $0.00 | $109.08 |
|
| 2026 | 18036 | $54.85 | $54.23 | $0.00 | $0.00 | $0.00 | $109.08 |
Statement Details |
| 2025 | 18095 | STATE - STATE LEVY (SCHOOL) | $2.40 | $0.00 | $0.00 | $0.00 | $2.40 | $0.00 |
| 2025 | 18095 | COUNTY - COUNTY LEVIES (CE, DD, VET, MH) | $0.96 | $0.00 | $0.00 | $0.00 | $0.96 | $0.00 |
| 2025 | 18095 | CONSERVE - CONSERVATION FUTURES | $0.03 | $0.00 | $0.00 | $0.00 | $0.03 | $0.00 |
| 2025 | 18095 | COROADS - COUNTY ROADS (ROADS, DIV TO CE) | $0.76 | $0.00 | $0.00 | $0.00 | $0.76 | $0.00 |
| 2025 | 18095 | PORTPT - PORT DISTRICT | $0.39 | $0.00 | $0.00 | $0.00 | $0.39 | $0.00 |
| 2025 | 18095 | PUD1 - PUD #1 | $0.06 | $0.00 | $0.00 | $0.00 | $0.06 | $0.00 |
| 2025 | 18095 | LIB1 - LIBRARY DIST #1 | $0.29 | $0.00 | $0.00 | $0.00 | $0.29 | $0.00 |
| 2025 | 18095 | HD2 - HOSP DIST #2 | $0.06 | $0.00 | $0.00 | $0.00 | $0.06 | $0.00 |
| 2025 | 18095 | SD49 - SCHOOL DIST #49 | $1.28 | $0.00 | $0.00 | $0.00 | $1.28 | $0.00 |
| 2025 | 18095 | FD1 - FIRE DISTRICT #1 | $1.24 | $0.00 | $0.00 | $0.00 | $1.24 | $0.00 |
| 2025 | 18095 | EMS1 - FIRE DIST #1 EMS | $0.48 | $0.00 | $0.00 | $0.00 | $0.48 | $0.00 |
| 2025 | 18095 | FPLCA - DNR Landowner Contingency Assmt | $6.00 | $0.00 | $0.00 | $0.00 | $6.00 | $0.00 |
| 2025 | 18095 | JCCD - JC Conservation District | $5.06 | $0.00 | $0.00 | $0.00 | $5.06 | $0.00 |
| 2025 | 18095 | NWA - Noxious Weed Assessment | $4.30 | $0.00 | $0.00 | $0.00 | $4.30 | $0.00 |
| 2025 | 18095 | WAT - Clean Water District | $26.00 | $0.00 | $0.00 | $0.00 | $26.00 | $0.00 |
| 2025 | 18095 | TOTAL: | $49.31 | $0.00 | $0.00 | $0.00 | $49.31 | $0.00 |
|
| 2025 | 18095 | $49.31 | $0.00 | $0.00 | $0.00 | $49.31 | $0.00 |
Statement Details |
| 2024 | 0 | FORE2 - FORECLOSURE PHASE 2 | $0.00 | $0.00 | $0.00 | $0.00 | $0.00 | $0.00 |
| 2024 | 0 | TOTAL: | $0.00 | $0.00 | $0.00 | $0.00 | $0.00 | $0.00 |
|
| 2024 | 0 | $0.00 | $0.00 | $0.00 | $0.00 | $0.00 | $0.00 |
Statement Details |
| 2024 | 18130 | STATE - STATE LEVY (SCHOOL) | $2.32 | $0.00 | $0.00 | $0.00 | $2.32 | $0.00 |
| 2024 | 18130 | COUNTY - COUNTY LEVIES (CE, DD, VET, MH) | $1.00 | $0.00 | $0.00 | $0.00 | $1.00 | $0.00 |
| 2024 | 18130 | CONSERVE - CONSERVATION FUTURES | $0.03 | $0.00 | $0.00 | $0.00 | $0.03 | $0.00 |
| 2024 | 18130 | COROADS - COUNTY ROADS (ROADS, DIV TO CE) | $0.80 | $0.00 | $0.00 | $0.00 | $0.80 | $0.00 |
| 2024 | 18130 | PORTPT - PORT DISTRICT | $0.41 | $0.00 | $0.00 | $0.00 | $0.41 | $0.00 |
| 2024 | 18130 | PUD1 - PUD #1 | $0.07 | $0.00 | $0.00 | $0.00 | $0.07 | $0.00 |
| 2024 | 18130 | LIB1 - LIBRARY DIST #1 | $0.31 | $0.00 | $0.00 | $0.00 | $0.31 | $0.00 |
| 2024 | 18130 | HD2 - HOSP DIST #2 | $0.06 | $0.00 | $0.00 | $0.00 | $0.06 | $0.00 |
| 2024 | 18130 | SD49 - SCHOOL DIST #49 | $1.03 | $0.00 | $0.00 | $0.00 | $1.03 | $0.00 |
| 2024 | 18130 | FD1 - FIRE DISTRICT #1 | $1.31 | $0.00 | $0.00 | $0.00 | $1.31 | $0.00 |
| 2024 | 18130 | EMS1 - FIRE DIST #1 EMS | $0.50 | $0.00 | $0.00 | $0.00 | $0.50 | $0.00 |
| 2024 | 18130 | FPLCA - DNR Landowner Contingency Assmt | $6.00 | $0.00 | $0.00 | $0.00 | $6.00 | $0.00 |
| 2024 | 18130 | JCCD - JC Conservation District | $5.06 | $0.00 | $0.00 | $0.00 | $5.06 | $0.00 |
| 2024 | 18130 | NWA - Noxious Weed Assessment | $4.30 | $0.00 | $0.00 | $0.00 | $4.30 | $0.00 |
| 2024 | 18130 | WAT - Clean Water District | $25.00 | $0.00 | $0.00 | $0.00 | $25.00 | $0.00 |
| 2024 | 18130 | TOTAL: | $48.20 | $0.00 | $0.00 | $0.00 | $48.20 | $0.00 |
|
| 2024 | 18130 | $48.20 | $0.00 | $0.00 | $0.00 | $48.20 | $0.00 |
Statement Details |
| 2023 | 18167 | STATE - STATE LEVY (SCHOOL) | $1.18 | $1.17 | $0.00 | $0.00 | $2.35 | $0.00 |
| 2023 | 18167 | COUNTY - COUNTY LEVIES (CE, DD, VET, MH) | $0.54 | $0.50 | $0.00 | $0.00 | $1.04 | $0.00 |
| 2023 | 18167 | CONSERVE - CONSERVATION FUTURES | $0.02 | $0.01 | $0.00 | $0.00 | $0.03 | $0.00 |
| 2023 | 18167 | COROADS - COUNTY ROADS (ROADS, DIV TO CE) | $0.42 | $0.41 | $0.00 | $0.00 | $0.83 | $0.00 |
| 2023 | 18167 | PORTPT - PORT DISTRICT | $0.23 | $0.21 | $0.00 | $0.00 | $0.44 | $0.00 |
| 2023 | 18167 | PUD1 - PUD #1 | $0.04 | $0.03 | $0.00 | $0.00 | $0.07 | $0.00 |
| 2023 | 18167 | LIB1 - LIBRARY DIST #1 | $0.16 | $0.16 | $0.00 | $0.00 | $0.32 | $0.00 |
| 2023 | 18167 | HD2 - HOSP DIST #2 | $0.04 | $0.02 | $0.00 | $0.00 | $0.06 | $0.00 |
| 2023 | 18167 | SD49 - SCHOOL DIST #49 | $0.55 | $0.55 | $0.00 | $0.00 | $1.10 | $0.00 |
| 2023 | 18167 | FD3 - FIRE DISTRICT #3 | $0.51 | $0.51 | $0.00 | $0.00 | $1.02 | $0.00 |
| 2023 | 18167 | EMS3 - FIRE DIST #3 EMS | $0.19 | $0.18 | $0.00 | $0.00 | $0.37 | $0.00 |
| 2023 | 18167 | FP - DNR Forest Fire Protection Assmt | $8.50 | $8.50 | $0.00 | $0.00 | $17.00 | $0.00 |
| 2023 | 18167 | FPLCA - DNR Landowner Contingency Assmt | $3.00 | $3.00 | $0.00 | $0.00 | $6.00 | $0.00 |
| 2023 | 18167 | JCCD - JC Conservation District | $2.53 | $2.53 | $0.00 | $0.00 | $5.06 | $0.00 |
| 2023 | 18167 | NWA - Noxious Weed Assessment | $2.15 | $2.15 | $0.00 | $0.00 | $4.30 | $0.00 |
| 2023 | 18167 | WAT - Clean Water District | $12.00 | $12.00 | $0.00 | $0.00 | $24.00 | $0.00 |
| 2023 | 18167 | FP ADMIN - FP ADMIN | $0.50 | $0.00 | $0.00 | $0.00 | $0.50 | $0.00 |
| 2023 | 18167 | TOTAL: | $32.56 | $31.93 | $0.00 | $0.00 | $64.49 | $0.00 |
|
| 2023 | 18167 | $32.56 | $31.93 | $0.00 | $0.00 | $64.49 | $0.00 |
Values
| (+) Improvement Homesite Value: | + | $0 | |
| (+) Improvement Non-Homesite Value: | + | $0 | |
| (+) Land Homesite Value: | + | $0 | |
| (+) Land Non-Homesite Value: | + | $6,300 | |
| (+) Curr Use (HS): | + | $0 | $0 |
| (+) Curr Use (NHS): | + | $0 | $0 |
| | | -------------------------- | |
| (=) Market Value: | = | $6,300 | |
| (–) Productivity Loss: | – | $0 | |
| | | -------------------------- | |
| (=) Subtotal: | = | $6,300 | |
| (+) Senior Appraised Value: | + | $0 | |
| (+) Non-Senior Appraised Value: | + | $6,300 | |
| | | -------------------------- | |
| (=) Total Appraised Value: | = | $6,300 | |
| (–) Senior Exemption Loss: | – | $0 | |
| (–) Exemption Loss: | – | $0 | |
| | | -------------------------- | |
| (=) Taxable Value: | = | $6,300 | |
Taxing Jurisdiction
| Owner: | WILSON FAMILY CAMPSITE LLC | | |
| % Ownership: | 100.0000000000% | | |
| Total Value: | $6,300 | | |
| Tax Area: | 0213 - 1-49F1E1H2L1 |
| CE | COUNTY CURRENT EXPENSE | 0.9034619479 | $6,300 | $6,300 | $5.69 | | |
| CNTYDD | DEVELOPMENTAL DISABILITIES | 0.0052121823 | $6,300 | $6,300 | $0.03 | | |
| CNTYVET | VETERANS RELIEF | 0.0052777810 | $6,300 | $6,300 | $0.03 | | |
| MENTAL | MENTAL HEALTH | 0.0052121823 | $6,300 | $6,300 | $0.03 | | |
| ROADS | COUNTY ROADS | 0.7415066410 | $6,300 | $6,300 | $4.67 | | |
| ROADSCU | COUNTY ROADS TO CUR EXP | 0.0000000000 | $6,300 | $6,300 | $0.00 | | |
| HOSP2CASH | HOSP DIST #2 GENERAL | 0.0536075306 | $6,300 | $6,300 | $0.34 | | |
| SCH49CP | SCHOOL DIST #49 CAP PROJ | 0.6279093905 | $6,300 | $6,300 | $3.96 | | |
| SCH49MO | SCHOOL DIST #49 EP & O | 0.6376483602 | $6,300 | $6,300 | $4.02 | | |
| CONSERVE | CONSERVATION FUTURES | 0.0275621078 | $6,300 | $6,300 | $0.17 | | |
| EMS1 | FIRE DIST #1 EMS | 0.4679948282 | $6,300 | $6,300 | $2.95 | | |
| FD1 | FIRE DIST #1 GENERAL | 1.2171942929 | $6,300 | $6,300 | $7.67 | | |
| LIB1 | LIBRARY DIST #1 GENERAL | 0.2868827388 | $6,300 | $6,300 | $1.81 | | |
| PORTPT | PORT OF PT GENERAL | 0.1134941229 | $6,300 | $6,300 | $0.72 | | |
| PORTPTIDD | PORT OF PT IDD 2019 | 0.2577346692 | $6,300 | $6,300 | $1.62 | | |
| PUD1 | PUD #1 GENERAL | 0.0597888892 | $6,300 | $6,300 | $0.38 | | |
| STATE | STATE SCHOOL PART 1 | 1.4940692947 | $6,300 | $6,300 | $9.41 | | |
| STATE2 | STATE SCHOOL PART 2 | 0.8050170049 | $6,300 | $6,300 | $5.07 | | |
| | Total Tax Rate: | 7.7095739644 | | | | | |
| | | | | Taxes w/Current Exemptions: | $48.57 | | |
| | | | | Taxes w/o Exemptions: | $48.57 | | |
Improvement / Building
Sketch
| No sketches available for this property. |
Property Image
Land
| 1 | 3435-1178L | | 0.0000 | 0.00 | 0.00 | 0.00 | 1.00 | $6,300 | $0 |
Roll Value History
| 2026 | N/A | N/A | N/A | N/A | N/A |
| 2025 | $0 | $6,300 | $0 | $6,300 | $6,300 |
| 2024 | $0 | $1,000 | $0 | $1,000 | $1,000 |
| 2023 | $0 | $1,000 | $0 | $1,000 | $1,000 |
| 2022 | $0 | $1,000 | $0 | $1,000 | $1,000 |
Deed and Sales History
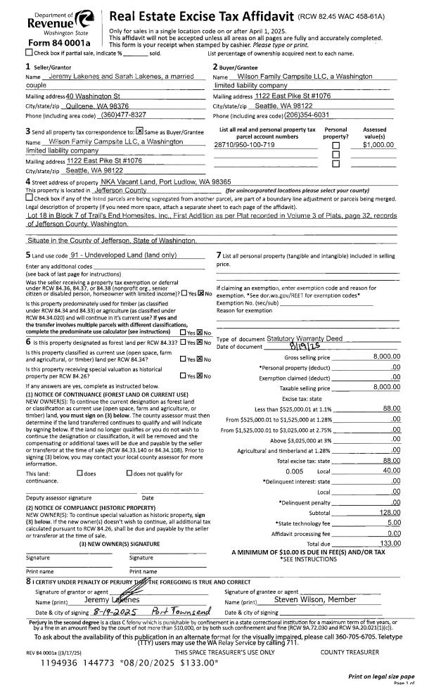
| 1 | 08/19/2025 | SWD | Statutory Warranty Deed | JEREMY & SARAH LAKENES | WILSON FAMILY CAMPSITE LLC | | | $8,000.00 | 144773 | |
| 2 | 12/15/2023 | TXD | Tax Deed | JEFFERSON COUNTY TREASURER | JEREMY & SARAH LAKENES | | | $2,171.00 | 142018 | |
Payout Agreement
| No payout information available.. |