Property
Account |
| Property ID: | 28753 | Abbreviated Legal Description: | TRAIL'S END 2ND ADD BLK 11 LOTS 2 & 3 |
| Parcel # / Geo ID: | 950101102 | Agent Code: | |
| Type: | Real | | |
| Tax Area: | 0213 - 1-49F1E1H2L1 | Land Use Code | 91 |
| Open Space: | N | DFL | N |
| Historic Property: | N | Remodel Property: | N |
| Multi-Family Redevelopment: | N | | |
| Township: | 27N | Section: | 16 |
| Range: | 1E |
Location |
| Address: | | Mapsco: | 142/002 |
| Neighborhood: | TRAILS END HOMESITES (ALL DIVISIONS) | Map ID: | |
| Neighborhood CD: | 3435 |
Owner |
| Name: | LARRY A & RAYLEE W JENSEN | Owner ID: | 109618 |
| Mailing Address: | 420 AEROVIEW DR YAKIMA, WA 98908-8061 | % Ownership: | 100.0000000000% |
| | | Exemptions: | |
Pay Tax Due
Select the appropriate checkbox next to the year to be paid. Multiple years may be selected.
*Convenience Fee not included
Taxes and Assessment Details
Property Tax Information as of
03/12/2026
Click on "Statement Details" to expand or collapse a tax statement.
* Please enter a valid date ** Please enter a valid date *
Statement Details |
| 2026 | 18079 | STATE - STATE LEVY (SCHOOL) | $45.27 | $45.26 | $0.00 | $0.00 | $45.27 | $45.26 |
| 2026 | 18079 | COUNTY - COUNTY LEVIES (CE, DD, VET, MH) | $18.12 | $18.08 | $0.00 | $0.00 | $18.12 | $18.08 |
| 2026 | 18079 | CONSERVE - CONSERVATION FUTURES | $0.55 | $0.54 | $0.00 | $0.00 | $0.55 | $0.54 |
| 2026 | 18079 | COROADS - COUNTY ROADS (ROADS, DIV TO CE) | $14.60 | $14.60 | $0.00 | $0.00 | $14.60 | $14.60 |
| 2026 | 18079 | PORTPT - PORT DISTRICT | $7.32 | $7.30 | $0.00 | $0.00 | $7.32 | $7.30 |
| 2026 | 18079 | PUD1 - PUD #1 | $1.18 | $1.17 | $0.00 | $0.00 | $1.18 | $1.17 |
| 2026 | 18079 | LIB1 - LIBRARY DIST #1 | $5.65 | $5.65 | $0.00 | $0.00 | $5.65 | $5.65 |
| 2026 | 18079 | HD2 - HOSP DIST #2 | $1.06 | $1.05 | $0.00 | $0.00 | $1.06 | $1.05 |
| 2026 | 18079 | SD49 - SCHOOL DIST #49 | $24.92 | $24.91 | $0.00 | $0.00 | $24.92 | $24.91 |
| 2026 | 18079 | FD1 - FIRE DISTRICT #1 | $23.97 | $23.96 | $0.00 | $0.00 | $23.97 | $23.96 |
| 2026 | 18079 | EMS1 - FIRE DIST #1 EMS | $9.22 | $9.21 | $0.00 | $0.00 | $9.22 | $9.21 |
| 2026 | 18079 | FP - DNR Forest Fire Protection Assmt | $8.50 | $8.50 | $0.00 | $0.00 | $8.50 | $8.50 |
| 2026 | 18079 | FPLCA - DNR Landowner Contingency Assmt | $3.00 | $3.00 | $0.00 | $0.00 | $3.00 | $3.00 |
| 2026 | 18079 | JCCD - JC Conservation District | $2.53 | $2.53 | $0.00 | $0.00 | $2.53 | $2.53 |
| 2026 | 18079 | NWA - Noxious Weed Assessment | $2.98 | $2.97 | $0.00 | $0.00 | $2.98 | $2.97 |
| 2026 | 18079 | WAT - Clean Water District | $13.00 | $13.00 | $0.00 | $0.00 | $13.00 | $13.00 |
| 2026 | 18079 | FP ADMIN - FP ADMIN | $0.50 | $0.00 | $0.00 | $0.00 | $0.50 | $0.00 |
| 2026 | 18079 | TOTAL: | $182.37 | $181.73 | $0.00 | $0.00 | $182.37 | $181.73 |
|
| 2026 | 18079 | $182.37 | $181.73 | $0.00 | $0.00 | $182.37 | $181.73 |
Statement Details |
| 2025 | 18138 | STATE - STATE LEVY (SCHOOL) | $44.97 | $44.96 | $0.00 | $0.00 | $89.93 | $0.00 |
| 2025 | 18138 | COUNTY - COUNTY LEVIES (CE, DD, VET, MH) | $17.68 | $17.68 | $0.00 | $0.00 | $35.36 | $0.00 |
| 2025 | 18138 | CONSERVE - CONSERVATION FUTURES | $0.53 | $0.53 | $0.00 | $0.00 | $1.06 | $0.00 |
| 2025 | 18138 | COROADS - COUNTY ROADS (ROADS, DIV TO CE) | $14.17 | $14.16 | $0.00 | $0.00 | $28.33 | $0.00 |
| 2025 | 18138 | PORTPT - PORT DISTRICT | $7.22 | $7.21 | $0.00 | $0.00 | $14.43 | $0.00 |
| 2025 | 18138 | PUD1 - PUD #1 | $1.16 | $1.15 | $0.00 | $0.00 | $2.31 | $0.00 |
| 2025 | 18138 | LIB1 - LIBRARY DIST #1 | $5.48 | $5.48 | $0.00 | $0.00 | $10.96 | $0.00 |
| 2025 | 18138 | HD2 - HOSP DIST #2 | $1.03 | $1.03 | $0.00 | $0.00 | $2.06 | $0.00 |
| 2025 | 18138 | SD49 - SCHOOL DIST #49 | $24.10 | $24.09 | $0.00 | $0.00 | $48.19 | $0.00 |
| 2025 | 18138 | FD1 - FIRE DISTRICT #1 | $23.34 | $23.33 | $0.00 | $0.00 | $46.67 | $0.00 |
| 2025 | 18138 | EMS1 - FIRE DIST #1 EMS | $8.98 | $8.97 | $0.00 | $0.00 | $17.95 | $0.00 |
| 2025 | 18138 | FP - DNR Forest Fire Protection Assmt | $8.50 | $8.50 | $0.00 | $0.00 | $17.00 | $0.00 |
| 2025 | 18138 | FPLCA - DNR Landowner Contingency Assmt | $3.00 | $3.00 | $0.00 | $0.00 | $6.00 | $0.00 |
| 2025 | 18138 | JCCD - JC Conservation District | $2.53 | $2.53 | $0.00 | $0.00 | $5.06 | $0.00 |
| 2025 | 18138 | NWA - Noxious Weed Assessment | $2.15 | $2.15 | $0.00 | $0.00 | $4.30 | $0.00 |
| 2025 | 18138 | WAT - Clean Water District | $13.00 | $13.00 | $0.00 | $0.00 | $26.00 | $0.00 |
| 2025 | 18138 | FP ADMIN - FP ADMIN | $0.50 | $0.00 | $0.00 | $0.00 | $0.50 | $0.00 |
| 2025 | 18138 | TOTAL: | $178.34 | $177.77 | $0.00 | $0.00 | $356.11 | $0.00 |
|
| 2025 | 18138 | $178.34 | $177.77 | $0.00 | $0.00 | $356.11 | $0.00 |
Statement Details |
| 2024 | 18173 | STATE - STATE LEVY (SCHOOL) | $43.39 | $43.37 | $0.00 | $0.00 | $86.76 | $0.00 |
| 2024 | 18173 | COUNTY - COUNTY LEVIES (CE, DD, VET, MH) | $18.58 | $18.54 | $0.00 | $0.00 | $37.12 | $0.00 |
| 2024 | 18173 | CONSERVE - CONSERVATION FUTURES | $0.56 | $0.55 | $0.00 | $0.00 | $1.11 | $0.00 |
| 2024 | 18173 | COROADS - COUNTY ROADS (ROADS, DIV TO CE) | $14.94 | $14.93 | $0.00 | $0.00 | $29.87 | $0.00 |
| 2024 | 18173 | PORTPT - PORT DISTRICT | $7.67 | $7.66 | $0.00 | $0.00 | $15.33 | $0.00 |
| 2024 | 18173 | PUD1 - PUD #1 | $1.22 | $1.22 | $0.00 | $0.00 | $2.44 | $0.00 |
| 2024 | 18173 | LIB1 - LIBRARY DIST #1 | $5.78 | $5.78 | $0.00 | $0.00 | $11.56 | $0.00 |
| 2024 | 18173 | HD2 - HOSP DIST #2 | $1.09 | $1.08 | $0.00 | $0.00 | $2.17 | $0.00 |
| 2024 | 18173 | SD49 - SCHOOL DIST #49 | $19.37 | $19.37 | $0.00 | $0.00 | $38.74 | $0.00 |
| 2024 | 18173 | FD1 - FIRE DISTRICT #1 | $24.55 | $24.54 | $0.00 | $0.00 | $49.09 | $0.00 |
| 2024 | 18173 | EMS1 - FIRE DIST #1 EMS | $9.38 | $9.37 | $0.00 | $0.00 | $18.75 | $0.00 |
| 2024 | 18173 | FP - DNR Forest Fire Protection Assmt | $8.50 | $8.50 | $0.00 | $0.00 | $17.00 | $0.00 |
| 2024 | 18173 | FPLCA - DNR Landowner Contingency Assmt | $3.00 | $3.00 | $0.00 | $0.00 | $6.00 | $0.00 |
| 2024 | 18173 | JCCD - JC Conservation District | $2.53 | $2.53 | $0.00 | $0.00 | $5.06 | $0.00 |
| 2024 | 18173 | NWA - Noxious Weed Assessment | $2.15 | $2.15 | $0.00 | $0.00 | $4.30 | $0.00 |
| 2024 | 18173 | WAT - Clean Water District | $12.50 | $12.50 | $0.00 | $0.00 | $25.00 | $0.00 |
| 2024 | 18173 | FP ADMIN - FP ADMIN | $0.50 | $0.00 | $0.00 | $0.00 | $0.50 | $0.00 |
| 2024 | 18173 | TOTAL: | $175.71 | $175.09 | $0.00 | $0.00 | $350.80 | $0.00 |
|
| 2024 | 18173 | $175.71 | $175.09 | $0.00 | $0.00 | $350.80 | $0.00 |
Statement Details |
| 2023 | 18210 | STATE - STATE LEVY (SCHOOL) | $44.14 | $44.14 | $0.00 | $0.00 | $88.28 | $0.00 |
| 2023 | 18210 | COUNTY - COUNTY LEVIES (CE, DD, VET, MH) | $19.26 | $19.26 | $0.00 | $0.00 | $38.52 | $0.00 |
| 2023 | 18210 | CONSERVE - CONSERVATION FUTURES | $0.58 | $0.58 | $0.00 | $0.00 | $1.16 | $0.00 |
| 2023 | 18210 | COROADS - COUNTY ROADS (ROADS, DIV TO CE) | $15.58 | $15.58 | $0.00 | $0.00 | $31.16 | $0.00 |
| 2023 | 18210 | PORTPT - PORT DISTRICT | $8.12 | $8.11 | $0.00 | $0.00 | $16.23 | $0.00 |
| 2023 | 18210 | PUD1 - PUD #1 | $1.28 | $1.27 | $0.00 | $0.00 | $2.55 | $0.00 |
| 2023 | 18210 | LIB1 - LIBRARY DIST #1 | $6.03 | $6.03 | $0.00 | $0.00 | $12.06 | $0.00 |
| 2023 | 18210 | HD2 - HOSP DIST #2 | $1.13 | $1.12 | $0.00 | $0.00 | $2.25 | $0.00 |
| 2023 | 18210 | SD49 - SCHOOL DIST #49 | $20.64 | $20.63 | $0.00 | $0.00 | $41.27 | $0.00 |
| 2023 | 18210 | FD3 - FIRE DISTRICT #3 | $19.17 | $19.16 | $0.00 | $0.00 | $38.33 | $0.00 |
| 2023 | 18210 | EMS3 - FIRE DIST #3 EMS | $6.85 | $6.85 | $0.00 | $0.00 | $13.70 | $0.00 |
| 2023 | 18210 | FP - DNR Forest Fire Protection Assmt | $8.50 | $8.50 | $0.00 | $0.00 | $17.00 | $0.00 |
| 2023 | 18210 | FPLCA - DNR Landowner Contingency Assmt | $3.00 | $3.00 | $0.00 | $0.00 | $6.00 | $0.00 |
| 2023 | 18210 | JCCD - JC Conservation District | $2.53 | $2.53 | $0.00 | $0.00 | $5.06 | $0.00 |
| 2023 | 18210 | NWA - Noxious Weed Assessment | $2.15 | $2.15 | $0.00 | $0.00 | $4.30 | $0.00 |
| 2023 | 18210 | WAT - Clean Water District | $12.00 | $12.00 | $0.00 | $0.00 | $24.00 | $0.00 |
| 2023 | 18210 | FP ADMIN - FP ADMIN | $0.50 | $0.00 | $0.00 | $0.00 | $0.50 | $0.00 |
| 2023 | 18210 | TOTAL: | $171.46 | $170.91 | $0.00 | $0.00 | $342.37 | $0.00 |
|
| 2023 | 18210 | $171.46 | $170.91 | $0.00 | $0.00 | $342.37 | $0.00 |
Values
| (+) Improvement Homesite Value: | + | $0 | |
| (+) Improvement Non-Homesite Value: | + | $0 | |
| (+) Land Homesite Value: | + | $0 | |
| (+) Land Non-Homesite Value: | + | $39,375 | |
| (+) Curr Use (HS): | + | $0 | $0 |
| (+) Curr Use (NHS): | + | $0 | $0 |
| | | -------------------------- | |
| (=) Market Value: | = | $39,375 | |
| (–) Productivity Loss: | – | $0 | |
| | | -------------------------- | |
| (=) Subtotal: | = | $39,375 | |
| (+) Senior Appraised Value: | + | $0 | |
| (+) Non-Senior Appraised Value: | + | $39,375 | |
| | | -------------------------- | |
| (=) Total Appraised Value: | = | $39,375 | |
| (–) Senior Exemption Loss: | – | $0 | |
| (–) Exemption Loss: | – | $0 | |
| | | -------------------------- | |
| (=) Taxable Value: | = | $39,375 | |
Taxing Jurisdiction
| Owner: | LARRY A & RAYLEE W JENSEN | | |
| % Ownership: | 100.0000000000% | | |
| Total Value: | $39,375 | | |
| Tax Area: | 0213 - 1-49F1E1H2L1 |
| CE | COUNTY CURRENT EXPENSE | 0.9034619479 | $39,375 | $39,375 | $35.57 | | |
| CNTYDD | DEVELOPMENTAL DISABILITIES | 0.0052121823 | $39,375 | $39,375 | $0.21 | | |
| CNTYVET | VETERANS RELIEF | 0.0052777810 | $39,375 | $39,375 | $0.21 | | |
| MENTAL | MENTAL HEALTH | 0.0052121823 | $39,375 | $39,375 | $0.21 | | |
| ROADS | COUNTY ROADS | 0.7415066410 | $39,375 | $39,375 | $29.20 | | |
| ROADSCU | COUNTY ROADS TO CUR EXP | 0.0000000000 | $39,375 | $39,375 | $0.00 | | |
| HOSP2CASH | HOSP DIST #2 GENERAL | 0.0536075306 | $39,375 | $39,375 | $2.11 | | |
| SCH49CP | SCHOOL DIST #49 CAP PROJ | 0.6279093905 | $39,375 | $39,375 | $24.72 | | |
| SCH49MO | SCHOOL DIST #49 EP & O | 0.6376483602 | $39,375 | $39,375 | $25.11 | | |
| CONSERVE | CONSERVATION FUTURES | 0.0275621078 | $39,375 | $39,375 | $1.09 | | |
| EMS1 | FIRE DIST #1 EMS | 0.4679948282 | $39,375 | $39,375 | $18.43 | | |
| FD1 | FIRE DIST #1 GENERAL | 1.2171942929 | $39,375 | $39,375 | $47.93 | | |
| LIB1 | LIBRARY DIST #1 GENERAL | 0.2868827388 | $39,375 | $39,375 | $11.30 | | |
| PORTPT | PORT OF PT GENERAL | 0.1134941229 | $39,375 | $39,375 | $4.47 | | |
| PORTPTIDD | PORT OF PT IDD 2019 | 0.2577346692 | $39,375 | $39,375 | $10.15 | | |
| PUD1 | PUD #1 GENERAL | 0.0597888892 | $39,375 | $39,375 | $2.35 | | |
| STATE | STATE SCHOOL PART 1 | 1.4940692947 | $39,375 | $39,375 | $58.83 | | |
| STATE2 | STATE SCHOOL PART 2 | 0.8050170049 | $39,375 | $39,375 | $31.70 | | |
| | Total Tax Rate: | 7.7095739644 | | | | | |
| | | | | Taxes w/Current Exemptions: | $303.59 | | |
| | | | | Taxes w/o Exemptions: | $303.59 | | |
Improvement / Building
Sketch
| No sketches available for this property. |
Property Image
Land
| 1 | 3435-1175L | | 0.0000 | 0.00 | 0.00 | 0.00 | 1.00 | $39,375 | $0 |
Roll Value History
| 2026 | N/A | N/A | N/A | N/A | N/A |
| 2025 | $0 | $39,375 | $0 | $39,375 | $39,375 |
| 2024 | $0 | $37,500 | $0 | $37,500 | $37,500 |
| 2023 | $0 | $37,500 | $0 | $37,500 | $37,500 |
| 2022 | $0 | $37,500 | $0 | $37,500 | $37,500 |
Deed and Sales History
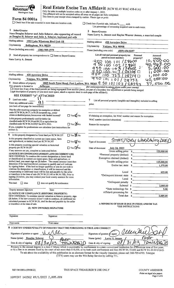
| 1 | 07/24/2023 | SWD | Statutory Warranty Deed | DOUGLAS SCHERER | LARRY A & RAYLEE W JENSEN | | | $125,000.00 | 141502 | |
|   | |
Payout Agreement
| No payout information available.. |