Property
Account |
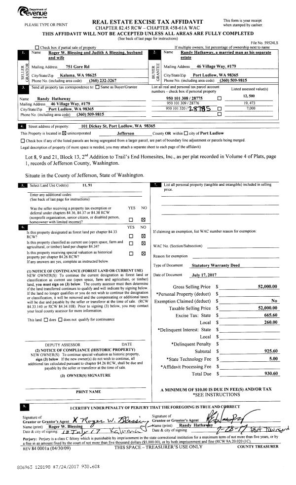
| Property ID: | 28775 | Abbreviated Legal Description: | TRAIL'S END 2ND ADD BLK 13 LOT 8 |
| Parcel # / Geo ID: | 950101308 | Agent Code: | |
| Type: | Real | | |
| Tax Area: | 0213 - 1-49F1E1H2L1 | Land Use Code | 91 |
| Open Space: | N | DFL | N |
| Historic Property: | N | Remodel Property: | N |
| Multi-Family Redevelopment: | N | | |
| Township: | 27N | Section: | 16 |
| Range: | 1E |
Location |
| Address: | | Mapsco: | 142/025 |
| Neighborhood: | TRAILS END HOMESITES (ALL DIVISIONS) | Map ID: | |
| Neighborhood CD: | 3435 |
Owner |
| Name: | RANDY E HATHAWAY | Owner ID: | 93177 |
| Mailing Address: | 101 DICKEY ST PORT LUDLOW, WA 98365-9518 | % Ownership: | 100.0000000000% |
| | | Exemptions: | |
Pay Tax Due
Select the appropriate checkbox next to the year to be paid. Multiple years may be selected.
*Convenience Fee not included
Taxes and Assessment Details
Property Tax Information as of
03/12/2026
Click on "Statement Details" to expand or collapse a tax statement.
* Please enter a valid date ** Please enter a valid date *
Statement Details |
| 2026 | 18101 | STATE - STATE LEVY (SCHOOL) | $24.15 | $24.14 | $0.00 | $0.00 | $0.00 | $48.29 |
| 2026 | 18101 | COUNTY - COUNTY LEVIES (CE, DD, VET, MH) | $9.67 | $9.63 | $0.00 | $0.00 | $0.00 | $19.30 |
| 2026 | 18101 | CONSERVE - CONSERVATION FUTURES | $0.29 | $0.29 | $0.00 | $0.00 | $0.00 | $0.58 |
| 2026 | 18101 | COROADS - COUNTY ROADS (ROADS, DIV TO CE) | $7.79 | $7.78 | $0.00 | $0.00 | $0.00 | $15.57 |
| 2026 | 18101 | PORTPT - PORT DISTRICT | $3.90 | $3.89 | $0.00 | $0.00 | $0.00 | $7.79 |
| 2026 | 18101 | PUD1 - PUD #1 | $0.63 | $0.63 | $0.00 | $0.00 | $0.00 | $1.26 |
| 2026 | 18101 | LIB1 - LIBRARY DIST #1 | $3.01 | $3.01 | $0.00 | $0.00 | $0.00 | $6.02 |
| 2026 | 18101 | HD2 - HOSP DIST #2 | $0.57 | $0.56 | $0.00 | $0.00 | $0.00 | $1.13 |
| 2026 | 18101 | SD49 - SCHOOL DIST #49 | $13.30 | $13.28 | $0.00 | $0.00 | $0.00 | $26.58 |
| 2026 | 18101 | FD1 - FIRE DISTRICT #1 | $12.78 | $12.78 | $0.00 | $0.00 | $0.00 | $25.56 |
| 2026 | 18101 | EMS1 - FIRE DIST #1 EMS | $4.92 | $4.91 | $0.00 | $0.00 | $0.00 | $9.83 |
| 2026 | 18101 | FPLCA - DNR Landowner Contingency Assmt | $3.00 | $3.00 | $0.00 | $0.00 | $0.00 | $6.00 |
| 2026 | 18101 | JCCD - JC Conservation District | $2.53 | $2.53 | $0.00 | $0.00 | $0.00 | $5.06 |
| 2026 | 18101 | NWA - Noxious Weed Assessment | $2.98 | $2.97 | $0.00 | $0.00 | $0.00 | $5.95 |
| 2026 | 18101 | WAT - Clean Water District | $13.00 | $13.00 | $0.00 | $0.00 | $0.00 | $26.00 |
| 2026 | 18101 | TOTAL: | $102.52 | $102.40 | $0.00 | $0.00 | $0.00 | $204.92 |
|
| 2026 | 18101 | $102.52 | $102.40 | $0.00 | $0.00 | $0.00 | $204.92 |
Statement Details |
| 2025 | 18160 | STATE - STATE LEVY (SCHOOL) | $23.98 | $23.98 | $0.00 | $0.00 | $47.96 | $0.00 |
| 2025 | 18160 | COUNTY - COUNTY LEVIES (CE, DD, VET, MH) | $9.45 | $9.42 | $0.00 | $0.00 | $18.87 | $0.00 |
| 2025 | 18160 | CONSERVE - CONSERVATION FUTURES | $0.29 | $0.28 | $0.00 | $0.00 | $0.57 | $0.00 |
| 2025 | 18160 | COROADS - COUNTY ROADS (ROADS, DIV TO CE) | $7.56 | $7.55 | $0.00 | $0.00 | $15.11 | $0.00 |
| 2025 | 18160 | PORTPT - PORT DISTRICT | $3.86 | $3.84 | $0.00 | $0.00 | $7.70 | $0.00 |
| 2025 | 18160 | PUD1 - PUD #1 | $0.62 | $0.61 | $0.00 | $0.00 | $1.23 | $0.00 |
| 2025 | 18160 | LIB1 - LIBRARY DIST #1 | $2.93 | $2.92 | $0.00 | $0.00 | $5.85 | $0.00 |
| 2025 | 18160 | HD2 - HOSP DIST #2 | $0.55 | $0.55 | $0.00 | $0.00 | $1.10 | $0.00 |
| 2025 | 18160 | SD49 - SCHOOL DIST #49 | $12.85 | $12.85 | $0.00 | $0.00 | $25.70 | $0.00 |
| 2025 | 18160 | FD1 - FIRE DISTRICT #1 | $12.45 | $12.44 | $0.00 | $0.00 | $24.89 | $0.00 |
| 2025 | 18160 | EMS1 - FIRE DIST #1 EMS | $4.79 | $4.78 | $0.00 | $0.00 | $9.57 | $0.00 |
| 2025 | 18160 | FPLCA - DNR Landowner Contingency Assmt | $3.00 | $3.00 | $0.00 | $0.00 | $6.00 | $0.00 |
| 2025 | 18160 | JCCD - JC Conservation District | $2.53 | $2.53 | $0.00 | $0.00 | $5.06 | $0.00 |
| 2025 | 18160 | NWA - Noxious Weed Assessment | $2.15 | $2.15 | $0.00 | $0.00 | $4.30 | $0.00 |
| 2025 | 18160 | WAT - Clean Water District | $13.00 | $13.00 | $0.00 | $0.00 | $26.00 | $0.00 |
| 2025 | 18160 | TOTAL: | $100.01 | $99.90 | $0.00 | $0.00 | $199.91 | $0.00 |
|
| 2025 | 18160 | $100.01 | $99.90 | $0.00 | $0.00 | $199.91 | $0.00 |
Statement Details |
| 2024 | 18195 | STATE - STATE LEVY (SCHOOL) | $23.14 | $23.14 | $0.00 | $0.00 | $46.28 | $0.00 |
| 2024 | 18195 | COUNTY - COUNTY LEVIES (CE, DD, VET, MH) | $9.91 | $9.88 | $0.00 | $0.00 | $19.79 | $0.00 |
| 2024 | 18195 | CONSERVE - CONSERVATION FUTURES | $0.30 | $0.29 | $0.00 | $0.00 | $0.59 | $0.00 |
| 2024 | 18195 | COROADS - COUNTY ROADS (ROADS, DIV TO CE) | $7.97 | $7.96 | $0.00 | $0.00 | $15.93 | $0.00 |
| 2024 | 18195 | PORTPT - PORT DISTRICT | $4.09 | $4.08 | $0.00 | $0.00 | $8.17 | $0.00 |
| 2024 | 18195 | PUD1 - PUD #1 | $0.65 | $0.65 | $0.00 | $0.00 | $1.30 | $0.00 |
| 2024 | 18195 | LIB1 - LIBRARY DIST #1 | $3.08 | $3.08 | $0.00 | $0.00 | $6.16 | $0.00 |
| 2024 | 18195 | HD2 - HOSP DIST #2 | $0.58 | $0.58 | $0.00 | $0.00 | $1.16 | $0.00 |
| 2024 | 18195 | SD49 - SCHOOL DIST #49 | $10.33 | $10.33 | $0.00 | $0.00 | $20.66 | $0.00 |
| 2024 | 18195 | FD1 - FIRE DISTRICT #1 | $13.09 | $13.09 | $0.00 | $0.00 | $26.18 | $0.00 |
| 2024 | 18195 | EMS1 - FIRE DIST #1 EMS | $5.00 | $5.00 | $0.00 | $0.00 | $10.00 | $0.00 |
| 2024 | 18195 | FPLCA - DNR Landowner Contingency Assmt | $3.00 | $3.00 | $0.00 | $0.00 | $6.00 | $0.00 |
| 2024 | 18195 | JCCD - JC Conservation District | $2.53 | $2.53 | $0.00 | $0.00 | $5.06 | $0.00 |
| 2024 | 18195 | NWA - Noxious Weed Assessment | $2.15 | $2.15 | $0.00 | $0.00 | $4.30 | $0.00 |
| 2024 | 18195 | WAT - Clean Water District | $12.50 | $12.50 | $0.00 | $0.00 | $25.00 | $0.00 |
| 2024 | 18195 | TOTAL: | $98.32 | $98.26 | $0.00 | $0.00 | $196.58 | $0.00 |
|
| 2024 | 18195 | $98.32 | $98.26 | $0.00 | $0.00 | $196.58 | $0.00 |
Statement Details |
| 2023 | 18232 | STATE - STATE LEVY (SCHOOL) | $23.55 | $23.54 | $0.00 | $0.00 | $47.09 | $0.00 |
| 2023 | 18232 | COUNTY - COUNTY LEVIES (CE, DD, VET, MH) | $10.28 | $10.27 | $0.00 | $0.00 | $20.55 | $0.00 |
| 2023 | 18232 | CONSERVE - CONSERVATION FUTURES | $0.31 | $0.31 | $0.00 | $0.00 | $0.62 | $0.00 |
| 2023 | 18232 | COROADS - COUNTY ROADS (ROADS, DIV TO CE) | $8.31 | $8.31 | $0.00 | $0.00 | $16.62 | $0.00 |
| 2023 | 18232 | PORTPT - PORT DISTRICT | $4.33 | $4.33 | $0.00 | $0.00 | $8.66 | $0.00 |
| 2023 | 18232 | PUD1 - PUD #1 | $0.68 | $0.68 | $0.00 | $0.00 | $1.36 | $0.00 |
| 2023 | 18232 | LIB1 - LIBRARY DIST #1 | $3.22 | $3.21 | $0.00 | $0.00 | $6.43 | $0.00 |
| 2023 | 18232 | HD2 - HOSP DIST #2 | $0.60 | $0.60 | $0.00 | $0.00 | $1.20 | $0.00 |
| 2023 | 18232 | SD49 - SCHOOL DIST #49 | $11.01 | $11.00 | $0.00 | $0.00 | $22.01 | $0.00 |
| 2023 | 18232 | FD3 - FIRE DISTRICT #3 | $10.22 | $10.22 | $0.00 | $0.00 | $20.44 | $0.00 |
| 2023 | 18232 | EMS3 - FIRE DIST #3 EMS | $3.66 | $3.65 | $0.00 | $0.00 | $7.31 | $0.00 |
| 2023 | 18232 | FPLCA - DNR Landowner Contingency Assmt | $3.00 | $3.00 | $0.00 | $0.00 | $6.00 | $0.00 |
| 2023 | 18232 | JCCD - JC Conservation District | $2.53 | $2.53 | $0.00 | $0.00 | $5.06 | $0.00 |
| 2023 | 18232 | NWA - Noxious Weed Assessment | $2.15 | $2.15 | $0.00 | $0.00 | $4.30 | $0.00 |
| 2023 | 18232 | WAT - Clean Water District | $12.00 | $12.00 | $0.00 | $0.00 | $24.00 | $0.00 |
| 2023 | 18232 | TOTAL: | $95.85 | $95.80 | $0.00 | $0.00 | $191.65 | $0.00 |
|
| 2023 | 18232 | $95.85 | $95.80 | $0.00 | $0.00 | $191.65 | $0.00 |
Values
| (+) Improvement Homesite Value: | + | $0 | |
| (+) Improvement Non-Homesite Value: | + | $0 | |
| (+) Land Homesite Value: | + | $0 | |
| (+) Land Non-Homesite Value: | + | $21,000 | |
| (+) Curr Use (HS): | + | $0 | $0 |
| (+) Curr Use (NHS): | + | $0 | $0 |
| | | -------------------------- | |
| (=) Market Value: | = | $21,000 | |
| (–) Productivity Loss: | – | $0 | |
| | | -------------------------- | |
| (=) Subtotal: | = | $21,000 | |
| (+) Senior Appraised Value: | + | $0 | |
| (+) Non-Senior Appraised Value: | + | $21,000 | |
| | | -------------------------- | |
| (=) Total Appraised Value: | = | $21,000 | |
| (–) Senior Exemption Loss: | – | $0 | |
| (–) Exemption Loss: | – | $0 | |
| | | -------------------------- | |
| (=) Taxable Value: | = | $21,000 | |
Taxing Jurisdiction
| Owner: | RANDY E HATHAWAY | | |
| % Ownership: | 100.0000000000% | | |
| Total Value: | N/A | | |
| Tax Area: | 0213 - 1-49F1E1H2L1 |
| CE | COUNTY CURRENT EXPENSE | N/A | N/A | N/A | N/A | | |
| CNTYDD | DEVELOPMENTAL DISABILITIES | N/A | N/A | N/A | N/A | | |
| CNTYVET | VETERANS RELIEF | N/A | N/A | N/A | N/A | | |
| MENTAL | MENTAL HEALTH | N/A | N/A | N/A | N/A | | |
| ROADS | COUNTY ROADS | N/A | N/A | N/A | N/A | | |
| HOSP2CASH | HOSP DIST #2 GENERAL | N/A | N/A | N/A | N/A | | |
| SCH49CP | SCHOOL DIST #49 CAP PROJ | N/A | N/A | N/A | N/A | | |
| SCH49MO | SCHOOL DIST #49 EP & O | N/A | N/A | N/A | N/A | | |
| CONSERVE | CONSERVATION FUTURES | N/A | N/A | N/A | N/A | | |
| EMS1 | FIRE DIST #1 EMS | N/A | N/A | N/A | N/A | | |
| FD1 | FIRE DIST #1 GENERAL | N/A | N/A | N/A | N/A | | |
| LIB1 | LIBRARY DIST #1 GENERAL | N/A | N/A | N/A | N/A | | |
| PORTPT | PORT OF PT GENERAL | N/A | N/A | N/A | N/A | | |
| PORTPTIDD | PORT OF PT IDD 2019 | N/A | N/A | N/A | N/A | | |
| PUD1 | PUD #1 GENERAL | N/A | N/A | N/A | N/A | | |
| STATE | STATE SCHOOL PART 1 | N/A | N/A | N/A | N/A | | |
| STATE2 | STATE SCHOOL PART 2 | N/A | N/A | N/A | N/A | | |
| | Total Tax Rate: | N/A | | | | | |
| | | | | Taxes w/Current Exemptions: | N/A | | |
| | | | | Taxes w/o Exemptions: | N/A | | |
Improvement / Building
Sketch
| No sketches available for this property. |
Property Image
Land
| 1 | 3435-1155L | | 0.0000 | 0.00 | 0.00 | 0.00 | 1.00 | $21,000 | $0 |
Roll Value History
| 2026 | N/A | N/A | N/A | N/A | N/A |
| 2025 | $0 | $21,000 | $0 | $21,000 | $21,000 |
| 2024 | $0 | $20,000 | $0 | $20,000 | $20,000 |
| 2023 | $0 | $20,000 | $0 | $20,000 | $20,000 |
| 2022 | $0 | $20,000 | $0 | $20,000 | $20,000 |
Deed and Sales History
| 1 | 07/17/2017 | SWD | Statutory Warranty Deed | ROGER W BLESSING | RANDY E HATHAWAY | | | $52,000.00 | 128198 | |
|   | |
Payout Agreement
| No payout information available.. |