Property
Account |
| Property ID: | 28828 | Abbreviated Legal Description: | TRAILS END 4TH ADDITION BLK 3 LOTS 13 & 14 |
| Parcel # / Geo ID: | 950200309 | Agent Code: | |
| Type: | Real | | |
| Tax Area: | 0213 - 1-49F1E1H2L1 | Land Use Code | 91 |
| Open Space: | N | DFL | N |
| Historic Property: | N | Remodel Property: | N |
| Multi-Family Redevelopment: | N | | |
| Township: | 27N | Section: | 16 |
| Range: | 1E |
Location |
| Address: | 15 SEATTLE DR PORT LUDLOW, WA 98365 | Mapsco: | 143/065 |
| Neighborhood: | TRAILS END HOMESITES (ALL DIVISIONS) | Map ID: | |
| Neighborhood CD: | 3435 |
Owner |
| Name: | R MICHAEL BERRY | Owner ID: | 104911 |
| Mailing Address: | 545 HENDRICKS ST TRLR 31A PORT TOWNSEND, WA 98368-3094 | % Ownership: | 100.0000000000% |
| | | Exemptions: | |
Pay Tax Due
There is currently No Amount Due on this property.
Taxes and Assessment Details
Property Tax Information as of
03/12/2026
Click on "Statement Details" to expand or collapse a tax statement.
* Please enter a valid date ** Please enter a valid date *
Statement Details |
| | TOTAL: | $0.00 | $0.00 | $0.00 | $0.00 | $0.00 | $0.00 |
|
| | $0.00 | $0.00 | $0.00 | $0.00 | $0.00 | $0.00 |
Values
| (+) Improvement Homesite Value: | + | $0 | |
| (+) Improvement Non-Homesite Value: | + | $0 | |
| (+) Land Homesite Value: | + | $0 | |
| (+) Land Non-Homesite Value: | + | $50,400 | |
| (+) Curr Use (HS): | + | $0 | $0 |
| (+) Curr Use (NHS): | + | $0 | $0 |
| | | -------------------------- | |
| (=) Market Value: | = | $50,400 | |
| (–) Productivity Loss: | – | $0 | |
| | | -------------------------- | |
| (=) Subtotal: | = | $50,400 | |
| (+) Senior Appraised Value: | + | $0 | |
| (+) Non-Senior Appraised Value: | + | $50,400 | |
| | | -------------------------- | |
| (=) Total Appraised Value: | = | $50,400 | |
| (–) Senior Exemption Loss: | – | $0 | |
| (–) Exemption Loss: | – | $0 | |
| | | -------------------------- | |
| (=) Taxable Value: | = | $50,400 | |
Taxing Jurisdiction
| Owner: | R MICHAEL BERRY | | |
| % Ownership: | 100.0000000000% | | |
| Total Value: | $50,400 | | |
| Tax Area: | 0213 - 1-49F1E1H2L1 |
| CE | COUNTY CURRENT EXPENSE | 0.9034619479 | $50,400 | $50,400 | $45.53 | | |
| CNTYDD | DEVELOPMENTAL DISABILITIES | 0.0052121823 | $50,400 | $50,400 | $0.26 | | |
| CNTYVET | VETERANS RELIEF | 0.0052777810 | $50,400 | $50,400 | $0.27 | | |
| MENTAL | MENTAL HEALTH | 0.0052121823 | $50,400 | $50,400 | $0.26 | | |
| ROADS | COUNTY ROADS | 0.7415066410 | $50,400 | $50,400 | $37.37 | | |
| ROADSCU | COUNTY ROADS TO CUR EXP | 0.0000000000 | $50,400 | $50,400 | $0.00 | | |
| HOSP2CASH | HOSP DIST #2 GENERAL | 0.0536075306 | $50,400 | $50,400 | $2.70 | | |
| SCH49CP | SCHOOL DIST #49 CAP PROJ | 0.6279093905 | $50,400 | $50,400 | $31.65 | | |
| SCH49MO | SCHOOL DIST #49 EP & O | 0.6376483602 | $50,400 | $50,400 | $32.14 | | |
| CONSERVE | CONSERVATION FUTURES | 0.0275621078 | $50,400 | $50,400 | $1.39 | | |
| EMS1 | FIRE DIST #1 EMS | 0.4679948282 | $50,400 | $50,400 | $23.59 | | |
| FD1 | FIRE DIST #1 GENERAL | 1.2171942929 | $50,400 | $50,400 | $61.35 | | |
| LIB1 | LIBRARY DIST #1 GENERAL | 0.2868827388 | $50,400 | $50,400 | $14.46 | | |
| PORTPT | PORT OF PT GENERAL | 0.1134941229 | $50,400 | $50,400 | $5.72 | | |
| PORTPTIDD | PORT OF PT IDD 2019 | 0.2577346692 | $50,400 | $50,400 | $12.99 | | |
| PUD1 | PUD #1 GENERAL | 0.0597888892 | $50,400 | $50,400 | $3.01 | | |
| STATE | STATE SCHOOL PART 1 | 1.4940692947 | $50,400 | $50,400 | $75.30 | | |
| STATE2 | STATE SCHOOL PART 2 | 0.8050170049 | $50,400 | $50,400 | $40.57 | | |
| | Total Tax Rate: | 7.7095739644 | | | | | |
| | | | | Taxes w/Current Exemptions: | $388.56 | | |
| | | | | Taxes w/o Exemptions: | $388.56 | | |
Improvement / Building
Sketch
| No sketches available for this property. |
Property Image
Land
| 1 | 3435-1173L | Good Terr View Lots Trails End Homesites | 0.0000 | 0.00 | 0.00 | 0.00 | 1.00 | $29,400 | $0 |
| 2 | 3435-1175L | Avg Terr View Lots Trails End Homesites | 0.0000 | 0.00 | 0.00 | 0.00 | 1.00 | $21,000 | $0 |
Roll Value History
| 2026 | N/A | N/A | N/A | N/A | N/A |
| 2025 | $0 | $50,400 | $0 | $50,400 | $50,400 |
| 2024 | $0 | $48,000 | $0 | $48,000 | $48,000 |
| 2023 | $0 | $48,000 | $0 | $48,000 | $48,000 |
| 2022 | $0 | $48,000 | $0 | $48,000 | $48,000 |
Deed and Sales History
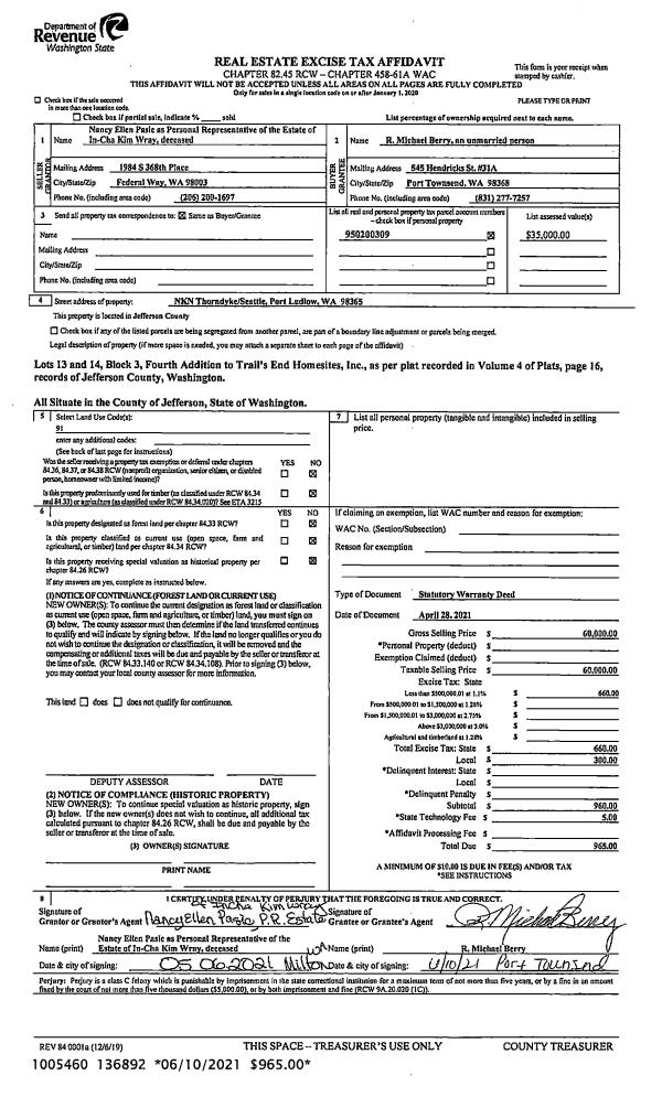
| 1 | 04/28/2021 | SWD | Statutory Warranty Deed | JACK C WRAY | R MICHAEL BERRY | | | $60,000.00 | 136892 | |
Payout Agreement
| No payout information available.. |