Property
Account |
| Property ID: | 28842 | Abbreviated Legal Description: | TRAIL'S END 3RD ADD BLK 6 LOT 16 (S 1/2) |
| Parcel # / Geo ID: | 950200620 | Agent Code: | |
| Type: | Real | | |
| Tax Area: | 0213 - 1-49F1E1H2L1 | Land Use Code | 18 |
| Open Space: | N | DFL | N |
| Historic Property: | N | Remodel Property: | N |
| Multi-Family Redevelopment: | N | | |
| Township: | 27N | Section: | 16 |
| Range: | 1E |
Location |
| Address: | 421 S BEACH DR PORT LUDLOW, WA 98365 | Mapsco: | 143/020 |
| Neighborhood: | TRAILS END HOMESITES (ALL DIVISIONS) | Map ID: | |
| Neighborhood CD: | 3435 |
Owner |
| Name: | SUSAN J DARBY & | Owner ID: | 113649 |
| Mailing Address: | JAMES R DETHERAGE 421 S BEACH DR PORT LUDLOW, WA 98365-8296 | % Ownership: | 100.0000000000% |
| | | Exemptions: | |
Pay Tax Due
Select the appropriate checkbox next to the year to be paid. Multiple years may be selected.
*Convenience Fee not included
Taxes and Assessment Details
Property Tax Information as of
03/12/2026
Click on "Statement Details" to expand or collapse a tax statement.
* Please enter a valid date ** Please enter a valid date *
Statement Details |
| 2026 | 18164 | STATE - STATE LEVY (SCHOOL) | $103.27 | $103.26 | $0.00 | $0.00 | $0.00 | $206.53 |
| 2026 | 18164 | COUNTY - COUNTY LEVIES (CE, DD, VET, MH) | $41.30 | $41.27 | $0.00 | $0.00 | $0.00 | $82.57 |
| 2026 | 18164 | CONSERVE - CONSERVATION FUTURES | $1.24 | $1.24 | $0.00 | $0.00 | $0.00 | $2.48 |
| 2026 | 18164 | COROADS - COUNTY ROADS (ROADS, DIV TO CE) | $33.31 | $33.30 | $0.00 | $0.00 | $0.00 | $66.61 |
| 2026 | 18164 | PORTPT - PORT DISTRICT | $16.68 | $16.67 | $0.00 | $0.00 | $0.00 | $33.35 |
| 2026 | 18164 | PUD1 - PUD #1 | $2.69 | $2.68 | $0.00 | $0.00 | $0.00 | $5.37 |
| 2026 | 18164 | LIB1 - LIBRARY DIST #1 | $12.89 | $12.88 | $0.00 | $0.00 | $0.00 | $25.77 |
| 2026 | 18164 | HD2 - HOSP DIST #2 | $2.41 | $2.41 | $0.00 | $0.00 | $0.00 | $4.82 |
| 2026 | 18164 | SD49 - SCHOOL DIST #49 | $56.85 | $56.84 | $0.00 | $0.00 | $0.00 | $113.69 |
| 2026 | 18164 | FD1 - FIRE DISTRICT #1 | $54.67 | $54.67 | $0.00 | $0.00 | $0.00 | $109.34 |
| 2026 | 18164 | EMS1 - FIRE DIST #1 EMS | $21.02 | $21.02 | $0.00 | $0.00 | $0.00 | $42.04 |
| 2026 | 18164 | FPLCA - DNR Landowner Contingency Assmt | $3.00 | $3.00 | $0.00 | $0.00 | $0.00 | $6.00 |
| 2026 | 18164 | JCCD - JC Conservation District | $2.53 | $2.53 | $0.00 | $0.00 | $0.00 | $5.06 |
| 2026 | 18164 | NWA - Noxious Weed Assessment | $2.98 | $2.97 | $0.00 | $0.00 | $0.00 | $5.95 |
| 2026 | 18164 | WAT - Clean Water District | $13.00 | $13.00 | $0.00 | $0.00 | $0.00 | $26.00 |
| 2026 | 18164 | TOTAL: | $367.84 | $367.74 | $0.00 | $0.00 | $0.00 | $735.58 |
|
| 2026 | 18164 | $367.84 | $367.74 | $0.00 | $0.00 | $0.00 | $735.58 |
Statement Details |
| 2025 | 18223 | STATE - STATE LEVY (SCHOOL) | $102.71 | $102.69 | $0.00 | $0.00 | $205.40 | $0.00 |
| 2025 | 18223 | COUNTY - COUNTY LEVIES (CE, DD, VET, MH) | $40.39 | $40.38 | $0.00 | $0.00 | $80.77 | $0.00 |
| 2025 | 18223 | CONSERVE - CONSERVATION FUTURES | $1.21 | $1.21 | $0.00 | $0.00 | $2.42 | $0.00 |
| 2025 | 18223 | COROADS - COUNTY ROADS (ROADS, DIV TO CE) | $32.37 | $32.35 | $0.00 | $0.00 | $64.72 | $0.00 |
| 2025 | 18223 | PORTPT - PORT DISTRICT | $16.49 | $16.47 | $0.00 | $0.00 | $32.96 | $0.00 |
| 2025 | 18223 | PUD1 - PUD #1 | $2.65 | $2.64 | $0.00 | $0.00 | $5.29 | $0.00 |
| 2025 | 18223 | LIB1 - LIBRARY DIST #1 | $12.52 | $12.52 | $0.00 | $0.00 | $25.04 | $0.00 |
| 2025 | 18223 | HD2 - HOSP DIST #2 | $2.36 | $2.35 | $0.00 | $0.00 | $4.71 | $0.00 |
| 2025 | 18223 | SD49 - SCHOOL DIST #49 | $55.05 | $55.03 | $0.00 | $0.00 | $110.08 | $0.00 |
| 2025 | 18223 | FD1 - FIRE DISTRICT #1 | $53.30 | $53.29 | $0.00 | $0.00 | $106.59 | $0.00 |
| 2025 | 18223 | EMS1 - FIRE DIST #1 EMS | $20.50 | $20.50 | $0.00 | $0.00 | $41.00 | $0.00 |
| 2025 | 18223 | FPLCA - DNR Landowner Contingency Assmt | $3.00 | $3.00 | $0.00 | $0.00 | $6.00 | $0.00 |
| 2025 | 18223 | JCCD - JC Conservation District | $2.55 | $2.55 | $0.00 | $0.00 | $5.10 | $0.00 |
| 2025 | 18223 | NWA - Noxious Weed Assessment | $2.15 | $2.15 | $0.00 | $0.00 | $4.30 | $0.00 |
| 2025 | 18223 | WAT - Clean Water District | $13.00 | $13.00 | $0.00 | $0.00 | $26.00 | $0.00 |
| 2025 | 18223 | TOTAL: | $360.25 | $360.13 | $0.00 | $0.00 | $720.38 | $0.00 |
|
| 2025 | 18223 | $360.25 | $360.13 | $0.00 | $0.00 | $720.38 | $0.00 |
Statement Details |
| 2024 | 18259 | STATE - STATE LEVY (SCHOOL) | $83.18 | $83.17 | $0.00 | $0.00 | $166.35 | $0.00 |
| 2024 | 18259 | COUNTY - COUNTY LEVIES (CE, DD, VET, MH) | $35.60 | $35.58 | $0.00 | $0.00 | $71.18 | $0.00 |
| 2024 | 18259 | CONSERVE - CONSERVATION FUTURES | $1.07 | $1.06 | $0.00 | $0.00 | $2.13 | $0.00 |
| 2024 | 18259 | COROADS - COUNTY ROADS (ROADS, DIV TO CE) | $28.64 | $28.64 | $0.00 | $0.00 | $57.28 | $0.00 |
| 2024 | 18259 | PORTPT - PORT DISTRICT | $14.71 | $14.69 | $0.00 | $0.00 | $29.40 | $0.00 |
| 2024 | 18259 | PUD1 - PUD #1 | $2.34 | $2.34 | $0.00 | $0.00 | $4.68 | $0.00 |
| 2024 | 18259 | LIB1 - LIBRARY DIST #1 | $11.08 | $11.08 | $0.00 | $0.00 | $22.16 | $0.00 |
| 2024 | 18259 | HD2 - HOSP DIST #2 | $2.08 | $2.07 | $0.00 | $0.00 | $4.15 | $0.00 |
| 2024 | 18259 | SD49 - SCHOOL DIST #49 | $37.15 | $37.13 | $0.00 | $0.00 | $74.28 | $0.00 |
| 2024 | 18259 | FD1 - FIRE DISTRICT #1 | $47.06 | $47.06 | $0.00 | $0.00 | $94.12 | $0.00 |
| 2024 | 18259 | EMS1 - FIRE DIST #1 EMS | $17.98 | $17.97 | $0.00 | $0.00 | $35.95 | $0.00 |
| 2024 | 18259 | FPLCA - DNR Landowner Contingency Assmt | $3.00 | $3.00 | $0.00 | $0.00 | $6.00 | $0.00 |
| 2024 | 18259 | JCCD - JC Conservation District | $2.55 | $2.55 | $0.00 | $0.00 | $5.10 | $0.00 |
| 2024 | 18259 | NWA - Noxious Weed Assessment | $2.15 | $2.15 | $0.00 | $0.00 | $4.30 | $0.00 |
| 2024 | 18259 | WAT - Clean Water District | $12.50 | $12.50 | $0.00 | $0.00 | $25.00 | $0.00 |
| 2024 | 18259 | TOTAL: | $301.09 | $300.99 | $0.00 | $0.00 | $602.08 | $0.00 |
|
| 2024 | 18259 | $301.09 | $300.99 | $0.00 | $0.00 | $602.08 | $0.00 |
Statement Details |
| 2023 | 18296 | STATE - STATE LEVY (SCHOOL) | $84.64 | $84.63 | $0.00 | $0.00 | $169.27 | $0.00 |
| 2023 | 18296 | COUNTY - COUNTY LEVIES (CE, DD, VET, MH) | $36.93 | $36.93 | $0.00 | $0.00 | $73.86 | $0.00 |
| 2023 | 18296 | CONSERVE - CONSERVATION FUTURES | $1.11 | $1.10 | $0.00 | $0.00 | $2.21 | $0.00 |
| 2023 | 18296 | COROADS - COUNTY ROADS (ROADS, DIV TO CE) | $29.89 | $29.88 | $0.00 | $0.00 | $59.77 | $0.00 |
| 2023 | 18296 | PORTPT - PORT DISTRICT | $15.56 | $15.56 | $0.00 | $0.00 | $31.12 | $0.00 |
| 2023 | 18296 | PUD1 - PUD #1 | $2.45 | $2.45 | $0.00 | $0.00 | $4.90 | $0.00 |
| 2023 | 18296 | LIB1 - LIBRARY DIST #1 | $11.56 | $11.56 | $0.00 | $0.00 | $23.12 | $0.00 |
| 2023 | 18296 | HD2 - HOSP DIST #2 | $2.16 | $2.15 | $0.00 | $0.00 | $4.31 | $0.00 |
| 2023 | 18296 | SD49 - SCHOOL DIST #49 | $39.57 | $39.56 | $0.00 | $0.00 | $79.13 | $0.00 |
| 2023 | 18296 | FD3 - FIRE DISTRICT #3 | $36.75 | $36.74 | $0.00 | $0.00 | $73.49 | $0.00 |
| 2023 | 18296 | EMS3 - FIRE DIST #3 EMS | $13.14 | $13.13 | $0.00 | $0.00 | $26.27 | $0.00 |
| 2023 | 18296 | FPLCA - DNR Landowner Contingency Assmt | $3.00 | $3.00 | $0.00 | $0.00 | $6.00 | $0.00 |
| 2023 | 18296 | JCCD - JC Conservation District | $2.55 | $2.55 | $0.00 | $0.00 | $5.10 | $0.00 |
| 2023 | 18296 | NWA - Noxious Weed Assessment | $2.15 | $2.15 | $0.00 | $0.00 | $4.30 | $0.00 |
| 2023 | 18296 | WAT - Clean Water District | $12.00 | $12.00 | $0.00 | $0.00 | $24.00 | $0.00 |
| 2023 | 18296 | TOTAL: | $293.46 | $293.39 | $0.00 | $0.00 | $586.85 | $0.00 |
|
| 2023 | 18296 | $293.46 | $293.39 | $0.00 | $0.00 | $586.85 | $0.00 |
Values
| (+) Improvement Homesite Value: | + | $0 | |
| (+) Improvement Non-Homesite Value: | + | $46,518 | |
| (+) Land Homesite Value: | + | $0 | |
| (+) Land Non-Homesite Value: | + | $43,313 | |
| (+) Curr Use (HS): | + | $0 | $0 |
| (+) Curr Use (NHS): | + | $0 | $0 |
| | | -------------------------- | |
| (=) Market Value: | = | $89,831 | |
| (–) Productivity Loss: | – | $0 | |
| | | -------------------------- | |
| (=) Subtotal: | = | $89,831 | |
| (+) Senior Appraised Value: | + | $0 | |
| (+) Non-Senior Appraised Value: | + | $89,831 | |
| | | -------------------------- | |
| (=) Total Appraised Value: | = | $89,831 | |
| (–) Senior Exemption Loss: | – | $0 | |
| (–) Exemption Loss: | – | $0 | |
| | | -------------------------- | |
| (=) Taxable Value: | = | $89,831 | |
Taxing Jurisdiction
| Owner: | SUSAN J DARBY & | | |
| % Ownership: | 100.0000000000% | | |
| Total Value: | N/A | | |
| Tax Area: | 0213 - 1-49F1E1H2L1 |
| CE | COUNTY CURRENT EXPENSE | N/A | N/A | N/A | N/A | | |
| CNTYDD | DEVELOPMENTAL DISABILITIES | N/A | N/A | N/A | N/A | | |
| CNTYVET | VETERANS RELIEF | N/A | N/A | N/A | N/A | | |
| MENTAL | MENTAL HEALTH | N/A | N/A | N/A | N/A | | |
| ROADS | COUNTY ROADS | N/A | N/A | N/A | N/A | | |
| HOSP2CASH | HOSP DIST #2 GENERAL | N/A | N/A | N/A | N/A | | |
| SCH49CP | SCHOOL DIST #49 CAP PROJ | N/A | N/A | N/A | N/A | | |
| SCH49MO | SCHOOL DIST #49 EP & O | N/A | N/A | N/A | N/A | | |
| CONSERVE | CONSERVATION FUTURES | N/A | N/A | N/A | N/A | | |
| EMS1 | FIRE DIST #1 EMS | N/A | N/A | N/A | N/A | | |
| FD1 | FIRE DIST #1 GENERAL | N/A | N/A | N/A | N/A | | |
| LIB1 | LIBRARY DIST #1 GENERAL | N/A | N/A | N/A | N/A | | |
| PORTPT | PORT OF PT GENERAL | N/A | N/A | N/A | N/A | | |
| PORTPTIDD | PORT OF PT IDD 2019 | N/A | N/A | N/A | N/A | | |
| PUD1 | PUD #1 GENERAL | N/A | N/A | N/A | N/A | | |
| STATE | STATE SCHOOL PART 1 | N/A | N/A | N/A | N/A | | |
| STATE2 | STATE SCHOOL PART 2 | N/A | N/A | N/A | N/A | | |
| | Total Tax Rate: | N/A | | | | | |
| | | | | Taxes w/Current Exemptions: | N/A | | |
| | | | | Taxes w/o Exemptions: | N/A | | |
Improvement / Building
| Improvement #1: | Residential Bldg | State Code: | 18 | 0.0 sqft | Value: | $46,518 |
| | Type | Description | Class CD | Sub Class CD | Year Built | Area |
| | GDET | Detached Garage | 5 | * | 2020 | 480.0 |
| | SHED | Shed (Table Not Dep) | 5 | * | 2022 | 330.0 |
Sketch
Property Image
Land
| 1 | 3435-1145L | | 0.0000 | 0.00 | 0.00 | 0.00 | 1.00 | $43,313 | $0 |
Roll Value History
| 2026 | N/A | N/A | N/A | N/A | N/A |
| 2025 | $46,518 | $43,313 | $0 | $89,831 | $89,831 |
| 2024 | $44,403 | $41,250 | $0 | $85,653 | $85,653 |
| 2023 | $44,403 | $27,500 | $0 | $71,903 | $71,903 |
| 2022 | $44,403 | $27,500 | $0 | $71,903 | $71,903 |
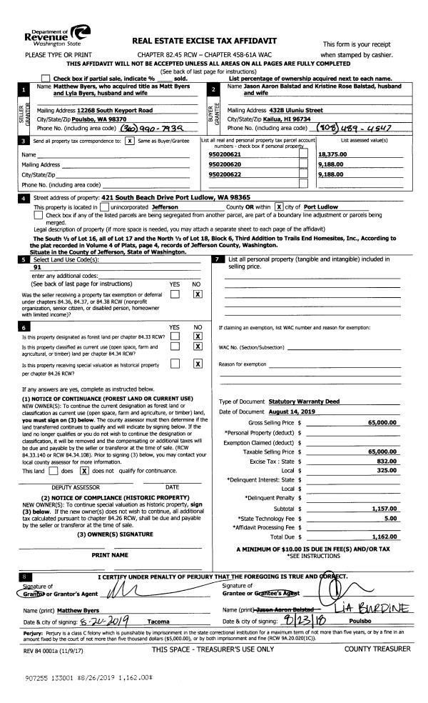
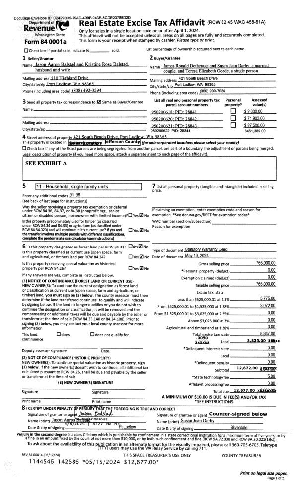
Deed and Sales History
| 1 | 10/13/2025 | SWD | Statutory Warranty Deed | JAMES R DETHERAGE | SUSAN J DARBY & | | | $255,000.00 | 145230 | |
| 2 | 05/10/2024 | SWD | Statutory Warranty Deed | JASON A & KRISTINE R BALSTAD | JAMES R DETHERAGE | | | $765,000.00 | 142586 | |
|   | |
| 3 | 08/14/2019 | SWD | Statutory Warranty Deed | MATT & LYLA BYERS | JASON A & KRISTINE R BALSTAD | | | $65,000.00 | 133001 | |
|   | |
| 4 | 06/21/2007 | SWD | Statutory Warranty Deed | PEDERSON, WALTER H | BYERS, MATT/LYLA | | | $53,000.00 | 109536 | 0 |
| 5 | 07/31/1997 | SWD | Statutory Warranty Deed | MYKLEBUST, HARRIET M | PEDERSON, WALTER H | 0 | 0 | $0.00 | 82467 | 0 |
Payout Agreement
| No payout information available.. |