Property
Account |
| Property ID: | 28844 | Abbreviated Legal Description: | TRAIL'S END 3RD ADD BLK 6 LOT 18 (N 1/2) |
| Parcel # / Geo ID: | 950200622 | Agent Code: | |
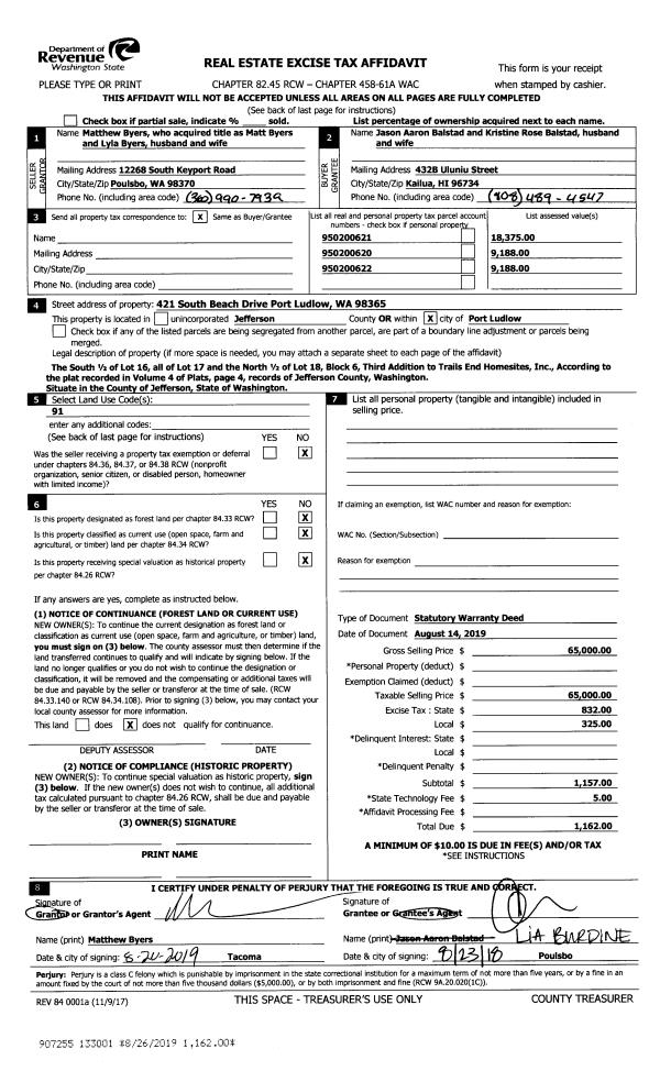
| Type: | Real | | |
| Tax Area: | 0213 - 1-49F1E1H2L1 | Land Use Code | 11 |
| Open Space: | N | DFL | N |
| Historic Property: | N | Remodel Property: | N |
| Multi-Family Redevelopment: | N | | |
| Township: | 27N | Section: | 16 |
| Range: | 1E |
Location |
| Address: | 421 S BEACH DR PORT LUDLOW, WA 98365 | Mapsco: | 143/022 |
| Neighborhood: | TRAILS END HOMESITES (ALL DIVISIONS) | Map ID: | |
| Neighborhood CD: | 3435 |
Owner |
| Name: | SUSAN J DARBY & | Owner ID: | 113649 |
| Mailing Address: | JAMES R DETHERAGE 421 S BEACH DR PORT LUDLOW, WA 98365-8296 | % Ownership: | 100.0000000000% |
| | | Exemptions: | |
Pay Tax Due
There is currently No Amount Due on this property.
Taxes and Assessment Details
Property Tax Information as of
03/10/2026
Click on "Statement Details" to expand or collapse a tax statement.
* Please enter a valid date ** Please enter a valid date *
Statement Details |
| | TOTAL: | $0.00 | $0.00 | $0.00 | $0.00 | $0.00 | $0.00 |
|
| | $0.00 | $0.00 | $0.00 | $0.00 | $0.00 | $0.00 |
Values
| (+) Improvement Homesite Value: | + | $0 | |
| (+) Improvement Non-Homesite Value: | + | $518,376 | |
| (+) Land Homesite Value: | + | $0 | |
| (+) Land Non-Homesite Value: | + | $74,813 | |
| (+) Curr Use (HS): | + | $0 | $0 |
| (+) Curr Use (NHS): | + | $0 | $0 |
| | | -------------------------- | |
| (=) Market Value: | = | $593,189 | |
| (–) Productivity Loss: | – | $0 | |
| | | -------------------------- | |
| (=) Subtotal: | = | $593,189 | |
| (+) Senior Appraised Value: | + | $0 | |
| (+) Non-Senior Appraised Value: | + | $593,189 | |
| | | -------------------------- | |
| (=) Total Appraised Value: | = | $593,189 | |
| (–) Senior Exemption Loss: | – | $0 | |
| (–) Exemption Loss: | – | $0 | |
| | | -------------------------- | |
| (=) Taxable Value: | = | $593,189 | |
Taxing Jurisdiction
| Owner: | SUSAN J DARBY & | | |
| % Ownership: | 100.0000000000% | | |
| Total Value: | $593,189 | | |
| Tax Area: | 0213 - 1-49F1E1H2L1 |
| CE | COUNTY CURRENT EXPENSE | 0.9034619479 | $593,189 | $593,189 | $535.92 | | |
| CNTYDD | DEVELOPMENTAL DISABILITIES | 0.0052121823 | $593,189 | $593,189 | $3.09 | | |
| CNTYVET | VETERANS RELIEF | 0.0052777810 | $593,189 | $593,189 | $3.13 | | |
| MENTAL | MENTAL HEALTH | 0.0052121823 | $593,189 | $593,189 | $3.09 | | |
| ROADS | COUNTY ROADS | 0.7415066410 | $593,189 | $593,189 | $439.85 | | |
| ROADSCU | COUNTY ROADS TO CUR EXP | 0.0000000000 | $593,189 | $593,189 | $0.00 | | |
| HOSP2CASH | HOSP DIST #2 GENERAL | 0.0536075306 | $593,189 | $593,189 | $31.80 | | |
| SCH49CP | SCHOOL DIST #49 CAP PROJ | 0.6279093905 | $593,189 | $593,189 | $372.47 | | |
| SCH49MO | SCHOOL DIST #49 EP & O | 0.6376483602 | $593,189 | $593,189 | $378.25 | | |
| CONSERVE | CONSERVATION FUTURES | 0.0275621078 | $593,189 | $593,189 | $16.35 | | |
| EMS1 | FIRE DIST #1 EMS | 0.4679948282 | $593,189 | $593,189 | $277.61 | | |
| FD1 | FIRE DIST #1 GENERAL | 1.2171942929 | $593,189 | $593,189 | $722.03 | | |
| LIB1 | LIBRARY DIST #1 GENERAL | 0.2868827388 | $593,189 | $593,189 | $170.18 | | |
| PORTPT | PORT OF PT GENERAL | 0.1134941229 | $593,189 | $593,189 | $67.32 | | |
| PORTPTIDD | PORT OF PT IDD 2019 | 0.2577346692 | $593,189 | $593,189 | $152.89 | | |
| PUD1 | PUD #1 GENERAL | 0.0597888892 | $593,189 | $593,189 | $35.47 | | |
| STATE | STATE SCHOOL PART 1 | 1.4940692947 | $593,189 | $593,189 | $886.27 | | |
| STATE2 | STATE SCHOOL PART 2 | 0.8050170049 | $593,189 | $593,189 | $477.53 | | |
| | Total Tax Rate: | 7.7095739644 | | | | | |
| | | | | Taxes w/Current Exemptions: | $4,573.25 | | |
| | | | | Taxes w/o Exemptions: | $4,573.25 | | |
Improvement / Building
| Improvement #1: | Residential Bldg | State Code: | 11 | 1785.0 sqft | Value: | $518,376 |
| Bathrooms (#): | 2 (FULL) | Bedrooms (#): | 3 | | Exterior Wall: | SI/ST | Fireplace: | PROPS-GOOD | | Floor Construction: | FRAME | Foundation: | CONPR | | Heating/Cooling: | HPUMP | Roof Cover: | COMP |
|
| | Type | Description | Class CD | Sub Class CD | Year Built | Area |
| | MA | Main Area | 5 | 1S | 2020 | 1785.0 |
| | HDECK | House Deck | 5 | * | 2020 | 200.0 |
| | HWPOR | House Wood Porch | 5 | * | 2020 | 219.0 |
Sketch
Property Image
Land
| 1 | 3435-1145L | Good Wtr View Lots E of Thorndyke Rd | 0.0000 | 0.00 | 0.00 | 0.00 | 1.00 | $74,813 | $0 |
Roll Value History
| 2026 | N/A | N/A | N/A | N/A | N/A |
| 2025 | $518,376 | $74,813 | $0 | $593,189 | $593,189 |
| 2024 | $494,814 | $71,250 | $0 | $566,064 | $566,064 |
| 2023 | $408,889 | $52,500 | $0 | $461,389 | $461,389 |
| 2022 | $408,889 | $47,500 | $0 | $456,389 | $456,389 |
Deed and Sales History
| 1 | 10/13/2025 | SWD | Statutory Warranty Deed | TERESA E GOODE | SUSAN J DARBY & | | | $255,000.00 | 145230 | |
| 2 | 05/10/2024 | SWD | Statutory Warranty Deed | JASON A & KRISTINE R BALSTAD | JAMES R DETHERAGE | | | $765,000.00 | 142586 | |
|   | |
| 3 | 08/14/2019 | SWD | Statutory Warranty Deed | MATT & LYLA BYERS | JASON A & KRISTINE R BALSTAD | | | $65,000.00 | 133001 | |
|   | |
| 4 | 06/21/2007 | SWD | Statutory Warranty Deed | PEDERSON, WALTER H | BYERS, MATT/LYLA | | | $53,000.00 | 109536 | 0 |
| 5 | 07/31/1997 | SWD | Statutory Warranty Deed | MYKLEBUST, HARRIET M | PEDERSON, WALTER H | 0 | 0 | $0.00 | 82467 | 0 |
Payout Agreement
| No payout information available.. |