| 1 | 01/22/2026 | WD | Warranty Deed | SUSAN GILL | TIFFANY L LUNDAY & | | | $4,200.00 | 145628 | |
| 2 | 12/15/2025 | QCD | Quit Claim Deed | RICHARD A LIBBY | LIBBY FAM REV LIV TRUST | | | | 145578 | |
| 3 | 11/20/2024 | WD | Warranty Deed | CHRISTINE & HENERY EBERHARDT | MARK S & LORI M HENDRICKS | | | $8,500.00 | 143543 | |
| 4 | 04/22/2024 | SWD | Statutory Warranty Deed | SALLY C & ROBERT L LEFEBER | MELINDA L & MATTHEW E FREELAND | | | $2,200.00 | 142506 | |
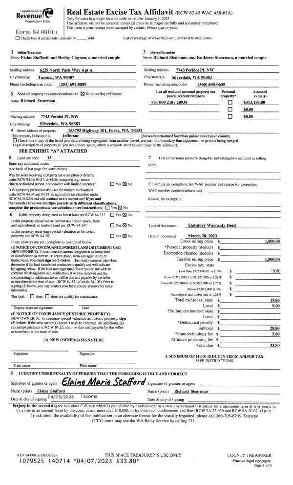
| 5 | 03/28/2023 | SWD | Statutory Warranty Deed | ELAINE STAFFORD | RICHARD & KATHLEEN STEARMAN | | | | 140714 | |
| 6 | 07/05/2022 | SWD | Statutory Warranty Deed | ELAINE STAFFORD | JACOB REEMS | | | $4,000.00 | 139436 | |
| 7 | 01/07/2022 | QCD | Quit Claim Deed | FREDERICK V & JOY S HOLDREN | JOHN S & LEAANN GOODFELLOW | | | | 138332 | |
| 8 | 12/23/2020 | SWD | Statutory Warranty Deed | | | | | $6,000.00 | 135915 | |
| 9 | 12/02/2020 | SWD | Statutory Warranty Deed | | | | | $8,000.00 | 135737 | |
| 10 | 07/28/2020 | PRD | Personal Representatives Deed | | | | | | 134801 | |
| 11 | 07/28/2020 | PRD | Personal Representatives Deed | | | | | | 134802 | |
| 12 | 01/22/2020 | QCD | Quit Claim Deed | | | | | | 133832 | |
| 13 | 09/25/2019 | SPWD | Special Warranty Deed | | | | | | 133201 | |
| 14 | 12/26/2018 | QCD | Quit Claim Deed | | | | | | 131608 | |
| 15 | 09/13/2018 | QCD | Quit Claim Deed | | | | | | 131001 | |
| 16 | 10/13/2017 | PRD | Personal Representatives Deed | | | | | | 128832 | |
| 17 | 07/07/2016 | QCD | Quit Claim Deed | | | | | | 125787 | |
| 18 | 03/29/2016 | SWD | Statutory Warranty Deed | | | | | $12,500.00 | 125099 | |
| 19 | 11/17/2015 | QCD | Quit Claim Deed | | | | | | 124545 | |
| 20 | 12/10/2014 | SWD | Statutory Warranty Deed | | | | | | 122428 | |
| 21 | 08/13/2014 | SWD | Statutory Warranty Deed | | | | | $15,000.00 | 121719 | |
| 22 | 07/18/2014 | QCD | Quit Claim Deed | | | | | | 121596 | |
| 23 | 06/25/2014 | SWD | Statutory Warranty Deed | | | | | $16,000.00 | 121460 | |
| 24 | 03/28/2014 | SWD | Statutory Warranty Deed | | | | | $15,000.00 | 120990 | |
| 25 | 04/11/2013 | SWD | Statutory Warranty Deed | MICHAEL & KATHERINE FOLEY | M&J INVESTMENTS | | | | 0 | |
| 26 | 02/17/2012 | SWD | Statutory Warranty Deed | HOSKINS, ROBERT TRUSTEE | GEIST, JULIE M | 0 | 0 | $8,000.00 | 117185 | 0 |
| 27 | 02/17/2012 | SWD | Statutory Warranty Deed | IULO, WILLIAM & EMMA | GEIST, JULIE M/GRACE, STEVEN | 0 | 0 | $8,000.00 | 117186 | 0 |
| 28 | 04/13/2011 | PRD | Personal Representatives Deed | ROSENAU, AILEEN Y ESTATE | ROSENAU, JAMES E | | | $0.00 | 115860 | 0 |
| 29 | 09/29/2009 | QCD | Quit Claim Deed | FAMILY ROSENAU LIMITED PA | ROSENAU, JAMES E/AILEEN Y | 0 | 0 | $0.00 | 113495 | 0 |
| 30 | 01/26/2009 | SWD | Statutory Warranty Deed | JACOBSON, SANFORD J/CAROL | BASK, TERRY/SUZY | 0 | 0 | $13,000.00 | 112464 | 0 |
| 31 | 05/01/2008 | QCD | Quit Claim Deed | FLANNIGAN, MIKE E | FLANNIGAN, MIKE/KEVIN/KATIE | | | $0.00 | 111251 | 0 |
| 32 | 05/15/2007 | SWD | Statutory Warranty Deed | PELTON, DONALD D | GRAHAM, GEORGE C | | | $9,000.00 | 109313 | 0 |
| 33 | 04/16/2007 | SWD | Statutory Warranty Deed | PELTON, DONALD D | ARCHER,DEBORAH/RIDLEY,VICTORIA | | | $8,500.00 | 109056 | 0 |
| 34 | 02/20/2007 | SWD | Statutory Warranty Deed | ROSENAU, J E/AILEEN Y | ROSENAU FAMILY LIMITED PARTNER | 0 | 0 | $0.00 | 99584 | 0 |
| 35 | 06/22/2006 | SWD | Statutory Warranty Deed | WILL, JAMES W/MURIEL J | MCKENDRY, GARLA SUE/PAUL | | | $0.00 | 107189 | 0 |
| 36 | 06/22/2006 | SWD | Statutory Warranty Deed | WILL, HAMES W/MURIEL J | WILL, JLAMES M/SALLY | | | $0.00 | 107188 | 0 |
| 37 | 06/22/2006 | SWD | Statutory Warranty Deed | WILL, JAMES W/MURIEL J | ANDERSON, JR, STEPHEN E/BONNIE | | | $0.00 | 107187 | 0 |
| 38 | 09/16/2005 | WD | Warranty Deed | CARMAN III, JOSEPH ESTATE | CARMAN, BARBARA STETSON | 0 | 0 | $0.00 | 104896 | 0 |
| 39 | 09/02/2004 | QCD | Quit Claim Deed | STIMPSON, CURTIS E/DIANE | FLANNIGAN, MICHAEL | 0 | 0 | $0.00 | 101405 | 0 |
| 40 | 06/15/2004 | QCD | Quit Claim Deed | FLANNIGAN, MICHAEL | STIMPSON, CURTIS E/DIANE E | 0 | 0 | $0.00 | 101404 | 0 |
| 41 | 04/29/2004 | SWD | Statutory Warranty Deed | PELTON, DONALD | FLANNIGAN, MICHAEL | 0 | 0 | $9,000.00 | 100231 | 0 |
| 42 | 01/27/2004 | SWD | Statutory Warranty Deed | BURKE, JOSEPH D/ESTATE | KALALOCH HOUSE ASSOCIATION | 0 | 0 | $7,500.00 | 99451 | 0 |
| 43 | 02/12/2003 | WD | Warranty Deed | TRACY, DORIS D, TRACY, MA | TRACY, MARY KATHLEEN TRACY-TIE | 0 | 0 | $0.00 | 96611 | 0 |
| 44 | 07/11/2002 | MISC | MISC | REX/JOANNE RATHBUN | REX/JOANNE RATHBUN TRUST | 0 | 0 | $0.00 | 95293 | 0 |
| 45 | 06/05/2002 | SWD | Statutory Warranty Deed | STEVEN & TERESE GRACE | JAMES C GRACE | 0 | 0 | $0.00 | 94963 | 0 |
| 46 | 11/15/2000 | SWD | Statutory Warranty Deed | GRACE, STEVEN J & TERESE | PLUMLEY, THOMAS, SPEER, SABINE | 0 | 0 | $8,000.00 | 91091 | 0 |
| 47 | 12/02/1999 | SWD | Statutory Warranty Deed | BUNKER, JUDITH J | FLANNIGAN, MIKE E | 0 | 0 | $8,000.00 | 88631 | 0 |
| 48 | 08/20/1999 | SWD | Statutory Warranty Deed | FINANCIAL SECURITY SERVIC | JACOBSON, SANFORD J/CAROLYN L | 0 | 0 | $11,000.00 | 87800 | 0 |
| 49 | 06/15/1999 | SWD | Statutory Warranty Deed | FAMILY ROSENAU LIMITED PR | WILL, JAMES M/SALLY M | 0 | 0 | $4,500.00 | 87214 | 0 |
| 50 | 06/10/1999 | SWD | Statutory Warranty Deed | WILL, JAMES M/SALLY M | FAMILY ROSENAU LIMITED PRTNSHP | 0 | 0 | $4,500.00 | 87216 | 0 |
| 51 | 06/09/1999 | SWD | Statutory Warranty Deed | FINANCIAL SECURITY SERVIC | WILL, JAMES M/SALLY M | 0 | 0 | $8,000.00 | 87155 | 0 |
| 52 | 06/03/1999 | SWD | Statutory Warranty Deed | ROSENAU FAMILY LP | HOSKINS, ROBERT E/TRUST | 0 | 0 | $9,000.00 | 87130 | 0 |
| 53 | 06/02/1999 | SWD | Statutory Warranty Deed | FINANCIAL SECURITY SERVIC | FAMILY ROSENAU LTD PRTNSHP | 0 | 0 | $9,000.00 | 87103 | 0 |
| 54 | 05/06/1999 | QCD | Quit Claim Deed | MCLAUGHLIN, LEONARD E & D | FLANNIGAN, MICHAEL E & CORINNE | 0 | 0 | $0.00 | 88283 | 0 |
| 55 | 03/08/1999 | SWD | Statutory Warranty Deed | LUCAS, EDNA F | STEARMAN, RICHARD/KATHLEEN | 0 | 0 | $10,000.00 | 86563 | 0 |
| 56 | 10/16/1998 | QCD | Quit Claim Deed | IULO, WILLIAM/EMMA E | IULO, WILLIAM & EMMA E/TRUST | 0 | 0 | $0.00 | 85531 | 0 |
| 57 | 03/26/1998 | QCD | Quit Claim Deed | HOSKINSON, ROBERT E | HOSKINSON, ROBERT E/TRUST | 0 | 0 | $0.00 | 84151 | 0 |
| 58 | 09/11/1997 | SWD | Statutory Warranty Deed | SOLLO, JACQUELYN G/PATRIC | BUNKER, JUDITH J | 0 | 0 | $1,700.00 | 82816 | 0 |
| 59 | 06/10/1997 | QCD | Quit Claim Deed | ROSENAU, JAMES E/AILEEN | FAMILY ROSENAU LIMITED PRTNSHP | 0 | 0 | $0.00 | 82169 | 0 |
| 60 | 04/10/1997 | QCD | Quit Claim Deed | ROSENAU, JAMES E/AILEEN | ROSENAU FAMILY L P | 0 | 0 | $0.00 | 81782 | 0 |
| 61 | 01/10/1996 | QCD | Quit Claim Deed | FLANNIGAN, CORINNE L | FLANNIGAN, MICHAEL E | 0 | 0 | $0.00 | 79291 | 0 |
| 62 | 07/12/1995 | SWD | Statutory Warranty Deed | FINANCIAL SECURITY SERVIC | LEFEBER, SALLY C/ROBERT L | 0 | 0 | $4,500.00 | 77357 | 0 |
| 63 | 03/15/1995 | SWD | Statutory Warranty Deed | FINANCIAL SECURITY SERVIC | WILL, JAMES M/SALLY M | 0 | 0 | $7,500.00 | 76501 | 0 |
| 64 | 03/15/1995 | SWD | Statutory Warranty Deed | WILSON, JERRY D | GILL FAMILY LIMITED PARTNERSHP | 0 | 0 | $7,500.00 | 76502 | 0 |
| 65 | 05/03/1994 | SWD | Statutory Warranty Deed | BURKE, JOSEPH D/CATHERINE | GRACE, STEVEN J/TERESE M | 0 | 0 | $18,000.00 | 74044 | 0 |
| 66 | 02/08/1994 | SWD | Statutory Warranty Deed | BURKE, JOSEPH D/CATHERINE | FOLEY, MICHAEL G/KATHERINE E | 0 | 0 | $3,800.00 | 73322 | 0 |
| 67 | 03/24/1993 | WD | Warranty Deed | BURKE, JOSEPH/CATHERINE | HOSKINSON, ROBERT | 0 | 0 | $3,800.00 | 70731 | 0 |