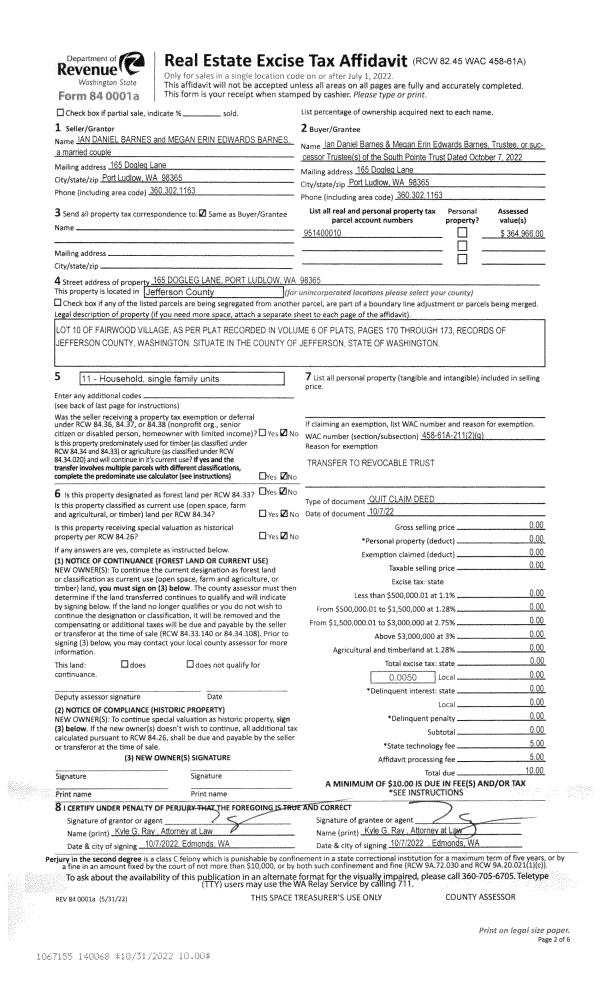
Property
Account |
| Property ID: | 28951 | Abbreviated Legal Description: | FAIRWOOD VILLAGE LOT 10 |
| Parcel # / Geo ID: | 951400010 | Agent Code: | |
| Type: | Real | | |
| Tax Area: | 0213 - 1-49F1E1H2L1 | Land Use Code | 11 |
| Open Space: | N | DFL | N |
| Historic Property: | N | Remodel Property: | N |
| Multi-Family Redevelopment: | N | | |
| Township: | 28N | Section: | 21 |
| Range: | 1E |
Location |
| Address: | 165 DOGLEG LN PORT LUDLOW, WA 98365 | Mapsco: | 024/063 |
| Neighborhood: | TEAL LAKE VILLAGE & FAIRWOOD VILLAGE | Map ID: | |
| Neighborhood CD: | 3351 |
Owner |
| Name: | DOUGLAS S & KATHRYN M POSTLEWAIT | Owner ID: | 109497 |
| Mailing Address: | 165 DOGLEG LN PORT LUDLOW, WA 98365 | % Ownership: | 100.0000000000% |
| | | Exemptions: | |
Pay Tax Due
There is currently No Amount Due on this property.
Taxes and Assessment Details
Property Tax Information as of
03/10/2026
Click on "Statement Details" to expand or collapse a tax statement.
* Please enter a valid date ** Please enter a valid date *
Statement Details |
| | TOTAL: | $0.00 | $0.00 | $0.00 | $0.00 | $0.00 | $0.00 |
|
| | $0.00 | $0.00 | $0.00 | $0.00 | $0.00 | $0.00 |
Values
| (+) Improvement Homesite Value: | + | $0 | |
| (+) Improvement Non-Homesite Value: | + | $444,970 | |
| (+) Land Homesite Value: | + | $0 | |
| (+) Land Non-Homesite Value: | + | $108,413 | |
| (+) Curr Use (HS): | + | $0 | $0 |
| (+) Curr Use (NHS): | + | $0 | $0 |
| | | -------------------------- | |
| (=) Market Value: | = | $553,383 | |
| (–) Productivity Loss: | – | $0 | |
| | | -------------------------- | |
| (=) Subtotal: | = | $553,383 | |
| (+) Senior Appraised Value: | + | $0 | |
| (+) Non-Senior Appraised Value: | + | $553,383 | |
| | | -------------------------- | |
| (=) Total Appraised Value: | = | $553,383 | |
| (–) Senior Exemption Loss: | – | $0 | |
| (–) Exemption Loss: | – | $0 | |
| | | -------------------------- | |
| (=) Taxable Value: | = | $553,383 | |
Taxing Jurisdiction
| Owner: | DOUGLAS S & KATHRYN M POSTLEWAIT | | |
| % Ownership: | 100.0000000000% | | |
| Total Value: | $553,383 | | |
| Tax Area: | 0213 - 1-49F1E1H2L1 |
| CE | COUNTY CURRENT EXPENSE | 0.9034619479 | $553,383 | $553,383 | $499.96 | | |
| CNTYDD | DEVELOPMENTAL DISABILITIES | 0.0052121823 | $553,383 | $553,383 | $2.88 | | |
| CNTYVET | VETERANS RELIEF | 0.0052777810 | $553,383 | $553,383 | $2.92 | | |
| MENTAL | MENTAL HEALTH | 0.0052121823 | $553,383 | $553,383 | $2.88 | | |
| ROADS | COUNTY ROADS | 0.7415066410 | $553,383 | $553,383 | $410.34 | | |
| ROADSCU | COUNTY ROADS TO CUR EXP | 0.0000000000 | $553,383 | $553,383 | $0.00 | | |
| HOSP2CASH | HOSP DIST #2 GENERAL | 0.0536075306 | $553,383 | $553,383 | $29.67 | | |
| SCH49CP | SCHOOL DIST #49 CAP PROJ | 0.6279093905 | $553,383 | $553,383 | $347.47 | | |
| SCH49MO | SCHOOL DIST #49 EP & O | 0.6376483602 | $553,383 | $553,383 | $352.86 | | |
| CONSERVE | CONSERVATION FUTURES | 0.0275621078 | $553,383 | $553,383 | $15.25 | | |
| EMS1 | FIRE DIST #1 EMS | 0.4679948282 | $553,383 | $553,383 | $258.98 | | |
| FD1 | FIRE DIST #1 GENERAL | 1.2171942929 | $553,383 | $553,383 | $673.57 | | |
| LIB1 | LIBRARY DIST #1 GENERAL | 0.2868827388 | $553,383 | $553,383 | $158.76 | | |
| PORTPT | PORT OF PT GENERAL | 0.1134941229 | $553,383 | $553,383 | $62.81 | | |
| PORTPTIDD | PORT OF PT IDD 2019 | 0.2577346692 | $553,383 | $553,383 | $142.63 | | |
| PUD1 | PUD #1 GENERAL | 0.0597888892 | $553,383 | $553,383 | $33.09 | | |
| STATE | STATE SCHOOL PART 1 | 1.4940692947 | $553,383 | $553,383 | $826.79 | | |
| STATE2 | STATE SCHOOL PART 2 | 0.8050170049 | $553,383 | $553,383 | $445.48 | | |
| | Total Tax Rate: | 7.7095739644 | | | | | |
| | | | | Taxes w/Current Exemptions: | $4,266.34 | | |
| | | | | Taxes w/o Exemptions: | $4,266.34 | | |
Improvement / Building
| Improvement #1: | Residential Bldg | State Code: | 11 | 1450.0 sqft | Value: | $444,970 |
| Bathrooms (#): | 2 (FULL) | Bathrooms (#): | 1 (HALF) | | Bedrooms (#): | 2 | Exterior Wall: | SI/ST | | Fireplace: | SIN 1-GOOD | Floor Construction: | FRAME | | Foundation: | CONPR | Heating/Cooling: | HPUMP | | Roof Cover: | TILE |   |   |
|
| | Type | Description | Class CD | Sub Class CD | Year Built | Area |
| | MA | Main Area | 4+ | 1S | 1994 | 1450.0 |
| | PATIO | House Patio | 4 | 1S | 1994 | 120.0 |
| | HCPOR | House Concrete Porch | 4 | 1S | 1994 | 32.0 |
| | GATT | House Attached Garage | 4 | 1S | 1994 | 519.0 |
| | CONCD | Concrete Drive | 4 | 1S | 1994 | 700.0 |
| | HDECK | House Deck | 4 | 1S | 1994 | 470.0 |
| | ADDN-D | Addition (Table Depreciated) | 4 | 1S | 1994 | 64.0 |
Sketch
Property Image
Land
| 1 | 3351-1175L | Avg Golf Course or Terr View Lots | 0.0000 | 0.00 | 0.00 | 0.00 | 1.00 | $108,413 | $0 |
Roll Value History
| 2026 | N/A | N/A | N/A | N/A | N/A |
| 2025 | $444,970 | $108,413 | $0 | $553,383 | $553,383 |
| 2024 | $444,970 | $108,413 | $0 | $553,383 | $553,383 |
| 2023 | $425,623 | $98,250 | $0 | $523,873 | $523,873 |
| 2022 | $404,815 | $93,250 | $0 | $498,065 | $498,065 |
Deed and Sales History
| 1 | 08/02/2023 | SWD | Statutory Warranty Deed | IAN D & MEGAN E BARNES | DOUGLAS S & KATHRYN M POSTLEWAIT | | | $570,000.00 | 141355 | |
| 2 | 08/02/2023 | QCD | Quit Claim Deed | IAN D & MEGAN E BARNES TRUSTEE | IAN D & MEGAN E BARNES | | | | 141354 | |
| 3 | 10/07/2022 | QCD | Quit Claim Deed | IAN D & MEGAN E BARNES | IAN D & MEGAN E BARNES TRUSTEE | | | | 140068 | |
| 4 | 11/01/2021 | SWD | Statutory Warranty Deed | JENNIFER L TOWNSAN | IAN D & MEGAN E BARNES | | | $501,000.00 | 137992 | |
| 5 | 11/01/2021 | QCD | Quit Claim Deed | JAN M PHILIPS | JENNIFER L PHILIPS | | | | 137991 | |
| 6 | 08/12/2019 | SWD | Statutory Warranty Deed | WILLIAM E THOMPSON | JENNIFER L TOWNSAN | | | $349,000.00 | 132972 | |
| 7 | 09/07/2007 | SWD | Statutory Warranty Deed | SCHAIBLE, HOWARD/RUTH | THOMPSON, WILLIAM E | 0 | 0 | $360,000.00 | 110017 | 0 |
| 8 | 05/04/1995 | SWD | Statutory Warranty Deed | POPE RESOURCES | SCHAIBLE, HOWARD R/RUTH J | 0 | 0 | $168,500.00 | 76853 | 0 |
Payout Agreement
| No payout information available.. |