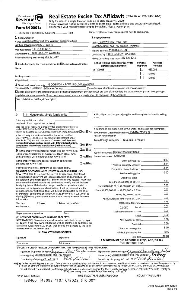
Property
Account |
| Property ID: | 28956 | Abbreviated Legal Description: | FAIRWOOD VILLAGE LOT 15 |
| Parcel # / Geo ID: | 951400015 | Agent Code: | |
| Type: | Real | | |
| Tax Area: | 0213 - 1-49F1E1H2L1 | Land Use Code | 11 |
| Open Space: | N | DFL | N |
| Historic Property: | N | Remodel Property: | N |
| Multi-Family Redevelopment: | N | | |
| Township: | 28N | Section: | 21 |
| Range: | 1E |
Location |
| Address: | 113 DOGLEG LN PORT LUDLOW, WA 98365 | Mapsco: | 024/068 |
| Neighborhood: | TEAL LAKE VILLAGE & FAIRWOOD VILLAGE | Map ID: | |
| Neighborhood CD: | 3351 |
Owner |
| Name: | BAKER WINSLOW LIVING TRUST | Owner ID: | 113511 |
| Mailing Address: | JOSEPHINE BAKER TRUSTEE TROY WINSLOW TRUSTEE 113 DOGLEG LN PORT LUDLOW, WA 98365-9581 | % Ownership: | 100.0000000000% |
| | | Exemptions: | |
Pay Tax Due
Select the appropriate checkbox next to the year to be paid. Multiple years may be selected.
*Convenience Fee not included
Taxes and Assessment Details
Property Tax Information as of
03/12/2026
Click on "Statement Details" to expand or collapse a tax statement.
* Please enter a valid date ** Please enter a valid date *
Statement Details |
| 2026 | 18277 | STATE - STATE LEVY (SCHOOL) | $647.21 | $647.19 | $0.00 | $0.00 | $0.00 | $1294.40 |
| 2026 | 18277 | COUNTY - COUNTY LEVIES (CE, DD, VET, MH) | $258.76 | $258.72 | $0.00 | $0.00 | $0.00 | $517.48 |
| 2026 | 18277 | CONSERVE - CONSERVATION FUTURES | $7.76 | $7.76 | $0.00 | $0.00 | $0.00 | $15.52 |
| 2026 | 18277 | COROADS - COUNTY ROADS (ROADS, DIV TO CE) | $208.74 | $208.73 | $0.00 | $0.00 | $0.00 | $417.47 |
| 2026 | 18277 | PORTPT - PORT DISTRICT | $104.51 | $104.50 | $0.00 | $0.00 | $0.00 | $209.01 |
| 2026 | 18277 | PUD1 - PUD #1 | $16.83 | $16.83 | $0.00 | $0.00 | $0.00 | $33.66 |
| 2026 | 18277 | LIB1 - LIBRARY DIST #1 | $80.76 | $80.76 | $0.00 | $0.00 | $0.00 | $161.52 |
| 2026 | 18277 | HD2 - HOSP DIST #2 | $15.09 | $15.09 | $0.00 | $0.00 | $0.00 | $30.18 |
| 2026 | 18277 | SD49 - SCHOOL DIST #49 | $356.26 | $356.26 | $0.00 | $0.00 | $0.00 | $712.52 |
| 2026 | 18277 | FD1 - FIRE DISTRICT #1 | $342.65 | $342.64 | $0.00 | $0.00 | $0.00 | $685.29 |
| 2026 | 18277 | EMS1 - FIRE DIST #1 EMS | $131.74 | $131.74 | $0.00 | $0.00 | $0.00 | $263.48 |
| 2026 | 18277 | JCCD - JC Conservation District | $2.55 | $2.55 | $0.00 | $0.00 | $0.00 | $5.10 |
| 2026 | 18277 | NWA - Noxious Weed Assessment | $2.98 | $2.97 | $0.00 | $0.00 | $0.00 | $5.95 |
| 2026 | 18277 | TOTAL: | $2175.84 | $2175.74 | $0.00 | $0.00 | $0.00 | $4351.58 |
|
| 2026 | 18277 | $2175.84 | $2175.74 | $0.00 | $0.00 | $0.00 | $4351.58 |
Statement Details |
| 2025 | 18336 | STATE - STATE LEVY (SCHOOL) | $675.06 | $675.04 | $0.00 | $0.00 | $1350.10 | $0.00 |
| 2025 | 18336 | COUNTY - COUNTY LEVIES (CE, DD, VET, MH) | $265.46 | $265.45 | $0.00 | $0.00 | $530.91 | $0.00 |
| 2025 | 18336 | CONSERVE - CONSERVATION FUTURES | $7.96 | $7.96 | $0.00 | $0.00 | $15.92 | $0.00 |
| 2025 | 18336 | COROADS - COUNTY ROADS (ROADS, DIV TO CE) | $212.68 | $212.67 | $0.00 | $0.00 | $425.35 | $0.00 |
| 2025 | 18336 | PORTPT - PORT DISTRICT | $108.33 | $108.32 | $0.00 | $0.00 | $216.65 | $0.00 |
| 2025 | 18336 | PUD1 - PUD #1 | $17.37 | $17.37 | $0.00 | $0.00 | $34.74 | $0.00 |
| 2025 | 18336 | LIB1 - LIBRARY DIST #1 | $82.28 | $82.28 | $0.00 | $0.00 | $164.56 | $0.00 |
| 2025 | 18336 | HD2 - HOSP DIST #2 | $15.49 | $15.49 | $0.00 | $0.00 | $30.98 | $0.00 |
| 2025 | 18336 | SD49 - SCHOOL DIST #49 | $361.79 | $361.78 | $0.00 | $0.00 | $723.57 | $0.00 |
| 2025 | 18336 | FD1 - FIRE DISTRICT #1 | $350.30 | $350.30 | $0.00 | $0.00 | $700.60 | $0.00 |
| 2025 | 18336 | EMS1 - FIRE DIST #1 EMS | $134.74 | $134.73 | $0.00 | $0.00 | $269.47 | $0.00 |
| 2025 | 18336 | JCCD - JC Conservation District | $2.55 | $2.55 | $0.00 | $0.00 | $5.10 | $0.00 |
| 2025 | 18336 | NWA - Noxious Weed Assessment | $2.15 | $2.15 | $0.00 | $0.00 | $4.30 | $0.00 |
| 2025 | 18336 | TOTAL: | $2236.16 | $2236.09 | $0.00 | $0.00 | $4472.25 | $0.00 |
|
| 2025 | 18336 | $2236.16 | $2236.09 | $0.00 | $0.00 | $4472.25 | $0.00 |
Statement Details |
| 2024 | 18373 | STATE - STATE LEVY (SCHOOL) | $616.74 | $616.72 | $0.00 | $0.00 | $1233.46 | $0.00 |
| 2024 | 18373 | COUNTY - COUNTY LEVIES (CE, DD, VET, MH) | $263.91 | $263.90 | $0.00 | $0.00 | $527.81 | $0.00 |
| 2024 | 18373 | CONSERVE - CONSERVATION FUTURES | $7.92 | $7.91 | $0.00 | $0.00 | $15.83 | $0.00 |
| 2024 | 18373 | COROADS - COUNTY ROADS (ROADS, DIV TO CE) | $212.36 | $212.35 | $0.00 | $0.00 | $424.71 | $0.00 |
| 2024 | 18373 | PORTPT - PORT DISTRICT | $109.01 | $109.00 | $0.00 | $0.00 | $218.01 | $0.00 |
| 2024 | 18373 | PUD1 - PUD #1 | $17.34 | $17.33 | $0.00 | $0.00 | $34.67 | $0.00 |
| 2024 | 18373 | LIB1 - LIBRARY DIST #1 | $82.16 | $82.16 | $0.00 | $0.00 | $164.32 | $0.00 |
| 2024 | 18373 | HD2 - HOSP DIST #2 | $15.40 | $15.40 | $0.00 | $0.00 | $30.80 | $0.00 |
| 2024 | 18373 | SD49 - SCHOOL DIST #49 | $275.41 | $275.39 | $0.00 | $0.00 | $550.80 | $0.00 |
| 2024 | 18373 | FD1 - FIRE DISTRICT #1 | $348.95 | $348.94 | $0.00 | $0.00 | $697.89 | $0.00 |
| 2024 | 18373 | EMS1 - FIRE DIST #1 EMS | $133.29 | $133.28 | $0.00 | $0.00 | $266.57 | $0.00 |
| 2024 | 18373 | JCCD - JC Conservation District | $2.55 | $2.55 | $0.00 | $0.00 | $5.10 | $0.00 |
| 2024 | 18373 | NWA - Noxious Weed Assessment | $2.15 | $2.15 | $0.00 | $0.00 | $4.30 | $0.00 |
| 2024 | 18373 | TOTAL: | $2087.19 | $2087.08 | $0.00 | $0.00 | $4174.27 | $0.00 |
|
| 2024 | 18373 | $2087.19 | $2087.08 | $0.00 | $0.00 | $4174.27 | $0.00 |
Statement Details |
| 2023 | 18410 | STATE - STATE LEVY (SCHOOL) | $621.66 | $621.65 | $0.00 | $0.00 | $1243.31 | $0.00 |
| 2023 | 18410 | COUNTY - COUNTY LEVIES (CE, DD, VET, MH) | $271.27 | $271.27 | $0.00 | $0.00 | $542.54 | $0.00 |
| 2023 | 18410 | CONSERVE - CONSERVATION FUTURES | $8.14 | $8.13 | $0.00 | $0.00 | $16.27 | $0.00 |
| 2023 | 18410 | COROADS - COUNTY ROADS (ROADS, DIV TO CE) | $219.49 | $219.47 | $0.00 | $0.00 | $438.96 | $0.00 |
| 2023 | 18410 | PORTPT - PORT DISTRICT | $114.28 | $114.27 | $0.00 | $0.00 | $228.55 | $0.00 |
| 2023 | 18410 | PUD1 - PUD #1 | $17.98 | $17.98 | $0.00 | $0.00 | $35.96 | $0.00 |
| 2023 | 18410 | LIB1 - LIBRARY DIST #1 | $84.92 | $84.91 | $0.00 | $0.00 | $169.83 | $0.00 |
| 2023 | 18410 | HD2 - HOSP DIST #2 | $15.83 | $15.83 | $0.00 | $0.00 | $31.66 | $0.00 |
| 2023 | 18410 | SD49 - SCHOOL DIST #49 | $290.59 | $290.59 | $0.00 | $0.00 | $581.18 | $0.00 |
| 2023 | 18410 | FD3 - FIRE DISTRICT #3 | $269.88 | $269.88 | $0.00 | $0.00 | $539.76 | $0.00 |
| 2023 | 18410 | EMS3 - FIRE DIST #3 EMS | $96.48 | $96.48 | $0.00 | $0.00 | $192.96 | $0.00 |
| 2023 | 18410 | JCCD - JC Conservation District | $2.55 | $2.55 | $0.00 | $0.00 | $5.10 | $0.00 |
| 2023 | 18410 | NWA - Noxious Weed Assessment | $2.15 | $2.15 | $0.00 | $0.00 | $4.30 | $0.00 |
| 2023 | 18410 | TOTAL: | $2015.22 | $2015.16 | $0.00 | $0.00 | $4030.38 | $0.00 |
|
| 2023 | 18410 | $2015.22 | $2015.16 | $0.00 | $0.00 | $4030.38 | $0.00 |
Values
| (+) Improvement Homesite Value: | + | $0 | |
| (+) Improvement Non-Homesite Value: | + | $468,504 | |
| (+) Land Homesite Value: | + | $0 | |
| (+) Land Non-Homesite Value: | + | $94,500 | |
| (+) Curr Use (HS): | + | $0 | $0 |
| (+) Curr Use (NHS): | + | $0 | $0 |
| | | -------------------------- | |
| (=) Market Value: | = | $563,004 | |
| (–) Productivity Loss: | – | $0 | |
| | | -------------------------- | |
| (=) Subtotal: | = | $563,004 | |
| (+) Senior Appraised Value: | + | $0 | |
| (+) Non-Senior Appraised Value: | + | $563,004 | |
| | | -------------------------- | |
| (=) Total Appraised Value: | = | $563,004 | |
| (–) Senior Exemption Loss: | – | $0 | |
| (–) Exemption Loss: | – | $0 | |
| | | -------------------------- | |
| (=) Taxable Value: | = | $563,004 | |
Taxing Jurisdiction
| Owner: | BAKER WINSLOW LIVING TRUST | | |
| % Ownership: | 100.0000000000% | | |
| Total Value: | $563,004 | | |
| Tax Area: | 0213 - 1-49F1E1H2L1 |
| CE | COUNTY CURRENT EXPENSE | 0.9034619479 | $563,004 | $563,004 | $508.65 | | |
| CNTYDD | DEVELOPMENTAL DISABILITIES | 0.0052121823 | $563,004 | $563,004 | $2.93 | | |
| CNTYVET | VETERANS RELIEF | 0.0052777810 | $563,004 | $563,004 | $2.97 | | |
| MENTAL | MENTAL HEALTH | 0.0052121823 | $563,004 | $563,004 | $2.93 | | |
| ROADS | COUNTY ROADS | 0.7415066410 | $563,004 | $563,004 | $417.47 | | |
| ROADSCU | COUNTY ROADS TO CUR EXP | 0.0000000000 | $563,004 | $563,004 | $0.00 | | |
| HOSP2CASH | HOSP DIST #2 GENERAL | 0.0536075306 | $563,004 | $563,004 | $30.18 | | |
| SCH49CP | SCHOOL DIST #49 CAP PROJ | 0.6279093905 | $563,004 | $563,004 | $353.52 | | |
| SCH49MO | SCHOOL DIST #49 EP & O | 0.6376483602 | $563,004 | $563,004 | $359.00 | | |
| CONSERVE | CONSERVATION FUTURES | 0.0275621078 | $563,004 | $563,004 | $15.52 | | |
| EMS1 | FIRE DIST #1 EMS | 0.4679948282 | $563,004 | $563,004 | $263.48 | | |
| FD1 | FIRE DIST #1 GENERAL | 1.2171942929 | $563,004 | $563,004 | $685.29 | | |
| LIB1 | LIBRARY DIST #1 GENERAL | 0.2868827388 | $563,004 | $563,004 | $161.52 | | |
| PORTPT | PORT OF PT GENERAL | 0.1134941229 | $563,004 | $563,004 | $63.90 | | |
| PORTPTIDD | PORT OF PT IDD 2019 | 0.2577346692 | $563,004 | $563,004 | $145.11 | | |
| PUD1 | PUD #1 GENERAL | 0.0597888892 | $563,004 | $563,004 | $33.66 | | |
| STATE | STATE SCHOOL PART 1 | 1.4940692947 | $563,004 | $563,004 | $841.17 | | |
| STATE2 | STATE SCHOOL PART 2 | 0.8050170049 | $563,004 | $563,004 | $453.23 | | |
| | Total Tax Rate: | 7.7095739644 | | | | | |
| | | | | Taxes w/Current Exemptions: | $4,340.53 | | |
| | | | | Taxes w/o Exemptions: | $4,340.53 | | |
Improvement / Building
| Improvement #1: | Residential Bldg | State Code: | 11 | 1887.0 sqft | Value: | $468,504 |
| Bathrooms (#): | 2 (FULL) | Bedrooms (#): | 3 | | Exterior Wall: | SI/ST | Fireplace: | SIN 1-GOOD | | Floor Construction: | FRAME | Foundation: | CONPR | | Heating/Cooling: | HPUMP | Inside Verify: | YES | | Roof Cover: | TILE |   |   |
|
| | Type | Description | Class CD | Sub Class CD | Year Built | Area |
| | MA | Main Area | 4 | 1S | 1995 | 1887.0 |
| | PATIO | House Patio | 4 | 1S | 1995 | 240.0 |
| | HCPOR | House Concrete Porch | 4 | 1S | 1995 | 18.0 |
| | GATT | House Attached Garage | 4 | 1S | 1995 | 450.0 |
| | CONCD | Concrete Drive | 4 | 1S | 1995 | 800.0 |
Sketch
Property Image
Land
| 1 | 3351-1177L | | 0.0000 | 0.00 | 0.00 | 0.00 | 1.00 | $94,500 | $0 |
Roll Value History
| 2026 | N/A | N/A | N/A | N/A | N/A |
| 2025 | $468,504 | $94,500 | $0 | $563,004 | $563,004 |
| 2024 | $468,504 | $94,500 | $0 | $563,004 | $563,004 |
| 2023 | $448,135 | $85,000 | $0 | $533,135 | $533,135 |
| 2022 | $448,135 | $80,000 | $0 | $528,135 | $528,135 |
Deed and Sales History
| 1 | 10/10/2025 | SWD | Statutory Warranty Deed | TROY WINSLOW | BAKER WINSLOW LIVING TRUST | | | | 145095 | |
| 2 | 03/04/2024 | PRD | Personal Representatives Deed | WILLIAM J MARLEY | TROY WINSLOW | | | $537,000.00 | 142301 | |
| 3 | 07/01/2019 | SWD | Statutory Warranty Deed | NICHOLAS C & SHARON K FERDERER | WILLIAM J MARLEY | | | $408,000.00 | 132674 | |
| 4 | 09/15/2016 | SWD | Statutory Warranty Deed | MILTON D CRONK TRSTEE | NICHOLAS C & SHARON K FERDERER | | | $306,000.00 | 126281 | |
| 5 | 04/05/2012 | SWD | Statutory Warranty Deed | HENDERSON TSTEE, CRAIGEN | CRONK TSTEE, MILTON D/SHIRLEY | 0 | 0 | $180,000.00 | 117411 | 0 |
| 6 | 09/03/2010 | QCD | Quit Claim Deed | HENDERSON EST ET AL, ALAN | HENDERSON FAMILY TRUST | 0 | 0 | $0.00 | 114890 | 0 |
| 7 | 02/10/2010 | QCD | Quit Claim Deed | HENDERSON FAMILY TRUST | HENDERSON, ALAN/SYLVIA | 0 | 0 | $0.00 | 114041 | 0 |
| 8 | 08/10/2009 | QCD | Quit Claim Deed | HENDERSON, ALAN K/SYLVIA | HENDERSON, AK/SS TRUST | 0 | 0 | $0.00 | 113275 | 0 |
| 9 | 08/24/2004 | SWD | Statutory Warranty Deed | EWALDSEN, OTTO * PHOEBE/T | HENDERSON, ALAN K & SYLVIA S | 0 | 0 | $249,500.00 | 101333 | 0 |
| 10 | 02/06/1995 | SWD | Statutory Warranty Deed | POPE RESOURCES | EWALDSEN FAMILY TRUST | 0 | 0 | $200,500.00 | 76228 | 0 |
Payout Agreement
| No payout information available.. |