Property
Account |
| Property ID: | 28963 | Abbreviated Legal Description: | FAIRWAY VILLAGE UNIT 1-A |
| Parcel # / Geo ID: | 951500101 | Agent Code: | |
| Type: | Real | | |
| Tax Area: | 0213 - 1-49F1E1H2L1 | Land Use Code | 14 |
| Open Space: | N | DFL | N |
| Historic Property: | N | Remodel Property: | N |
| Multi-Family Redevelopment: | N | | |
| Township: | 28N | Section: | 21 |
| Range: | 1E |
Location |
| Address: | 20 A FAIRWAY LN PORT LUDLOW, WA 98365 | Mapsco: | 024/030 |
| Neighborhood: | CYCLE 3 CONDOMINIUMS - PORT LUDLOW | Map ID: | |
| Neighborhood CD: | 3900 |
Owner |
| Name: | COLE GALLOWAY FAMILY TRUST | Owner ID: | 100945 |
| Mailing Address: | TIMOTHY H COLE TRUSTEE KATHLEEN A GALLOWAY TRUSTEE 20A FAIRWAY LN PORT LUDLOW, WA 98365-9553 | % Ownership: | 100.0000000000% |
| | | Exemptions: | |
Pay Tax Due
Select the appropriate checkbox next to the year to be paid. Multiple years may be selected.
*Convenience Fee not included
Taxes and Assessment Details
Property Tax Information as of
03/10/2026
Click on "Statement Details" to expand or collapse a tax statement.
* Please enter a valid date ** Please enter a valid date *
Statement Details |
| 2026 | 18284 | STATE - STATE LEVY (SCHOOL) | $544.13 | $544.12 | $0.00 | $0.00 | $0.00 | $1088.25 |
| 2026 | 18284 | COUNTY - COUNTY LEVIES (CE, DD, VET, MH) | $217.55 | $217.53 | $0.00 | $0.00 | $0.00 | $435.08 |
| 2026 | 18284 | CONSERVE - CONSERVATION FUTURES | $6.53 | $6.52 | $0.00 | $0.00 | $0.00 | $13.05 |
| 2026 | 18284 | COROADS - COUNTY ROADS (ROADS, DIV TO CE) | $175.49 | $175.49 | $0.00 | $0.00 | $0.00 | $350.98 |
| 2026 | 18284 | PORTPT - PORT DISTRICT | $87.86 | $87.86 | $0.00 | $0.00 | $0.00 | $175.72 |
| 2026 | 18284 | PUD1 - PUD #1 | $14.15 | $14.15 | $0.00 | $0.00 | $0.00 | $28.30 |
| 2026 | 18284 | LIB1 - LIBRARY DIST #1 | $67.90 | $67.89 | $0.00 | $0.00 | $0.00 | $135.79 |
| 2026 | 18284 | HD2 - HOSP DIST #2 | $12.69 | $12.68 | $0.00 | $0.00 | $0.00 | $25.37 |
| 2026 | 18284 | SD49 - SCHOOL DIST #49 | $299.52 | $299.51 | $0.00 | $0.00 | $0.00 | $599.03 |
| 2026 | 18284 | FD1 - FIRE DISTRICT #1 | $288.08 | $288.07 | $0.00 | $0.00 | $0.00 | $576.15 |
| 2026 | 18284 | EMS1 - FIRE DIST #1 EMS | $110.76 | $110.76 | $0.00 | $0.00 | $0.00 | $221.52 |
| 2026 | 18284 | JCCD - JC Conservation District | $2.55 | $2.55 | $0.00 | $0.00 | $0.00 | $5.10 |
| 2026 | 18284 | NWA - Noxious Weed Assessment | $2.98 | $2.97 | $0.00 | $0.00 | $0.00 | $5.95 |
| 2026 | 18284 | TOTAL: | $1830.19 | $1830.10 | $0.00 | $0.00 | $0.00 | $3660.29 |
|
| 2026 | 18284 | $1830.19 | $1830.10 | $0.00 | $0.00 | $0.00 | $3660.29 |
Statement Details |
| 2025 | 18343 | STATE - STATE LEVY (SCHOOL) | $567.55 | $567.53 | $0.00 | $0.00 | $1135.08 | $0.00 |
| 2025 | 18343 | COUNTY - COUNTY LEVIES (CE, DD, VET, MH) | $223.20 | $223.18 | $0.00 | $0.00 | $446.38 | $0.00 |
| 2025 | 18343 | CONSERVE - CONSERVATION FUTURES | $6.69 | $6.69 | $0.00 | $0.00 | $13.38 | $0.00 |
| 2025 | 18343 | COROADS - COUNTY ROADS (ROADS, DIV TO CE) | $178.81 | $178.80 | $0.00 | $0.00 | $357.61 | $0.00 |
| 2025 | 18343 | PORTPT - PORT DISTRICT | $91.08 | $91.06 | $0.00 | $0.00 | $182.14 | $0.00 |
| 2025 | 18343 | PUD1 - PUD #1 | $14.61 | $14.60 | $0.00 | $0.00 | $29.21 | $0.00 |
| 2025 | 18343 | LIB1 - LIBRARY DIST #1 | $69.18 | $69.18 | $0.00 | $0.00 | $138.36 | $0.00 |
| 2025 | 18343 | HD2 - HOSP DIST #2 | $13.02 | $13.02 | $0.00 | $0.00 | $26.04 | $0.00 |
| 2025 | 18343 | SD49 - SCHOOL DIST #49 | $304.17 | $304.16 | $0.00 | $0.00 | $608.33 | $0.00 |
| 2025 | 18343 | FD1 - FIRE DISTRICT #1 | $294.52 | $294.51 | $0.00 | $0.00 | $589.03 | $0.00 |
| 2025 | 18343 | EMS1 - FIRE DIST #1 EMS | $113.28 | $113.28 | $0.00 | $0.00 | $226.56 | $0.00 |
| 2025 | 18343 | JCCD - JC Conservation District | $2.55 | $2.55 | $0.00 | $0.00 | $5.10 | $0.00 |
| 2025 | 18343 | NWA - Noxious Weed Assessment | $2.15 | $2.15 | $0.00 | $0.00 | $4.30 | $0.00 |
| 2025 | 18343 | TOTAL: | $1880.81 | $1880.71 | $0.00 | $0.00 | $3761.52 | $0.00 |
|
| 2025 | 18343 | $1880.81 | $1880.71 | $0.00 | $0.00 | $3761.52 | $0.00 |
Statement Details |
| 2024 | 18380 | STATE - STATE LEVY (SCHOOL) | $505.44 | $505.44 | $0.00 | $0.00 | $1010.88 | $0.00 |
| 2024 | 18380 | COUNTY - COUNTY LEVIES (CE, DD, VET, MH) | $216.29 | $216.27 | $0.00 | $0.00 | $432.56 | $0.00 |
| 2024 | 18380 | CONSERVE - CONSERVATION FUTURES | $6.49 | $6.48 | $0.00 | $0.00 | $12.97 | $0.00 |
| 2024 | 18380 | COROADS - COUNTY ROADS (ROADS, DIV TO CE) | $174.04 | $174.03 | $0.00 | $0.00 | $348.07 | $0.00 |
| 2024 | 18380 | PORTPT - PORT DISTRICT | $89.34 | $89.33 | $0.00 | $0.00 | $178.67 | $0.00 |
| 2024 | 18380 | PUD1 - PUD #1 | $14.21 | $14.20 | $0.00 | $0.00 | $28.41 | $0.00 |
| 2024 | 18380 | LIB1 - LIBRARY DIST #1 | $67.34 | $67.33 | $0.00 | $0.00 | $134.67 | $0.00 |
| 2024 | 18380 | HD2 - HOSP DIST #2 | $12.62 | $12.62 | $0.00 | $0.00 | $25.24 | $0.00 |
| 2024 | 18380 | SD49 - SCHOOL DIST #49 | $225.71 | $225.70 | $0.00 | $0.00 | $451.41 | $0.00 |
| 2024 | 18380 | FD1 - FIRE DISTRICT #1 | $285.98 | $285.97 | $0.00 | $0.00 | $571.95 | $0.00 |
| 2024 | 18380 | EMS1 - FIRE DIST #1 EMS | $109.24 | $109.23 | $0.00 | $0.00 | $218.47 | $0.00 |
| 2024 | 18380 | JCCD - JC Conservation District | $2.55 | $2.55 | $0.00 | $0.00 | $5.10 | $0.00 |
| 2024 | 18380 | NWA - Noxious Weed Assessment | $2.15 | $2.15 | $0.00 | $0.00 | $4.30 | $0.00 |
| 2024 | 18380 | TOTAL: | $1711.40 | $1711.30 | $0.00 | $0.00 | $3422.70 | $0.00 |
|
| 2024 | 18380 | $1711.40 | $1711.30 | $0.00 | $0.00 | $3422.70 | $0.00 |
Statement Details |
| 2023 | 18417 | STATE - STATE LEVY (SCHOOL) | $504.81 | $504.80 | $0.00 | $0.00 | $1009.61 | $0.00 |
| 2023 | 18417 | COUNTY - COUNTY LEVIES (CE, DD, VET, MH) | $220.29 | $220.27 | $0.00 | $0.00 | $440.56 | $0.00 |
| 2023 | 18417 | CONSERVE - CONSERVATION FUTURES | $6.61 | $6.60 | $0.00 | $0.00 | $13.21 | $0.00 |
| 2023 | 18417 | COROADS - COUNTY ROADS (ROADS, DIV TO CE) | $178.23 | $178.22 | $0.00 | $0.00 | $356.45 | $0.00 |
| 2023 | 18417 | PORTPT - PORT DISTRICT | $92.80 | $92.79 | $0.00 | $0.00 | $185.59 | $0.00 |
| 2023 | 18417 | PUD1 - PUD #1 | $14.60 | $14.60 | $0.00 | $0.00 | $29.20 | $0.00 |
| 2023 | 18417 | LIB1 - LIBRARY DIST #1 | $68.96 | $68.95 | $0.00 | $0.00 | $137.91 | $0.00 |
| 2023 | 18417 | HD2 - HOSP DIST #2 | $12.86 | $12.85 | $0.00 | $0.00 | $25.71 | $0.00 |
| 2023 | 18417 | SD49 - SCHOOL DIST #49 | $235.97 | $235.97 | $0.00 | $0.00 | $471.94 | $0.00 |
| 2023 | 18417 | FD3 - FIRE DISTRICT #3 | $219.15 | $219.15 | $0.00 | $0.00 | $438.30 | $0.00 |
| 2023 | 18417 | EMS3 - FIRE DIST #3 EMS | $78.35 | $78.34 | $0.00 | $0.00 | $156.69 | $0.00 |
| 2023 | 18417 | JCCD - JC Conservation District | $2.55 | $2.55 | $0.00 | $0.00 | $5.10 | $0.00 |
| 2023 | 18417 | NWA - Noxious Weed Assessment | $2.15 | $2.15 | $0.00 | $0.00 | $4.30 | $0.00 |
| 2023 | 18417 | TOTAL: | $1637.33 | $1637.24 | $0.00 | $0.00 | $3274.57 | $0.00 |
|
| 2023 | 18417 | $1637.33 | $1637.24 | $0.00 | $0.00 | $3274.57 | $0.00 |
Values
| (+) Improvement Homesite Value: | + | $0 | |
| (+) Improvement Non-Homesite Value: | + | $352,590 | |
| (+) Land Homesite Value: | + | $0 | |
| (+) Land Non-Homesite Value: | + | $120,750 | |
| (+) Curr Use (HS): | + | $0 | $0 |
| (+) Curr Use (NHS): | + | $0 | $0 |
| | | -------------------------- | |
| (=) Market Value: | = | $473,340 | |
| (–) Productivity Loss: | – | $0 | |
| | | -------------------------- | |
| (=) Subtotal: | = | $473,340 | |
| (+) Senior Appraised Value: | + | $0 | |
| (+) Non-Senior Appraised Value: | + | $473,340 | |
| | | -------------------------- | |
| (=) Total Appraised Value: | = | $473,340 | |
| (–) Senior Exemption Loss: | – | $0 | |
| (–) Exemption Loss: | – | $0 | |
| | | -------------------------- | |
| (=) Taxable Value: | = | $473,340 | |
Taxing Jurisdiction
| Owner: | COLE GALLOWAY FAMILY TRUST | | |
| % Ownership: | 100.0000000000% | | |
| Total Value: | $473,340 | | |
| Tax Area: | 0213 - 1-49F1E1H2L1 |
| CE | COUNTY CURRENT EXPENSE | 0.9034619479 | $473,340 | $473,340 | $427.64 | | |
| CNTYDD | DEVELOPMENTAL DISABILITIES | 0.0052121823 | $473,340 | $473,340 | $2.47 | | |
| CNTYVET | VETERANS RELIEF | 0.0052777810 | $473,340 | $473,340 | $2.50 | | |
| MENTAL | MENTAL HEALTH | 0.0052121823 | $473,340 | $473,340 | $2.47 | | |
| ROADS | COUNTY ROADS | 0.7415066410 | $473,340 | $473,340 | $350.98 | | |
| ROADSCU | COUNTY ROADS TO CUR EXP | 0.0000000000 | $473,340 | $473,340 | $0.00 | | |
| HOSP2CASH | HOSP DIST #2 GENERAL | 0.0536075306 | $473,340 | $473,340 | $25.37 | | |
| SCH49CP | SCHOOL DIST #49 CAP PROJ | 0.6279093905 | $473,340 | $473,340 | $297.21 | | |
| SCH49MO | SCHOOL DIST #49 EP & O | 0.6376483602 | $473,340 | $473,340 | $301.82 | | |
| CONSERVE | CONSERVATION FUTURES | 0.0275621078 | $473,340 | $473,340 | $13.05 | | |
| EMS1 | FIRE DIST #1 EMS | 0.4679948282 | $473,340 | $473,340 | $221.52 | | |
| FD1 | FIRE DIST #1 GENERAL | 1.2171942929 | $473,340 | $473,340 | $576.15 | | |
| LIB1 | LIBRARY DIST #1 GENERAL | 0.2868827388 | $473,340 | $473,340 | $135.79 | | |
| PORTPT | PORT OF PT GENERAL | 0.1134941229 | $473,340 | $473,340 | $53.72 | | |
| PORTPTIDD | PORT OF PT IDD 2019 | 0.2577346692 | $473,340 | $473,340 | $122.00 | | |
| PUD1 | PUD #1 GENERAL | 0.0597888892 | $473,340 | $473,340 | $28.30 | | |
| STATE | STATE SCHOOL PART 1 | 1.4940692947 | $473,340 | $473,340 | $707.20 | | |
| STATE2 | STATE SCHOOL PART 2 | 0.8050170049 | $473,340 | $473,340 | $381.05 | | |
| | Total Tax Rate: | 7.7095739644 | | | | | |
| | | | | Taxes w/Current Exemptions: | $3,649.24 | | |
| | | | | Taxes w/o Exemptions: | $3,649.24 | | |
Improvement / Building
| Improvement #1: | Residential Bldg | State Code: | 14 | 1533.0 sqft | Value: | $352,590 |
Sketch
| No sketches available for this property. |
Property Image
Land
| 1 | 9515-4175S | | 0.0000 | 0.00 | 0.00 | 0.00 | 1.00 | $120,750 | $0 |
Roll Value History
| 2026 | N/A | N/A | N/A | N/A | N/A |
| 2025 | $352,590 | $120,750 | $0 | $473,340 | $473,340 |
| 2024 | $352,590 | $120,750 | $0 | $473,340 | $473,340 |
| 2023 | $321,930 | $115,000 | $0 | $436,930 | $436,930 |
| 2022 | $318,864 | $110,000 | $0 | $428,864 | $428,864 |
Deed and Sales History
| 1 | 04/23/2019 | SWD | Statutory Warranty Deed | KENNETH A THOMAS | COLE GALLOWAY FAMILY TRUST | | | $324,900.00 | 132243 | |
| 2 | 06/29/2018 | SWD | Statutory Warranty Deed | CYNTHIA SAMPLE REVOCABLE TRUST | KENNETH A THOMAS | | | $329,500.00 | 130558 | |
| 3 | 12/11/2017 | SWD | Statutory Warranty Deed | CHARLES & GWYNETH KING | CYNTHIA SAMPLE REVOCABLE TRUST | | | $300,000.00 | 129197 | |
| 4 | 04/14/2016 | SWD | Statutory Warranty Deed | KBW TRUST | CHARLES & GWYNETH KING | | | $258,900.00 | 125315 | |
| 5 | 03/27/2013 | SWD | Statutory Warranty Deed | GO AMERICA LLC | KBW TRUST | | | $130,000.00 | 118984 | |
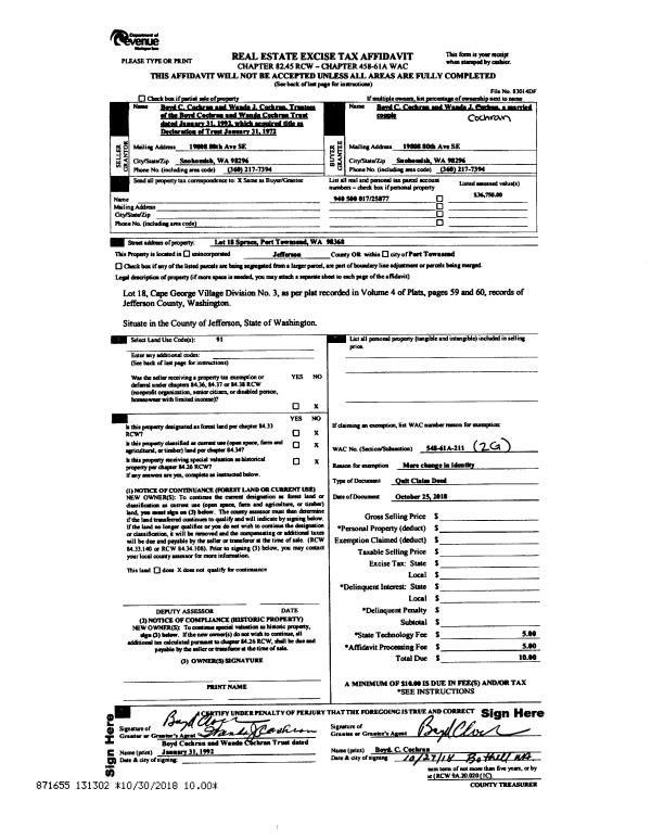
| 6 | 08/28/2012 | QCD | Quit Claim Deed | BANK OF AMERICA, NA SUCCE | GO AMERICA LLC | 0 | 0 | $108,120.00 | 118001 | 0 |
| 7 | 10/22/2011 | WD | Warranty Deed | RECONTRUST COMPANY NA | BANK OF AMERICA | 0 | 0 | $0.00 | 116761 | 0 |
| 8 | 04/25/2006 | SWD | Statutory Warranty Deed | SKODIS, ROBERT T, GRAYSON | KINKEAD, DONA/GILBERT | | | $319,500.00 | 106524 | 0 |
| 9 | 07/25/2003 | SWD | Statutory Warranty Deed | OROS, MICHAEL D/CARYL A | SKODIS, ROBERT/GRAYSON, ELINOR | 0 | 0 | $190,000.00 | 97880 | 0 |
| 10 | 10/16/1998 | SWD | Statutory Warranty Deed | CULLEN, BRUCE F/MIRIAM E | OROS, MICHAEL D/CARYL A | 0 | 0 | $160,000.00 | 85535 | 0 |
| 11 | 03/11/1992 | SWD | Statutory Warranty Deed | POPE RESOURCES | CULLEN, BRUCE F/MIRIAM E | 0 | 0 | $174,500.00 | 68021 | 0 |
Payout Agreement
| No payout information available.. |