Property
Account |
| Property ID: | 28971 | Abbreviated Legal Description: | FAIRWAY VILLAGE UNIT 2-D |
| Parcel # / Geo ID: | 951500204 | Agent Code: | |
| Type: | Real | | |
| Tax Area: | 0213 - 1-49F1E1H2L1 | Land Use Code | 14 |
| Open Space: | N | DFL | N |
| Historic Property: | N | Remodel Property: | N |
| Multi-Family Redevelopment: | N | | |
| Township: | 28N | Section: | 21 |
| Range: | 1E |
Location |
| Address: | 60 D FAIRWAY LN PORT LUDLOW, WA 98365 | Mapsco: | 024/037 |
| Neighborhood: | CYCLE 3 CONDOMINIUMS - PORT LUDLOW | Map ID: | |
| Neighborhood CD: | 3900 |
Owner |
| Name: | PAMELA GENTILE | Owner ID: | 114097 |
| Mailing Address: | 10581 SIROCCO CIR NW SILVERDALE, WA 98383-8810 | % Ownership: | 100.0000000000% |
| | | Exemptions: | |
Pay Tax Due
Select the appropriate checkbox next to the year to be paid. Multiple years may be selected.
*Convenience Fee not included
Taxes and Assessment Details
Property Tax Information as of
03/11/2026
Click on "Statement Details" to expand or collapse a tax statement.
* Please enter a valid date ** Please enter a valid date *
Statement Details |
| 2026 | 18292 | STATE - STATE LEVY (SCHOOL) | $430.74 | $430.74 | $0.00 | $0.00 | $0.00 | $861.48 |
| 2026 | 18292 | COUNTY - COUNTY LEVIES (CE, DD, VET, MH) | $172.22 | $172.19 | $0.00 | $0.00 | $0.00 | $344.41 |
| 2026 | 18292 | CONSERVE - CONSERVATION FUTURES | $5.17 | $5.16 | $0.00 | $0.00 | $0.00 | $10.33 |
| 2026 | 18292 | COROADS - COUNTY ROADS (ROADS, DIV TO CE) | $138.93 | $138.92 | $0.00 | $0.00 | $0.00 | $277.85 |
| 2026 | 18292 | PORTPT - PORT DISTRICT | $69.56 | $69.54 | $0.00 | $0.00 | $0.00 | $139.10 |
| 2026 | 18292 | PUD1 - PUD #1 | $11.20 | $11.20 | $0.00 | $0.00 | $0.00 | $22.40 |
| 2026 | 18292 | LIB1 - LIBRARY DIST #1 | $53.75 | $53.75 | $0.00 | $0.00 | $0.00 | $107.50 |
| 2026 | 18292 | HD2 - HOSP DIST #2 | $10.05 | $10.04 | $0.00 | $0.00 | $0.00 | $20.09 |
| 2026 | 18292 | SD49 - SCHOOL DIST #49 | $237.11 | $237.10 | $0.00 | $0.00 | $0.00 | $474.21 |
| 2026 | 18292 | FD1 - FIRE DISTRICT #1 | $228.05 | $228.04 | $0.00 | $0.00 | $0.00 | $456.09 |
| 2026 | 18292 | EMS1 - FIRE DIST #1 EMS | $87.68 | $87.68 | $0.00 | $0.00 | $0.00 | $175.36 |
| 2026 | 18292 | JCCD - JC Conservation District | $2.55 | $2.55 | $0.00 | $0.00 | $0.00 | $5.10 |
| 2026 | 18292 | NWA - Noxious Weed Assessment | $2.98 | $2.97 | $0.00 | $0.00 | $0.00 | $5.95 |
| 2026 | 18292 | TOTAL: | $1449.99 | $1449.88 | $0.00 | $0.00 | $0.00 | $2899.87 |
|
| 2026 | 18292 | $1449.99 | $1449.88 | $0.00 | $0.00 | $0.00 | $2899.87 |
Statement Details |
| 2025 | 18351 | STATE - STATE LEVY (SCHOOL) | $449.28 | $449.27 | $0.00 | $0.00 | $898.55 | $0.00 |
| 2025 | 18351 | COUNTY - COUNTY LEVIES (CE, DD, VET, MH) | $176.68 | $176.67 | $0.00 | $0.00 | $353.35 | $0.00 |
| 2025 | 18351 | CONSERVE - CONSERVATION FUTURES | $5.30 | $5.30 | $0.00 | $0.00 | $10.60 | $0.00 |
| 2025 | 18351 | COROADS - COUNTY ROADS (ROADS, DIV TO CE) | $141.55 | $141.54 | $0.00 | $0.00 | $283.09 | $0.00 |
| 2025 | 18351 | PORTPT - PORT DISTRICT | $72.10 | $72.09 | $0.00 | $0.00 | $144.19 | $0.00 |
| 2025 | 18351 | PUD1 - PUD #1 | $11.56 | $11.56 | $0.00 | $0.00 | $23.12 | $0.00 |
| 2025 | 18351 | LIB1 - LIBRARY DIST #1 | $54.76 | $54.76 | $0.00 | $0.00 | $109.52 | $0.00 |
| 2025 | 18351 | HD2 - HOSP DIST #2 | $10.31 | $10.31 | $0.00 | $0.00 | $20.62 | $0.00 |
| 2025 | 18351 | SD49 - SCHOOL DIST #49 | $240.79 | $240.78 | $0.00 | $0.00 | $481.57 | $0.00 |
| 2025 | 18351 | FD1 - FIRE DISTRICT #1 | $233.14 | $233.14 | $0.00 | $0.00 | $466.28 | $0.00 |
| 2025 | 18351 | EMS1 - FIRE DIST #1 EMS | $89.68 | $89.67 | $0.00 | $0.00 | $179.35 | $0.00 |
| 2025 | 18351 | JCCD - JC Conservation District | $2.55 | $2.55 | $0.00 | $0.00 | $5.10 | $0.00 |
| 2025 | 18351 | NWA - Noxious Weed Assessment | $2.15 | $2.15 | $0.00 | $0.00 | $4.30 | $0.00 |
| 2025 | 18351 | TOTAL: | $1489.85 | $1489.79 | $0.00 | $0.00 | $2979.64 | $0.00 |
|
| 2025 | 18351 | $1489.85 | $1489.79 | $0.00 | $0.00 | $2979.64 | $0.00 |
Statement Details |
| 2024 | 18388 | STATE - STATE LEVY (SCHOOL) | $401.27 | $401.25 | $0.00 | $0.00 | $802.52 | $0.00 |
| 2024 | 18388 | COUNTY - COUNTY LEVIES (CE, DD, VET, MH) | $171.71 | $171.70 | $0.00 | $0.00 | $343.41 | $0.00 |
| 2024 | 18388 | CONSERVE - CONSERVATION FUTURES | $5.15 | $5.15 | $0.00 | $0.00 | $10.30 | $0.00 |
| 2024 | 18388 | COROADS - COUNTY ROADS (ROADS, DIV TO CE) | $138.17 | $138.16 | $0.00 | $0.00 | $276.33 | $0.00 |
| 2024 | 18388 | PORTPT - PORT DISTRICT | $70.92 | $70.92 | $0.00 | $0.00 | $141.84 | $0.00 |
| 2024 | 18388 | PUD1 - PUD #1 | $11.28 | $11.28 | $0.00 | $0.00 | $22.56 | $0.00 |
| 2024 | 18388 | LIB1 - LIBRARY DIST #1 | $53.46 | $53.45 | $0.00 | $0.00 | $106.91 | $0.00 |
| 2024 | 18388 | HD2 - HOSP DIST #2 | $10.02 | $10.02 | $0.00 | $0.00 | $20.04 | $0.00 |
| 2024 | 18388 | SD49 - SCHOOL DIST #49 | $179.19 | $179.17 | $0.00 | $0.00 | $358.36 | $0.00 |
| 2024 | 18388 | FD1 - FIRE DISTRICT #1 | $227.04 | $227.03 | $0.00 | $0.00 | $454.07 | $0.00 |
| 2024 | 18388 | EMS1 - FIRE DIST #1 EMS | $86.72 | $86.72 | $0.00 | $0.00 | $173.44 | $0.00 |
| 2024 | 18388 | JCCD - JC Conservation District | $2.55 | $2.55 | $0.00 | $0.00 | $5.10 | $0.00 |
| 2024 | 18388 | NWA - Noxious Weed Assessment | $2.15 | $2.15 | $0.00 | $0.00 | $4.30 | $0.00 |
| 2024 | 18388 | TOTAL: | $1359.63 | $1359.55 | $0.00 | $0.00 | $2719.18 | $0.00 |
|
| 2024 | 18388 | $1359.63 | $1359.55 | $0.00 | $0.00 | $2719.18 | $0.00 |
Statement Details |
| 2023 | 18425 | STATE - STATE LEVY (SCHOOL) | $368.02 | $368.00 | $0.00 | $0.00 | $736.02 | $0.00 |
| 2023 | 18425 | COUNTY - COUNTY LEVIES (CE, DD, VET, MH) | $160.59 | $160.58 | $0.00 | $0.00 | $321.17 | $0.00 |
| 2023 | 18425 | CONSERVE - CONSERVATION FUTURES | $4.82 | $4.81 | $0.00 | $0.00 | $9.63 | $0.00 |
| 2023 | 18425 | COROADS - COUNTY ROADS (ROADS, DIV TO CE) | $129.93 | $129.92 | $0.00 | $0.00 | $259.85 | $0.00 |
| 2023 | 18425 | PORTPT - PORT DISTRICT | $67.65 | $67.65 | $0.00 | $0.00 | $135.30 | $0.00 |
| 2023 | 18425 | PUD1 - PUD #1 | $10.65 | $10.64 | $0.00 | $0.00 | $21.29 | $0.00 |
| 2023 | 18425 | LIB1 - LIBRARY DIST #1 | $50.27 | $50.26 | $0.00 | $0.00 | $100.53 | $0.00 |
| 2023 | 18425 | HD2 - HOSP DIST #2 | $9.37 | $9.37 | $0.00 | $0.00 | $18.74 | $0.00 |
| 2023 | 18425 | SD49 - SCHOOL DIST #49 | $172.03 | $172.02 | $0.00 | $0.00 | $344.05 | $0.00 |
| 2023 | 18425 | FD3 - FIRE DISTRICT #3 | $159.76 | $159.76 | $0.00 | $0.00 | $319.52 | $0.00 |
| 2023 | 18425 | EMS3 - FIRE DIST #3 EMS | $57.12 | $57.11 | $0.00 | $0.00 | $114.23 | $0.00 |
| 2023 | 18425 | JCCD - JC Conservation District | $2.55 | $2.55 | $0.00 | $0.00 | $5.10 | $0.00 |
| 2023 | 18425 | NWA - Noxious Weed Assessment | $2.15 | $2.15 | $0.00 | $0.00 | $4.30 | $0.00 |
| 2023 | 18425 | TOTAL: | $1194.91 | $1194.82 | $0.00 | $0.00 | $2389.73 | $0.00 |
|
| 2023 | 18425 | $1194.91 | $1194.82 | $0.00 | $0.00 | $2389.73 | $0.00 |
Values
| (+) Improvement Homesite Value: | + | $0 | |
| (+) Improvement Non-Homesite Value: | + | $253,955 | |
| (+) Land Homesite Value: | + | $0 | |
| (+) Land Non-Homesite Value: | + | $120,750 | |
| (+) Curr Use (HS): | + | $0 | $0 |
| (+) Curr Use (NHS): | + | $0 | $0 |
| | | -------------------------- | |
| (=) Market Value: | = | $374,705 | |
| (–) Productivity Loss: | – | $0 | |
| | | -------------------------- | |
| (=) Subtotal: | = | $374,705 | |
| (+) Senior Appraised Value: | + | $0 | |
| (+) Non-Senior Appraised Value: | + | $374,705 | |
| | | -------------------------- | |
| (=) Total Appraised Value: | = | $374,705 | |
| (–) Senior Exemption Loss: | – | $0 | |
| (–) Exemption Loss: | – | $0 | |
| | | -------------------------- | |
| (=) Taxable Value: | = | $374,705 | |
Taxing Jurisdiction
| Owner: | PAMELA GENTILE | | |
| % Ownership: | 100.0000000000% | | |
| Total Value: | $374,705 | | |
| Tax Area: | 0213 - 1-49F1E1H2L1 |
| CE | COUNTY CURRENT EXPENSE | 0.9034619479 | $374,705 | $374,705 | $338.53 | | |
| CNTYDD | DEVELOPMENTAL DISABILITIES | 0.0052121823 | $374,705 | $374,705 | $1.95 | | |
| CNTYVET | VETERANS RELIEF | 0.0052777810 | $374,705 | $374,705 | $1.98 | | |
| MENTAL | MENTAL HEALTH | 0.0052121823 | $374,705 | $374,705 | $1.95 | | |
| ROADS | COUNTY ROADS | 0.7415066410 | $374,705 | $374,705 | $277.85 | | |
| ROADSCU | COUNTY ROADS TO CUR EXP | 0.0000000000 | $374,705 | $374,705 | $0.00 | | |
| HOSP2CASH | HOSP DIST #2 GENERAL | 0.0536075306 | $374,705 | $374,705 | $20.09 | | |
| SCH49CP | SCHOOL DIST #49 CAP PROJ | 0.6279093905 | $374,705 | $374,705 | $235.28 | | |
| SCH49MO | SCHOOL DIST #49 EP & O | 0.6376483602 | $374,705 | $374,705 | $238.93 | | |
| CONSERVE | CONSERVATION FUTURES | 0.0275621078 | $374,705 | $374,705 | $10.33 | | |
| EMS1 | FIRE DIST #1 EMS | 0.4679948282 | $374,705 | $374,705 | $175.36 | | |
| FD1 | FIRE DIST #1 GENERAL | 1.2171942929 | $374,705 | $374,705 | $456.09 | | |
| LIB1 | LIBRARY DIST #1 GENERAL | 0.2868827388 | $374,705 | $374,705 | $107.50 | | |
| PORTPT | PORT OF PT GENERAL | 0.1134941229 | $374,705 | $374,705 | $42.53 | | |
| PORTPTIDD | PORT OF PT IDD 2019 | 0.2577346692 | $374,705 | $374,705 | $96.57 | | |
| PUD1 | PUD #1 GENERAL | 0.0597888892 | $374,705 | $374,705 | $22.40 | | |
| STATE | STATE SCHOOL PART 1 | 1.4940692947 | $374,705 | $374,705 | $559.84 | | |
| STATE2 | STATE SCHOOL PART 2 | 0.8050170049 | $374,705 | $374,705 | $301.64 | | |
| | Total Tax Rate: | 7.7095739644 | | | | | |
| | | | | Taxes w/Current Exemptions: | $2,888.82 | | |
| | | | | Taxes w/o Exemptions: | $2,888.82 | | |
Improvement / Building
| Improvement #1: | Residential Bldg | State Code: | 14 | 1299.0 sqft | Value: | $253,955 |
Sketch
| No sketches available for this property. |
Property Image
Land
| 1 | 9515-4175S | | 0.0000 | 0.00 | 0.00 | 0.00 | 1.00 | $120,750 | $0 |
Roll Value History
| 2026 | N/A | N/A | N/A | N/A | N/A |
| 2025 | $253,955 | $120,750 | $0 | $374,705 | $374,705 |
| 2024 | $253,955 | $120,750 | $0 | $374,705 | $374,705 |
| 2023 | $231,872 | $115,000 | $0 | $346,872 | $346,872 |
| 2022 | $202,644 | $110,000 | $0 | $312,644 | $312,644 |
Deed and Sales History
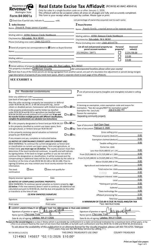
| 1 | 02/05/2026 | QCD | Quit Claim Deed | DONALD B PROPP | PAMELA GENTILE | | | | 145657 | |
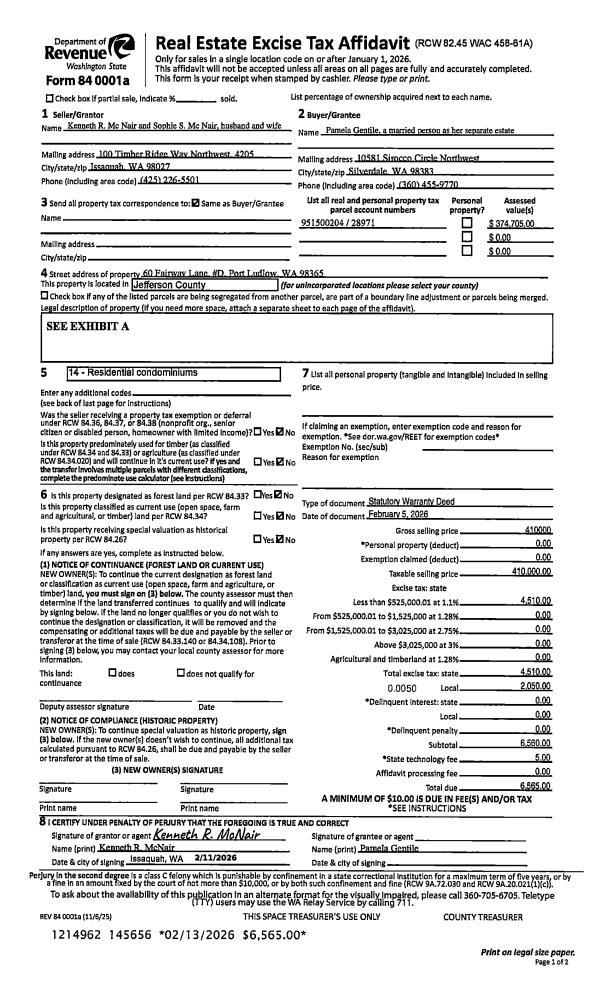
| 2 | 02/05/2026 | SWD | Statutory Warranty Deed | KENNETH R MC NAIR | PAMELA GENTILE | | | $410,000.00 | 145656 | |
Payout Agreement
| No payout information available.. |