Property
Account |
| Property ID: | 28995 | Abbreviated Legal Description: | FOREST PARK, A CONDOMINIUM UNIT B-3 INCLUDING GARAGE E |
| Parcel # / Geo ID: | 951800007 | Agent Code: | |
| Type: | Real | | |
| Tax Area: | 0110 - C-50F1E1H2 | Land Use Code | 14 |
| Open Space: | N | DFL | N |
| Historic Property: | N | Remodel Property: | N |
| Multi-Family Redevelopment: | N | | |
| Township: | 30N | Section: | 15 |
| Range: | 1W |
Location |
| Address: | 23 GRANT ST B-3 PORT TOWNSEND, WA 98368 | Mapsco: | 046/096 |
| Neighborhood: | CYCLE 6 CONDOMINIUMS - PORT TOWNSEND | Map ID: | |
| Neighborhood CD: | 6900 |
Owner |
| Name: | ELISA WESTALL | Owner ID: | 106744 |
| Mailing Address: | 3122 HAINES ST PORT TOWNSEND, WA 98368-6113 | % Ownership: | 100.0000000000% |
| | | Exemptions: | |
Pay Tax Due
Select the appropriate checkbox next to the year to be paid. Multiple years may be selected.
*Convenience Fee not included
Taxes and Assessment Details
Property Tax Information as of
03/10/2026
Click on "Statement Details" to expand or collapse a tax statement.
* Please enter a valid date ** Please enter a valid date *
Statement Details |
| 2026 | 18316 | STATE - STATE LEVY (SCHOOL) | $450.50 | $450.49 | $0.00 | $0.00 | $0.00 | $900.99 |
| 2026 | 18316 | COUNTY - COUNTY LEVIES (CE, DD, VET, MH) | $180.11 | $180.10 | $0.00 | $0.00 | $0.00 | $360.21 |
| 2026 | 18316 | CONSERVE - CONSERVATION FUTURES | $5.40 | $5.40 | $0.00 | $0.00 | $0.00 | $10.80 |
| 2026 | 18316 | CITYPT - CITY OF PT | $255.65 | $255.64 | $0.00 | $0.00 | $0.00 | $511.29 |
| 2026 | 18316 | PORTPT - PORT DISTRICT | $72.74 | $72.74 | $0.00 | $0.00 | $0.00 | $145.48 |
| 2026 | 18316 | PUD1 - PUD #1 | $11.72 | $11.71 | $0.00 | $0.00 | $0.00 | $23.43 |
| 2026 | 18316 | HD2 - HOSP DIST #2 | $10.51 | $10.50 | $0.00 | $0.00 | $0.00 | $21.01 |
| 2026 | 18316 | SD50 - SCHOOL DIST #50 | $356.90 | $356.88 | $0.00 | $0.00 | $0.00 | $713.78 |
| 2026 | 18316 | FD1 - FIRE DISTRICT #1 | $238.51 | $238.50 | $0.00 | $0.00 | $0.00 | $477.01 |
| 2026 | 18316 | EMS1 - FIRE DIST #1 EMS | $91.70 | $91.70 | $0.00 | $0.00 | $0.00 | $183.40 |
| 2026 | 18316 | JCCD - JC Conservation District | $2.55 | $2.55 | $0.00 | $0.00 | $0.00 | $5.10 |
| 2026 | 18316 | NWA - Noxious Weed Assessment | $2.98 | $2.97 | $0.00 | $0.00 | $0.00 | $5.95 |
| 2026 | 18316 | TOTAL: | $1679.27 | $1679.18 | $0.00 | $0.00 | $0.00 | $3358.45 |
|
| 2026 | 18316 | $1679.27 | $1679.18 | $0.00 | $0.00 | $0.00 | $3358.45 |
Statement Details |
| 2025 | 18375 | STATE - STATE LEVY (SCHOOL) | $450.92 | $450.92 | $0.00 | $0.00 | $901.84 | $0.00 |
| 2025 | 18375 | COUNTY - COUNTY LEVIES (CE, DD, VET, MH) | $177.34 | $177.31 | $0.00 | $0.00 | $354.65 | $0.00 |
| 2025 | 18375 | CONSERVE - CONSERVATION FUTURES | $5.32 | $5.31 | $0.00 | $0.00 | $10.63 | $0.00 |
| 2025 | 18375 | CITYPT - CITY OF PT | $255.72 | $255.71 | $0.00 | $0.00 | $511.43 | $0.00 |
| 2025 | 18375 | PORTPT - PORT DISTRICT | $72.37 | $72.35 | $0.00 | $0.00 | $144.72 | $0.00 |
| 2025 | 18375 | PUD1 - PUD #1 | $11.61 | $11.60 | $0.00 | $0.00 | $23.21 | $0.00 |
| 2025 | 18375 | HD2 - HOSP DIST #2 | $10.35 | $10.34 | $0.00 | $0.00 | $20.69 | $0.00 |
| 2025 | 18375 | SD50 - SCHOOL DIST #50 | $329.56 | $329.54 | $0.00 | $0.00 | $659.10 | $0.00 |
| 2025 | 18375 | FD1 - FIRE DISTRICT #1 | $234.00 | $233.99 | $0.00 | $0.00 | $467.99 | $0.00 |
| 2025 | 18375 | EMS1 - FIRE DIST #1 EMS | $90.00 | $90.00 | $0.00 | $0.00 | $180.00 | $0.00 |
| 2025 | 18375 | JCCD - JC Conservation District | $2.55 | $2.55 | $0.00 | $0.00 | $5.10 | $0.00 |
| 2025 | 18375 | NWA - Noxious Weed Assessment | $2.15 | $2.15 | $0.00 | $0.00 | $4.30 | $0.00 |
| 2025 | 18375 | TOTAL: | $1641.89 | $1641.77 | $0.00 | $0.00 | $3283.66 | $0.00 |
|
| 2025 | 18375 | $1641.89 | $1641.77 | $0.00 | $0.00 | $3283.66 | $0.00 |
Statement Details |
| 2024 | 18412 | STATE - STATE LEVY (SCHOOL) | $377.91 | $377.90 | $0.00 | $0.00 | $755.81 | $0.00 |
| 2024 | 18412 | COUNTY - COUNTY LEVIES (CE, DD, VET, MH) | $161.73 | $161.70 | $0.00 | $0.00 | $323.43 | $0.00 |
| 2024 | 18412 | CONSERVE - CONSERVATION FUTURES | $4.85 | $4.85 | $0.00 | $0.00 | $9.70 | $0.00 |
| 2024 | 18412 | CITYPT - CITY OF PT | $231.07 | $231.05 | $0.00 | $0.00 | $462.12 | $0.00 |
| 2024 | 18412 | PORTPT - PORT DISTRICT | $66.80 | $66.78 | $0.00 | $0.00 | $133.58 | $0.00 |
| 2024 | 18412 | PUD1 - PUD #1 | $10.62 | $10.62 | $0.00 | $0.00 | $21.24 | $0.00 |
| 2024 | 18412 | HD2 - HOSP DIST #2 | $9.44 | $9.43 | $0.00 | $0.00 | $18.87 | $0.00 |
| 2024 | 18412 | SD50 - SCHOOL DIST #50 | $305.75 | $305.74 | $0.00 | $0.00 | $611.49 | $0.00 |
| 2024 | 18412 | FD1 - FIRE DISTRICT #1 | $213.82 | $213.82 | $0.00 | $0.00 | $427.64 | $0.00 |
| 2024 | 18412 | EMS1 - FIRE DIST #1 EMS | $81.67 | $81.67 | $0.00 | $0.00 | $163.34 | $0.00 |
| 2024 | 18412 | JCCD - JC Conservation District | $2.55 | $2.55 | $0.00 | $0.00 | $5.10 | $0.00 |
| 2024 | 18412 | NWA - Noxious Weed Assessment | $2.15 | $2.15 | $0.00 | $0.00 | $4.30 | $0.00 |
| 2024 | 18412 | TOTAL: | $1468.36 | $1468.26 | $0.00 | $0.00 | $2936.62 | $0.00 |
|
| 2024 | 18412 | $1468.36 | $1468.26 | $0.00 | $0.00 | $2936.62 | $0.00 |
Statement Details |
| 2023 | 18449 | STATE - STATE LEVY (SCHOOL) | $372.17 | $372.16 | $0.00 | $0.00 | $744.33 | $0.00 |
| 2023 | 18449 | COUNTY - COUNTY LEVIES (CE, DD, VET, MH) | $162.41 | $162.39 | $0.00 | $0.00 | $324.80 | $0.00 |
| 2023 | 18449 | CONSERVE - CONSERVATION FUTURES | $4.87 | $4.87 | $0.00 | $0.00 | $9.74 | $0.00 |
| 2023 | 18449 | CITYPT - CITY OF PT | $229.53 | $229.53 | $0.00 | $0.00 | $459.06 | $0.00 |
| 2023 | 18449 | PORTPT - PORT DISTRICT | $68.41 | $68.41 | $0.00 | $0.00 | $136.82 | $0.00 |
| 2023 | 18449 | PUD1 - PUD #1 | $10.77 | $10.76 | $0.00 | $0.00 | $21.53 | $0.00 |
| 2023 | 18449 | HD2 - HOSP DIST #2 | $9.48 | $9.47 | $0.00 | $0.00 | $18.95 | $0.00 |
| 2023 | 18449 | SD50 - SCHOOL DIST #50 | $295.33 | $295.32 | $0.00 | $0.00 | $590.65 | $0.00 |
| 2023 | 18449 | FD1 - FIRE DISTRICT #1 | $133.79 | $133.78 | $0.00 | $0.00 | $267.57 | $0.00 |
| 2023 | 18449 | EMS1 - FIRE DIST #1 EMS | $56.91 | $56.91 | $0.00 | $0.00 | $113.82 | $0.00 |
| 2023 | 18449 | JCCD - JC Conservation District | $2.55 | $2.55 | $0.00 | $0.00 | $5.10 | $0.00 |
| 2023 | 18449 | NWA - Noxious Weed Assessment | $2.15 | $2.15 | $0.00 | $0.00 | $4.30 | $0.00 |
| 2023 | 18449 | TOTAL: | $1348.37 | $1348.30 | $0.00 | $0.00 | $2696.67 | $0.00 |
|
| 2023 | 18449 | $1348.37 | $1348.30 | $0.00 | $0.00 | $2696.67 | $0.00 |
Values
| (+) Improvement Homesite Value: | + | $0 | |
| (+) Improvement Non-Homesite Value: | + | $254,391 | |
| (+) Land Homesite Value: | + | $0 | |
| (+) Land Non-Homesite Value: | + | $137,500 | |
| (+) Curr Use (HS): | + | $0 | $0 |
| (+) Curr Use (NHS): | + | $0 | $0 |
| | | -------------------------- | |
| (=) Market Value: | = | $391,891 | |
| (–) Productivity Loss: | – | $0 | |
| | | -------------------------- | |
| (=) Subtotal: | = | $391,891 | |
| (+) Senior Appraised Value: | + | $0 | |
| (+) Non-Senior Appraised Value: | + | $391,891 | |
| | | -------------------------- | |
| (=) Total Appraised Value: | = | $391,891 | |
| (–) Senior Exemption Loss: | – | $0 | |
| (–) Exemption Loss: | – | $0 | |
| | | -------------------------- | |
| (=) Taxable Value: | = | $391,891 | |
Taxing Jurisdiction
| Owner: | ELISA WESTALL | | |
| % Ownership: | 100.0000000000% | | |
| Total Value: | $391,891 | | |
| Tax Area: | 0110 - C-50F1E1H2 |
| CE | COUNTY CURRENT EXPENSE | 0.9034619479 | $391,891 | $391,891 | $354.06 | | |
| CNTYDD | DEVELOPMENTAL DISABILITIES | 0.0052121823 | $391,891 | $391,891 | $2.04 | | |
| CNTYVET | VETERANS RELIEF | 0.0052777810 | $391,891 | $391,891 | $2.07 | | |
| MENTAL | MENTAL HEALTH | 0.0052121823 | $391,891 | $391,891 | $2.04 | | |
| PTGEN | CITY OF PT GENERAL | 0.8551967795 | $391,891 | $391,891 | $335.14 | | |
| PTLLL | CITY OF PT - LIBRARY LID LIFT | 0.4010114288 | $391,891 | $391,891 | $157.15 | | |
| PTMVBOND | CITY OF PT MV BOND | 0.0484717981 | $391,891 | $391,891 | $19.00 | | |
| HOSP2CASH | HOSP DIST #2 GENERAL | 0.0536075306 | $391,891 | $391,891 | $21.01 | | |
| SCH50BOND | SCHOOL DIST #50 BOND 2016 | 0.5377451389 | $391,891 | $391,891 | $210.74 | | |
| SCH50CP | SCHOOL DIST #50 CAP PROJ | 0.4573475088 | $391,891 | $391,891 | $179.23 | | |
| SCH50MO | SCHOOL DIST #50 EP & O | 0.8262822886 | $391,891 | $391,891 | $323.81 | | |
| CONSERVE | CONSERVATION FUTURES | 0.0275621078 | $391,891 | $391,891 | $10.80 | | |
| EMS1 | FIRE DIST #1 EMS | 0.4679948282 | $391,891 | $391,891 | $183.40 | | |
| FD1 | FIRE DIST #1 GENERAL | 1.2171942929 | $391,891 | $391,891 | $477.01 | | |
| PORTPT | PORT OF PT GENERAL | 0.1134941229 | $391,891 | $391,891 | $44.48 | | |
| PORTPTIDD | PORT OF PT IDD 2019 | 0.2577346692 | $391,891 | $391,891 | $101.00 | | |
| PUD1 | PUD #1 GENERAL | 0.0597888892 | $391,891 | $391,891 | $23.43 | | |
| STATE | STATE SCHOOL PART 1 | 1.4940692947 | $391,891 | $391,891 | $585.51 | | |
| STATE2 | STATE SCHOOL PART 2 | 0.8050170049 | $391,891 | $391,891 | $315.48 | | |
| | Total Tax Rate: | 8.5416817766 | | | | | |
| | | | | Taxes w/Current Exemptions: | $3,347.40 | | |
| | | | | Taxes w/o Exemptions: | $3,347.40 | | |
Improvement / Building
| Improvement #1: | Residential Bldg | State Code: | 14 | 977.0 sqft | Value: | $254,391 |
| Bathrooms (#): | 2 (FULL) | Bedrooms (#): | 2 | | Exterior Wall: | SI/ST | Floor Construction: | FRAME | | Foundation: | CONPR | Heating/Cooling: | ELBB | | Inside Verify: | YES-FIX | Roof Cover: | COMP |
|
| | Type | Description | Class CD | Sub Class CD | Year Built | Area |
| | MA | Main Area | 5 | D2S | 1993 | 977.0 |
| | HBAL | House Balcony | 5 | * | 1993 | 90.0 |
| | HCPOR | House Concrete Porch | 5 | * | 1993 | 20.0 |
| | HENCL | House Enclosure | 5 | * | 1993 | 18.0 |
| | DDET | Duplex Detached Garage | 3 | D2S | 1993 | 217.0 |
Sketch
| No sketches available for this property. |
Property Image
Land
| 1 | 9518-4175S | | 0.0000 | 0.00 | 0.00 | 0.00 | 1.00 | $137,500 | $0 |
Roll Value History
| 2026 | N/A | N/A | N/A | N/A | N/A |
| 2025 | $254,391 | $137,500 | $0 | $391,891 | $391,891 |
| 2024 | $249,579 | $126,500 | $0 | $376,079 | $376,079 |
| 2023 | $211,182 | $115,500 | $0 | $326,682 | $326,682 |
| 2022 | $206,176 | $110,000 | $0 | $316,176 | $316,176 |
Deed and Sales History
| 1 | 12/08/2022 | QCD | Quit Claim Deed | MICHAEL LEDONNA | ELISA WESTALL | | | | 140234 | |
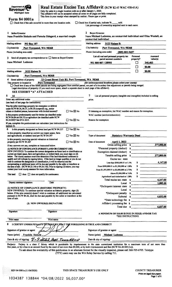
| 2 | 04/01/2022 | SWD | Statutory Warranty Deed | FRANKLIN SINKULA & PAMELA ODEGARD | MICHAEL LEDONNA | | | $377,000.00 | 138844 | |
| 3 | 03/30/2020 | SWD | Statutory Warranty Deed | SUSAN J PHILLIPS | FRANKLIN SINKULA & PAMELA ODEGARD | | | $245,000.00 | 134176 | |
| 4 | 03/08/2001 | SWD | Statutory Warranty Deed | HEGG, GINA | PHILLIPS, SUSAN JANE | 0 | 0 | $93,000.00 | 91790 | 0 |
| 5 | 03/26/1993 | SWD | Statutory Warranty Deed | FOREST PARK, INC | HEGG, GINA E | 0 | 0 | $73,646.00 | 70778 | 0 |
Payout Agreement
| No payout information available.. |