Property
Account |
| Property ID: | 29193 | Abbreviated Legal Description: | FOWLER'S PARK ADDITION BLK 29 LOTS 7 & 8 |
| Parcel # / Geo ID: | 951902907 | Agent Code: | |
| Type: | Real | | |
| Tax Area: | 0110 - C-50F1E1H2 | Land Use Code | 91 |
| Open Space: | N | DFL | N |
| Historic Property: | N | Remodel Property: | N |
| Multi-Family Redevelopment: | N | | |
| Township: | 31N | Section: | 33 |
| Range: | 1W |
Location |
| Address: | | Mapsco: | 049/037 |
| Neighborhood: | FOWLERS PARK, DAVID'S, WILDWOOD AND ACREAGE IN 33-31-1W | Map ID: | |
| Neighborhood CD: | 6010 |
Owner |
| Name: | BRUCE HOFFMAN & MICHELLE ASIRE | Owner ID: | 93134 |
| Mailing Address: | 4777 WILLAMETTE ST PORT TOWNSEND, WA 98368-1008 | % Ownership: | 100.0000000000% |
| | | Exemptions: | |
Pay Tax Due
Select the appropriate checkbox next to the year to be paid. Multiple years may be selected.
*Convenience Fee not included
Taxes and Assessment Details
Property Tax Information as of
03/11/2026
Click on "Statement Details" to expand or collapse a tax statement.
* Please enter a valid date ** Please enter a valid date *
Statement Details |
| 2026 | 18513 | STATE - STATE LEVY (SCHOOL) | $137.95 | $137.94 | $0.00 | $0.00 | $0.00 | $275.89 |
| 2026 | 18513 | COUNTY - COUNTY LEVIES (CE, DD, VET, MH) | $55.17 | $55.14 | $0.00 | $0.00 | $0.00 | $110.31 |
| 2026 | 18513 | CONSERVE - CONSERVATION FUTURES | $1.66 | $1.65 | $0.00 | $0.00 | $0.00 | $3.31 |
| 2026 | 18513 | CITYPT - CITY OF PT | $78.28 | $78.28 | $0.00 | $0.00 | $0.00 | $156.56 |
| 2026 | 18513 | PORTPT - PORT DISTRICT | $22.28 | $22.27 | $0.00 | $0.00 | $0.00 | $44.55 |
| 2026 | 18513 | PUD1 - PUD #1 | $3.59 | $3.58 | $0.00 | $0.00 | $0.00 | $7.17 |
| 2026 | 18513 | HD2 - HOSP DIST #2 | $3.22 | $3.21 | $0.00 | $0.00 | $0.00 | $6.43 |
| 2026 | 18513 | SD50 - SCHOOL DIST #50 | $109.29 | $109.27 | $0.00 | $0.00 | $0.00 | $218.56 |
| 2026 | 18513 | FD1 - FIRE DISTRICT #1 | $73.03 | $73.03 | $0.00 | $0.00 | $0.00 | $146.06 |
| 2026 | 18513 | EMS1 - FIRE DIST #1 EMS | $28.08 | $28.08 | $0.00 | $0.00 | $0.00 | $56.16 |
| 2026 | 18513 | FP - DNR Forest Fire Protection Assmt | $8.50 | $8.50 | $0.00 | $0.00 | $0.00 | $17.00 |
| 2026 | 18513 | FPLCA - DNR Landowner Contingency Assmt | $3.00 | $3.00 | $0.00 | $0.00 | $0.00 | $6.00 |
| 2026 | 18513 | JCCD - JC Conservation District | $2.53 | $2.53 | $0.00 | $0.00 | $0.00 | $5.06 |
| 2026 | 18513 | NWA - Noxious Weed Assessment | $2.98 | $2.97 | $0.00 | $0.00 | $0.00 | $5.95 |
| 2026 | 18513 | WAT - Clean Water District | $13.00 | $13.00 | $0.00 | $0.00 | $0.00 | $26.00 |
| 2026 | 18513 | FP ADMIN - FP ADMIN | $0.50 | $0.00 | $0.00 | $0.00 | $0.00 | $0.50 |
| 2026 | 18513 | TOTAL: | $543.06 | $542.45 | $0.00 | $0.00 | $0.00 | $1085.51 |
|
| 2026 | 18513 | $543.06 | $542.45 | $0.00 | $0.00 | $0.00 | $1085.51 |
Statement Details |
| 2025 | 18572 | STATE - STATE LEVY (SCHOOL) | $143.89 | $143.87 | $0.00 | $0.00 | $287.76 | $0.00 |
| 2025 | 18572 | COUNTY - COUNTY LEVIES (CE, DD, VET, MH) | $56.59 | $56.57 | $0.00 | $0.00 | $113.16 | $0.00 |
| 2025 | 18572 | CONSERVE - CONSERVATION FUTURES | $1.70 | $1.69 | $0.00 | $0.00 | $3.39 | $0.00 |
| 2025 | 18572 | CITYPT - CITY OF PT | $81.61 | $81.58 | $0.00 | $0.00 | $163.19 | $0.00 |
| 2025 | 18572 | PORTPT - PORT DISTRICT | $23.09 | $23.08 | $0.00 | $0.00 | $46.17 | $0.00 |
| 2025 | 18572 | PUD1 - PUD #1 | $3.70 | $3.70 | $0.00 | $0.00 | $7.40 | $0.00 |
| 2025 | 18572 | HD2 - HOSP DIST #2 | $3.30 | $3.30 | $0.00 | $0.00 | $6.60 | $0.00 |
| 2025 | 18572 | SD50 - SCHOOL DIST #50 | $105.16 | $105.14 | $0.00 | $0.00 | $210.30 | $0.00 |
| 2025 | 18572 | FD1 - FIRE DISTRICT #1 | $74.67 | $74.66 | $0.00 | $0.00 | $149.33 | $0.00 |
| 2025 | 18572 | EMS1 - FIRE DIST #1 EMS | $28.72 | $28.72 | $0.00 | $0.00 | $57.44 | $0.00 |
| 2025 | 18572 | FP - DNR Forest Fire Protection Assmt | $8.50 | $8.50 | $0.00 | $0.00 | $17.00 | $0.00 |
| 2025 | 18572 | FPLCA - DNR Landowner Contingency Assmt | $3.00 | $3.00 | $0.00 | $0.00 | $6.00 | $0.00 |
| 2025 | 18572 | JCCD - JC Conservation District | $2.53 | $2.53 | $0.00 | $0.00 | $5.06 | $0.00 |
| 2025 | 18572 | NWA - Noxious Weed Assessment | $2.15 | $2.15 | $0.00 | $0.00 | $4.30 | $0.00 |
| 2025 | 18572 | WAT - Clean Water District | $13.00 | $13.00 | $0.00 | $0.00 | $26.00 | $0.00 |
| 2025 | 18572 | FP ADMIN - FP ADMIN | $0.50 | $0.00 | $0.00 | $0.00 | $0.50 | $0.00 |
| 2025 | 18572 | TOTAL: | $552.11 | $551.49 | $0.00 | $0.00 | $1103.60 | $0.00 |
|
| 2025 | 18572 | $552.11 | $551.49 | $0.00 | $0.00 | $1103.60 | $0.00 |
Statement Details |
| 2024 | 18609 | STATE - STATE LEVY (SCHOOL) | $138.82 | $138.81 | $0.00 | $0.00 | $277.63 | $0.00 |
| 2024 | 18609 | COUNTY - COUNTY LEVIES (CE, DD, VET, MH) | $59.41 | $59.39 | $0.00 | $0.00 | $118.80 | $0.00 |
| 2024 | 18609 | CONSERVE - CONSERVATION FUTURES | $1.78 | $1.78 | $0.00 | $0.00 | $3.56 | $0.00 |
| 2024 | 18609 | CITYPT - CITY OF PT | $84.88 | $84.87 | $0.00 | $0.00 | $169.75 | $0.00 |
| 2024 | 18609 | PORTPT - PORT DISTRICT | $24.54 | $24.53 | $0.00 | $0.00 | $49.07 | $0.00 |
| 2024 | 18609 | PUD1 - PUD #1 | $3.90 | $3.90 | $0.00 | $0.00 | $7.80 | $0.00 |
| 2024 | 18609 | HD2 - HOSP DIST #2 | $3.47 | $3.46 | $0.00 | $0.00 | $6.93 | $0.00 |
| 2024 | 18609 | SD50 - SCHOOL DIST #50 | $112.32 | $112.30 | $0.00 | $0.00 | $224.62 | $0.00 |
| 2024 | 18609 | FD1 - FIRE DISTRICT #1 | $78.54 | $78.54 | $0.00 | $0.00 | $157.08 | $0.00 |
| 2024 | 18609 | EMS1 - FIRE DIST #1 EMS | $30.00 | $30.00 | $0.00 | $0.00 | $60.00 | $0.00 |
| 2024 | 18609 | FP - DNR Forest Fire Protection Assmt | $8.50 | $8.50 | $0.00 | $0.00 | $17.00 | $0.00 |
| 2024 | 18609 | FPLCA - DNR Landowner Contingency Assmt | $3.00 | $3.00 | $0.00 | $0.00 | $6.00 | $0.00 |
| 2024 | 18609 | JCCD - JC Conservation District | $2.53 | $2.53 | $0.00 | $0.00 | $5.06 | $0.00 |
| 2024 | 18609 | NWA - Noxious Weed Assessment | $2.15 | $2.15 | $0.00 | $0.00 | $4.30 | $0.00 |
| 2024 | 18609 | WAT - Clean Water District | $12.50 | $12.50 | $0.00 | $0.00 | $25.00 | $0.00 |
| 2024 | 18609 | FP ADMIN - FP ADMIN | $0.50 | $0.00 | $0.00 | $0.00 | $0.50 | $0.00 |
| 2024 | 18609 | TOTAL: | $566.84 | $566.26 | $0.00 | $0.00 | $1133.10 | $0.00 |
|
| 2024 | 18609 | $566.84 | $566.26 | $0.00 | $0.00 | $1133.10 | $0.00 |
Statement Details |
| 2023 | 18646 | STATE - STATE LEVY (SCHOOL) | $141.26 | $141.24 | $0.00 | $0.00 | $282.50 | $0.00 |
| 2023 | 18646 | COUNTY - COUNTY LEVIES (CE, DD, VET, MH) | $61.65 | $61.63 | $0.00 | $0.00 | $123.28 | $0.00 |
| 2023 | 18646 | CONSERVE - CONSERVATION FUTURES | $1.85 | $1.85 | $0.00 | $0.00 | $3.70 | $0.00 |
| 2023 | 18646 | CITYPT - CITY OF PT | $87.12 | $87.11 | $0.00 | $0.00 | $174.23 | $0.00 |
| 2023 | 18646 | PORTPT - PORT DISTRICT | $25.97 | $25.96 | $0.00 | $0.00 | $51.93 | $0.00 |
| 2023 | 18646 | PUD1 - PUD #1 | $4.09 | $4.08 | $0.00 | $0.00 | $8.17 | $0.00 |
| 2023 | 18646 | HD2 - HOSP DIST #2 | $3.61 | $3.59 | $0.00 | $0.00 | $7.20 | $0.00 |
| 2023 | 18646 | SD50 - SCHOOL DIST #50 | $112.09 | $112.09 | $0.00 | $0.00 | $224.18 | $0.00 |
| 2023 | 18646 | FD1 - FIRE DISTRICT #1 | $50.78 | $50.77 | $0.00 | $0.00 | $101.55 | $0.00 |
| 2023 | 18646 | EMS1 - FIRE DIST #1 EMS | $21.60 | $21.60 | $0.00 | $0.00 | $43.20 | $0.00 |
| 2023 | 18646 | FP - DNR Forest Fire Protection Assmt | $8.50 | $8.50 | $0.00 | $0.00 | $17.00 | $0.00 |
| 2023 | 18646 | FPLCA - DNR Landowner Contingency Assmt | $3.00 | $3.00 | $0.00 | $0.00 | $6.00 | $0.00 |
| 2023 | 18646 | JCCD - JC Conservation District | $2.53 | $2.53 | $0.00 | $0.00 | $5.06 | $0.00 |
| 2023 | 18646 | NWA - Noxious Weed Assessment | $2.15 | $2.15 | $0.00 | $0.00 | $4.30 | $0.00 |
| 2023 | 18646 | WAT - Clean Water District | $12.00 | $12.00 | $0.00 | $0.00 | $24.00 | $0.00 |
| 2023 | 18646 | FP ADMIN - FP ADMIN | $0.50 | $0.00 | $0.00 | $0.00 | $0.50 | $0.00 |
| 2023 | 18646 | TOTAL: | $538.70 | $538.10 | $0.00 | $0.00 | $1076.80 | $0.00 |
|
| 2023 | 18646 | $538.70 | $538.10 | $0.00 | $0.00 | $1076.80 | $0.00 |
Values
| (+) Improvement Homesite Value: | + | $0 | |
| (+) Improvement Non-Homesite Value: | + | $0 | |
| (+) Land Homesite Value: | + | $0 | |
| (+) Land Non-Homesite Value: | + | $120,000 | |
| (+) Curr Use (HS): | + | $0 | $0 |
| (+) Curr Use (NHS): | + | $0 | $0 |
| | | -------------------------- | |
| (=) Market Value: | = | $120,000 | |
| (–) Productivity Loss: | – | $0 | |
| | | -------------------------- | |
| (=) Subtotal: | = | $120,000 | |
| (+) Senior Appraised Value: | + | $0 | |
| (+) Non-Senior Appraised Value: | + | $120,000 | |
| | | -------------------------- | |
| (=) Total Appraised Value: | = | $120,000 | |
| (–) Senior Exemption Loss: | – | $0 | |
| (–) Exemption Loss: | – | $0 | |
| | | -------------------------- | |
| (=) Taxable Value: | = | $120,000 | |
Taxing Jurisdiction
| Owner: | BRUCE HOFFMAN & MICHELLE ASIRE | | |
| % Ownership: | 100.0000000000% | | |
| Total Value: | $120,000 | | |
| Tax Area: | 0110 - C-50F1E1H2 |
| CE | COUNTY CURRENT EXPENSE | 0.9034619479 | $120,000 | $120,000 | $108.42 | | |
| CNTYDD | DEVELOPMENTAL DISABILITIES | 0.0052121823 | $120,000 | $120,000 | $0.63 | | |
| CNTYVET | VETERANS RELIEF | 0.0052777810 | $120,000 | $120,000 | $0.63 | | |
| MENTAL | MENTAL HEALTH | 0.0052121823 | $120,000 | $120,000 | $0.63 | | |
| PTGEN | CITY OF PT GENERAL | 0.8551967795 | $120,000 | $120,000 | $102.62 | | |
| PTLLL | CITY OF PT - LIBRARY LID LIFT | 0.4010114288 | $120,000 | $120,000 | $48.12 | | |
| PTMVBOND | CITY OF PT MV BOND | 0.0484717981 | $120,000 | $120,000 | $5.82 | | |
| HOSP2CASH | HOSP DIST #2 GENERAL | 0.0536075306 | $120,000 | $120,000 | $6.43 | | |
| SCH50BOND | SCHOOL DIST #50 BOND 2016 | 0.5377451389 | $120,000 | $120,000 | $64.53 | | |
| SCH50CP | SCHOOL DIST #50 CAP PROJ | 0.4573475088 | $120,000 | $120,000 | $54.88 | | |
| SCH50MO | SCHOOL DIST #50 EP & O | 0.8262822886 | $120,000 | $120,000 | $99.15 | | |
| CONSERVE | CONSERVATION FUTURES | 0.0275621078 | $120,000 | $120,000 | $3.31 | | |
| EMS1 | FIRE DIST #1 EMS | 0.4679948282 | $120,000 | $120,000 | $56.16 | | |
| FD1 | FIRE DIST #1 GENERAL | 1.2171942929 | $120,000 | $120,000 | $146.06 | | |
| PORTPT | PORT OF PT GENERAL | 0.1134941229 | $120,000 | $120,000 | $13.62 | | |
| PORTPTIDD | PORT OF PT IDD 2019 | 0.2577346692 | $120,000 | $120,000 | $30.93 | | |
| PUD1 | PUD #1 GENERAL | 0.0597888892 | $120,000 | $120,000 | $7.17 | | |
| STATE | STATE SCHOOL PART 1 | 1.4940692947 | $120,000 | $120,000 | $179.29 | | |
| STATE2 | STATE SCHOOL PART 2 | 0.8050170049 | $120,000 | $120,000 | $96.60 | | |
| | Total Tax Rate: | 8.5416817766 | | | | | |
| | | | | Taxes w/Current Exemptions: | $1,025.00 | | |
| | | | | Taxes w/o Exemptions: | $1,025.00 | | |
Improvement / Building
Sketch
| No sketches available for this property. |
Property Image
Land
| 1 | 6010-1175L | | 0.0000 | 0.00 | 0.00 | 0.00 | 1.00 | $80,000 | $0 |
| 2 | 6010-1177L | | 0.0000 | 0.00 | 0.00 | 0.00 | 1.00 | $40,000 | $0 |
Roll Value History
| 2026 | N/A | N/A | N/A | N/A | N/A |
| 2025 | $0 | $120,000 | $0 | $120,000 | $120,000 |
| 2024 | $0 | $120,000 | $0 | $120,000 | $120,000 |
| 2023 | $0 | $120,000 | $0 | $120,000 | $120,000 |
| 2022 | $0 | $120,000 | $0 | $120,000 | $120,000 |
Deed and Sales History
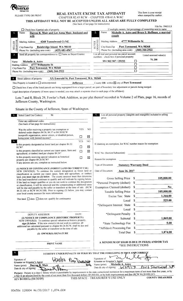
| 1 | 06/26/2017 | SWD | Statutory Warranty Deed | DARREN R MUIR | BRUCE HOFFMAN & MICHELLE ASIRE | | | $105,000.00 | 128004 | |
| 2 | 11/05/2007 | SWD | Statutory Warranty Deed | BROWN, FRANCIS COLLIN ET | MUIR, DARREN/LEE ANNA | 0 | 0 | $122,500.00 | 110406 | 0 |
Payout Agreement
| No payout information available.. |