Property
Account |
| Property ID: | 29196 | Abbreviated Legal Description: | FOWLER'S PARK ADDITION BLK 30 LOTS 6(LS SW'LY 10'), 7(ALL) |
| Parcel # / Geo ID: | 951903002 | Agent Code: | |
| Type: | Real | | |
| Tax Area: | 0110 - C-50F1E1H2 | Land Use Code | 11 |
| Open Space: | N | DFL | N |
| Historic Property: | N | Remodel Property: | N |
| Multi-Family Redevelopment: | N | | |
| Township: | 31N | Section: | 33 |
| Range: | 1W |
Location |
| Address: | 2310 EMERALD CT PORT TOWNSEND, WA 98368 | Mapsco: | 049/048 |
| Neighborhood: | FOWLERS PARK, DAVID'S, WILDWOOD AND ACREAGE IN 33-31-1W | Map ID: | |
| Neighborhood CD: | 6010 |
Owner |
| Name: | SHANNON HENDRY & KYLE MACLEOD JTWROS | Owner ID: | 101142 |
| Mailing Address: | 2310 EMERALD CT PORT TOWNSEND, WA 98368-1942 | % Ownership: | 100.0000000000% |
| | | Exemptions: | |
Pay Tax Due
There is currently No Amount Due on this property.
Taxes and Assessment Details
Property Tax Information as of
03/11/2026
Click on "Statement Details" to expand or collapse a tax statement.
* Please enter a valid date ** Please enter a valid date *
Statement Details |
| | TOTAL: | $0.00 | $0.00 | $0.00 | $0.00 | $0.00 | $0.00 |
|
| | $0.00 | $0.00 | $0.00 | $0.00 | $0.00 | $0.00 |
Values
| (+) Improvement Homesite Value: | + | $356,704 | |
| (+) Improvement Non-Homesite Value: | + | $0 | |
| (+) Land Homesite Value: | + | $137,720 | |
| (+) Land Non-Homesite Value: | + | $0 | |
| (+) Curr Use (HS): | + | $0 | $0 |
| (+) Curr Use (NHS): | + | $0 | $0 |
| | | -------------------------- | |
| (=) Market Value: | = | $494,424 | |
| (–) Productivity Loss: | – | $0 | |
| | | -------------------------- | |
| (=) Subtotal: | = | $494,424 | |
| (+) Senior Appraised Value: | + | $0 | |
| (+) Non-Senior Appraised Value: | + | $494,424 | |
| | | -------------------------- | |
| (=) Total Appraised Value: | = | $494,424 | |
| (–) Senior Exemption Loss: | – | $0 | |
| (–) Exemption Loss: | – | $0 | |
| | | -------------------------- | |
| (=) Taxable Value: | = | $494,424 | |
Taxing Jurisdiction
| Owner: | SHANNON HENDRY & KYLE MACLEOD JTWROS | | |
| % Ownership: | 100.0000000000% | | |
| Total Value: | $494,424 | | |
| Tax Area: | 0110 - C-50F1E1H2 |
| CE | COUNTY CURRENT EXPENSE | 0.9034619479 | $494,424 | $494,424 | $446.69 | | |
| CNTYDD | DEVELOPMENTAL DISABILITIES | 0.0052121823 | $494,424 | $494,424 | $2.58 | | |
| CNTYVET | VETERANS RELIEF | 0.0052777810 | $494,424 | $494,424 | $2.61 | | |
| MENTAL | MENTAL HEALTH | 0.0052121823 | $494,424 | $494,424 | $2.58 | | |
| PTGEN | CITY OF PT GENERAL | 0.8551967795 | $494,424 | $494,424 | $422.83 | | |
| PTLLL | CITY OF PT - LIBRARY LID LIFT | 0.4010114288 | $494,424 | $494,424 | $198.27 | | |
| PTMVBOND | CITY OF PT MV BOND | 0.0484717981 | $494,424 | $494,424 | $23.97 | | |
| HOSP2CASH | HOSP DIST #2 GENERAL | 0.0536075306 | $494,424 | $494,424 | $26.50 | | |
| SCH50BOND | SCHOOL DIST #50 BOND 2016 | 0.5377451389 | $494,424 | $494,424 | $265.87 | | |
| SCH50CP | SCHOOL DIST #50 CAP PROJ | 0.4573475088 | $494,424 | $494,424 | $226.12 | | |
| SCH50MO | SCHOOL DIST #50 EP & O | 0.8262822886 | $494,424 | $494,424 | $408.53 | | |
| CONSERVE | CONSERVATION FUTURES | 0.0275621078 | $494,424 | $494,424 | $13.63 | | |
| EMS1 | FIRE DIST #1 EMS | 0.4679948282 | $494,424 | $494,424 | $231.39 | | |
| FD1 | FIRE DIST #1 GENERAL | 1.2171942929 | $494,424 | $494,424 | $601.81 | | |
| PORTPT | PORT OF PT GENERAL | 0.1134941229 | $494,424 | $494,424 | $56.11 | | |
| PORTPTIDD | PORT OF PT IDD 2019 | 0.2577346692 | $494,424 | $494,424 | $127.43 | | |
| PUD1 | PUD #1 GENERAL | 0.0597888892 | $494,424 | $494,424 | $29.56 | | |
| STATE | STATE SCHOOL PART 1 | 1.4940692947 | $494,424 | $494,424 | $738.70 | | |
| STATE2 | STATE SCHOOL PART 2 | 0.8050170049 | $494,424 | $494,424 | $398.02 | | |
| | Total Tax Rate: | 8.5416817766 | | | | | |
| | | | | Taxes w/Current Exemptions: | $4,223.20 | | |
| | | | | Taxes w/o Exemptions: | $4,223.20 | | |
Improvement / Building
| Improvement #1: | Residential Bldg | State Code: | 11 | 1355.0 sqft | Value: | $356,704 |
| Bathrooms (#): | 2 (FULL) | Bedrooms (#): | 3 | | Exterior Wall: | SI/ST | Floor Construction: | FRAME | | Foundation: | CONPR | Heating/Cooling: | HPUMP | | Roof Cover: | COMP |   |   |
|
| | Type | Description | Class CD | Sub Class CD | Year Built | Area |
| | MA | Main Area | 4 | 1S | 1995 | 1355.0 |
| | HDECK | House Deck | 4 | * | 1995 | 181.0 |
| | GATT | House Attached Garage | 4 | 1S | 1995 | 480.0 |
| | SHED | Shed (Table Not Dep) | 4 | * | 1995 | 32.0 |
| | ASPHD | Asphalt Drive | 4 | * | 1995 | 600.0 |
Sketch
Property Image
Land
| 1 | 6010-1175L | Area of Terr/Wtr Views W/Utilities 1st Lot | 0.0000 | 0.00 | 0.00 | 0.00 | 1.00 | $110,000 | $0 |
| 2 | 6010-1177L | 2nd Lot of 2 Lot Site in Fowlers Park | 0.0000 | 0.00 | 0.00 | 0.00 | 1.00 | $27,720 | $0 |
Roll Value History
| 2026 | N/A | N/A | N/A | N/A | N/A |
| 2025 | $356,704 | $137,720 | $0 | $494,424 | $494,424 |
| 2024 | $291,737 | $137,720 | $0 | $429,457 | $429,457 |
| 2023 | $291,737 | $132,720 | $0 | $424,457 | $424,457 |
| 2022 | $291,737 | $127,720 | $0 | $419,457 | $419,457 |
Deed and Sales History
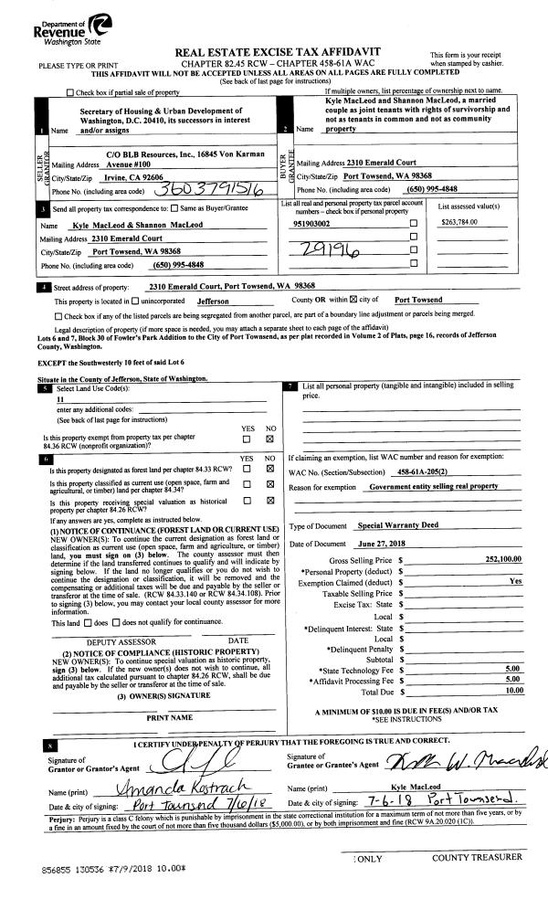
| 1 | 06/01/2019 | QCD | Quit Claim Deed | KYLE & SHANNON MACLEOD JTWROS | SHANNON HENDRY & KYLE MACLEOD JTWROS | | | | 132471 | |
| 2 | 06/27/2018 | SPWD | Special Warranty Deed | SECRETARY OF HOUSING & URBAN DEVELOPMENT | KYLE & SHANNON MACLEOD JTWROS | | | $252,100.00 | 130536 | |
| 3 | 12/18/2017 | SWD | Statutory Warranty Deed | NELLIE WILLIAMS | SECRETARY OF HOUSING & URBAN DEVELOPMENT | | | | 129448 | |
| 4 | 10/13/1993 | SWD | Statutory Warranty Deed | OCARROLL, KEVIN/DEBORAH | VANTAGE HOMES INC | 0 | 0 | $0.00 | 72379 | 0 |
Payout Agreement
| No payout information available.. |