Property
Account |
| Property ID: | 29198 | Abbreviated Legal Description: | FOWLER'S PARK ADDITION BLK 30 LOTS 1,2,3(ALL), 4(SW20') |
| Parcel # / Geo ID: | 951903004 | Agent Code: | |
| Type: | Real | | |
| Tax Area: | 0110 - C-50F1E1H2 | Land Use Code | 11 |
| Open Space: | N | DFL | N |
| Historic Property: | N | Remodel Property: | N |
| Multi-Family Redevelopment: | N | | |
| Township: | 31N | Section: | 33 |
| Range: | 1W |
Location |
| Address: | 2366 EMERALD CT PORT TOWNSEND, WA 98368 | Mapsco: | 049/045 |
| Neighborhood: | FOWLERS PARK, DAVID'S, WILDWOOD AND ACREAGE IN 33-31-1W | Map ID: | |
| Neighborhood CD: | 6010 |
Owner |
| Name: | BRETT A NAVIN TRUST | Owner ID: | 106517 |
| Mailing Address: | BRETT A NAVIN TRUSTEE PO BOX 710 PORT TOWNSEND, WA 98368-0710 | % Ownership: | 100.0000000000% |
| | | Exemptions: | |
Pay Tax Due
Select the appropriate checkbox next to the year to be paid. Multiple years may be selected.
*Convenience Fee not included
Taxes and Assessment Details
Property Tax Information as of
03/12/2026
Click on "Statement Details" to expand or collapse a tax statement.
* Please enter a valid date ** Please enter a valid date *
Statement Details |
| 2026 | 18518 | STATE - STATE LEVY (SCHOOL) | $531.89 | $531.89 | $0.00 | $0.00 | $0.00 | $1063.78 |
| 2026 | 18518 | COUNTY - COUNTY LEVIES (CE, DD, VET, MH) | $212.66 | $212.63 | $0.00 | $0.00 | $0.00 | $425.29 |
| 2026 | 18518 | CONSERVE - CONSERVATION FUTURES | $6.38 | $6.37 | $0.00 | $0.00 | $0.00 | $12.75 |
| 2026 | 18518 | CITYPT - CITY OF PT | $301.85 | $301.83 | $0.00 | $0.00 | $0.00 | $603.68 |
| 2026 | 18518 | PORTPT - PORT DISTRICT | $85.89 | $85.87 | $0.00 | $0.00 | $0.00 | $171.76 |
| 2026 | 18518 | PUD1 - PUD #1 | $13.83 | $13.83 | $0.00 | $0.00 | $0.00 | $27.66 |
| 2026 | 18518 | HD2 - HOSP DIST #2 | $12.40 | $12.40 | $0.00 | $0.00 | $0.00 | $24.80 |
| 2026 | 18518 | SD50 - SCHOOL DIST #50 | $421.38 | $421.36 | $0.00 | $0.00 | $0.00 | $842.74 |
| 2026 | 18518 | FD1 - FIRE DISTRICT #1 | $281.60 | $281.59 | $0.00 | $0.00 | $0.00 | $563.19 |
| 2026 | 18518 | EMS1 - FIRE DIST #1 EMS | $108.27 | $108.27 | $0.00 | $0.00 | $0.00 | $216.54 |
| 2026 | 18518 | JCCD - JC Conservation District | $2.55 | $2.55 | $0.00 | $0.00 | $0.00 | $5.10 |
| 2026 | 18518 | NWA - Noxious Weed Assessment | $2.98 | $2.97 | $0.00 | $0.00 | $0.00 | $5.95 |
| 2026 | 18518 | WAT - Clean Water District | $13.00 | $13.00 | $0.00 | $0.00 | $0.00 | $26.00 |
| 2026 | 18518 | TOTAL: | $1994.68 | $1994.56 | $0.00 | $0.00 | $0.00 | $3989.24 |
|
| 2026 | 18518 | $1994.68 | $1994.56 | $0.00 | $0.00 | $0.00 | $3989.24 |
Statement Details |
| 2025 | 18577 | STATE - STATE LEVY (SCHOOL) | $526.23 | $526.23 | $0.00 | $0.00 | $1052.46 | $0.00 |
| 2025 | 18577 | COUNTY - COUNTY LEVIES (CE, DD, VET, MH) | $206.94 | $206.93 | $0.00 | $0.00 | $413.87 | $0.00 |
| 2025 | 18577 | CONSERVE - CONSERVATION FUTURES | $6.21 | $6.20 | $0.00 | $0.00 | $12.41 | $0.00 |
| 2025 | 18577 | CITYPT - CITY OF PT | $298.43 | $298.42 | $0.00 | $0.00 | $596.85 | $0.00 |
| 2025 | 18577 | PORTPT - PORT DISTRICT | $84.44 | $84.44 | $0.00 | $0.00 | $168.88 | $0.00 |
| 2025 | 18577 | PUD1 - PUD #1 | $13.54 | $13.54 | $0.00 | $0.00 | $27.08 | $0.00 |
| 2025 | 18577 | HD2 - HOSP DIST #2 | $12.08 | $12.07 | $0.00 | $0.00 | $24.15 | $0.00 |
| 2025 | 18577 | SD50 - SCHOOL DIST #50 | $384.59 | $384.58 | $0.00 | $0.00 | $769.17 | $0.00 |
| 2025 | 18577 | FD1 - FIRE DISTRICT #1 | $273.08 | $273.07 | $0.00 | $0.00 | $546.15 | $0.00 |
| 2025 | 18577 | EMS1 - FIRE DIST #1 EMS | $105.03 | $105.03 | $0.00 | $0.00 | $210.06 | $0.00 |
| 2025 | 18577 | JCCD - JC Conservation District | $2.55 | $2.55 | $0.00 | $0.00 | $5.10 | $0.00 |
| 2025 | 18577 | NWA - Noxious Weed Assessment | $2.15 | $2.15 | $0.00 | $0.00 | $4.30 | $0.00 |
| 2025 | 18577 | WAT - Clean Water District | $13.00 | $13.00 | $0.00 | $0.00 | $26.00 | $0.00 |
| 2025 | 18577 | TOTAL: | $1928.27 | $1928.21 | $0.00 | $0.00 | $3856.48 | $0.00 |
|
| 2025 | 18577 | $1928.27 | $1928.21 | $0.00 | $0.00 | $3856.48 | $0.00 |
Statement Details |
| 2024 | 18614 | STATE - STATE LEVY (SCHOOL) | $501.92 | $501.92 | $0.00 | $0.00 | $1003.84 | $0.00 |
| 2024 | 18614 | COUNTY - COUNTY LEVIES (CE, DD, VET, MH) | $214.79 | $214.77 | $0.00 | $0.00 | $429.56 | $0.00 |
| 2024 | 18614 | CONSERVE - CONSERVATION FUTURES | $6.44 | $6.44 | $0.00 | $0.00 | $12.88 | $0.00 |
| 2024 | 18614 | CITYPT - CITY OF PT | $306.90 | $306.87 | $0.00 | $0.00 | $613.77 | $0.00 |
| 2024 | 18614 | PORTPT - PORT DISTRICT | $88.71 | $88.71 | $0.00 | $0.00 | $177.42 | $0.00 |
| 2024 | 18614 | PUD1 - PUD #1 | $14.11 | $14.10 | $0.00 | $0.00 | $28.21 | $0.00 |
| 2024 | 18614 | HD2 - HOSP DIST #2 | $12.53 | $12.53 | $0.00 | $0.00 | $25.06 | $0.00 |
| 2024 | 18614 | SD50 - SCHOOL DIST #50 | $406.08 | $406.06 | $0.00 | $0.00 | $812.14 | $0.00 |
| 2024 | 18614 | FD1 - FIRE DISTRICT #1 | $283.99 | $283.98 | $0.00 | $0.00 | $567.97 | $0.00 |
| 2024 | 18614 | EMS1 - FIRE DIST #1 EMS | $108.47 | $108.47 | $0.00 | $0.00 | $216.94 | $0.00 |
| 2024 | 18614 | JCCD - JC Conservation District | $2.55 | $2.55 | $0.00 | $0.00 | $5.10 | $0.00 |
| 2024 | 18614 | NWA - Noxious Weed Assessment | $2.15 | $2.15 | $0.00 | $0.00 | $4.30 | $0.00 |
| 2024 | 18614 | WAT - Clean Water District | $12.50 | $12.50 | $0.00 | $0.00 | $25.00 | $0.00 |
| 2024 | 18614 | TOTAL: | $1961.14 | $1961.05 | $0.00 | $0.00 | $3922.19 | $0.00 |
|
| 2024 | 18614 | $1961.14 | $1961.05 | $0.00 | $0.00 | $3922.19 | $0.00 |
Statement Details |
| 2023 | 18651 | STATE - STATE LEVY (SCHOOL) | $504.84 | $504.82 | $0.00 | $0.00 | $1009.66 | $0.00 |
| 2023 | 18651 | COUNTY - COUNTY LEVIES (CE, DD, VET, MH) | $220.30 | $220.28 | $0.00 | $0.00 | $440.58 | $0.00 |
| 2023 | 18651 | CONSERVE - CONSERVATION FUTURES | $6.61 | $6.60 | $0.00 | $0.00 | $13.21 | $0.00 |
| 2023 | 18651 | CITYPT - CITY OF PT | $311.36 | $311.34 | $0.00 | $0.00 | $622.70 | $0.00 |
| 2023 | 18651 | PORTPT - PORT DISTRICT | $92.80 | $92.80 | $0.00 | $0.00 | $185.60 | $0.00 |
| 2023 | 18651 | PUD1 - PUD #1 | $14.60 | $14.60 | $0.00 | $0.00 | $29.20 | $0.00 |
| 2023 | 18651 | HD2 - HOSP DIST #2 | $12.86 | $12.85 | $0.00 | $0.00 | $25.71 | $0.00 |
| 2023 | 18651 | SD50 - SCHOOL DIST #50 | $400.60 | $400.59 | $0.00 | $0.00 | $801.19 | $0.00 |
| 2023 | 18651 | FD1 - FIRE DISTRICT #1 | $181.48 | $181.48 | $0.00 | $0.00 | $362.96 | $0.00 |
| 2023 | 18651 | EMS1 - FIRE DIST #1 EMS | $77.20 | $77.19 | $0.00 | $0.00 | $154.39 | $0.00 |
| 2023 | 18651 | JCCD - JC Conservation District | $2.55 | $2.55 | $0.00 | $0.00 | $5.10 | $0.00 |
| 2023 | 18651 | NWA - Noxious Weed Assessment | $2.15 | $2.15 | $0.00 | $0.00 | $4.30 | $0.00 |
| 2023 | 18651 | WAT - Clean Water District | $12.00 | $12.00 | $0.00 | $0.00 | $24.00 | $0.00 |
| 2023 | 18651 | TOTAL: | $1839.35 | $1839.25 | $0.00 | $0.00 | $3678.60 | $0.00 |
|
| 2023 | 18651 | $1839.35 | $1839.25 | $0.00 | $0.00 | $3678.60 | $0.00 |
Values
| (+) Improvement Homesite Value: | + | $286,636 | |
| (+) Improvement Non-Homesite Value: | + | $0 | |
| (+) Land Homesite Value: | + | $176,063 | |
| (+) Land Non-Homesite Value: | + | $0 | |
| (+) Curr Use (HS): | + | $0 | $0 |
| (+) Curr Use (NHS): | + | $0 | $0 |
| | | -------------------------- | |
| (=) Market Value: | = | $462,699 | |
| (–) Productivity Loss: | – | $0 | |
| | | -------------------------- | |
| (=) Subtotal: | = | $462,699 | |
| (+) Senior Appraised Value: | + | $0 | |
| (+) Non-Senior Appraised Value: | + | $462,699 | |
| | | -------------------------- | |
| (=) Total Appraised Value: | = | $462,699 | |
| (–) Senior Exemption Loss: | – | $0 | |
| (–) Exemption Loss: | – | $0 | |
| | | -------------------------- | |
| (=) Taxable Value: | = | $462,699 | |
Taxing Jurisdiction
| Owner: | BRETT A NAVIN TRUST | | |
| % Ownership: | 100.0000000000% | | |
| Total Value: | $462,699 | | |
| Tax Area: | 0110 - C-50F1E1H2 |
| CE | COUNTY CURRENT EXPENSE | 0.9034619479 | $462,699 | $462,699 | $418.03 | | |
| CNTYDD | DEVELOPMENTAL DISABILITIES | 0.0052121823 | $462,699 | $462,699 | $2.41 | | |
| CNTYVET | VETERANS RELIEF | 0.0052777810 | $462,699 | $462,699 | $2.44 | | |
| MENTAL | MENTAL HEALTH | 0.0052121823 | $462,699 | $462,699 | $2.41 | | |
| PTGEN | CITY OF PT GENERAL | 0.8551967795 | $462,699 | $462,699 | $395.70 | | |
| PTLLL | CITY OF PT - LIBRARY LID LIFT | 0.4010114288 | $462,699 | $462,699 | $185.55 | | |
| PTMVBOND | CITY OF PT MV BOND | 0.0484717981 | $462,699 | $462,699 | $22.43 | | |
| HOSP2CASH | HOSP DIST #2 GENERAL | 0.0536075306 | $462,699 | $462,699 | $24.80 | | |
| SCH50BOND | SCHOOL DIST #50 BOND 2016 | 0.5377451389 | $462,699 | $462,699 | $248.81 | | |
| SCH50CP | SCHOOL DIST #50 CAP PROJ | 0.4573475088 | $462,699 | $462,699 | $211.61 | | |
| SCH50MO | SCHOOL DIST #50 EP & O | 0.8262822886 | $462,699 | $462,699 | $382.32 | | |
| CONSERVE | CONSERVATION FUTURES | 0.0275621078 | $462,699 | $462,699 | $12.75 | | |
| EMS1 | FIRE DIST #1 EMS | 0.4679948282 | $462,699 | $462,699 | $216.54 | | |
| FD1 | FIRE DIST #1 GENERAL | 1.2171942929 | $462,699 | $462,699 | $563.19 | | |
| PORTPT | PORT OF PT GENERAL | 0.1134941229 | $462,699 | $462,699 | $52.51 | | |
| PORTPTIDD | PORT OF PT IDD 2019 | 0.2577346692 | $462,699 | $462,699 | $119.25 | | |
| PUD1 | PUD #1 GENERAL | 0.0597888892 | $462,699 | $462,699 | $27.66 | | |
| STATE | STATE SCHOOL PART 1 | 1.4940692947 | $462,699 | $462,699 | $691.30 | | |
| STATE2 | STATE SCHOOL PART 2 | 0.8050170049 | $462,699 | $462,699 | $372.48 | | |
| | Total Tax Rate: | 8.5416817766 | | | | | |
| | | | | Taxes w/Current Exemptions: | $3,952.19 | | |
| | | | | Taxes w/o Exemptions: | $3,952.19 | | |
Improvement / Building
| Improvement #1: | Residential Bldg | State Code: | 11 | 916.0 sqft | Value: | $286,636 |
| Bathrooms (#): | 1 (FULL) | Bedrooms (#): | 2 | | Exterior Wall: | SI/ST | Fireplace: | WD ST-GOOD | | Floor Construction: | FRAME | Foundation: | CONPR | | Heating/Cooling: | ELBB | Roof Cover: | COMP |
|
| | Type | Description | Class CD | Sub Class CD | Year Built | Area |
| | MA | Main Area | 4 | 1S | 1996 | 916.0 |
| | PATIO | House Patio | 4 | * | 1996 | 289.0 |
| | HWPOR | House Wood Porch | 4 | * | 1996 | 20.0 |
| | HDECK | House Deck | 4 | * | 1996 | 237.0 |
| | GATT | House Attached Garage | 4 | 1S | 1996 | 308.0 |
| | ADDN | Addition (Table Not Dep) | 4 | * | 1996 | 280.0 |
| | GARAG | Garage (Table Not Dep) | 4 | * | 1996 | 280.0 |
| | ASPHD | Asphalt Drive | 4 | * | 1996 | 920.3 |
| | HCPOR | House Concrete Porch | 4 | * | 1996 | 33.0 |
Sketch
Property Image
Land
| 1 | 6010-1175L | | 0.0000 | 0.00 | 0.00 | 0.00 | 1.00 | $110,000 | $0 |
| 2 | 6010-1177L | | 0.0000 | 0.00 | 0.00 | 0.00 | 1.00 | $40,000 | $0 |
| 3 | 6010-1179L | | 0.0000 | 0.00 | 0.00 | 0.00 | 1.00 | $26,063 | $0 |
Roll Value History
| 2026 | N/A | N/A | N/A | N/A | N/A |
| 2025 | $286,636 | $176,063 | $0 | $462,699 | $462,699 |
| 2024 | $262,822 | $176,063 | $0 | $438,885 | $438,885 |
| 2023 | $262,822 | $171,063 | $0 | $433,885 | $433,885 |
| 2022 | $262,822 | $166,063 | $0 | $428,885 | $428,885 |
Deed and Sales History
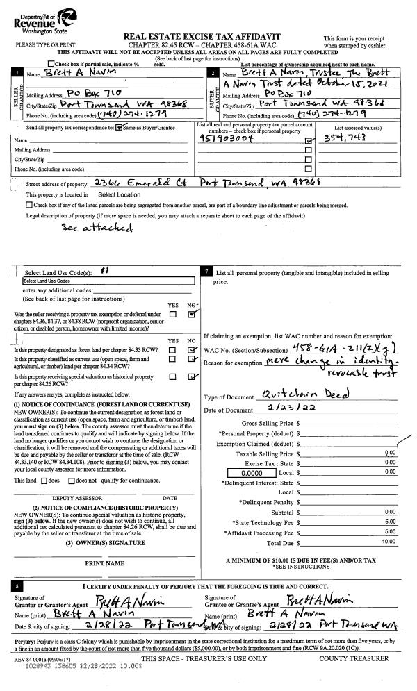
| 1 | 02/23/2022 | QCD | Quit Claim Deed | BRETT A NAVIN | BRETT A NAVIN TRUST | | | | 138605 | |
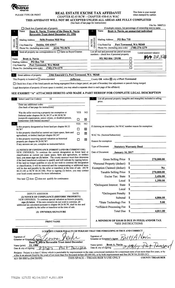
| 2 | 01/16/2017 | SWD | Statutory Warranty Deed | DANA NAVIN REVOCABLE TRUST | BRETT A NAVIN | | | $270,000.00 | 127133 | |
| 3 | 07/18/2016 | SWD | Statutory Warranty Deed | BARBARA M STENDER | DANA NAVIN REVOCABLE TRUST | | | $270,000.00 | 125913 | |
| 4 | 07/07/2000 | SWD | Statutory Warranty Deed | PIERCE, PHILLIP P/DAWN M | STENDER, BARBARA MARY | 0 | 0 | $139,500.00 | 90090 | 0 |
| 5 | 01/29/1996 | SWD | Statutory Warranty Deed | VANTAGE HOMES INC | PIERCE, PHILLIP/DAWN M RHODES | 0 | 0 | $91,500.00 | 78783 | 0 |
Payout Agreement
| No payout information available.. |