Property
Account |
| Property ID: | 29207 | Abbreviated Legal Description: | FOWLER'S PARK ADDITION BLK 30 LOT 16 |
| Parcel # / Geo ID: | 951903016 | Agent Code: | |
| Type: | Real | | |
| Tax Area: | 0110 - C-50F1E1H2 | Land Use Code | 11 |
| Open Space: | N | DFL | N |
| Historic Property: | N | Remodel Property: | N |
| Multi-Family Redevelopment: | N | | |
| Township: | 31N | Section: | 33 |
| Range: | 1W |
Location |
| Address: | 4854 EMERALD ST PORT TOWNSEND, WA 98368 | Mapsco: | 049/057 |
| Neighborhood: | FOWLERS PARK, DAVID'S, WILDWOOD AND ACREAGE IN 33-31-1W | Map ID: | |
| Neighborhood CD: | 6010 |
Owner |
| Name: | VINCENT P & MARTHA J B ONEPPO | Owner ID: | 109270 |
| Mailing Address: | 4854 EMERALD ST PORT TOWNSEND, WA 98368-1047 | % Ownership: | 100.0000000000% |
| | | Exemptions: | |
Pay Tax Due
Select the appropriate checkbox next to the year to be paid. Multiple years may be selected.
*Convenience Fee not included
Taxes and Assessment Details
Property Tax Information as of
03/10/2026
Click on "Statement Details" to expand or collapse a tax statement.
* Please enter a valid date ** Please enter a valid date *
Statement Details |
| 2026 | 18527 | STATE - STATE LEVY (SCHOOL) | $511.12 | $511.11 | $0.00 | $0.00 | $0.00 | $1022.23 |
| 2026 | 18527 | COUNTY - COUNTY LEVIES (CE, DD, VET, MH) | $204.35 | $204.34 | $0.00 | $0.00 | $0.00 | $408.69 |
| 2026 | 18527 | CONSERVE - CONSERVATION FUTURES | $6.13 | $6.12 | $0.00 | $0.00 | $0.00 | $12.25 |
| 2026 | 18527 | CITYPT - CITY OF PT | $290.05 | $290.04 | $0.00 | $0.00 | $0.00 | $580.09 |
| 2026 | 18527 | PORTPT - PORT DISTRICT | $82.53 | $82.53 | $0.00 | $0.00 | $0.00 | $165.06 |
| 2026 | 18527 | PUD1 - PUD #1 | $13.29 | $13.29 | $0.00 | $0.00 | $0.00 | $26.58 |
| 2026 | 18527 | HD2 - HOSP DIST #2 | $11.92 | $11.92 | $0.00 | $0.00 | $0.00 | $23.84 |
| 2026 | 18527 | SD50 - SCHOOL DIST #50 | $404.92 | $404.90 | $0.00 | $0.00 | $0.00 | $809.82 |
| 2026 | 18527 | FD1 - FIRE DISTRICT #1 | $270.60 | $270.59 | $0.00 | $0.00 | $0.00 | $541.19 |
| 2026 | 18527 | EMS1 - FIRE DIST #1 EMS | $104.04 | $104.04 | $0.00 | $0.00 | $0.00 | $208.08 |
| 2026 | 18527 | JCCD - JC Conservation District | $2.55 | $2.55 | $0.00 | $0.00 | $0.00 | $5.10 |
| 2026 | 18527 | NWA - Noxious Weed Assessment | $2.98 | $2.97 | $0.00 | $0.00 | $0.00 | $5.95 |
| 2026 | 18527 | TOTAL: | $1904.48 | $1904.40 | $0.00 | $0.00 | $0.00 | $3808.88 |
|
| 2026 | 18527 | $1904.48 | $1904.40 | $0.00 | $0.00 | $0.00 | $3808.88 |
Statement Details |
| 2025 | 18586 | STATE - STATE LEVY (SCHOOL) | $505.96 | $505.96 | $0.00 | $0.00 | $1011.92 | $0.00 |
| 2025 | 18586 | COUNTY - COUNTY LEVIES (CE, DD, VET, MH) | $198.98 | $198.95 | $0.00 | $0.00 | $397.93 | $0.00 |
| 2025 | 18586 | CONSERVE - CONSERVATION FUTURES | $5.97 | $5.96 | $0.00 | $0.00 | $11.93 | $0.00 |
| 2025 | 18586 | CITYPT - CITY OF PT | $286.93 | $286.93 | $0.00 | $0.00 | $573.86 | $0.00 |
| 2025 | 18586 | PORTPT - PORT DISTRICT | $81.19 | $81.18 | $0.00 | $0.00 | $162.37 | $0.00 |
| 2025 | 18586 | PUD1 - PUD #1 | $13.02 | $13.02 | $0.00 | $0.00 | $26.04 | $0.00 |
| 2025 | 18586 | HD2 - HOSP DIST #2 | $11.61 | $11.61 | $0.00 | $0.00 | $23.22 | $0.00 |
| 2025 | 18586 | SD50 - SCHOOL DIST #50 | $369.79 | $369.76 | $0.00 | $0.00 | $739.55 | $0.00 |
| 2025 | 18586 | FD1 - FIRE DISTRICT #1 | $262.56 | $262.56 | $0.00 | $0.00 | $525.12 | $0.00 |
| 2025 | 18586 | EMS1 - FIRE DIST #1 EMS | $100.99 | $100.98 | $0.00 | $0.00 | $201.97 | $0.00 |
| 2025 | 18586 | JCCD - JC Conservation District | $2.55 | $2.55 | $0.00 | $0.00 | $5.10 | $0.00 |
| 2025 | 18586 | NWA - Noxious Weed Assessment | $2.15 | $2.15 | $0.00 | $0.00 | $4.30 | $0.00 |
| 2025 | 18586 | TOTAL: | $1841.70 | $1841.61 | $0.00 | $0.00 | $3683.31 | $0.00 |
|
| 2025 | 18586 | $1841.70 | $1841.61 | $0.00 | $0.00 | $3683.31 | $0.00 |
Statement Details |
| 2024 | 18623 | STATE - STATE LEVY (SCHOOL) | $482.37 | $482.36 | $0.00 | $0.00 | $964.73 | $0.00 |
| 2024 | 18623 | COUNTY - COUNTY LEVIES (CE, DD, VET, MH) | $206.42 | $206.39 | $0.00 | $0.00 | $412.81 | $0.00 |
| 2024 | 18623 | CONSERVE - CONSERVATION FUTURES | $6.19 | $6.19 | $0.00 | $0.00 | $12.38 | $0.00 |
| 2024 | 18623 | CITYPT - CITY OF PT | $294.94 | $294.92 | $0.00 | $0.00 | $589.86 | $0.00 |
| 2024 | 18623 | PORTPT - PORT DISTRICT | $85.26 | $85.25 | $0.00 | $0.00 | $170.51 | $0.00 |
| 2024 | 18623 | PUD1 - PUD #1 | $13.56 | $13.56 | $0.00 | $0.00 | $27.12 | $0.00 |
| 2024 | 18623 | HD2 - HOSP DIST #2 | $12.05 | $12.04 | $0.00 | $0.00 | $24.09 | $0.00 |
| 2024 | 18623 | SD50 - SCHOOL DIST #50 | $390.26 | $390.25 | $0.00 | $0.00 | $780.51 | $0.00 |
| 2024 | 18623 | FD1 - FIRE DISTRICT #1 | $272.92 | $272.92 | $0.00 | $0.00 | $545.84 | $0.00 |
| 2024 | 18623 | EMS1 - FIRE DIST #1 EMS | $104.25 | $104.24 | $0.00 | $0.00 | $208.49 | $0.00 |
| 2024 | 18623 | JCCD - JC Conservation District | $2.55 | $2.55 | $0.00 | $0.00 | $5.10 | $0.00 |
| 2024 | 18623 | NWA - Noxious Weed Assessment | $2.15 | $2.15 | $0.00 | $0.00 | $4.30 | $0.00 |
| 2024 | 18623 | TOTAL: | $1872.92 | $1872.82 | $0.00 | $0.00 | $3745.74 | $0.00 |
|
| 2024 | 18623 | $1872.92 | $1872.82 | $0.00 | $0.00 | $3745.74 | $0.00 |
Statement Details |
| 2023 | 18660 | STATE - STATE LEVY (SCHOOL) | $462.03 | $462.02 | $0.00 | $0.00 | $924.05 | $0.00 |
| 2023 | 18660 | COUNTY - COUNTY LEVIES (CE, DD, VET, MH) | $201.63 | $201.60 | $0.00 | $0.00 | $403.23 | $0.00 |
| 2023 | 18660 | CONSERVE - CONSERVATION FUTURES | $6.05 | $6.04 | $0.00 | $0.00 | $12.09 | $0.00 |
| 2023 | 18660 | CITYPT - CITY OF PT | $284.96 | $284.93 | $0.00 | $0.00 | $569.89 | $0.00 |
| 2023 | 18660 | PORTPT - PORT DISTRICT | $84.94 | $84.92 | $0.00 | $0.00 | $169.86 | $0.00 |
| 2023 | 18660 | PUD1 - PUD #1 | $13.37 | $13.36 | $0.00 | $0.00 | $26.73 | $0.00 |
| 2023 | 18660 | HD2 - HOSP DIST #2 | $11.77 | $11.76 | $0.00 | $0.00 | $23.53 | $0.00 |
| 2023 | 18660 | SD50 - SCHOOL DIST #50 | $366.64 | $366.62 | $0.00 | $0.00 | $733.26 | $0.00 |
| 2023 | 18660 | FD1 - FIRE DISTRICT #1 | $166.09 | $166.09 | $0.00 | $0.00 | $332.18 | $0.00 |
| 2023 | 18660 | EMS1 - FIRE DIST #1 EMS | $70.65 | $70.65 | $0.00 | $0.00 | $141.30 | $0.00 |
| 2023 | 18660 | JCCD - JC Conservation District | $2.55 | $2.55 | $0.00 | $0.00 | $5.10 | $0.00 |
| 2023 | 18660 | NWA - Noxious Weed Assessment | $2.15 | $2.15 | $0.00 | $0.00 | $4.30 | $0.00 |
| 2023 | 18660 | TOTAL: | $1672.83 | $1672.69 | $0.00 | $0.00 | $3345.52 | $0.00 |
|
| 2023 | 18660 | $1672.83 | $1672.69 | $0.00 | $0.00 | $3345.52 | $0.00 |
Values
| (+) Improvement Homesite Value: | + | $0 | |
| (+) Improvement Non-Homesite Value: | + | $334,624 | |
| (+) Land Homesite Value: | + | $0 | |
| (+) Land Non-Homesite Value: | + | $110,000 | |
| (+) Curr Use (HS): | + | $0 | $0 |
| (+) Curr Use (NHS): | + | $0 | $0 |
| | | -------------------------- | |
| (=) Market Value: | = | $444,624 | |
| (–) Productivity Loss: | – | $0 | |
| | | -------------------------- | |
| (=) Subtotal: | = | $444,624 | |
| (+) Senior Appraised Value: | + | $0 | |
| (+) Non-Senior Appraised Value: | + | $444,624 | |
| | | -------------------------- | |
| (=) Total Appraised Value: | = | $444,624 | |
| (–) Senior Exemption Loss: | – | $0 | |
| (–) Exemption Loss: | – | $0 | |
| | | -------------------------- | |
| (=) Taxable Value: | = | $444,624 | |
Taxing Jurisdiction
| Owner: | VINCENT P & MARTHA J B ONEPPO | | |
| % Ownership: | 100.0000000000% | | |
| Total Value: | $444,624 | | |
| Tax Area: | 0110 - C-50F1E1H2 |
| CE | COUNTY CURRENT EXPENSE | 0.9034619479 | $444,624 | $444,624 | $401.70 | | |
| CNTYDD | DEVELOPMENTAL DISABILITIES | 0.0052121823 | $444,624 | $444,624 | $2.32 | | |
| CNTYVET | VETERANS RELIEF | 0.0052777810 | $444,624 | $444,624 | $2.35 | | |
| MENTAL | MENTAL HEALTH | 0.0052121823 | $444,624 | $444,624 | $2.32 | | |
| PTGEN | CITY OF PT GENERAL | 0.8551967795 | $444,624 | $444,624 | $380.24 | | |
| PTLLL | CITY OF PT - LIBRARY LID LIFT | 0.4010114288 | $444,624 | $444,624 | $178.30 | | |
| PTMVBOND | CITY OF PT MV BOND | 0.0484717981 | $444,624 | $444,624 | $21.55 | | |
| HOSP2CASH | HOSP DIST #2 GENERAL | 0.0536075306 | $444,624 | $444,624 | $23.84 | | |
| SCH50BOND | SCHOOL DIST #50 BOND 2016 | 0.5377451389 | $444,624 | $444,624 | $239.09 | | |
| SCH50CP | SCHOOL DIST #50 CAP PROJ | 0.4573475088 | $444,624 | $444,624 | $203.35 | | |
| SCH50MO | SCHOOL DIST #50 EP & O | 0.8262822886 | $444,624 | $444,624 | $367.38 | | |
| CONSERVE | CONSERVATION FUTURES | 0.0275621078 | $444,624 | $444,624 | $12.25 | | |
| EMS1 | FIRE DIST #1 EMS | 0.4679948282 | $444,624 | $444,624 | $208.08 | | |
| FD1 | FIRE DIST #1 GENERAL | 1.2171942929 | $444,624 | $444,624 | $541.19 | | |
| PORTPT | PORT OF PT GENERAL | 0.1134941229 | $444,624 | $444,624 | $50.46 | | |
| PORTPTIDD | PORT OF PT IDD 2019 | 0.2577346692 | $444,624 | $444,624 | $114.60 | | |
| PUD1 | PUD #1 GENERAL | 0.0597888892 | $444,624 | $444,624 | $26.58 | | |
| STATE | STATE SCHOOL PART 1 | 1.4940692947 | $444,624 | $444,624 | $664.30 | | |
| STATE2 | STATE SCHOOL PART 2 | 0.8050170049 | $444,624 | $444,624 | $357.93 | | |
| | Total Tax Rate: | 8.5416817766 | | | | | |
| | | | | Taxes w/Current Exemptions: | $3,797.83 | | |
| | | | | Taxes w/o Exemptions: | $3,797.83 | | |
Improvement / Building
| Improvement #1: | Residential Bldg | State Code: | 11 | 1149.0 sqft | Value: | $334,624 |
| Bathrooms (#): | 2 (FULL) | Bedrooms (#): | 2 | | Exterior Wall: | SI/ST | Fireplace: | WD ST-GOOD | | Floor Construction: | FRAME | Foundation: | CONPR | | Heating/Cooling: | ELBB | Roof Cover: | COMP |
|
| | Type | Description | Class CD | Sub Class CD | Year Built | Area |
| | MA | Main Area | 4+ | 1S | 1994 | 1149.0 |
| | HWPOR | House Wood Porch | 4 | * | 1994 | 40.0 |
| | HDECK | House Deck | 4 | * | 1994 | 115.0 |
| | ADDN-D | Addition (Table Depreciated) | 4 | 1S | 1994 | 315.0 |
| | CONCD | Concrete Drive | 4 | * | 1994 | 420.0 |
Sketch
Property Image
Land
| 1 | 6010-1175L | | 0.0000 | 0.00 | 0.00 | 0.00 | 1.00 | $110,000 | $0 |
Roll Value History
| 2026 | N/A | N/A | N/A | N/A | N/A |
| 2025 | $334,624 | $110,000 | $0 | $444,624 | $444,624 |
| 2024 | $311,982 | $110,000 | $0 | $421,982 | $421,982 |
| 2023 | $311,982 | $105,000 | $0 | $416,982 | $416,982 |
| 2022 | $292,518 | $100,000 | $0 | $392,518 | $392,518 |
Deed and Sales History
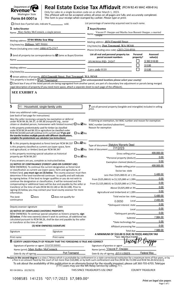
| 1 | 07/12/2023 | SWD | Statutory Warranty Deed | MARY KELLEY MC CORMICK | VINCENT P & MARTHA J B ONEPPO | | | $499,000.00 | 141235 | |
| 2 | 09/25/2015 | SWD | Statutory Warranty Deed | CYNTHIA L MARKER | MARY KELLEY MC CORMICK | | | $229,000.00 | 124050 | |
| 3 | 08/08/2008 | QCD | Quit Claim Deed | MARKER, STEVEN | MARKER, CYNTHIA | 0 | 0 | $0.00 | 111739 | 0 |
| 4 | 02/07/2001 | QCD | Quit Claim Deed | MARKER, STEVEN N | MARKER, CYNTHIA L | 0 | 0 | $0.00 | 91594 | 0 |
Payout Agreement
| No payout information available.. |