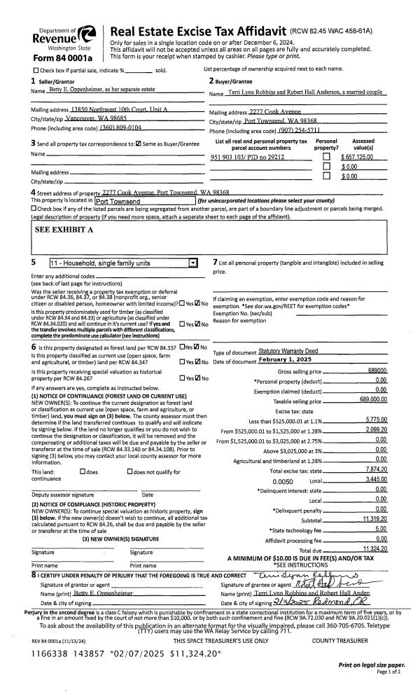
Property
Account |
| Property ID: | 29212 | Abbreviated Legal Description: | FOWLER'S PARK ADDITION BLK 31 LOTS 3 & 4 |
| Parcel # / Geo ID: | 951903103 | Agent Code: | |
| Type: | Real | | |
| Tax Area: | 0110 - C-50F1E1H2 | Land Use Code | 11 |
| Open Space: | N | DFL | N |
| Historic Property: | N | Remodel Property: | N |
| Multi-Family Redevelopment: | N | | |
| Township: | 31N | Section: | 33 |
| Range: | 1W |
Location |
| Address: | 2277 COOK AVE PORT TOWNSEND, WA 98368 | Mapsco: | 050/002 |
| Neighborhood: | FOWLERS PARK, DAVID'S, WILDWOOD AND ACREAGE IN 33-31-1W | Map ID: | |
| Neighborhood CD: | 6010 |
Owner |
| Name: | TERRI L ROBBINS & | Owner ID: | 112114 |
| Mailing Address: | ROBERT H ANDERSON 2277 COOK AVE PORT TOWNSEND, WA 98368-1002 | % Ownership: | 100.0000000000% |
| | | Exemptions: | |
Pay Tax Due
Select the appropriate checkbox next to the year to be paid. Multiple years may be selected.
*Convenience Fee not included
Taxes and Assessment Details
Property Tax Information as of
03/12/2026
Click on "Statement Details" to expand or collapse a tax statement.
* Please enter a valid date ** Please enter a valid date *
Statement Details |
| 2026 | 18532 | STATE - STATE LEVY (SCHOOL) | $759.40 | $759.39 | $0.00 | $0.00 | $0.00 | $1518.79 |
| 2026 | 18532 | COUNTY - COUNTY LEVIES (CE, DD, VET, MH) | $303.61 | $303.59 | $0.00 | $0.00 | $0.00 | $607.20 |
| 2026 | 18532 | CONSERVE - CONSERVATION FUTURES | $9.11 | $9.10 | $0.00 | $0.00 | $0.00 | $18.21 |
| 2026 | 18532 | CITYPT - CITY OF PT | $430.95 | $430.93 | $0.00 | $0.00 | $0.00 | $861.88 |
| 2026 | 18532 | PORTPT - PORT DISTRICT | $122.62 | $122.61 | $0.00 | $0.00 | $0.00 | $245.23 |
| 2026 | 18532 | PUD1 - PUD #1 | $19.75 | $19.75 | $0.00 | $0.00 | $0.00 | $39.50 |
| 2026 | 18532 | HD2 - HOSP DIST #2 | $17.71 | $17.70 | $0.00 | $0.00 | $0.00 | $35.41 |
| 2026 | 18532 | SD50 - SCHOOL DIST #50 | $601.62 | $601.60 | $0.00 | $0.00 | $0.00 | $1203.22 |
| 2026 | 18532 | FD1 - FIRE DISTRICT #1 | $402.04 | $402.04 | $0.00 | $0.00 | $0.00 | $804.08 |
| 2026 | 18532 | EMS1 - FIRE DIST #1 EMS | $154.58 | $154.58 | $0.00 | $0.00 | $0.00 | $309.16 |
| 2026 | 18532 | JCCD - JC Conservation District | $2.55 | $2.55 | $0.00 | $0.00 | $0.00 | $5.10 |
| 2026 | 18532 | NWA - Noxious Weed Assessment | $2.98 | $2.97 | $0.00 | $0.00 | $0.00 | $5.95 |
| 2026 | 18532 | TOTAL: | $2826.92 | $2826.81 | $0.00 | $0.00 | $0.00 | $5653.73 |
|
| 2026 | 18532 | $2826.92 | $2826.81 | $0.00 | $0.00 | $0.00 | $5653.73 |
Statement Details |
| 2025 | 18591 | STATE - STATE LEVY (SCHOOL) | $787.90 | $787.90 | $0.00 | $0.00 | $1575.80 | $0.00 |
| 2025 | 18591 | COUNTY - COUNTY LEVIES (CE, DD, VET, MH) | $309.86 | $309.82 | $0.00 | $0.00 | $619.68 | $0.00 |
| 2025 | 18591 | CONSERVE - CONSERVATION FUTURES | $9.29 | $9.29 | $0.00 | $0.00 | $18.58 | $0.00 |
| 2025 | 18591 | CITYPT - CITY OF PT | $446.83 | $446.81 | $0.00 | $0.00 | $893.64 | $0.00 |
| 2025 | 18591 | PORTPT - PORT DISTRICT | $126.44 | $126.42 | $0.00 | $0.00 | $252.86 | $0.00 |
| 2025 | 18591 | PUD1 - PUD #1 | $20.28 | $20.27 | $0.00 | $0.00 | $40.55 | $0.00 |
| 2025 | 18591 | HD2 - HOSP DIST #2 | $18.08 | $18.07 | $0.00 | $0.00 | $36.15 | $0.00 |
| 2025 | 18591 | SD50 - SCHOOL DIST #50 | $575.84 | $575.81 | $0.00 | $0.00 | $1151.65 | $0.00 |
| 2025 | 18591 | FD1 - FIRE DISTRICT #1 | $408.87 | $408.86 | $0.00 | $0.00 | $817.73 | $0.00 |
| 2025 | 18591 | EMS1 - FIRE DIST #1 EMS | $157.26 | $157.26 | $0.00 | $0.00 | $314.52 | $0.00 |
| 2025 | 18591 | JCCD - JC Conservation District | $2.55 | $2.55 | $0.00 | $0.00 | $5.10 | $0.00 |
| 2025 | 18591 | NWA - Noxious Weed Assessment | $2.15 | $2.15 | $0.00 | $0.00 | $4.30 | $0.00 |
| 2025 | 18591 | TOTAL: | $2865.35 | $2865.21 | $0.00 | $0.00 | $5730.56 | $0.00 |
|
| 2025 | 18591 | $2865.35 | $2865.21 | $0.00 | $0.00 | $5730.56 | $0.00 |
Statement Details |
| 2024 | 18628 | STATE - STATE LEVY (SCHOOL) | $754.39 | $754.37 | $0.00 | $0.00 | $1508.76 | $0.00 |
| 2024 | 18628 | COUNTY - COUNTY LEVIES (CE, DD, VET, MH) | $322.83 | $322.79 | $0.00 | $0.00 | $645.62 | $0.00 |
| 2024 | 18628 | CONSERVE - CONSERVATION FUTURES | $9.68 | $9.68 | $0.00 | $0.00 | $19.36 | $0.00 |
| 2024 | 18628 | CITYPT - CITY OF PT | $461.25 | $461.23 | $0.00 | $0.00 | $922.48 | $0.00 |
| 2024 | 18628 | PORTPT - PORT DISTRICT | $133.34 | $133.33 | $0.00 | $0.00 | $266.67 | $0.00 |
| 2024 | 18628 | PUD1 - PUD #1 | $21.21 | $21.20 | $0.00 | $0.00 | $42.41 | $0.00 |
| 2024 | 18628 | HD2 - HOSP DIST #2 | $18.84 | $18.83 | $0.00 | $0.00 | $37.67 | $0.00 |
| 2024 | 18628 | SD50 - SCHOOL DIST #50 | $610.33 | $610.32 | $0.00 | $0.00 | $1220.65 | $0.00 |
| 2024 | 18628 | FD1 - FIRE DISTRICT #1 | $426.83 | $426.82 | $0.00 | $0.00 | $853.65 | $0.00 |
| 2024 | 18628 | EMS1 - FIRE DIST #1 EMS | $163.03 | $163.03 | $0.00 | $0.00 | $326.06 | $0.00 |
| 2024 | 18628 | JCCD - JC Conservation District | $2.55 | $2.55 | $0.00 | $0.00 | $5.10 | $0.00 |
| 2024 | 18628 | NWA - Noxious Weed Assessment | $2.15 | $2.15 | $0.00 | $0.00 | $4.30 | $0.00 |
| 2024 | 18628 | TOTAL: | $2926.43 | $2926.30 | $0.00 | $0.00 | $5852.73 | $0.00 |
|
| 2024 | 18628 | $2926.43 | $2926.30 | $0.00 | $0.00 | $5852.73 | $0.00 |
Statement Details |
| 2023 | 18665 | STATE - STATE LEVY (SCHOOL) | $761.72 | $761.71 | $0.00 | $0.00 | $1523.43 | $0.00 |
| 2023 | 18665 | COUNTY - COUNTY LEVIES (CE, DD, VET, MH) | $332.40 | $332.37 | $0.00 | $0.00 | $664.77 | $0.00 |
| 2023 | 18665 | CONSERVE - CONSERVATION FUTURES | $9.97 | $9.96 | $0.00 | $0.00 | $19.93 | $0.00 |
| 2023 | 18665 | CITYPT - CITY OF PT | $469.79 | $469.77 | $0.00 | $0.00 | $939.56 | $0.00 |
| 2023 | 18665 | PORTPT - PORT DISTRICT | $140.02 | $140.02 | $0.00 | $0.00 | $280.04 | $0.00 |
| 2023 | 18665 | PUD1 - PUD #1 | $22.04 | $22.03 | $0.00 | $0.00 | $44.07 | $0.00 |
| 2023 | 18665 | HD2 - HOSP DIST #2 | $19.40 | $19.39 | $0.00 | $0.00 | $38.79 | $0.00 |
| 2023 | 18665 | SD50 - SCHOOL DIST #50 | $604.45 | $604.43 | $0.00 | $0.00 | $1208.88 | $0.00 |
| 2023 | 18665 | FD1 - FIRE DISTRICT #1 | $273.83 | $273.82 | $0.00 | $0.00 | $547.65 | $0.00 |
| 2023 | 18665 | EMS1 - FIRE DIST #1 EMS | $116.48 | $116.48 | $0.00 | $0.00 | $232.96 | $0.00 |
| 2023 | 18665 | JCCD - JC Conservation District | $2.55 | $2.55 | $0.00 | $0.00 | $5.10 | $0.00 |
| 2023 | 18665 | NWA - Noxious Weed Assessment | $2.15 | $2.15 | $0.00 | $0.00 | $4.30 | $0.00 |
| 2023 | 18665 | TOTAL: | $2754.80 | $2754.68 | $0.00 | $0.00 | $5509.48 | $0.00 |
|
| 2023 | 18665 | $2754.80 | $2754.68 | $0.00 | $0.00 | $5509.48 | $0.00 |
Values
| (+) Improvement Homesite Value: | + | $0 | |
| (+) Improvement Non-Homesite Value: | + | $510,605 | |
| (+) Land Homesite Value: | + | $0 | |
| (+) Land Non-Homesite Value: | + | $150,000 | |
| (+) Curr Use (HS): | + | $0 | $0 |
| (+) Curr Use (NHS): | + | $0 | $0 |
| | | -------------------------- | |
| (=) Market Value: | = | $660,605 | |
| (–) Productivity Loss: | – | $0 | |
| | | -------------------------- | |
| (=) Subtotal: | = | $660,605 | |
| (+) Senior Appraised Value: | + | $0 | |
| (+) Non-Senior Appraised Value: | + | $660,605 | |
| | | -------------------------- | |
| (=) Total Appraised Value: | = | $660,605 | |
| (–) Senior Exemption Loss: | – | $0 | |
| (–) Exemption Loss: | – | $0 | |
| | | -------------------------- | |
| (=) Taxable Value: | = | $660,605 | |
Taxing Jurisdiction
| Owner: | TERRI L ROBBINS & | | |
| % Ownership: | 100.0000000000% | | |
| Total Value: | $660,605 | | |
| Tax Area: | 0110 - C-50F1E1H2 |
| CE | COUNTY CURRENT EXPENSE | 0.9034619479 | $660,605 | $660,605 | $596.83 | | |
| CNTYDD | DEVELOPMENTAL DISABILITIES | 0.0052121823 | $660,605 | $660,605 | $3.44 | | |
| CNTYVET | VETERANS RELIEF | 0.0052777810 | $660,605 | $660,605 | $3.49 | | |
| MENTAL | MENTAL HEALTH | 0.0052121823 | $660,605 | $660,605 | $3.44 | | |
| PTGEN | CITY OF PT GENERAL | 0.8551967795 | $660,605 | $660,605 | $564.95 | | |
| PTLLL | CITY OF PT - LIBRARY LID LIFT | 0.4010114288 | $660,605 | $660,605 | $264.91 | | |
| PTMVBOND | CITY OF PT MV BOND | 0.0484717981 | $660,605 | $660,605 | $32.02 | | |
| HOSP2CASH | HOSP DIST #2 GENERAL | 0.0536075306 | $660,605 | $660,605 | $35.41 | | |
| SCH50BOND | SCHOOL DIST #50 BOND 2016 | 0.5377451389 | $660,605 | $660,605 | $355.24 | | |
| SCH50CP | SCHOOL DIST #50 CAP PROJ | 0.4573475088 | $660,605 | $660,605 | $302.13 | | |
| SCH50MO | SCHOOL DIST #50 EP & O | 0.8262822886 | $660,605 | $660,605 | $545.85 | | |
| CONSERVE | CONSERVATION FUTURES | 0.0275621078 | $660,605 | $660,605 | $18.21 | | |
| EMS1 | FIRE DIST #1 EMS | 0.4679948282 | $660,605 | $660,605 | $309.16 | | |
| FD1 | FIRE DIST #1 GENERAL | 1.2171942929 | $660,605 | $660,605 | $804.08 | | |
| PORTPT | PORT OF PT GENERAL | 0.1134941229 | $660,605 | $660,605 | $74.97 | | |
| PORTPTIDD | PORT OF PT IDD 2019 | 0.2577346692 | $660,605 | $660,605 | $170.26 | | |
| PUD1 | PUD #1 GENERAL | 0.0597888892 | $660,605 | $660,605 | $39.50 | | |
| STATE | STATE SCHOOL PART 1 | 1.4940692947 | $660,605 | $660,605 | $986.99 | | |
| STATE2 | STATE SCHOOL PART 2 | 0.8050170049 | $660,605 | $660,605 | $531.80 | | |
| | Total Tax Rate: | 8.5416817766 | | | | | |
| | | | | Taxes w/Current Exemptions: | $5,642.68 | | |
| | | | | Taxes w/o Exemptions: | $5,642.68 | | |
Improvement / Building
| Improvement #1: | Residential Bldg | State Code: | 11 | 1782.0 sqft | Value: | $510,605 |
| Bathrooms (#): | 2 (FULL) | Bathrooms (#): | 1 (HALF) | | Bedrooms (#): | 3 | Exterior Wall: | SI/ST | | Floor Construction: | FRAME | Foundation: | CONPR | | Heating/Cooling: | ELBB | Roof Cover: | COMP |
|
| | Type | Description | Class CD | Sub Class CD | Year Built | Area |
| | MA | Main Area | 5- | 2S | 1994 | 990.0 |
| | MA2 | Second Floor Main Area | 5- | 2S | 1994 | 792.0 |
| | HDECK | House Deck | 5 | * | 1994 | 438.0 |
| | GBLTIN | Builtin Garage | 5 | 2S | 1994 | 418.0 |
| | CONCD | Concrete Drive | 5 | * | 1994 | 400.0 |
| | HADDN | House Addition | 5 | 2S | 2020 | 40.5 |
Sketch
Property Image
Land
| 1 | 6010-1175L | | 0.0000 | 0.00 | 0.00 | 0.00 | 1.00 | $110,000 | $0 |
| 2 | 6010-1177L | | 0.0000 | 0.00 | 0.00 | 0.00 | 1.00 | $40,000 | $0 |
Roll Value History
| 2026 | N/A | N/A | N/A | N/A | N/A |
| 2025 | $510,605 | $150,000 | $0 | $660,605 | $660,605 |
| 2024 | $507,125 | $150,000 | $0 | $657,125 | $657,125 |
| 2023 | $507,125 | $145,000 | $0 | $652,125 | $652,125 |
| 2022 | $507,125 | $140,000 | $0 | $647,125 | $647,125 |
Deed and Sales History
| 1 | 02/01/2025 | SWD | Statutory Warranty Deed | IRVING A MORTENSEN | TERRI L ROBBINS & | | | $689,000.00 | 143857 | |
| 2 | 05/22/2006 | SWD | Statutory Warranty Deed | JOHANSEN, CARY L/TRACY HA | MORTENSEN, IRVING/OPPENHEIMER, | | | $325,000.00 | 106775 | 0 |
| 3 | 07/11/1997 | SWD | Statutory Warranty Deed | HARBIN, DAN | JOHANSEN, CARY L/HAHN, TRACI E | 0 | 0 | $145,000.00 | 82338 | 0 |
| 4 | 01/02/1992 | SWD | Statutory Warranty Deed | VANTAGE HOMES INC | HARBIN, DAN | 0 | 0 | $22,000.00 | 67470 | 0 |
Payout Agreement
| No payout information available.. |