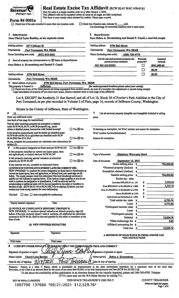
Property
Account |
| Property ID: | 29251 | Abbreviated Legal Description: | FOWLER'S PARK ADDITION BLK 36 LOTS 9(LS S21'), 10(ALL) BND THRU BLA #78666 |
| Parcel # / Geo ID: | 951903601 | Agent Code: | |
| Type: | Real | | |
| Tax Area: | 0110 - C-50F1E1H2 | Land Use Code | 11 |
| Open Space: | N | DFL | N |
| Historic Property: | N | Remodel Property: | N |
| Multi-Family Redevelopment: | N | | |
| Township: | 31N | Section: | 33 |
| Range: | 1W |
Location |
| Address: | 4794 BELL ST PORT TOWNSEND, WA 98368 | Mapsco: | 050/064 |
| Neighborhood: | FOWLERS PARK, DAVID'S, WILDWOOD AND ACREAGE IN 33-31-1W | Map ID: | |
| Neighborhood CD: | 6010 |
Owner |
| Name: | DEBRA A KRONENBERG & DANIEL P CASALI | Owner ID: | 105615 |
| Mailing Address: | 4794 BELL ST PORT TOWNSEND, WA 98368-1914 | % Ownership: | 100.0000000000% |
| | | Exemptions: | |
Pay Tax Due
Select the appropriate checkbox next to the year to be paid. Multiple years may be selected.
*Convenience Fee not included
Taxes and Assessment Details
Property Tax Information as of
03/10/2026
Click on "Statement Details" to expand or collapse a tax statement.
* Please enter a valid date ** Please enter a valid date *
Statement Details |
| 2026 | 18571 | STATE - STATE LEVY (SCHOOL) | $891.51 | $891.49 | $0.00 | $0.00 | $0.00 | $1783.00 |
| 2026 | 18571 | COUNTY - COUNTY LEVIES (CE, DD, VET, MH) | $356.42 | $356.41 | $0.00 | $0.00 | $0.00 | $712.83 |
| 2026 | 18571 | CONSERVE - CONSERVATION FUTURES | $10.69 | $10.69 | $0.00 | $0.00 | $0.00 | $21.38 |
| 2026 | 18571 | CITYPT - CITY OF PT | $505.92 | $505.90 | $0.00 | $0.00 | $0.00 | $1011.82 |
| 2026 | 18571 | PORTPT - PORT DISTRICT | $143.95 | $143.95 | $0.00 | $0.00 | $0.00 | $287.90 |
| 2026 | 18571 | PUD1 - PUD #1 | $23.19 | $23.18 | $0.00 | $0.00 | $0.00 | $46.37 |
| 2026 | 18571 | HD2 - HOSP DIST #2 | $20.79 | $20.78 | $0.00 | $0.00 | $0.00 | $41.57 |
| 2026 | 18571 | SD50 - SCHOOL DIST #50 | $706.28 | $706.26 | $0.00 | $0.00 | $0.00 | $1412.54 |
| 2026 | 18571 | FD1 - FIRE DISTRICT #1 | $471.99 | $471.98 | $0.00 | $0.00 | $0.00 | $943.97 |
| 2026 | 18571 | EMS1 - FIRE DIST #1 EMS | $181.47 | $181.47 | $0.00 | $0.00 | $0.00 | $362.94 |
| 2026 | 18571 | JCCD - JC Conservation District | $2.55 | $2.55 | $0.00 | $0.00 | $0.00 | $5.10 |
| 2026 | 18571 | NWA - Noxious Weed Assessment | $2.98 | $2.97 | $0.00 | $0.00 | $0.00 | $5.95 |
| 2026 | 18571 | TOTAL: | $3317.74 | $3317.63 | $0.00 | $0.00 | $0.00 | $6635.37 |
|
| 2026 | 18571 | $3317.74 | $3317.63 | $0.00 | $0.00 | $0.00 | $6635.37 |
Statement Details |
| 2025 | 18630 | STATE - STATE LEVY (SCHOOL) | $840.82 | $840.82 | $0.00 | $0.00 | $1681.64 | $0.00 |
| 2025 | 18630 | COUNTY - COUNTY LEVIES (CE, DD, VET, MH) | $330.65 | $330.64 | $0.00 | $0.00 | $661.29 | $0.00 |
| 2025 | 18630 | CONSERVE - CONSERVATION FUTURES | $9.92 | $9.91 | $0.00 | $0.00 | $19.83 | $0.00 |
| 2025 | 18630 | CITYPT - CITY OF PT | $476.84 | $476.82 | $0.00 | $0.00 | $953.66 | $0.00 |
| 2025 | 18630 | PORTPT - PORT DISTRICT | $134.93 | $134.91 | $0.00 | $0.00 | $269.84 | $0.00 |
| 2025 | 18630 | PUD1 - PUD #1 | $21.64 | $21.63 | $0.00 | $0.00 | $43.27 | $0.00 |
| 2025 | 18630 | HD2 - HOSP DIST #2 | $19.29 | $19.29 | $0.00 | $0.00 | $38.58 | $0.00 |
| 2025 | 18630 | SD50 - SCHOOL DIST #50 | $614.50 | $614.49 | $0.00 | $0.00 | $1228.99 | $0.00 |
| 2025 | 18630 | FD1 - FIRE DISTRICT #1 | $436.33 | $436.32 | $0.00 | $0.00 | $872.65 | $0.00 |
| 2025 | 18630 | EMS1 - FIRE DIST #1 EMS | $167.82 | $167.82 | $0.00 | $0.00 | $335.64 | $0.00 |
| 2025 | 18630 | JCCD - JC Conservation District | $2.55 | $2.55 | $0.00 | $0.00 | $5.10 | $0.00 |
| 2025 | 18630 | NWA - Noxious Weed Assessment | $2.15 | $2.15 | $0.00 | $0.00 | $4.30 | $0.00 |
| 2025 | 18630 | TOTAL: | $3057.44 | $3057.35 | $0.00 | $0.00 | $6114.79 | $0.00 |
|
| 2025 | 18630 | $3057.44 | $3057.35 | $0.00 | $0.00 | $6114.79 | $0.00 |
Statement Details |
| 2024 | 18667 | STATE - STATE LEVY (SCHOOL) | $805.44 | $805.43 | $0.00 | $0.00 | $1610.87 | $0.00 |
| 2024 | 18667 | COUNTY - COUNTY LEVIES (CE, DD, VET, MH) | $344.66 | $344.64 | $0.00 | $0.00 | $689.30 | $0.00 |
| 2024 | 18667 | CONSERVE - CONSERVATION FUTURES | $10.34 | $10.33 | $0.00 | $0.00 | $20.67 | $0.00 |
| 2024 | 18667 | CITYPT - CITY OF PT | $492.47 | $492.45 | $0.00 | $0.00 | $984.92 | $0.00 |
| 2024 | 18667 | PORTPT - PORT DISTRICT | $142.36 | $142.35 | $0.00 | $0.00 | $284.71 | $0.00 |
| 2024 | 18667 | PUD1 - PUD #1 | $22.64 | $22.64 | $0.00 | $0.00 | $45.28 | $0.00 |
| 2024 | 18667 | HD2 - HOSP DIST #2 | $20.11 | $20.11 | $0.00 | $0.00 | $40.22 | $0.00 |
| 2024 | 18667 | SD50 - SCHOOL DIST #50 | $651.64 | $651.63 | $0.00 | $0.00 | $1303.27 | $0.00 |
| 2024 | 18667 | FD1 - FIRE DISTRICT #1 | $455.71 | $455.71 | $0.00 | $0.00 | $911.42 | $0.00 |
| 2024 | 18667 | EMS1 - FIRE DIST #1 EMS | $174.07 | $174.06 | $0.00 | $0.00 | $348.13 | $0.00 |
| 2024 | 18667 | JCCD - JC Conservation District | $2.55 | $2.55 | $0.00 | $0.00 | $5.10 | $0.00 |
| 2024 | 18667 | NWA - Noxious Weed Assessment | $2.15 | $2.15 | $0.00 | $0.00 | $4.30 | $0.00 |
| 2024 | 18667 | TOTAL: | $3124.14 | $3124.05 | $0.00 | $0.00 | $6248.19 | $0.00 |
|
| 2024 | 18667 | $3124.14 | $3124.05 | $0.00 | $0.00 | $6248.19 | $0.00 |
Statement Details |
| 2023 | 18704 | STATE - STATE LEVY (SCHOOL) | $813.67 | $813.67 | $0.00 | $0.00 | $1627.34 | $0.00 |
| 2023 | 18704 | COUNTY - COUNTY LEVIES (CE, DD, VET, MH) | $355.07 | $355.04 | $0.00 | $0.00 | $710.11 | $0.00 |
| 2023 | 18704 | CONSERVE - CONSERVATION FUTURES | $10.65 | $10.64 | $0.00 | $0.00 | $21.29 | $0.00 |
| 2023 | 18704 | CITYPT - CITY OF PT | $501.83 | $501.81 | $0.00 | $0.00 | $1003.64 | $0.00 |
| 2023 | 18704 | PORTPT - PORT DISTRICT | $149.57 | $149.57 | $0.00 | $0.00 | $299.14 | $0.00 |
| 2023 | 18704 | PUD1 - PUD #1 | $23.54 | $23.53 | $0.00 | $0.00 | $47.07 | $0.00 |
| 2023 | 18704 | HD2 - HOSP DIST #2 | $20.72 | $20.72 | $0.00 | $0.00 | $41.44 | $0.00 |
| 2023 | 18704 | SD50 - SCHOOL DIST #50 | $645.67 | $645.65 | $0.00 | $0.00 | $1291.32 | $0.00 |
| 2023 | 18704 | FD1 - FIRE DISTRICT #1 | $292.50 | $292.50 | $0.00 | $0.00 | $585.00 | $0.00 |
| 2023 | 18704 | EMS1 - FIRE DIST #1 EMS | $124.43 | $124.42 | $0.00 | $0.00 | $248.85 | $0.00 |
| 2023 | 18704 | JCCD - JC Conservation District | $2.55 | $2.55 | $0.00 | $0.00 | $5.10 | $0.00 |
| 2023 | 18704 | NWA - Noxious Weed Assessment | $2.15 | $2.15 | $0.00 | $0.00 | $4.30 | $0.00 |
| 2023 | 18704 | TOTAL: | $2942.35 | $2942.25 | $0.00 | $0.00 | $5884.60 | $0.00 |
|
| 2023 | 18704 | $2942.35 | $2942.25 | $0.00 | $0.00 | $5884.60 | $0.00 |
Values
| (+) Improvement Homesite Value: | + | $0 | |
| (+) Improvement Non-Homesite Value: | + | $642,329 | |
| (+) Land Homesite Value: | + | $0 | |
| (+) Land Non-Homesite Value: | + | $133,200 | |
| (+) Curr Use (HS): | + | $0 | $0 |
| (+) Curr Use (NHS): | + | $0 | $0 |
| | | -------------------------- | |
| (=) Market Value: | = | $775,529 | |
| (–) Productivity Loss: | – | $0 | |
| | | -------------------------- | |
| (=) Subtotal: | = | $775,529 | |
| (+) Senior Appraised Value: | + | $0 | |
| (+) Non-Senior Appraised Value: | + | $775,529 | |
| | | -------------------------- | |
| (=) Total Appraised Value: | = | $775,529 | |
| (–) Senior Exemption Loss: | – | $0 | |
| (–) Exemption Loss: | – | $0 | |
| | | -------------------------- | |
| (=) Taxable Value: | = | $775,529 | |
Taxing Jurisdiction
| Owner: | DEBRA A KRONENBERG & DANIEL P CASALI | | |
| % Ownership: | 100.0000000000% | | |
| Total Value: | $775,529 | | |
| Tax Area: | 0110 - C-50F1E1H2 |
| CE | COUNTY CURRENT EXPENSE | 0.9034619479 | $775,529 | $775,529 | $700.66 | | |
| CNTYDD | DEVELOPMENTAL DISABILITIES | 0.0052121823 | $775,529 | $775,529 | $4.04 | | |
| CNTYVET | VETERANS RELIEF | 0.0052777810 | $775,529 | $775,529 | $4.09 | | |
| MENTAL | MENTAL HEALTH | 0.0052121823 | $775,529 | $775,529 | $4.04 | | |
| PTGEN | CITY OF PT GENERAL | 0.8551967795 | $775,529 | $775,529 | $663.23 | | |
| PTLLL | CITY OF PT - LIBRARY LID LIFT | 0.4010114288 | $775,529 | $775,529 | $311.00 | | |
| PTMVBOND | CITY OF PT MV BOND | 0.0484717981 | $775,529 | $775,529 | $37.59 | | |
| HOSP2CASH | HOSP DIST #2 GENERAL | 0.0536075306 | $775,529 | $775,529 | $41.57 | | |
| SCH50BOND | SCHOOL DIST #50 BOND 2016 | 0.5377451389 | $775,529 | $775,529 | $417.04 | | |
| SCH50CP | SCHOOL DIST #50 CAP PROJ | 0.4573475088 | $775,529 | $775,529 | $354.69 | | |
| SCH50MO | SCHOOL DIST #50 EP & O | 0.8262822886 | $775,529 | $775,529 | $640.81 | | |
| CONSERVE | CONSERVATION FUTURES | 0.0275621078 | $775,529 | $775,529 | $21.38 | | |
| EMS1 | FIRE DIST #1 EMS | 0.4679948282 | $775,529 | $775,529 | $362.94 | | |
| FD1 | FIRE DIST #1 GENERAL | 1.2171942929 | $775,529 | $775,529 | $943.97 | | |
| PORTPT | PORT OF PT GENERAL | 0.1134941229 | $775,529 | $775,529 | $88.02 | | |
| PORTPTIDD | PORT OF PT IDD 2019 | 0.2577346692 | $775,529 | $775,529 | $199.88 | | |
| PUD1 | PUD #1 GENERAL | 0.0597888892 | $775,529 | $775,529 | $46.37 | | |
| STATE | STATE SCHOOL PART 1 | 1.4940692947 | $775,529 | $775,529 | $1,158.69 | | |
| STATE2 | STATE SCHOOL PART 2 | 0.8050170049 | $775,529 | $775,529 | $624.31 | | |
| | Total Tax Rate: | 8.5416817766 | | | | | |
| | | | | Taxes w/Current Exemptions: | $6,624.32 | | |
| | | | | Taxes w/o Exemptions: | $6,624.32 | | |
Improvement / Building
| Improvement #1: | Residential Bldg | State Code: | 11 | 2036.0 sqft | Value: | $642,329 |
| Bathrooms (#): | 2 (FULL) | Bathrooms (#): | 1 (HALF) | | Bedrooms (#): | 3 | Exterior Wall: | SI/ST | | Fireplace: | SIN 2-GOOD | Floor Construction: | FRAME | | Foundation: | CONPR | Heating/Cooling: | HPUMP | | Roof Cover: | COMP |   |   |
|
| | Type | Description | Class CD | Sub Class CD | Year Built | Area |
| | MA | Main Area | 5+ | 2S | 1996 | 720.0 |
| | MA2 | Second Floor Main Area | 5 | 2S | 1996 | 1316.0 |
| | HWPOR | House Wood Porch | 5 | * | 1996 | 96.0 |
| | HDECK | House Deck | 5 | * | 1996 | 206.0 |
| | GBLTIN | Builtin Garage | 5 | 2S | 1996 | 576.0 |
| | CONCD | Concrete Drive | 5 | * | 1996 | 800.0 |
| | PATIO | House Patio | 5 | * | 1996 | 80.0 |
Sketch
Property Image
Land
| 1 | 6010-1175L | | 0.0000 | 0.00 | 0.00 | 0.00 | 1.00 | $110,000 | $0 |
| 2 | 6010-1177L | | 0.0000 | 0.00 | 0.00 | 0.00 | 1.00 | $23,200 | $0 |
Roll Value History
| 2026 | N/A | N/A | N/A | N/A | N/A |
| 2025 | $642,329 | $133,200 | $0 | $775,529 | $775,529 |
| 2024 | $568,060 | $133,200 | $0 | $701,260 | $701,260 |
| 2023 | $568,060 | $128,200 | $0 | $696,260 | $696,260 |
| 2022 | $568,060 | $123,200 | $0 | $691,260 | $691,260 |
Deed and Sales History
| 1 | 09/14/2021 | SWD | Statutory Warranty Deed | CHERYL L BENTLEY | DEBRA A KRONENBERG & DANIEL P CASALI | | | $754,200.00 | 137660 | |
| 2 | 09/28/2005 | SWD | Statutory Warranty Deed | SMITH, MICHAEL & BRENDA | BENTLEY, CHERYL LYNN | 0 | 0 | $356,000.00 | 104962 | 0 |
| 3 | 09/01/2005 | QCD | Quit Claim Deed | SMITH, BRENDA | SMITH, MICHAEL JOHN/BRENDA | 0 | 0 | $0.00 | 104653 | 0 |
| 4 | 08/12/2004 | SWD | Statutory Warranty Deed | RANGE, PATRICIA B/WILLIAM | SMITH, BRENDA | 0 | 0 | $274,000.00 | 101190 | 0 |
| 5 | 10/14/1996 | SWD | Statutory Warranty Deed | VANTAGE CONSTRUCTION SERV | RANGE, PATRICIA B/WILLIAM E | 0 | 0 | $179,500.00 | 80599 | 0 |
| 6 | 01/18/1996 | QCD | Quit Claim Deed | WILBURN, LEE C/MARGARET | VANTAGE CONSTRUCTION SERVICES | 0 | 0 | $0.00 | 78722 | 0 |
| 7 | 01/02/1996 | BLA | Boundary Line Adjustment | VANTAGE PROPERTIES | GARRISON, VERNON | 0 | 0 | $0.00 | 78666 | 0 |
| 8 | 11/29/1994 | SWD | Statutory Warranty Deed | MCBRIDE PROPERTIES INC | WILBURN, LEE C/MARGRET S | 0 | 0 | $25,960.00 | 75675 | 0 |
Payout Agreement
| No payout information available.. |