Property
Account |
| Property ID: | 29287 | Abbreviated Legal Description: | FOWLER'S PARK ADDITION BLK 40 LOTS 7 & 8 |
| Parcel # / Geo ID: | 951904007 | Agent Code: | |
| Type: | Real | | |
| Tax Area: | 0110 - C-50F1E1H2 | Land Use Code | 11 |
| Open Space: | N | DFL | N |
| Historic Property: | N | Remodel Property: | N |
| Multi-Family Redevelopment: | N | | |
| Township: | 31N | Section: | 33 |
| Range: | 1W |
Location |
| Address: | 4968 MAGNOLIA ST PORT TOWNSEND, WA 98368 | Mapsco: | 051/035 |
| Neighborhood: | FOWLERS PARK, DAVID'S, WILDWOOD AND ACREAGE IN 33-31-1W | Map ID: | |
| Neighborhood CD: | 6010 |
Owner |
| Name: | STUART BEAZLEY TRUST | Owner ID: | 98268 |
| Mailing Address: | CHRISTOPHER VANN STUART TRUSTEE JANET MARIE BEAZLEY TRUSTEE 4968 MAGNOLIA ST PORT TOWNSEND, WA 98368-1941 | % Ownership: | 100.0000000000% |
| | | Exemptions: | |
Pay Tax Due
Select the appropriate checkbox next to the year to be paid. Multiple years may be selected.
*Convenience Fee not included
Taxes and Assessment Details
Property Tax Information as of
03/11/2026
Click on "Statement Details" to expand or collapse a tax statement.
* Please enter a valid date ** Please enter a valid date *
Statement Details |
| 2026 | 18607 | STATE - STATE LEVY (SCHOOL) | $706.16 | $706.14 | $0.00 | $0.00 | $0.00 | $1412.30 |
| 2026 | 18607 | COUNTY - COUNTY LEVIES (CE, DD, VET, MH) | $282.32 | $282.31 | $0.00 | $0.00 | $0.00 | $564.63 |
| 2026 | 18607 | CONSERVE - CONSERVATION FUTURES | $8.47 | $8.46 | $0.00 | $0.00 | $0.00 | $16.93 |
| 2026 | 18607 | CITYPT - CITY OF PT | $400.73 | $400.73 | $0.00 | $0.00 | $0.00 | $801.46 |
| 2026 | 18607 | PORTPT - PORT DISTRICT | $114.02 | $114.02 | $0.00 | $0.00 | $0.00 | $228.04 |
| 2026 | 18607 | PUD1 - PUD #1 | $18.37 | $18.36 | $0.00 | $0.00 | $0.00 | $36.73 |
| 2026 | 18607 | HD2 - HOSP DIST #2 | $16.47 | $16.46 | $0.00 | $0.00 | $0.00 | $32.93 |
| 2026 | 18607 | SD50 - SCHOOL DIST #50 | $559.43 | $559.42 | $0.00 | $0.00 | $0.00 | $1118.85 |
| 2026 | 18607 | FD1 - FIRE DISTRICT #1 | $373.86 | $373.85 | $0.00 | $0.00 | $0.00 | $747.71 |
| 2026 | 18607 | EMS1 - FIRE DIST #1 EMS | $143.74 | $143.74 | $0.00 | $0.00 | $0.00 | $287.48 |
| 2026 | 18607 | JCCD - JC Conservation District | $2.55 | $2.55 | $0.00 | $0.00 | $0.00 | $5.10 |
| 2026 | 18607 | NWA - Noxious Weed Assessment | $2.98 | $2.97 | $0.00 | $0.00 | $0.00 | $5.95 |
| 2026 | 18607 | TOTAL: | $2629.10 | $2629.01 | $0.00 | $0.00 | $0.00 | $5258.11 |
|
| 2026 | 18607 | $2629.10 | $2629.01 | $0.00 | $0.00 | $0.00 | $5258.11 |
Statement Details |
| 2025 | 18666 | STATE - STATE LEVY (SCHOOL) | $658.51 | $658.50 | $0.00 | $0.00 | $1317.01 | $0.00 |
| 2025 | 18666 | COUNTY - COUNTY LEVIES (CE, DD, VET, MH) | $258.97 | $258.94 | $0.00 | $0.00 | $517.91 | $0.00 |
| 2025 | 18666 | CONSERVE - CONSERVATION FUTURES | $7.77 | $7.76 | $0.00 | $0.00 | $15.53 | $0.00 |
| 2025 | 18666 | CITYPT - CITY OF PT | $373.45 | $373.43 | $0.00 | $0.00 | $746.88 | $0.00 |
| 2025 | 18666 | PORTPT - PORT DISTRICT | $105.68 | $105.66 | $0.00 | $0.00 | $211.34 | $0.00 |
| 2025 | 18666 | PUD1 - PUD #1 | $16.95 | $16.94 | $0.00 | $0.00 | $33.89 | $0.00 |
| 2025 | 18666 | HD2 - HOSP DIST #2 | $15.11 | $15.11 | $0.00 | $0.00 | $30.22 | $0.00 |
| 2025 | 18666 | SD50 - SCHOOL DIST #50 | $481.27 | $481.25 | $0.00 | $0.00 | $962.52 | $0.00 |
| 2025 | 18666 | FD1 - FIRE DISTRICT #1 | $341.72 | $341.71 | $0.00 | $0.00 | $683.43 | $0.00 |
| 2025 | 18666 | EMS1 - FIRE DIST #1 EMS | $131.44 | $131.43 | $0.00 | $0.00 | $262.87 | $0.00 |
| 2025 | 18666 | JCCD - JC Conservation District | $2.55 | $2.55 | $0.00 | $0.00 | $5.10 | $0.00 |
| 2025 | 18666 | NWA - Noxious Weed Assessment | $2.15 | $2.15 | $0.00 | $0.00 | $4.30 | $0.00 |
| 2025 | 18666 | TOTAL: | $2395.57 | $2395.43 | $0.00 | $0.00 | $4791.00 | $0.00 |
|
| 2025 | 18666 | $2395.57 | $2395.43 | $0.00 | $0.00 | $4791.00 | $0.00 |
Statement Details |
| 2024 | 18703 | STATE - STATE LEVY (SCHOOL) | $629.54 | $629.53 | $0.00 | $0.00 | $1259.07 | $0.00 |
| 2024 | 18703 | COUNTY - COUNTY LEVIES (CE, DD, VET, MH) | $269.38 | $269.38 | $0.00 | $0.00 | $538.76 | $0.00 |
| 2024 | 18703 | CONSERVE - CONSERVATION FUTURES | $8.08 | $8.08 | $0.00 | $0.00 | $16.16 | $0.00 |
| 2024 | 18703 | CITYPT - CITY OF PT | $384.92 | $384.91 | $0.00 | $0.00 | $769.83 | $0.00 |
| 2024 | 18703 | PORTPT - PORT DISTRICT | $111.27 | $111.26 | $0.00 | $0.00 | $222.53 | $0.00 |
| 2024 | 18703 | PUD1 - PUD #1 | $17.70 | $17.69 | $0.00 | $0.00 | $35.39 | $0.00 |
| 2024 | 18703 | HD2 - HOSP DIST #2 | $15.72 | $15.72 | $0.00 | $0.00 | $31.44 | $0.00 |
| 2024 | 18703 | SD50 - SCHOOL DIST #50 | $509.33 | $509.32 | $0.00 | $0.00 | $1018.65 | $0.00 |
| 2024 | 18703 | FD1 - FIRE DISTRICT #1 | $356.19 | $356.19 | $0.00 | $0.00 | $712.38 | $0.00 |
| 2024 | 18703 | EMS1 - FIRE DIST #1 EMS | $136.05 | $136.05 | $0.00 | $0.00 | $272.10 | $0.00 |
| 2024 | 18703 | JCCD - JC Conservation District | $2.55 | $2.55 | $0.00 | $0.00 | $5.10 | $0.00 |
| 2024 | 18703 | NWA - Noxious Weed Assessment | $2.15 | $2.15 | $0.00 | $0.00 | $4.30 | $0.00 |
| 2024 | 18703 | TOTAL: | $2442.88 | $2442.83 | $0.00 | $0.00 | $4885.71 | $0.00 |
|
| 2024 | 18703 | $2442.88 | $2442.83 | $0.00 | $0.00 | $4885.71 | $0.00 |
Statement Details |
| 2023 | 18740 | STATE - STATE LEVY (SCHOOL) | $634.69 | $634.69 | $0.00 | $0.00 | $1269.38 | $0.00 |
| 2023 | 18740 | COUNTY - COUNTY LEVIES (CE, DD, VET, MH) | $276.95 | $276.95 | $0.00 | $0.00 | $553.90 | $0.00 |
| 2023 | 18740 | CONSERVE - CONSERVATION FUTURES | $8.31 | $8.30 | $0.00 | $0.00 | $16.61 | $0.00 |
| 2023 | 18740 | CITYPT - CITY OF PT | $391.44 | $391.43 | $0.00 | $0.00 | $782.87 | $0.00 |
| 2023 | 18740 | PORTPT - PORT DISTRICT | $116.67 | $116.66 | $0.00 | $0.00 | $233.33 | $0.00 |
| 2023 | 18740 | PUD1 - PUD #1 | $18.36 | $18.36 | $0.00 | $0.00 | $36.72 | $0.00 |
| 2023 | 18740 | HD2 - HOSP DIST #2 | $16.17 | $16.16 | $0.00 | $0.00 | $32.33 | $0.00 |
| 2023 | 18740 | SD50 - SCHOOL DIST #50 | $503.64 | $503.63 | $0.00 | $0.00 | $1007.27 | $0.00 |
| 2023 | 18740 | FD1 - FIRE DISTRICT #1 | $228.16 | $228.16 | $0.00 | $0.00 | $456.32 | $0.00 |
| 2023 | 18740 | EMS1 - FIRE DIST #1 EMS | $97.06 | $97.05 | $0.00 | $0.00 | $194.11 | $0.00 |
| 2023 | 18740 | JCCD - JC Conservation District | $2.55 | $2.55 | $0.00 | $0.00 | $5.10 | $0.00 |
| 2023 | 18740 | NWA - Noxious Weed Assessment | $2.15 | $2.15 | $0.00 | $0.00 | $4.30 | $0.00 |
| 2023 | 18740 | TOTAL: | $2296.15 | $2296.09 | $0.00 | $0.00 | $4592.24 | $0.00 |
|
| 2023 | 18740 | $2296.15 | $2296.09 | $0.00 | $0.00 | $4592.24 | $0.00 |
Values
| (+) Improvement Homesite Value: | + | $0 | |
| (+) Improvement Non-Homesite Value: | + | $464,289 | |
| (+) Land Homesite Value: | + | $0 | |
| (+) Land Non-Homesite Value: | + | $150,000 | |
| (+) Curr Use (HS): | + | $0 | $0 |
| (+) Curr Use (NHS): | + | $0 | $0 |
| | | -------------------------- | |
| (=) Market Value: | = | $614,289 | |
| (–) Productivity Loss: | – | $0 | |
| | | -------------------------- | |
| (=) Subtotal: | = | $614,289 | |
| (+) Senior Appraised Value: | + | $0 | |
| (+) Non-Senior Appraised Value: | + | $614,289 | |
| | | -------------------------- | |
| (=) Total Appraised Value: | = | $614,289 | |
| (–) Senior Exemption Loss: | – | $0 | |
| (–) Exemption Loss: | – | $0 | |
| | | -------------------------- | |
| (=) Taxable Value: | = | $614,289 | |
Taxing Jurisdiction
| Owner: | STUART BEAZLEY TRUST | | |
| % Ownership: | 100.0000000000% | | |
| Total Value: | $614,289 | | |
| Tax Area: | 0110 - C-50F1E1H2 |
| CE | COUNTY CURRENT EXPENSE | 0.9034619479 | $614,289 | $614,289 | $554.99 | | |
| CNTYDD | DEVELOPMENTAL DISABILITIES | 0.0052121823 | $614,289 | $614,289 | $3.20 | | |
| CNTYVET | VETERANS RELIEF | 0.0052777810 | $614,289 | $614,289 | $3.24 | | |
| MENTAL | MENTAL HEALTH | 0.0052121823 | $614,289 | $614,289 | $3.20 | | |
| PTGEN | CITY OF PT GENERAL | 0.8551967795 | $614,289 | $614,289 | $525.34 | | |
| PTLLL | CITY OF PT - LIBRARY LID LIFT | 0.4010114288 | $614,289 | $614,289 | $246.34 | | |
| PTMVBOND | CITY OF PT MV BOND | 0.0484717981 | $614,289 | $614,289 | $29.78 | | |
| HOSP2CASH | HOSP DIST #2 GENERAL | 0.0536075306 | $614,289 | $614,289 | $32.93 | | |
| SCH50BOND | SCHOOL DIST #50 BOND 2016 | 0.5377451389 | $614,289 | $614,289 | $330.33 | | |
| SCH50CP | SCHOOL DIST #50 CAP PROJ | 0.4573475088 | $614,289 | $614,289 | $280.94 | | |
| SCH50MO | SCHOOL DIST #50 EP & O | 0.8262822886 | $614,289 | $614,289 | $507.58 | | |
| CONSERVE | CONSERVATION FUTURES | 0.0275621078 | $614,289 | $614,289 | $16.93 | | |
| EMS1 | FIRE DIST #1 EMS | 0.4679948282 | $614,289 | $614,289 | $287.48 | | |
| FD1 | FIRE DIST #1 GENERAL | 1.2171942929 | $614,289 | $614,289 | $747.71 | | |
| PORTPT | PORT OF PT GENERAL | 0.1134941229 | $614,289 | $614,289 | $69.72 | | |
| PORTPTIDD | PORT OF PT IDD 2019 | 0.2577346692 | $614,289 | $614,289 | $158.32 | | |
| PUD1 | PUD #1 GENERAL | 0.0597888892 | $614,289 | $614,289 | $36.73 | | |
| STATE | STATE SCHOOL PART 1 | 1.4940692947 | $614,289 | $614,289 | $917.79 | | |
| STATE2 | STATE SCHOOL PART 2 | 0.8050170049 | $614,289 | $614,289 | $494.51 | | |
| | Total Tax Rate: | 8.5416817766 | | | | | |
| | | | | Taxes w/Current Exemptions: | $5,247.06 | | |
| | | | | Taxes w/o Exemptions: | $5,247.06 | | |
Improvement / Building
| Improvement #1: | Residential Bldg | State Code: | 11 | 2000.0 sqft | Value: | $464,289 |
| Bathrooms (#): | 2 (FULL) | Bedrooms (#): | 4 | | Exterior Wall: | SI/ST | Floor Construction: | FRAME | | Foundation: | CONPR | Heating/Cooling: | ELBB | | Roof Cover: | COMP |   |   |
|
| | Type | Description | Class CD | Sub Class CD | Year Built | Area |
| | MA | Main Area | 4 | 1S | 1999 | 2000.0 |
| | HDECK | House Deck | 4 | * | 1999 | 240.0 |
| | GATT | House Attached Garage | 4 | 1S | 1999 | 528.0 |
| | CONCD | Concrete Drive | 4 | * | 1999 | 799.1 |
| | PATIO | House Patio | 4 | * | 1999 | 392.0 |
Sketch
Property Image
Land
| 1 | 6010-1175L | | 0.0000 | 0.00 | 0.00 | 0.00 | 1.00 | $110,000 | $0 |
| 2 | 6010-1177L | | 0.0000 | 0.00 | 0.00 | 0.00 | 1.00 | $40,000 | $0 |
Roll Value History
| 2026 | N/A | N/A | N/A | N/A | N/A |
| 2025 | $464,289 | $150,000 | $0 | $614,289 | $614,289 |
| 2024 | $399,205 | $150,000 | $0 | $549,205 | $549,205 |
| 2023 | $399,205 | $145,000 | $0 | $544,205 | $544,205 |
| 2022 | $399,205 | $140,000 | $0 | $539,205 | $539,205 |
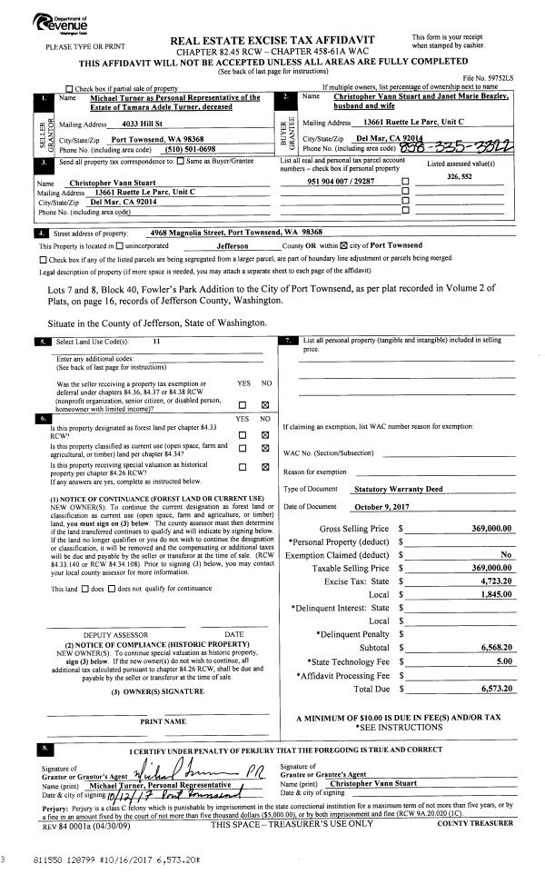
Deed and Sales History
| 1 | 10/31/2017 | QCD | Quit Claim Deed | CHRISTOPHER VANN STUART & JANET M BEAZLELY | STUART BEAZLEY TRUST | | | | 128963 | |
| 2 | 10/09/2017 | SWD | Statutory Warranty Deed | TAMARA A TURNER | CHRISTOPHER VANN STUART & JANET M BEAZLELY | | | $369,000.00 | 128799 | |
| 3 | 10/08/2015 | SWD | Statutory Warranty Deed | JAMES H ELLIS | TAMARA A TURNER | | | $330,000.00 | 124209 | |
Payout Agreement
| No payout information available.. |