Property
Account |
| Property ID: | 29288 | Abbreviated Legal Description: | FOWLER'S PARK ADDITION BLK 40 LOTS 9 & 10 |
| Parcel # / Geo ID: | 951904009 | Agent Code: | |
| Type: | Real | | |
| Tax Area: | 0110 - C-50F1E1H2 | Land Use Code | 11 |
| Open Space: | N | DFL | N |
| Historic Property: | N | Remodel Property: | N |
| Multi-Family Redevelopment: | N | | |
| Township: | 31N | Section: | 33 |
| Range: | 1W |
Location |
| Address: | 5004 MAGNOLIA ST PORT TOWNSEND, WA 98368 | Mapsco: | 051/036 |
| Neighborhood: | FOWLERS PARK, DAVID'S, WILDWOOD AND ACREAGE IN 33-31-1W | Map ID: | |
| Neighborhood CD: | 6010 |
Owner |
| Name: | SHEILA B LONG | Owner ID: | 99484 |
| Mailing Address: | 5004 MAGNOLIA ST PORT TOWNSEND, WA 98368-1934 | % Ownership: | 100.0000000000% |
| | | Exemptions: | |
Pay Tax Due
Select the appropriate checkbox next to the year to be paid. Multiple years may be selected.
*Convenience Fee not included
Taxes and Assessment Details
Property Tax Information as of
03/11/2026
Click on "Statement Details" to expand or collapse a tax statement.
* Please enter a valid date ** Please enter a valid date *
Statement Details |
| 2026 | 18608 | STATE - STATE LEVY (SCHOOL) | $697.88 | $697.88 | $0.00 | $0.00 | $0.00 | $1395.76 |
| 2026 | 18608 | COUNTY - COUNTY LEVIES (CE, DD, VET, MH) | $279.01 | $279.00 | $0.00 | $0.00 | $0.00 | $558.01 |
| 2026 | 18608 | CONSERVE - CONSERVATION FUTURES | $8.37 | $8.36 | $0.00 | $0.00 | $0.00 | $16.73 |
| 2026 | 18608 | CITYPT - CITY OF PT | $396.05 | $396.02 | $0.00 | $0.00 | $0.00 | $792.07 |
| 2026 | 18608 | PORTPT - PORT DISTRICT | $112.69 | $112.68 | $0.00 | $0.00 | $0.00 | $225.37 |
| 2026 | 18608 | PUD1 - PUD #1 | $18.15 | $18.15 | $0.00 | $0.00 | $0.00 | $36.30 |
| 2026 | 18608 | HD2 - HOSP DIST #2 | $16.27 | $16.27 | $0.00 | $0.00 | $0.00 | $32.54 |
| 2026 | 18608 | SD50 - SCHOOL DIST #50 | $552.88 | $552.86 | $0.00 | $0.00 | $0.00 | $1105.74 |
| 2026 | 18608 | FD1 - FIRE DISTRICT #1 | $369.48 | $369.47 | $0.00 | $0.00 | $0.00 | $738.95 |
| 2026 | 18608 | EMS1 - FIRE DIST #1 EMS | $142.06 | $142.06 | $0.00 | $0.00 | $0.00 | $284.12 |
| 2026 | 18608 | JCCD - JC Conservation District | $2.55 | $2.55 | $0.00 | $0.00 | $0.00 | $5.10 |
| 2026 | 18608 | NWA - Noxious Weed Assessment | $2.98 | $2.97 | $0.00 | $0.00 | $0.00 | $5.95 |
| 2026 | 18608 | TOTAL: | $2598.37 | $2598.27 | $0.00 | $0.00 | $0.00 | $5196.64 |
|
| 2026 | 18608 | $2598.37 | $2598.27 | $0.00 | $0.00 | $0.00 | $5196.64 |
Statement Details |
| 2025 | 18667 | STATE - STATE LEVY (SCHOOL) | $685.66 | $685.65 | $0.00 | $0.00 | $1371.31 | $0.00 |
| 2025 | 18667 | COUNTY - COUNTY LEVIES (CE, DD, VET, MH) | $269.65 | $269.61 | $0.00 | $0.00 | $539.26 | $0.00 |
| 2025 | 18667 | CONSERVE - CONSERVATION FUTURES | $8.09 | $8.08 | $0.00 | $0.00 | $16.17 | $0.00 |
| 2025 | 18667 | CITYPT - CITY OF PT | $388.84 | $388.83 | $0.00 | $0.00 | $777.67 | $0.00 |
| 2025 | 18667 | PORTPT - PORT DISTRICT | $110.03 | $110.02 | $0.00 | $0.00 | $220.05 | $0.00 |
| 2025 | 18667 | PUD1 - PUD #1 | $17.65 | $17.64 | $0.00 | $0.00 | $35.29 | $0.00 |
| 2025 | 18667 | HD2 - HOSP DIST #2 | $15.73 | $15.73 | $0.00 | $0.00 | $31.46 | $0.00 |
| 2025 | 18667 | SD50 - SCHOOL DIST #50 | $501.11 | $501.09 | $0.00 | $0.00 | $1002.20 | $0.00 |
| 2025 | 18667 | FD1 - FIRE DISTRICT #1 | $355.81 | $355.80 | $0.00 | $0.00 | $711.61 | $0.00 |
| 2025 | 18667 | EMS1 - FIRE DIST #1 EMS | $136.86 | $136.85 | $0.00 | $0.00 | $273.71 | $0.00 |
| 2025 | 18667 | JCCD - JC Conservation District | $2.55 | $2.55 | $0.00 | $0.00 | $5.10 | $0.00 |
| 2025 | 18667 | NWA - Noxious Weed Assessment | $2.15 | $2.15 | $0.00 | $0.00 | $4.30 | $0.00 |
| 2025 | 18667 | TOTAL: | $2494.13 | $2494.00 | $0.00 | $0.00 | $4988.13 | $0.00 |
|
| 2025 | 18667 | $2494.13 | $2494.00 | $0.00 | $0.00 | $4988.13 | $0.00 |
Statement Details |
| 2024 | 18704 | STATE - STATE LEVY (SCHOOL) | $655.73 | $655.73 | $0.00 | $0.00 | $1311.46 | $0.00 |
| 2024 | 18704 | COUNTY - COUNTY LEVIES (CE, DD, VET, MH) | $280.61 | $280.58 | $0.00 | $0.00 | $561.19 | $0.00 |
| 2024 | 18704 | CONSERVE - CONSERVATION FUTURES | $8.42 | $8.41 | $0.00 | $0.00 | $16.83 | $0.00 |
| 2024 | 18704 | CITYPT - CITY OF PT | $400.93 | $400.92 | $0.00 | $0.00 | $801.85 | $0.00 |
| 2024 | 18704 | PORTPT - PORT DISTRICT | $115.90 | $115.89 | $0.00 | $0.00 | $231.79 | $0.00 |
| 2024 | 18704 | PUD1 - PUD #1 | $18.43 | $18.43 | $0.00 | $0.00 | $36.86 | $0.00 |
| 2024 | 18704 | HD2 - HOSP DIST #2 | $16.37 | $16.37 | $0.00 | $0.00 | $32.74 | $0.00 |
| 2024 | 18704 | SD50 - SCHOOL DIST #50 | $530.52 | $530.51 | $0.00 | $0.00 | $1061.03 | $0.00 |
| 2024 | 18704 | FD1 - FIRE DISTRICT #1 | $371.01 | $371.01 | $0.00 | $0.00 | $742.02 | $0.00 |
| 2024 | 18704 | EMS1 - FIRE DIST #1 EMS | $141.72 | $141.71 | $0.00 | $0.00 | $283.43 | $0.00 |
| 2024 | 18704 | TOTAL: | $2539.64 | $2539.56 | $0.00 | $0.00 | $5079.20 | $0.00 |
|
| 2024 | 18704 | $2539.64 | $2539.56 | $0.00 | $0.00 | $5079.20 | $0.00 |
Statement Details |
| 2023 | 18741 | STATE - STATE LEVY (SCHOOL) | $282.43 | $282.43 | $0.00 | $0.00 | $564.86 | $0.00 |
| 2023 | 18741 | COUNTY - COUNTY LEVIES (CE, DD, VET, MH) | $189.18 | $189.15 | $0.00 | $0.00 | $378.33 | $0.00 |
| 2023 | 18741 | CONSERVE - CONSERVATION FUTURES | $5.67 | $5.67 | $0.00 | $0.00 | $11.34 | $0.00 |
| 2023 | 18741 | CITYPT - CITY OF PT | $256.80 | $256.80 | $0.00 | $0.00 | $513.60 | $0.00 |
| 2023 | 18741 | PORTPT - PORT DISTRICT | $79.69 | $79.68 | $0.00 | $0.00 | $159.37 | $0.00 |
| 2023 | 18741 | PUD1 - PUD #1 | $12.54 | $12.54 | $0.00 | $0.00 | $25.08 | $0.00 |
| 2023 | 18741 | HD2 - HOSP DIST #2 | $11.04 | $11.04 | $0.00 | $0.00 | $22.08 | $0.00 |
| 2023 | 18741 | SD50 - SCHOOL DIST #50 | $0.00 | $0.00 | $0.00 | $0.00 | $0.00 | $0.00 |
| 2023 | 18741 | FD1 - FIRE DISTRICT #1 | $155.84 | $155.83 | $0.00 | $0.00 | $311.67 | $0.00 |
| 2023 | 18741 | EMS1 - FIRE DIST #1 EMS | $66.29 | $66.29 | $0.00 | $0.00 | $132.58 | $0.00 |
| 2023 | 18741 | TOTAL: | $1059.48 | $1059.43 | $0.00 | $0.00 | $2118.91 | $0.00 |
|
| 2023 | 18741 | $1059.48 | $1059.43 | $0.00 | $0.00 | $2118.91 | $0.00 |
Values
| (+) Improvement Homesite Value: | + | $457,096 | |
| (+) Improvement Non-Homesite Value: | + | $0 | |
| (+) Land Homesite Value: | + | $150,000 | |
| (+) Land Non-Homesite Value: | + | $0 | |
| (+) Curr Use (HS): | + | $0 | $0 |
| (+) Curr Use (NHS): | + | $0 | $0 |
| | | -------------------------- | |
| (=) Market Value: | = | $607,096 | |
| (–) Productivity Loss: | – | $0 | |
| | | -------------------------- | |
| (=) Subtotal: | = | $607,096 | |
| (+) Senior Appraised Value: | + | $0 | |
| (+) Non-Senior Appraised Value: | + | $607,096 | |
| | | -------------------------- | |
| (=) Total Appraised Value: | = | $607,096 | |
| (–) Senior Exemption Loss: | – | $0 | |
| (–) Exemption Loss: | – | $0 | |
| | | -------------------------- | |
| (=) Taxable Value: | = | $607,096 | |
Taxing Jurisdiction
| Owner: | SHEILA B LONG | | |
| % Ownership: | 100.0000000000% | | |
| Total Value: | $607,096 | | |
| Tax Area: | 0110 - C-50F1E1H2 |
| CE | COUNTY CURRENT EXPENSE | 0.9034619479 | $607,096 | $607,096 | $548.49 | | |
| CNTYDD | DEVELOPMENTAL DISABILITIES | 0.0052121823 | $607,096 | $607,096 | $3.16 | | |
| CNTYVET | VETERANS RELIEF | 0.0052777810 | $607,096 | $607,096 | $3.20 | | |
| MENTAL | MENTAL HEALTH | 0.0052121823 | $607,096 | $607,096 | $3.16 | | |
| PTGEN | CITY OF PT GENERAL | 0.8551967795 | $607,096 | $607,096 | $519.19 | | |
| PTLLL | CITY OF PT - LIBRARY LID LIFT | 0.4010114288 | $607,096 | $607,096 | $243.45 | | |
| PTMVBOND | CITY OF PT MV BOND | 0.0484717981 | $607,096 | $607,096 | $29.43 | | |
| HOSP2CASH | HOSP DIST #2 GENERAL | 0.0536075306 | $607,096 | $607,096 | $32.54 | | |
| SCH50BOND | SCHOOL DIST #50 BOND 2016 | 0.5377451389 | $607,096 | $607,096 | $326.46 | | |
| SCH50CP | SCHOOL DIST #50 CAP PROJ | 0.4573475088 | $607,096 | $607,096 | $277.65 | | |
| SCH50MO | SCHOOL DIST #50 EP & O | 0.8262822886 | $607,096 | $607,096 | $501.63 | | |
| CONSERVE | CONSERVATION FUTURES | 0.0275621078 | $607,096 | $607,096 | $16.73 | | |
| EMS1 | FIRE DIST #1 EMS | 0.4679948282 | $607,096 | $607,096 | $284.12 | | |
| FD1 | FIRE DIST #1 GENERAL | 1.2171942929 | $607,096 | $607,096 | $738.95 | | |
| PORTPT | PORT OF PT GENERAL | 0.1134941229 | $607,096 | $607,096 | $68.90 | | |
| PORTPTIDD | PORT OF PT IDD 2019 | 0.2577346692 | $607,096 | $607,096 | $156.47 | | |
| PUD1 | PUD #1 GENERAL | 0.0597888892 | $607,096 | $607,096 | $36.30 | | |
| STATE | STATE SCHOOL PART 1 | 1.4940692947 | $607,096 | $607,096 | $907.04 | | |
| STATE2 | STATE SCHOOL PART 2 | 0.8050170049 | $607,096 | $607,096 | $488.72 | | |
| | Total Tax Rate: | 8.5416817766 | | | | | |
| | | | | Taxes w/Current Exemptions: | $5,185.59 | | |
| | | | | Taxes w/o Exemptions: | $5,185.59 | | |
Improvement / Building
| Improvement #1: | Residential Bldg | State Code: | 11 | 1990.0 sqft | Value: | $457,096 |
| Bathrooms (#): | 2 (FULL) | Bathrooms (#): | 1 (HALF) | | Bedrooms (#): | 4 | Exterior Wall: | SI/ST | | Fireplace: | SIN 2-GOOD | Floor Construction: | FRAME | | Foundation: | CONPR | Heating/Cooling: | HPUMP | | Roof Cover: | COMP |   |   |
|
| | Type | Description | Class CD | Sub Class CD | Year Built | Area |
| | MA | Main Area | 4 | 2S | 1999 | 1010.0 |
| | MA2 | Second Floor Main Area | 4 | 2S | 1999 | 980.0 |
| | HCPOR | House Concrete Porch | 4 | * | 1999 | 168.0 |
| | HDECK | House Deck | 4 | * | 1999 | 200.0 |
| | GATT | House Attached Garage | 4 | * | 1999 | 420.0 |
| | HATTIC | House Attic | 4 | * | 1999 | 168.0 |
| | CONCD | Concrete Drive | 4 | * | 1999 | 800.0 |
| | SHED | Shed (Table Not Dep) | 4 | * | 1999 | 80.0 |
| | PATIO | House Patio | 4 | * | 1999 | 57.0 |
Sketch
Property Image
Land
| 1 | 6010-1175L | | 0.0000 | 0.00 | 0.00 | 0.00 | 1.00 | $110,000 | $0 |
| 2 | 6010-1177L | | 0.0000 | 0.00 | 0.00 | 0.00 | 1.00 | $40,000 | $0 |
Roll Value History
| 2026 | N/A | N/A | N/A | N/A | N/A |
| 2025 | $457,096 | $150,000 | $0 | $607,096 | $607,096 |
| 2024 | $421,850 | $150,000 | $0 | $571,850 | $571,850 |
| 2023 | $421,850 | $145,000 | $0 | $566,850 | $566,850 |
| 2022 | $421,850 | $140,000 | $0 | $561,850 | $368,281 |
Deed and Sales History
| 1 | 06/21/2018 | QCD | Quit Claim Deed | | | | | | 130500 | |
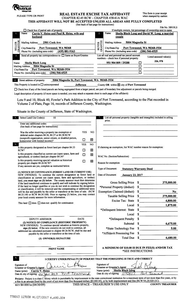
| 2 | 01/23/2017 | SWD | Statutory Warranty Deed | CARRIE V & PAUL R HEINS | SHEILA & DAVID LONG | | | $375,000.00 | 127038 | |
| 3 | 05/22/2015 | SWD | Statutory Warranty Deed | SUSAN C MARESCO TRUSTEE | CARRIE V & PAUL R HEINS | | | $310,300.00 | 123268 | |
| 4 | 03/28/2005 | SWD | Statutory Warranty Deed | VANDELEUR, MATTHEW D/BARB | MARESCO, SUSAN C/TRUSTEE | | | $353,000.00 | 103144 | 0 |
Payout Agreement
| No payout information available.. |