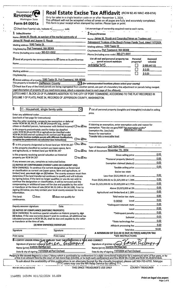
Property
Account |
| Property ID: | 29328 | Abbreviated Legal Description: | FOWLER'S PARK ADDITION BLK 45 LOTS 13 & 14 |
| Parcel # / Geo ID: | 951904508 | Agent Code: | |
| Type: | Real | | |
| Tax Area: | 0110 - C-50F1E1H2 | Land Use Code | 91 |
| Open Space: | N | DFL | N |
| Historic Property: | N | Remodel Property: | N |
| Multi-Family Redevelopment: | N | | |
| Township: | 31N | Section: | 33 |
| Range: | 1W |
Location |
| Address: | 0 PORT TOWNSEND, WA 98368 | Mapsco: | 052/038 |
| Neighborhood: | FOWLERS PARK, DAVID'S, WILDWOOD AND ACREAGE IN 33-31-1W | Map ID: | |
| Neighborhood CD: | 6010 |
Owner |
| Name: | REGINALD L S DOGGETT IV | Owner ID: | 109928 |
| Mailing Address: | SUSAN B ENGLEN 4485 PETREL ST PORT TOWNSEND, WA 98368 | % Ownership: | 100.0000000000% |
| | | Exemptions: | |
Pay Tax Due
There is currently No Amount Due on this property.
Taxes and Assessment Details
Property Tax Information as of
03/11/2026
Click on "Statement Details" to expand or collapse a tax statement.
* Please enter a valid date ** Please enter a valid date *
Statement Details |
| 2026 | 18648 | STATE - STATE LEVY (SCHOOL) | $6.90 | $6.89 | $0.00 | $0.00 | $13.79 | $0.00 |
| 2026 | 18648 | COUNTY - COUNTY LEVIES (CE, DD, VET, MH) | $2.77 | $2.74 | $0.00 | $0.00 | $5.51 | $0.00 |
| 2026 | 18648 | CONSERVE - CONSERVATION FUTURES | $0.09 | $0.08 | $0.00 | $0.00 | $0.17 | $0.00 |
| 2026 | 18648 | CITYPT - CITY OF PT | $3.93 | $3.90 | $0.00 | $0.00 | $7.83 | $0.00 |
| 2026 | 18648 | PORTPT - PORT DISTRICT | $1.12 | $1.11 | $0.00 | $0.00 | $2.23 | $0.00 |
| 2026 | 18648 | PUD1 - PUD #1 | $0.18 | $0.18 | $0.00 | $0.00 | $0.36 | $0.00 |
| 2026 | 18648 | HD2 - HOSP DIST #2 | $0.16 | $0.16 | $0.00 | $0.00 | $0.32 | $0.00 |
| 2026 | 18648 | SD50 - SCHOOL DIST #50 | $5.47 | $5.46 | $0.00 | $0.00 | $10.93 | $0.00 |
| 2026 | 18648 | FD1 - FIRE DISTRICT #1 | $3.65 | $3.65 | $0.00 | $0.00 | $7.30 | $0.00 |
| 2026 | 18648 | EMS1 - FIRE DIST #1 EMS | $1.41 | $1.40 | $0.00 | $0.00 | $2.81 | $0.00 |
| 2026 | 18648 | FPLCA - DNR Landowner Contingency Assmt | $3.00 | $3.00 | $0.00 | $0.00 | $6.00 | $0.00 |
| 2026 | 18648 | JCCD - JC Conservation District | $2.53 | $2.53 | $0.00 | $0.00 | $5.06 | $0.00 |
| 2026 | 18648 | NWA - Noxious Weed Assessment | $2.98 | $2.97 | $0.00 | $0.00 | $5.95 | $0.00 |
| 2026 | 18648 | WAT - Clean Water District | $13.00 | $13.00 | $0.00 | $0.00 | $26.00 | $0.00 |
| 2026 | 18648 | TOTAL: | $47.19 | $47.07 | $0.00 | $0.00 | $94.26 | $0.00 |
|
| 2026 | 18648 | $47.19 | $47.07 | $0.00 | $0.00 | $94.26 | $0.00 |
Statement Details |
| 2025 | 18707 | STATE - STATE LEVY (SCHOOL) | $7.20 | $7.18 | $0.00 | $0.00 | $14.38 | $0.00 |
| 2025 | 18707 | COUNTY - COUNTY LEVIES (CE, DD, VET, MH) | $2.84 | $2.81 | $0.00 | $0.00 | $5.65 | $0.00 |
| 2025 | 18707 | CONSERVE - CONSERVATION FUTURES | $0.09 | $0.08 | $0.00 | $0.00 | $0.17 | $0.00 |
| 2025 | 18707 | CITYPT - CITY OF PT | $4.10 | $4.07 | $0.00 | $0.00 | $8.17 | $0.00 |
| 2025 | 18707 | PORTPT - PORT DISTRICT | $1.16 | $1.15 | $0.00 | $0.00 | $2.31 | $0.00 |
| 2025 | 18707 | PUD1 - PUD #1 | $0.19 | $0.18 | $0.00 | $0.00 | $0.37 | $0.00 |
| 2025 | 18707 | HD2 - HOSP DIST #2 | $0.17 | $0.16 | $0.00 | $0.00 | $0.33 | $0.00 |
| 2025 | 18707 | SD50 - SCHOOL DIST #50 | $5.27 | $5.25 | $0.00 | $0.00 | $10.52 | $0.00 |
| 2025 | 18707 | FD1 - FIRE DISTRICT #1 | $3.74 | $3.73 | $0.00 | $0.00 | $7.47 | $0.00 |
| 2025 | 18707 | EMS1 - FIRE DIST #1 EMS | $1.44 | $1.43 | $0.00 | $0.00 | $2.87 | $0.00 |
| 2025 | 18707 | FPLCA - DNR Landowner Contingency Assmt | $3.00 | $3.00 | $0.00 | $0.00 | $6.00 | $0.00 |
| 2025 | 18707 | JCCD - JC Conservation District | $2.53 | $2.53 | $0.00 | $0.00 | $5.06 | $0.00 |
| 2025 | 18707 | NWA - Noxious Weed Assessment | $2.15 | $2.15 | $0.00 | $0.00 | $4.30 | $0.00 |
| 2025 | 18707 | WAT - Clean Water District | $13.00 | $13.00 | $0.00 | $0.00 | $26.00 | $0.00 |
| 2025 | 18707 | TOTAL: | $46.88 | $46.72 | $0.00 | $0.00 | $93.60 | $0.00 |
|
| 2025 | 18707 | $46.88 | $46.72 | $0.00 | $0.00 | $93.60 | $0.00 |
Statement Details |
| 2024 | 18744 | STATE - STATE LEVY (SCHOOL) | $6.95 | $6.93 | $0.00 | $0.00 | $13.88 | $0.00 |
| 2024 | 18744 | COUNTY - COUNTY LEVIES (CE, DD, VET, MH) | $2.98 | $2.95 | $0.00 | $0.00 | $5.93 | $0.00 |
| 2024 | 18744 | CONSERVE - CONSERVATION FUTURES | $0.09 | $0.09 | $0.00 | $0.00 | $0.18 | $0.00 |
| 2024 | 18744 | CITYPT - CITY OF PT | $4.26 | $4.24 | $0.00 | $0.00 | $8.50 | $0.00 |
| 2024 | 18744 | PORTPT - PORT DISTRICT | $1.23 | $1.22 | $0.00 | $0.00 | $2.45 | $0.00 |
| 2024 | 18744 | PUD1 - PUD #1 | $0.20 | $0.19 | $0.00 | $0.00 | $0.39 | $0.00 |
| 2024 | 18744 | HD2 - HOSP DIST #2 | $0.18 | $0.17 | $0.00 | $0.00 | $0.35 | $0.00 |
| 2024 | 18744 | SD50 - SCHOOL DIST #50 | $5.63 | $5.61 | $0.00 | $0.00 | $11.24 | $0.00 |
| 2024 | 18744 | FD1 - FIRE DISTRICT #1 | $3.93 | $3.92 | $0.00 | $0.00 | $7.85 | $0.00 |
| 2024 | 18744 | EMS1 - FIRE DIST #1 EMS | $1.50 | $1.50 | $0.00 | $0.00 | $3.00 | $0.00 |
| 2024 | 18744 | FPLCA - DNR Landowner Contingency Assmt | $3.00 | $3.00 | $0.00 | $0.00 | $6.00 | $0.00 |
| 2024 | 18744 | JCCD - JC Conservation District | $2.53 | $2.53 | $0.00 | $0.00 | $5.06 | $0.00 |
| 2024 | 18744 | NWA - Noxious Weed Assessment | $2.15 | $2.15 | $0.00 | $0.00 | $4.30 | $0.00 |
| 2024 | 18744 | WAT - Clean Water District | $12.50 | $12.50 | $0.00 | $0.00 | $25.00 | $0.00 |
| 2024 | 18744 | TOTAL: | $47.13 | $47.00 | $0.00 | $0.00 | $94.13 | $0.00 |
|
| 2024 | 18744 | $47.13 | $47.00 | $0.00 | $0.00 | $94.13 | $0.00 |
Statement Details |
| 2023 | 18781 | STATE - STATE LEVY (SCHOOL) | $7.06 | $7.06 | $0.00 | $0.00 | $14.12 | $0.00 |
| 2023 | 18781 | COUNTY - COUNTY LEVIES (CE, DD, VET, MH) | $3.09 | $3.07 | $0.00 | $0.00 | $6.16 | $0.00 |
| 2023 | 18781 | CONSERVE - CONSERVATION FUTURES | $0.09 | $0.09 | $0.00 | $0.00 | $0.18 | $0.00 |
| 2023 | 18781 | CITYPT - CITY OF PT | $4.36 | $4.35 | $0.00 | $0.00 | $8.71 | $0.00 |
| 2023 | 18781 | PORTPT - PORT DISTRICT | $1.30 | $1.30 | $0.00 | $0.00 | $2.60 | $0.00 |
| 2023 | 18781 | PUD1 - PUD #1 | $0.21 | $0.20 | $0.00 | $0.00 | $0.41 | $0.00 |
| 2023 | 18781 | HD2 - HOSP DIST #2 | $0.18 | $0.18 | $0.00 | $0.00 | $0.36 | $0.00 |
| 2023 | 18781 | SD50 - SCHOOL DIST #50 | $5.61 | $5.60 | $0.00 | $0.00 | $11.21 | $0.00 |
| 2023 | 18781 | FD1 - FIRE DISTRICT #1 | $2.54 | $2.54 | $0.00 | $0.00 | $5.08 | $0.00 |
| 2023 | 18781 | EMS1 - FIRE DIST #1 EMS | $1.08 | $1.08 | $0.00 | $0.00 | $2.16 | $0.00 |
| 2023 | 18781 | FPLCA - DNR Landowner Contingency Assmt | $3.00 | $3.00 | $0.00 | $0.00 | $6.00 | $0.00 |
| 2023 | 18781 | JCCD - JC Conservation District | $2.53 | $2.53 | $0.00 | $0.00 | $5.06 | $0.00 |
| 2023 | 18781 | NWA - Noxious Weed Assessment | $2.15 | $2.15 | $0.00 | $0.00 | $4.30 | $0.00 |
| 2023 | 18781 | WAT - Clean Water District | $12.00 | $12.00 | $0.00 | $0.00 | $24.00 | $0.00 |
| 2023 | 18781 | TOTAL: | $45.20 | $45.15 | $0.00 | $0.00 | $90.35 | $0.00 |
|
| 2023 | 18781 | $45.20 | $45.15 | $0.00 | $0.00 | $90.35 | $0.00 |
Values
| (+) Improvement Homesite Value: | + | $0 | |
| (+) Improvement Non-Homesite Value: | + | $0 | |
| (+) Land Homesite Value: | + | $0 | |
| (+) Land Non-Homesite Value: | + | $6,000 | |
| (+) Curr Use (HS): | + | $0 | $0 |
| (+) Curr Use (NHS): | + | $0 | $0 |
| | | -------------------------- | |
| (=) Market Value: | = | $6,000 | |
| (–) Productivity Loss: | – | $0 | |
| | | -------------------------- | |
| (=) Subtotal: | = | $6,000 | |
| (+) Senior Appraised Value: | + | $0 | |
| (+) Non-Senior Appraised Value: | + | $6,000 | |
| | | -------------------------- | |
| (=) Total Appraised Value: | = | $6,000 | |
| (–) Senior Exemption Loss: | – | $0 | |
| (–) Exemption Loss: | – | $0 | |
| | | -------------------------- | |
| (=) Taxable Value: | = | $6,000 | |
Taxing Jurisdiction
| Owner: | REGINALD L S DOGGETT IV | | |
| % Ownership: | 100.0000000000% | | |
| Total Value: | $6,000 | | |
| Tax Area: | 0110 - C-50F1E1H2 |
| CE | COUNTY CURRENT EXPENSE | 0.9034619479 | $6,000 | $6,000 | $5.42 | | |
| CNTYDD | DEVELOPMENTAL DISABILITIES | 0.0052121823 | $6,000 | $6,000 | $0.03 | | |
| CNTYVET | VETERANS RELIEF | 0.0052777810 | $6,000 | $6,000 | $0.03 | | |
| MENTAL | MENTAL HEALTH | 0.0052121823 | $6,000 | $6,000 | $0.03 | | |
| PTGEN | CITY OF PT GENERAL | 0.8551967795 | $6,000 | $6,000 | $5.13 | | |
| PTLLL | CITY OF PT - LIBRARY LID LIFT | 0.4010114288 | $6,000 | $6,000 | $2.41 | | |
| PTMVBOND | CITY OF PT MV BOND | 0.0484717981 | $6,000 | $6,000 | $0.29 | | |
| HOSP2CASH | HOSP DIST #2 GENERAL | 0.0536075306 | $6,000 | $6,000 | $0.32 | | |
| SCH50BOND | SCHOOL DIST #50 BOND 2016 | 0.5377451389 | $6,000 | $6,000 | $3.23 | | |
| SCH50CP | SCHOOL DIST #50 CAP PROJ | 0.4573475088 | $6,000 | $6,000 | $2.74 | | |
| SCH50MO | SCHOOL DIST #50 EP & O | 0.8262822886 | $6,000 | $6,000 | $4.96 | | |
| CONSERVE | CONSERVATION FUTURES | 0.0275621078 | $6,000 | $6,000 | $0.17 | | |
| EMS1 | FIRE DIST #1 EMS | 0.4679948282 | $6,000 | $6,000 | $2.81 | | |
| FD1 | FIRE DIST #1 GENERAL | 1.2171942929 | $6,000 | $6,000 | $7.30 | | |
| PORTPT | PORT OF PT GENERAL | 0.1134941229 | $6,000 | $6,000 | $0.68 | | |
| PORTPTIDD | PORT OF PT IDD 2019 | 0.2577346692 | $6,000 | $6,000 | $1.55 | | |
| PUD1 | PUD #1 GENERAL | 0.0597888892 | $6,000 | $6,000 | $0.36 | | |
| STATE | STATE SCHOOL PART 1 | 1.4940692947 | $6,000 | $6,000 | $8.96 | | |
| STATE2 | STATE SCHOOL PART 2 | 0.8050170049 | $6,000 | $6,000 | $4.83 | | |
| | Total Tax Rate: | 8.5416817766 | | | | | |
| | | | | Taxes w/Current Exemptions: | $51.25 | | |
| | | | | Taxes w/o Exemptions: | $51.25 | | |
Improvement / Building
Sketch
| No sketches available for this property. |
Property Image
Land
| 1 | 6010-1187L | | 0.0000 | 0.00 | 0.00 | 0.00 | 2.00 | $6,000 | $0 |
Roll Value History
| 2026 | N/A | N/A | N/A | N/A | N/A |
| 2025 | $0 | $6,000 | $0 | $6,000 | $6,000 |
| 2024 | $0 | $6,000 | $0 | $6,000 | $6,000 |
| 2023 | $0 | $6,000 | $0 | $6,000 | $6,000 |
| 2022 | $0 | $6,000 | $0 | $6,000 | $6,000 |
Deed and Sales History
| 1 | 02/06/2025 | SWD | Statutory Warranty Deed | DWIGHT D SYNAN TRUST | REGINALD L S DOGGETT IV | | | $15,000.00 | 143869 | |
|   | |
| 2 | 09/27/2018 | SWD | Statutory Warranty Deed | WADE L LARSON | DWIGHT D SYNAN TRUST | | | $0.00 | 131135 | |
| 3 | 01/11/2006 | SWD | Statutory Warranty Deed | TENGESDAL, PETER N/MELBA | LARSON, WADE L/CARLA M | 0 | 0 | $30,000.00 | 105821 | 0 |
|   | |
Payout Agreement
| No payout information available.. |