Property
Account |
| Property ID: | 29340 | Abbreviated Legal Description: | FOWLER'S PARK ADDITION BLK 47 LOTS 7,8,13 & 14 & VAC ALLEY ADJ |
| Parcel # / Geo ID: | 951904710 | Agent Code: | |
| Type: | Real | | |
| Tax Area: | 0110 - C-50F1E1H2 | Land Use Code | 11 |
| Open Space: | N | DFL | N |
| Historic Property: | N | Remodel Property: | N |
| Multi-Family Redevelopment: | N | | |
| Township: | 31N | Section: | 33 |
| Range: | 1W |
Location |
| Address: | 4766 MASON ST PORT TOWNSEND, WA 98368 | Mapsco: | 052/056 |
| Neighborhood: | FOWLERS PARK, DAVID'S, WILDWOOD AND ACREAGE IN 33-31-1W | Map ID: | |
| Neighborhood CD: | 6010 |
Owner |
| Name: | 1ST AVENUE BUILDING LLC | Owner ID: | 113414 |
| Mailing Address: | 1477 S UTE DR SALT LAKE CITY, UT 84108-2433 | % Ownership: | 100.0000000000% |
| | | Exemptions: | |
Pay Tax Due
Select the appropriate checkbox next to the year to be paid. Multiple years may be selected.
*Convenience Fee not included
Taxes and Assessment Details
Property Tax Information as of
03/10/2026
Click on "Statement Details" to expand or collapse a tax statement.
* Please enter a valid date ** Please enter a valid date *
Statement Details |
| 2026 | 18660 | STATE - STATE LEVY (SCHOOL) | $779.47 | $779.46 | $0.00 | $0.00 | $0.00 | $1558.93 |
| 2026 | 18660 | COUNTY - COUNTY LEVIES (CE, DD, VET, MH) | $311.64 | $311.61 | $0.00 | $0.00 | $0.00 | $623.25 |
| 2026 | 18660 | CONSERVE - CONSERVATION FUTURES | $9.35 | $9.34 | $0.00 | $0.00 | $0.00 | $18.69 |
| 2026 | 18660 | CITYPT - CITY OF PT | $442.34 | $442.32 | $0.00 | $0.00 | $0.00 | $884.66 |
| 2026 | 18660 | PORTPT - PORT DISTRICT | $125.86 | $125.86 | $0.00 | $0.00 | $0.00 | $251.72 |
| 2026 | 18660 | PUD1 - PUD #1 | $20.27 | $20.27 | $0.00 | $0.00 | $0.00 | $40.54 |
| 2026 | 18660 | HD2 - HOSP DIST #2 | $18.18 | $18.17 | $0.00 | $0.00 | $0.00 | $36.35 |
| 2026 | 18660 | SD50 - SCHOOL DIST #50 | $617.52 | $617.49 | $0.00 | $0.00 | $0.00 | $1235.01 |
| 2026 | 18660 | FD1 - FIRE DISTRICT #1 | $412.67 | $412.67 | $0.00 | $0.00 | $0.00 | $825.34 |
| 2026 | 18660 | EMS1 - FIRE DIST #1 EMS | $158.67 | $158.66 | $0.00 | $0.00 | $0.00 | $317.33 |
| 2026 | 18660 | FP - DNR Forest Fire Protection Assmt | $8.50 | $8.50 | $0.00 | $0.00 | $0.00 | $17.00 |
| 2026 | 18660 | FPLCA - DNR Landowner Contingency Assmt | $3.00 | $3.00 | $0.00 | $0.00 | $0.00 | $6.00 |
| 2026 | 18660 | JCCD - JC Conservation District | $2.55 | $2.55 | $0.00 | $0.00 | $0.00 | $5.10 |
| 2026 | 18660 | NWA - Noxious Weed Assessment | $2.98 | $2.97 | $0.00 | $0.00 | $0.00 | $5.95 |
| 2026 | 18660 | FP ADMIN - FP ADMIN | $0.50 | $0.00 | $0.00 | $0.00 | $0.00 | $0.50 |
| 2026 | 18660 | TOTAL: | $2913.50 | $2912.87 | $0.00 | $0.00 | $0.00 | $5826.37 |
|
| 2026 | 18660 | $2913.50 | $2912.87 | $0.00 | $0.00 | $0.00 | $5826.37 |
Statement Details |
| 2025 | 18719 | STATE - STATE LEVY (SCHOOL) | $772.41 | $772.41 | $0.00 | $0.00 | $1544.82 | $0.00 |
| 2025 | 18719 | COUNTY - COUNTY LEVIES (CE, DD, VET, MH) | $303.75 | $303.75 | $0.00 | $0.00 | $607.50 | $0.00 |
| 2025 | 18719 | CONSERVE - CONSERVATION FUTURES | $9.11 | $9.11 | $0.00 | $0.00 | $18.22 | $0.00 |
| 2025 | 18719 | CITYPT - CITY OF PT | $438.04 | $438.03 | $0.00 | $0.00 | $876.07 | $0.00 |
| 2025 | 18719 | PORTPT - PORT DISTRICT | $123.95 | $123.94 | $0.00 | $0.00 | $247.89 | $0.00 |
| 2025 | 18719 | PUD1 - PUD #1 | $19.88 | $19.87 | $0.00 | $0.00 | $39.75 | $0.00 |
| 2025 | 18719 | HD2 - HOSP DIST #2 | $17.72 | $17.72 | $0.00 | $0.00 | $35.44 | $0.00 |
| 2025 | 18719 | SD50 - SCHOOL DIST #50 | $564.51 | $564.49 | $0.00 | $0.00 | $1129.00 | $0.00 |
| 2025 | 18719 | FD1 - FIRE DISTRICT #1 | $400.83 | $400.82 | $0.00 | $0.00 | $801.65 | $0.00 |
| 2025 | 18719 | EMS1 - FIRE DIST #1 EMS | $154.17 | $154.17 | $0.00 | $0.00 | $308.34 | $0.00 |
| 2025 | 18719 | FP - DNR Forest Fire Protection Assmt | $8.50 | $8.50 | $0.00 | $0.00 | $17.00 | $0.00 |
| 2025 | 18719 | FPLCA - DNR Landowner Contingency Assmt | $3.00 | $3.00 | $0.00 | $0.00 | $6.00 | $0.00 |
| 2025 | 18719 | JCCD - JC Conservation District | $2.55 | $2.55 | $0.00 | $0.00 | $5.10 | $0.00 |
| 2025 | 18719 | NWA - Noxious Weed Assessment | $2.15 | $2.15 | $0.00 | $0.00 | $4.30 | $0.00 |
| 2025 | 18719 | FP ADMIN - FP ADMIN | $0.50 | $0.00 | $0.00 | $0.00 | $0.50 | $0.00 |
| 2025 | 18719 | TOTAL: | $2821.07 | $2820.51 | $0.00 | $0.00 | $5641.58 | $0.00 |
|
| 2025 | 18719 | $2821.07 | $2820.51 | $0.00 | $0.00 | $5641.58 | $0.00 |
Statement Details |
| 2024 | 18756 | STATE - STATE LEVY (SCHOOL) | $739.44 | $739.42 | $0.00 | $0.00 | $1478.86 | $0.00 |
| 2024 | 18756 | COUNTY - COUNTY LEVIES (CE, DD, VET, MH) | $316.42 | $316.40 | $0.00 | $0.00 | $632.82 | $0.00 |
| 2024 | 18756 | CONSERVE - CONSERVATION FUTURES | $9.49 | $9.49 | $0.00 | $0.00 | $18.98 | $0.00 |
| 2024 | 18756 | CITYPT - CITY OF PT | $452.12 | $452.09 | $0.00 | $0.00 | $904.21 | $0.00 |
| 2024 | 18756 | PORTPT - PORT DISTRICT | $130.69 | $130.69 | $0.00 | $0.00 | $261.38 | $0.00 |
| 2024 | 18756 | PUD1 - PUD #1 | $20.79 | $20.78 | $0.00 | $0.00 | $41.57 | $0.00 |
| 2024 | 18756 | HD2 - HOSP DIST #2 | $18.46 | $18.46 | $0.00 | $0.00 | $36.92 | $0.00 |
| 2024 | 18756 | SD50 - SCHOOL DIST #50 | $598.25 | $598.22 | $0.00 | $0.00 | $1196.47 | $0.00 |
| 2024 | 18756 | FD1 - FIRE DISTRICT #1 | $418.37 | $418.37 | $0.00 | $0.00 | $836.74 | $0.00 |
| 2024 | 18756 | EMS1 - FIRE DIST #1 EMS | $159.80 | $159.80 | $0.00 | $0.00 | $319.60 | $0.00 |
| 2024 | 18756 | JCCD - JC Conservation District | $2.55 | $2.55 | $0.00 | $0.00 | $5.10 | $0.00 |
| 2024 | 18756 | NWA - Noxious Weed Assessment | $2.15 | $2.15 | $0.00 | $0.00 | $4.30 | $0.00 |
| 2024 | 18756 | TOTAL: | $2868.53 | $2868.42 | $0.00 | $0.00 | $5736.95 | $0.00 |
|
| 2024 | 18756 | $2868.53 | $2868.42 | $0.00 | $0.00 | $5736.95 | $0.00 |
Statement Details |
| 2023 | 18793 | STATE - STATE LEVY (SCHOOL) | $746.52 | $746.50 | $0.00 | $0.00 | $1493.02 | $0.00 |
| 2023 | 18793 | COUNTY - COUNTY LEVIES (CE, DD, VET, MH) | $325.76 | $325.75 | $0.00 | $0.00 | $651.51 | $0.00 |
| 2023 | 18793 | CONSERVE - CONSERVATION FUTURES | $9.77 | $9.77 | $0.00 | $0.00 | $19.54 | $0.00 |
| 2023 | 18793 | CITYPT - CITY OF PT | $460.41 | $460.39 | $0.00 | $0.00 | $920.80 | $0.00 |
| 2023 | 18793 | PORTPT - PORT DISTRICT | $137.24 | $137.22 | $0.00 | $0.00 | $274.46 | $0.00 |
| 2023 | 18793 | PUD1 - PUD #1 | $21.60 | $21.59 | $0.00 | $0.00 | $43.19 | $0.00 |
| 2023 | 18793 | HD2 - HOSP DIST #2 | $19.02 | $19.00 | $0.00 | $0.00 | $38.02 | $0.00 |
| 2023 | 18793 | SD50 - SCHOOL DIST #50 | $592.38 | $592.36 | $0.00 | $0.00 | $1184.74 | $0.00 |
| 2023 | 18793 | FD1 - FIRE DISTRICT #1 | $268.36 | $268.35 | $0.00 | $0.00 | $536.71 | $0.00 |
| 2023 | 18793 | EMS1 - FIRE DIST #1 EMS | $114.16 | $114.15 | $0.00 | $0.00 | $228.31 | $0.00 |
| 2023 | 18793 | JCCD - JC Conservation District | $2.55 | $2.55 | $0.00 | $0.00 | $5.10 | $0.00 |
| 2023 | 18793 | NWA - Noxious Weed Assessment | $2.15 | $2.15 | $0.00 | $0.00 | $4.30 | $0.00 |
| 2023 | 18793 | TOTAL: | $2699.92 | $2699.78 | $0.00 | $0.00 | $5399.70 | $0.00 |
|
| 2023 | 18793 | $2699.92 | $2699.78 | $0.00 | $0.00 | $5399.70 | $0.00 |
Values
| (+) Improvement Homesite Value: | + | $478,066 | |
| (+) Improvement Non-Homesite Value: | + | $0 | |
| (+) Land Homesite Value: | + | $200,000 | |
| (+) Land Non-Homesite Value: | + | $0 | |
| (+) Curr Use (HS): | + | $0 | $0 |
| (+) Curr Use (NHS): | + | $0 | $0 |
| | | -------------------------- | |
| (=) Market Value: | = | $678,066 | |
| (–) Productivity Loss: | – | $0 | |
| | | -------------------------- | |
| (=) Subtotal: | = | $678,066 | |
| (+) Senior Appraised Value: | + | $0 | |
| (+) Non-Senior Appraised Value: | + | $678,066 | |
| | | -------------------------- | |
| (=) Total Appraised Value: | = | $678,066 | |
| (–) Senior Exemption Loss: | – | $0 | |
| (–) Exemption Loss: | – | $0 | |
| | | -------------------------- | |
| (=) Taxable Value: | = | $678,066 | |
Taxing Jurisdiction
| Owner: | 1ST AVENUE BUILDING LLC | | |
| % Ownership: | 100.0000000000% | | |
| Total Value: | $678,066 | | |
| Tax Area: | 0110 - C-50F1E1H2 |
| CE | COUNTY CURRENT EXPENSE | 0.9034619479 | $678,066 | $678,066 | $612.61 | | |
| CNTYDD | DEVELOPMENTAL DISABILITIES | 0.0052121823 | $678,066 | $678,066 | $3.53 | | |
| CNTYVET | VETERANS RELIEF | 0.0052777810 | $678,066 | $678,066 | $3.58 | | |
| MENTAL | MENTAL HEALTH | 0.0052121823 | $678,066 | $678,066 | $3.53 | | |
| PTGEN | CITY OF PT GENERAL | 0.8551967795 | $678,066 | $678,066 | $579.88 | | |
| PTLLL | CITY OF PT - LIBRARY LID LIFT | 0.4010114288 | $678,066 | $678,066 | $271.91 | | |
| PTMVBOND | CITY OF PT MV BOND | 0.0484717981 | $678,066 | $678,066 | $32.87 | | |
| HOSP2CASH | HOSP DIST #2 GENERAL | 0.0536075306 | $678,066 | $678,066 | $36.35 | | |
| SCH50BOND | SCHOOL DIST #50 BOND 2016 | 0.5377451389 | $678,066 | $678,066 | $364.63 | | |
| SCH50CP | SCHOOL DIST #50 CAP PROJ | 0.4573475088 | $678,066 | $678,066 | $310.11 | | |
| SCH50MO | SCHOOL DIST #50 EP & O | 0.8262822886 | $678,066 | $678,066 | $560.27 | | |
| CONSERVE | CONSERVATION FUTURES | 0.0275621078 | $678,066 | $678,066 | $18.69 | | |
| EMS1 | FIRE DIST #1 EMS | 0.4679948282 | $678,066 | $678,066 | $317.33 | | |
| FD1 | FIRE DIST #1 GENERAL | 1.2171942929 | $678,066 | $678,066 | $825.34 | | |
| PORTPT | PORT OF PT GENERAL | 0.1134941229 | $678,066 | $678,066 | $76.96 | | |
| PORTPTIDD | PORT OF PT IDD 2019 | 0.2577346692 | $678,066 | $678,066 | $174.76 | | |
| PUD1 | PUD #1 GENERAL | 0.0597888892 | $678,066 | $678,066 | $40.54 | | |
| STATE | STATE SCHOOL PART 1 | 1.4940692947 | $678,066 | $678,066 | $1,013.08 | | |
| STATE2 | STATE SCHOOL PART 2 | 0.8050170049 | $678,066 | $678,066 | $545.85 | | |
| | Total Tax Rate: | 8.5416817766 | | | | | |
| | | | | Taxes w/Current Exemptions: | $5,791.82 | | |
| | | | | Taxes w/o Exemptions: | $5,791.82 | | |
Improvement / Building
| Improvement #1: | Residential Bldg | State Code: | 11 | 1814.0 sqft | Value: | $478,066 |
| Bathrooms (#): | 2 (FULL) | Bedrooms (#): | 3 | | Exterior Wall: | SI/ST | Fireplace: | SIN 1-GOOD | | Floor Construction: | FRAME | Foundation: | CONPR | | Heating/Cooling: | ELBB | Roof Cover: | COMP |
|
| | Type | Description | Class CD | Sub Class CD | Year Built | Area |
| | MA | Main Area | 4+ | 1S | 1999 | 1814.0 |
| | HWPOR | House Wood Porch | 4 | * | 1999 | 48.0 |
| | HDECK | House Deck | 4 | * | 1999 | 326.0 |
| | GATT | House Attached Garage | 4 | 1S | 1999 | 484.0 |
| | CONCD | Concrete Drive | 5 | * | 1999 | 1251.3 |
Sketch
Property Image
Land
| 1 | 6010-1175L | | 0.0000 | 0.00 | 0.00 | 0.00 | 1.00 | $110,000 | $0 |
| 2 | 6010-1177L | | 0.0000 | 0.00 | 0.00 | 0.00 | 1.00 | $40,000 | $0 |
| 3 | 6010-1179L | | 0.0000 | 0.00 | 0.00 | 0.00 | 2.00 | $50,000 | $0 |
Roll Value History
| 2026 | N/A | N/A | N/A | N/A | N/A |
| 2025 | $478,066 | $200,000 | $0 | $678,066 | $678,066 |
| 2024 | $444,205 | $200,000 | $0 | $644,205 | $644,205 |
| 2023 | $444,205 | $195,000 | $0 | $639,205 | $639,205 |
| 2022 | $444,205 | $190,000 | $0 | $634,205 | $634,205 |
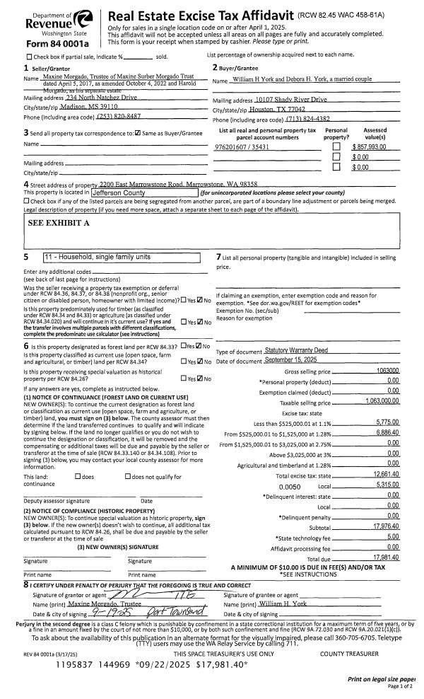
Deed and Sales History
| 1 | 09/19/2025 | SWD | Statutory Warranty Deed | MICHAEL E & WENDY DUFOUR | 1ST AVENUE BUILDING LLC | | | $800,000.00 | 145008 | |
| 2 | 08/04/2015 | SWD | Statutory Warranty Deed | REGINA CLARK | MICHAEL E & WENDY DUFOUR | | | $375,000.00 | 123739 | |
| 3 | 01/26/2004 | SWD | Statutory Warranty Deed | JUNT, SYLVIA P | CLARK, KEVIN C/REGINA M | 0 | 0 | $270,000.00 | 99483 | 0 |
| 4 | 06/17/2002 | SWD | Statutory Warranty Deed | WILLIAM L BIERY | SYLVIA P JUNT | 0 | 0 | $267,500.00 | 94957 | 0 |
| 5 | 08/05/1999 | SWD | Statutory Warranty Deed | WALLIN, CRAIG/JEAN G | BIERY, WILLIAM L/NANCY R | 0 | 0 | $206,000.00 | 87632 | 0 |
| 6 | 11/27/1995 | SWD | Statutory Warranty Deed | MCBRIDE PROPERTIES INC | WALLIN, CRAIG/JEAN G | 0 | 0 | $43,900.00 | 78309 | 0 |
Payout Agreement
| No payout information available.. |