Property
Account |
| Property ID: | 29341 | Abbreviated Legal Description: | FOWLER'S PARK ADDITION BLK 49 LOT 11 & S1/2 VAC 'T' ST ADJ LESS PTN TAX 7 |
| Parcel # / Geo ID: | 951904902 | Agent Code: | |
| Type: | Real | | |
| Tax Area: | 0110 - C-50F1E1H2 | Land Use Code | 91 |
| Open Space: | N | DFL | N |
| Historic Property: | N | Remodel Property: | N |
| Multi-Family Redevelopment: | N | | |
| Township: | 31N | Section: | 33 |
| Range: | 1W |
Location |
| Address: | 0 PORT TOWNSEND, WA 98368 | Mapsco: | 052/064 |
| Neighborhood: | SEA VIEW AND SEA VIEW ESTATES | Map ID: | |
| Neighborhood CD: | 6020 |
Owner |
| Name: | FORTIER REVOCABLE TRUST | Owner ID: | 98724 |
| Mailing Address: | GINGER FORTIER TRUSTEE 2039 COOK AVE PORT TOWNSEND, WA 98368-1006 | % Ownership: | 100.0000000000% |
| | | Exemptions: | |
Pay Tax Due
Select the appropriate checkbox next to the year to be paid. Multiple years may be selected.
*Convenience Fee not included
Taxes and Assessment Details
Property Tax Information as of
03/11/2026
Click on "Statement Details" to expand or collapse a tax statement.
* Please enter a valid date ** Please enter a valid date *
Statement Details |
| 2026 | 18661 | STATE - STATE LEVY (SCHOOL) | $25.87 | $25.86 | $0.00 | $0.00 | $0.00 | $51.73 |
| 2026 | 18661 | COUNTY - COUNTY LEVIES (CE, DD, VET, MH) | $10.35 | $10.34 | $0.00 | $0.00 | $0.00 | $20.69 |
| 2026 | 18661 | CONSERVE - CONSERVATION FUTURES | $0.31 | $0.31 | $0.00 | $0.00 | $0.00 | $0.62 |
| 2026 | 18661 | CITYPT - CITY OF PT | $14.68 | $14.67 | $0.00 | $0.00 | $0.00 | $29.35 |
| 2026 | 18661 | PORTPT - PORT DISTRICT | $4.18 | $4.17 | $0.00 | $0.00 | $0.00 | $8.35 |
| 2026 | 18661 | PUD1 - PUD #1 | $0.68 | $0.67 | $0.00 | $0.00 | $0.00 | $1.35 |
| 2026 | 18661 | HD2 - HOSP DIST #2 | $0.61 | $0.60 | $0.00 | $0.00 | $0.00 | $1.21 |
| 2026 | 18661 | SD50 - SCHOOL DIST #50 | $20.50 | $20.48 | $0.00 | $0.00 | $0.00 | $40.98 |
| 2026 | 18661 | FD1 - FIRE DISTRICT #1 | $13.70 | $13.69 | $0.00 | $0.00 | $0.00 | $27.39 |
| 2026 | 18661 | EMS1 - FIRE DIST #1 EMS | $5.27 | $5.26 | $0.00 | $0.00 | $0.00 | $10.53 |
| 2026 | 18661 | JCCD - JC Conservation District | $2.53 | $2.53 | $0.00 | $0.00 | $0.00 | $5.06 |
| 2026 | 18661 | NWA - Noxious Weed Assessment | $2.98 | $2.97 | $0.00 | $0.00 | $0.00 | $5.95 |
| 2026 | 18661 | WAT - Clean Water District | $13.00 | $13.00 | $0.00 | $0.00 | $0.00 | $26.00 |
| 2026 | 18661 | TOTAL: | $114.66 | $114.55 | $0.00 | $0.00 | $0.00 | $229.21 |
|
| 2026 | 18661 | $114.66 | $114.55 | $0.00 | $0.00 | $0.00 | $229.21 |
Statement Details |
| 2025 | 18720 | STATE - STATE LEVY (SCHOOL) | $26.98 | $26.98 | $0.00 | $0.00 | $53.96 | $0.00 |
| 2025 | 18720 | COUNTY - COUNTY LEVIES (CE, DD, VET, MH) | $10.61 | $10.61 | $0.00 | $0.00 | $21.22 | $0.00 |
| 2025 | 18720 | CONSERVE - CONSERVATION FUTURES | $0.32 | $0.32 | $0.00 | $0.00 | $0.64 | $0.00 |
| 2025 | 18720 | CITYPT - CITY OF PT | $15.31 | $15.29 | $0.00 | $0.00 | $30.60 | $0.00 |
| 2025 | 18720 | PORTPT - PORT DISTRICT | $4.33 | $4.33 | $0.00 | $0.00 | $8.66 | $0.00 |
| 2025 | 18720 | PUD1 - PUD #1 | $0.70 | $0.69 | $0.00 | $0.00 | $1.39 | $0.00 |
| 2025 | 18720 | HD2 - HOSP DIST #2 | $0.62 | $0.62 | $0.00 | $0.00 | $1.24 | $0.00 |
| 2025 | 18720 | SD50 - SCHOOL DIST #50 | $19.73 | $19.71 | $0.00 | $0.00 | $39.44 | $0.00 |
| 2025 | 18720 | FD1 - FIRE DISTRICT #1 | $14.00 | $14.00 | $0.00 | $0.00 | $28.00 | $0.00 |
| 2025 | 18720 | EMS1 - FIRE DIST #1 EMS | $5.39 | $5.38 | $0.00 | $0.00 | $10.77 | $0.00 |
| 2025 | 18720 | JCCD - JC Conservation District | $2.53 | $2.53 | $0.00 | $0.00 | $5.06 | $0.00 |
| 2025 | 18720 | NWA - Noxious Weed Assessment | $2.15 | $2.15 | $0.00 | $0.00 | $4.30 | $0.00 |
| 2025 | 18720 | WAT - Clean Water District | $13.00 | $13.00 | $0.00 | $0.00 | $26.00 | $0.00 |
| 2025 | 18720 | TOTAL: | $115.67 | $115.61 | $0.00 | $0.00 | $231.28 | $0.00 |
|
| 2025 | 18720 | $115.67 | $115.61 | $0.00 | $0.00 | $231.28 | $0.00 |
Statement Details |
| 2024 | 18757 | STATE - STATE LEVY (SCHOOL) | $26.03 | $26.02 | $0.00 | $0.00 | $52.05 | $0.00 |
| 2024 | 18757 | COUNTY - COUNTY LEVIES (CE, DD, VET, MH) | $11.16 | $11.13 | $0.00 | $0.00 | $22.29 | $0.00 |
| 2024 | 18757 | CONSERVE - CONSERVATION FUTURES | $0.34 | $0.33 | $0.00 | $0.00 | $0.67 | $0.00 |
| 2024 | 18757 | CITYPT - CITY OF PT | $15.92 | $15.90 | $0.00 | $0.00 | $31.82 | $0.00 |
| 2024 | 18757 | PORTPT - PORT DISTRICT | $4.61 | $4.59 | $0.00 | $0.00 | $9.20 | $0.00 |
| 2024 | 18757 | PUD1 - PUD #1 | $0.73 | $0.73 | $0.00 | $0.00 | $1.46 | $0.00 |
| 2024 | 18757 | HD2 - HOSP DIST #2 | $0.65 | $0.65 | $0.00 | $0.00 | $1.30 | $0.00 |
| 2024 | 18757 | SD50 - SCHOOL DIST #50 | $21.07 | $21.05 | $0.00 | $0.00 | $42.12 | $0.00 |
| 2024 | 18757 | FD1 - FIRE DISTRICT #1 | $14.73 | $14.72 | $0.00 | $0.00 | $29.45 | $0.00 |
| 2024 | 18757 | EMS1 - FIRE DIST #1 EMS | $5.63 | $5.62 | $0.00 | $0.00 | $11.25 | $0.00 |
| 2024 | 18757 | JCCD - JC Conservation District | $2.53 | $2.53 | $0.00 | $0.00 | $5.06 | $0.00 |
| 2024 | 18757 | NWA - Noxious Weed Assessment | $2.15 | $2.15 | $0.00 | $0.00 | $4.30 | $0.00 |
| 2024 | 18757 | WAT - Clean Water District | $12.50 | $12.50 | $0.00 | $0.00 | $25.00 | $0.00 |
| 2024 | 18757 | TOTAL: | $118.05 | $117.92 | $0.00 | $0.00 | $235.97 | $0.00 |
|
| 2024 | 18757 | $118.05 | $117.92 | $0.00 | $0.00 | $235.97 | $0.00 |
Statement Details |
| 2023 | 18794 | STATE - STATE LEVY (SCHOOL) | $26.49 | $26.48 | $0.00 | $0.00 | $52.97 | $0.00 |
| 2023 | 18794 | COUNTY - COUNTY LEVIES (CE, DD, VET, MH) | $11.57 | $11.54 | $0.00 | $0.00 | $23.11 | $0.00 |
| 2023 | 18794 | CONSERVE - CONSERVATION FUTURES | $0.35 | $0.34 | $0.00 | $0.00 | $0.69 | $0.00 |
| 2023 | 18794 | CITYPT - CITY OF PT | $16.34 | $16.33 | $0.00 | $0.00 | $32.67 | $0.00 |
| 2023 | 18794 | PORTPT - PORT DISTRICT | $4.87 | $4.86 | $0.00 | $0.00 | $9.73 | $0.00 |
| 2023 | 18794 | PUD1 - PUD #1 | $0.77 | $0.76 | $0.00 | $0.00 | $1.53 | $0.00 |
| 2023 | 18794 | HD2 - HOSP DIST #2 | $0.68 | $0.67 | $0.00 | $0.00 | $1.35 | $0.00 |
| 2023 | 18794 | SD50 - SCHOOL DIST #50 | $21.03 | $21.00 | $0.00 | $0.00 | $42.03 | $0.00 |
| 2023 | 18794 | FD1 - FIRE DISTRICT #1 | $9.52 | $9.52 | $0.00 | $0.00 | $19.04 | $0.00 |
| 2023 | 18794 | EMS1 - FIRE DIST #1 EMS | $4.05 | $4.05 | $0.00 | $0.00 | $8.10 | $0.00 |
| 2023 | 18794 | JCCD - JC Conservation District | $2.53 | $2.53 | $0.00 | $0.00 | $5.06 | $0.00 |
| 2023 | 18794 | NWA - Noxious Weed Assessment | $2.15 | $2.15 | $0.00 | $0.00 | $4.30 | $0.00 |
| 2023 | 18794 | WAT - Clean Water District | $12.00 | $12.00 | $0.00 | $0.00 | $24.00 | $0.00 |
| 2023 | 18794 | TOTAL: | $112.35 | $112.23 | $0.00 | $0.00 | $224.58 | $0.00 |
|
| 2023 | 18794 | $112.35 | $112.23 | $0.00 | $0.00 | $224.58 | $0.00 |
Values
| (+) Improvement Homesite Value: | + | $0 | |
| (+) Improvement Non-Homesite Value: | + | $0 | |
| (+) Land Homesite Value: | + | $0 | |
| (+) Land Non-Homesite Value: | + | $22,500 | |
| (+) Curr Use (HS): | + | $0 | $0 |
| (+) Curr Use (NHS): | + | $0 | $0 |
| | | -------------------------- | |
| (=) Market Value: | = | $22,500 | |
| (–) Productivity Loss: | – | $0 | |
| | | -------------------------- | |
| (=) Subtotal: | = | $22,500 | |
| (+) Senior Appraised Value: | + | $0 | |
| (+) Non-Senior Appraised Value: | + | $22,500 | |
| | | -------------------------- | |
| (=) Total Appraised Value: | = | $22,500 | |
| (–) Senior Exemption Loss: | – | $0 | |
| (–) Exemption Loss: | – | $0 | |
| | | -------------------------- | |
| (=) Taxable Value: | = | $22,500 | |
Taxing Jurisdiction
| Owner: | FORTIER REVOCABLE TRUST | | |
| % Ownership: | 100.0000000000% | | |
| Total Value: | N/A | | |
| Tax Area: | 0110 - C-50F1E1H2 |
| CE | COUNTY CURRENT EXPENSE | N/A | N/A | N/A | N/A | | |
| CNTYDD | DEVELOPMENTAL DISABILITIES | N/A | N/A | N/A | N/A | | |
| CNTYVET | VETERANS RELIEF | N/A | N/A | N/A | N/A | | |
| MENTAL | MENTAL HEALTH | N/A | N/A | N/A | N/A | | |
| PTGEN | CITY OF PT GENERAL | N/A | N/A | N/A | N/A | | |
| PTLLL | CITY OF PT - LIBRARY LID LIFT | N/A | N/A | N/A | N/A | | |
| PTMVBOND | CITY OF PT MV BOND | N/A | N/A | N/A | N/A | | |
| HOSP2CASH | HOSP DIST #2 GENERAL | N/A | N/A | N/A | N/A | | |
| SCH50BOND | SCHOOL DIST #50 BOND 2016 | N/A | N/A | N/A | N/A | | |
| SCH50CP | SCHOOL DIST #50 CAP PROJ | N/A | N/A | N/A | N/A | | |
| SCH50MO | SCHOOL DIST #50 EP & O | N/A | N/A | N/A | N/A | | |
| CONSERVE | CONSERVATION FUTURES | N/A | N/A | N/A | N/A | | |
| EMS1 | FIRE DIST #1 EMS | N/A | N/A | N/A | N/A | | |
| FD1 | FIRE DIST #1 GENERAL | N/A | N/A | N/A | N/A | | |
| PORTPT | PORT OF PT GENERAL | N/A | N/A | N/A | N/A | | |
| PORTPTIDD | PORT OF PT IDD 2019 | N/A | N/A | N/A | N/A | | |
| PUD1 | PUD #1 GENERAL | N/A | N/A | N/A | N/A | | |
| STATE | STATE SCHOOL PART 1 | N/A | N/A | N/A | N/A | | |
| STATE2 | STATE SCHOOL PART 2 | N/A | N/A | N/A | N/A | | |
| | Total Tax Rate: | N/A | | | | | |
| | | | | Taxes w/Current Exemptions: | N/A | | |
| | | | | Taxes w/o Exemptions: | N/A | | |
Improvement / Building
Sketch
| No sketches available for this property. |
Property Image
Land
| 1 | 6020-1157L | | 0.0000 | 0.00 | 0.00 | 0.00 | 1.00 | $22,500 | $0 |
Roll Value History
| 2026 | N/A | N/A | N/A | N/A | N/A |
| 2025 | $0 | $22,500 | $0 | $22,500 | $22,500 |
| 2024 | $0 | $22,500 | $0 | $22,500 | $22,500 |
| 2023 | $0 | $22,500 | $0 | $22,500 | $22,500 |
| 2022 | $0 | $22,500 | $0 | $22,500 | $22,500 |
Deed and Sales History
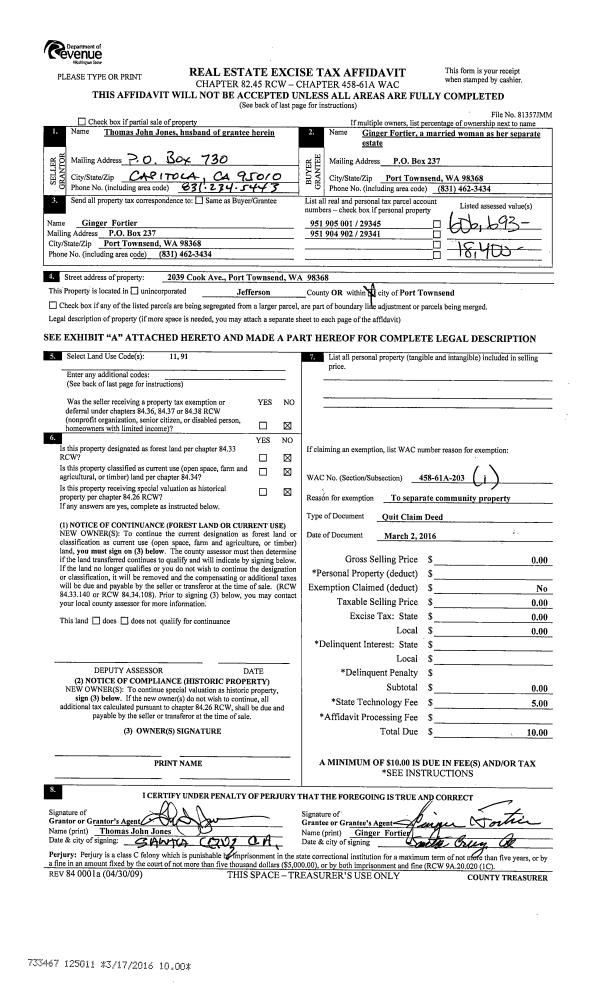
| 1 | 02/13/2018 | QCD | Quit Claim Deed | GINGER FORTIER | FORTIER REVOCABLE TRUST | | | | 129557 | |
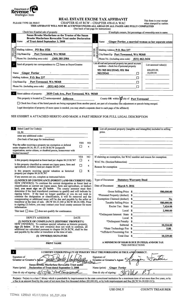
| 2 | 03/09/2016 | SWD | Statutory Warranty Deed | SUSAN B MAC FARLANE TST | GINGER FORTIER | | | $580,000.00 | 125010 | |
|   | |
| 3 | 09/03/2008 | QCD | Quit Claim Deed | SMITH, SUSAN BROOKE | MACFARLANE, SUSAN BROOK TRUST | 0 | 0 | $0.00 | 111845 | 0 |
Payout Agreement
| No payout information available.. |