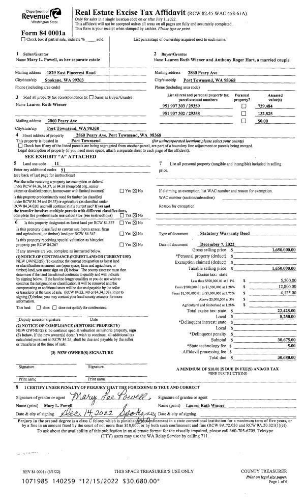
Property
Account |
| Property ID: | 29359 | Abbreviated Legal Description: | FOWLER'S PARK ADDITION BLK 73 & 68 TAX 12 (SURVEY VOL11/PG4 PAR A) |
| Parcel # / Geo ID: | 951907303 | Agent Code: | |
| Type: | Real | | |
| Tax Area: | 0110 - C-50F1E1H2 | Land Use Code | 11 |
| Open Space: | N | DFL | N |
| Historic Property: | N | Remodel Property: | N |
| Multi-Family Redevelopment: | N | | |
| Township: | 31N | Section: | 33 |
| Range: | 1W |
Location |
| Address: | 2860 PEARY AVE PORT TOWNSEND, WA 98368 | Mapsco: | 053/011 |
| Neighborhood: | FOWLERS PARK, DAVID'S, WILDWOOD AND ACREAGE IN 33-31-1W | Map ID: | |
| Neighborhood CD: | 6010 |
Owner |
| Name: | LAUREN R WIENER & ANTHONY R HART | Owner ID: | 108088 |
| Mailing Address: | 2860 PEARY AVE PORT TOWNSEND, WA 98368-1031 | % Ownership: | 100.0000000000% |
| | | Exemptions: | |
Pay Tax Due
Select the appropriate checkbox next to the year to be paid. Multiple years may be selected.
*Convenience Fee not included
Taxes and Assessment Details
Property Tax Information as of
03/10/2026
Click on "Statement Details" to expand or collapse a tax statement.
* Please enter a valid date ** Please enter a valid date *
Statement Details |
| 2026 | 18679 | STATE - STATE LEVY (SCHOOL) | $1586.07 | $1586.06 | $0.00 | $0.00 | $0.00 | $3172.13 |
| 2026 | 18679 | COUNTY - COUNTY LEVIES (CE, DD, VET, MH) | $634.11 | $634.09 | $0.00 | $0.00 | $0.00 | $1268.20 |
| 2026 | 18679 | CONSERVE - CONSERVATION FUTURES | $19.02 | $19.01 | $0.00 | $0.00 | $0.00 | $38.03 |
| 2026 | 18679 | CITYPT - CITY OF PT | $900.06 | $900.05 | $0.00 | $0.00 | $0.00 | $1800.11 |
| 2026 | 18679 | PORTPT - PORT DISTRICT | $256.11 | $256.09 | $0.00 | $0.00 | $0.00 | $512.20 |
| 2026 | 18679 | PUD1 - PUD #1 | $41.25 | $41.24 | $0.00 | $0.00 | $0.00 | $82.49 |
| 2026 | 18679 | HD2 - HOSP DIST #2 | $36.98 | $36.98 | $0.00 | $0.00 | $0.00 | $73.96 |
| 2026 | 18679 | SD50 - SCHOOL DIST #50 | $1256.52 | $1256.50 | $0.00 | $0.00 | $0.00 | $2513.02 |
| 2026 | 18679 | FD1 - FIRE DISTRICT #1 | $839.70 | $839.70 | $0.00 | $0.00 | $0.00 | $1679.40 |
| 2026 | 18679 | EMS1 - FIRE DIST #1 EMS | $322.86 | $322.85 | $0.00 | $0.00 | $0.00 | $645.71 |
| 2026 | 18679 | FP - DNR Forest Fire Protection Assmt | $8.50 | $8.50 | $0.00 | $0.00 | $0.00 | $17.00 |
| 2026 | 18679 | FPLCA - DNR Landowner Contingency Assmt | $3.00 | $3.00 | $0.00 | $0.00 | $0.00 | $6.00 |
| 2026 | 18679 | JCCD - JC Conservation District | $2.55 | $2.55 | $0.00 | $0.00 | $0.00 | $5.10 |
| 2026 | 18679 | NWA - Noxious Weed Assessment | $2.98 | $2.97 | $0.00 | $0.00 | $0.00 | $5.95 |
| 2026 | 18679 | FP ADMIN - FP ADMIN | $0.50 | $0.00 | $0.00 | $0.00 | $0.00 | $0.50 |
| 2026 | 18679 | TOTAL: | $5910.21 | $5909.59 | $0.00 | $0.00 | $0.00 | $11819.80 |
|
| 2026 | 18679 | $5910.21 | $5909.59 | $0.00 | $0.00 | $0.00 | $11819.80 |
Statement Details |
| 2025 | 18738 | STATE - STATE LEVY (SCHOOL) | $1099.37 | $1099.35 | $0.00 | $0.00 | $2198.72 | $0.00 |
| 2025 | 18738 | COUNTY - COUNTY LEVIES (CE, DD, VET, MH) | $432.33 | $432.29 | $0.00 | $0.00 | $864.62 | $0.00 |
| 2025 | 18738 | CONSERVE - CONSERVATION FUTURES | $12.97 | $12.96 | $0.00 | $0.00 | $25.93 | $0.00 |
| 2025 | 18738 | CITYPT - CITY OF PT | $623.46 | $623.44 | $0.00 | $0.00 | $1246.90 | $0.00 |
| 2025 | 18738 | PORTPT - PORT DISTRICT | $176.41 | $176.41 | $0.00 | $0.00 | $352.82 | $0.00 |
| 2025 | 18738 | PUD1 - PUD #1 | $28.29 | $28.29 | $0.00 | $0.00 | $56.58 | $0.00 |
| 2025 | 18738 | HD2 - HOSP DIST #2 | $25.22 | $25.22 | $0.00 | $0.00 | $50.44 | $0.00 |
| 2025 | 18738 | SD50 - SCHOOL DIST #50 | $803.46 | $803.44 | $0.00 | $0.00 | $1606.90 | $0.00 |
| 2025 | 18738 | FD1 - FIRE DISTRICT #1 | $570.49 | $570.48 | $0.00 | $0.00 | $1140.97 | $0.00 |
| 2025 | 18738 | EMS1 - FIRE DIST #1 EMS | $219.43 | $219.42 | $0.00 | $0.00 | $438.85 | $0.00 |
| 2025 | 18738 | FP - DNR Forest Fire Protection Assmt | $8.50 | $8.50 | $0.00 | $0.00 | $17.00 | $0.00 |
| 2025 | 18738 | FPLCA - DNR Landowner Contingency Assmt | $3.00 | $3.00 | $0.00 | $0.00 | $6.00 | $0.00 |
| 2025 | 18738 | JCCD - JC Conservation District | $2.55 | $2.55 | $0.00 | $0.00 | $5.10 | $0.00 |
| 2025 | 18738 | NWA - Noxious Weed Assessment | $2.15 | $2.15 | $0.00 | $0.00 | $4.30 | $0.00 |
| 2025 | 18738 | FP ADMIN - FP ADMIN | $0.50 | $0.00 | $0.00 | $0.00 | $0.50 | $0.00 |
| 2025 | 18738 | TOTAL: | $4008.13 | $4007.50 | $0.00 | $0.00 | $8015.63 | $0.00 |
|
| 2025 | 18738 | $4008.13 | $4007.50 | $0.00 | $0.00 | $8015.63 | $0.00 |
Statement Details |
| 2024 | 18775 | STATE - STATE LEVY (SCHOOL) | $1048.22 | $1048.21 | $0.00 | $0.00 | $2096.43 | $0.00 |
| 2024 | 18775 | COUNTY - COUNTY LEVIES (CE, DD, VET, MH) | $448.54 | $448.53 | $0.00 | $0.00 | $897.07 | $0.00 |
| 2024 | 18775 | CONSERVE - CONSERVATION FUTURES | $13.45 | $13.45 | $0.00 | $0.00 | $26.90 | $0.00 |
| 2024 | 18775 | CITYPT - CITY OF PT | $640.90 | $640.90 | $0.00 | $0.00 | $1281.80 | $0.00 |
| 2024 | 18775 | PORTPT - PORT DISTRICT | $185.27 | $185.26 | $0.00 | $0.00 | $370.53 | $0.00 |
| 2024 | 18775 | PUD1 - PUD #1 | $29.46 | $29.46 | $0.00 | $0.00 | $58.92 | $0.00 |
| 2024 | 18775 | HD2 - HOSP DIST #2 | $26.17 | $26.17 | $0.00 | $0.00 | $52.34 | $0.00 |
| 2024 | 18775 | SD50 - SCHOOL DIST #50 | $848.06 | $848.05 | $0.00 | $0.00 | $1696.11 | $0.00 |
| 2024 | 18775 | FD1 - FIRE DISTRICT #1 | $593.08 | $593.07 | $0.00 | $0.00 | $1186.15 | $0.00 |
| 2024 | 18775 | EMS1 - FIRE DIST #1 EMS | $226.54 | $226.53 | $0.00 | $0.00 | $453.07 | $0.00 |
| 2024 | 18775 | JCCD - JC Conservation District | $2.55 | $2.55 | $0.00 | $0.00 | $5.10 | $0.00 |
| 2024 | 18775 | NWA - Noxious Weed Assessment | $2.15 | $2.15 | $0.00 | $0.00 | $4.30 | $0.00 |
| 2024 | 18775 | TOTAL: | $4064.39 | $4064.33 | $0.00 | $0.00 | $8128.72 | $0.00 |
|
| 2024 | 18775 | $4064.39 | $4064.33 | $0.00 | $0.00 | $8128.72 | $0.00 |
Statement Details |
| 2023 | 18812 | STATE - STATE LEVY (SCHOOL) | $961.42 | $961.42 | $0.00 | $0.00 | $1922.84 | $0.00 |
| 2023 | 18812 | COUNTY - COUNTY LEVIES (CE, DD, VET, MH) | $419.53 | $419.52 | $0.00 | $0.00 | $839.05 | $0.00 |
| 2023 | 18812 | CONSERVE - CONSERVATION FUTURES | $12.58 | $12.58 | $0.00 | $0.00 | $25.16 | $0.00 |
| 2023 | 18812 | CITYPT - CITY OF PT | $592.95 | $592.93 | $0.00 | $0.00 | $1185.88 | $0.00 |
| 2023 | 18812 | PORTPT - PORT DISTRICT | $176.73 | $176.73 | $0.00 | $0.00 | $353.46 | $0.00 |
| 2023 | 18812 | PUD1 - PUD #1 | $27.81 | $27.81 | $0.00 | $0.00 | $55.62 | $0.00 |
| 2023 | 18812 | HD2 - HOSP DIST #2 | $24.49 | $24.47 | $0.00 | $0.00 | $48.96 | $0.00 |
| 2023 | 18812 | SD50 - SCHOOL DIST #50 | $762.91 | $762.90 | $0.00 | $0.00 | $1525.81 | $0.00 |
| 2023 | 18812 | FD1 - FIRE DISTRICT #1 | $345.61 | $345.61 | $0.00 | $0.00 | $691.22 | $0.00 |
| 2023 | 18812 | EMS1 - FIRE DIST #1 EMS | $147.02 | $147.01 | $0.00 | $0.00 | $294.03 | $0.00 |
| 2023 | 18812 | JCCD - JC Conservation District | $2.55 | $2.55 | $0.00 | $0.00 | $5.10 | $0.00 |
| 2023 | 18812 | NWA - Noxious Weed Assessment | $2.15 | $2.15 | $0.00 | $0.00 | $4.30 | $0.00 |
| 2023 | 18812 | TOTAL: | $3475.75 | $3475.68 | $0.00 | $0.00 | $6951.43 | $0.00 |
|
| 2023 | 18812 | $3475.75 | $3475.68 | $0.00 | $0.00 | $6951.43 | $0.00 |
Values
| (+) Improvement Homesite Value: | + | $0 | |
| (+) Improvement Non-Homesite Value: | + | $767,734 | |
| (+) Land Homesite Value: | + | $0 | |
| (+) Land Non-Homesite Value: | + | $612,000 | |
| (+) Curr Use (HS): | + | $0 | $0 |
| (+) Curr Use (NHS): | + | $0 | $0 |
| | | -------------------------- | |
| (=) Market Value: | = | $1,379,734 | |
| (–) Productivity Loss: | – | $0 | |
| | | -------------------------- | |
| (=) Subtotal: | = | $1,379,734 | |
| (+) Senior Appraised Value: | + | $0 | |
| (+) Non-Senior Appraised Value: | + | $1,379,734 | |
| | | -------------------------- | |
| (=) Total Appraised Value: | = | $1,379,734 | |
| (–) Senior Exemption Loss: | – | $0 | |
| (–) Exemption Loss: | – | $0 | |
| | | -------------------------- | |
| (=) Taxable Value: | = | $1,379,734 | |
Taxing Jurisdiction
| Owner: | LAUREN R WIENER & ANTHONY R HART | | |
| % Ownership: | 100.0000000000% | | |
| Total Value: | $1,379,734 | | |
| Tax Area: | 0110 - C-50F1E1H2 |
| CE | COUNTY CURRENT EXPENSE | 0.9034619479 | $1,379,734 | $1,379,734 | $1,246.54 | | |
| CNTYDD | DEVELOPMENTAL DISABILITIES | 0.0052121823 | $1,379,734 | $1,379,734 | $7.19 | | |
| CNTYVET | VETERANS RELIEF | 0.0052777810 | $1,379,734 | $1,379,734 | $7.28 | | |
| MENTAL | MENTAL HEALTH | 0.0052121823 | $1,379,734 | $1,379,734 | $7.19 | | |
| PTGEN | CITY OF PT GENERAL | 0.8551967795 | $1,379,734 | $1,379,734 | $1,179.94 | | |
| PTLLL | CITY OF PT - LIBRARY LID LIFT | 0.4010114288 | $1,379,734 | $1,379,734 | $553.29 | | |
| PTMVBOND | CITY OF PT MV BOND | 0.0484717981 | $1,379,734 | $1,379,734 | $66.88 | | |
| HOSP2CASH | HOSP DIST #2 GENERAL | 0.0536075306 | $1,379,734 | $1,379,734 | $73.96 | | |
| SCH50BOND | SCHOOL DIST #50 BOND 2016 | 0.5377451389 | $1,379,734 | $1,379,734 | $741.95 | | |
| SCH50CP | SCHOOL DIST #50 CAP PROJ | 0.4573475088 | $1,379,734 | $1,379,734 | $631.02 | | |
| SCH50MO | SCHOOL DIST #50 EP & O | 0.8262822886 | $1,379,734 | $1,379,734 | $1,140.05 | | |
| CONSERVE | CONSERVATION FUTURES | 0.0275621078 | $1,379,734 | $1,379,734 | $38.03 | | |
| EMS1 | FIRE DIST #1 EMS | 0.4679948282 | $1,379,734 | $1,379,734 | $645.71 | | |
| FD1 | FIRE DIST #1 GENERAL | 1.2171942929 | $1,379,734 | $1,379,734 | $1,679.40 | | |
| PORTPT | PORT OF PT GENERAL | 0.1134941229 | $1,379,734 | $1,379,734 | $156.59 | | |
| PORTPTIDD | PORT OF PT IDD 2019 | 0.2577346692 | $1,379,734 | $1,379,734 | $355.61 | | |
| PUD1 | PUD #1 GENERAL | 0.0597888892 | $1,379,734 | $1,379,734 | $82.49 | | |
| STATE | STATE SCHOOL PART 1 | 1.4940692947 | $1,379,734 | $1,379,734 | $2,061.42 | | |
| STATE2 | STATE SCHOOL PART 2 | 0.8050170049 | $1,379,734 | $1,379,734 | $1,110.71 | | |
| | Total Tax Rate: | 8.5416817766 | | | | | |
| | | | | Taxes w/Current Exemptions: | $11,785.25 | | |
| | | | | Taxes w/o Exemptions: | $11,785.25 | | |
Improvement / Building
| Improvement #1: | Residential Bldg | State Code: | 11 | 1865.0 sqft | Value: | $767,734 |
| Bathrooms (#): | 2 (FULL) | Bedrooms (#): | 3 | | Exterior Wall: | SI/ST | Fireplace: | SIN 1-GOOD | | Fireplace: | WD ST-GOOD | Floor Construction: | FRAME | | Foundation: | CONPR | Heating/Cooling: | OTHER | | Roof Cover: | COMP |   |   |
|
| | Type | Description | Class CD | Sub Class CD | Year Built | Area |
| | MA | Main Area | 6- | 1S | 1959 | 1865.0 |
| | HDECK | House Deck | 5 | * | 1959 | 438.0 |
| | BSMTF | House basement finished | 6 | * | 1959 | 298.4 |
| | GBLTIN | Builtin Garage | 5 | * | 1959 | 696.0 |
| | PATIO | House Patio | 5 | * | 1959 | 275.5 |
Sketch
Property Image
Land
| 1 | 6010-1535F | | 0.0000 | 0.00 | 0.00 | 0.00 | 0.00 | $600,000 | $0 |
| 2 | 6010-1535F | | 0.0000 | 0.00 | 0.00 | 0.00 | 0.00 | $12,000 | $0 |
Roll Value History
| 2026 | N/A | N/A | N/A | N/A | N/A |
| 2025 | $767,734 | $612,000 | $0 | $1,379,734 | $1,379,734 |
| 2024 | $554,885 | $362,000 | $0 | $916,885 | $916,885 |
| 2023 | $549,134 | $357,000 | $0 | $906,134 | $906,134 |
| 2022 | $464,781 | $352,000 | $0 | $816,781 | $816,781 |
Deed and Sales History
| 1 | 12/07/2022 | SWD | Statutory Warranty Deed | DAVID L POWELL | LAUREN R WIENER & ANTHONY R HART | | | $1,650,000.00 | 140259 | |
|   | |
| 2 | 09/11/2000 | SWD | Statutory Warranty Deed | HILLIER, FRANK O/EILEEN K | POWELL, DAVID L/MARY L | 0 | 0 | $205,000.00 | 90631 | 0 |
Payout Agreement
| No payout information available.. |