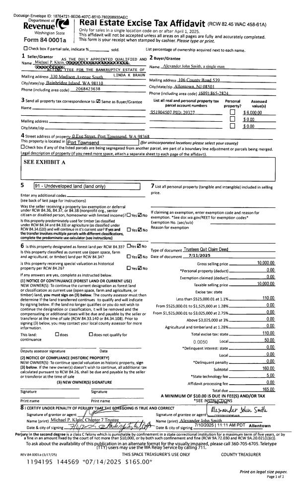
Property
Account |
| Property ID: | 29401 | Abbreviated Legal Description: | FULLER'S ACRES LOT 4 & TL TAX W |
| Parcel # / Geo ID: | 952200004 | Agent Code: | |
| Type: | Real | | |
| Tax Area: | 0211 - 1-49F1E1H2L1 | Land Use Code | 11 |
| Open Space: | N | DFL | N |
| Historic Property: | N | Remodel Property: | N |
| Multi-Family Redevelopment: | N | | |
| Township: | 29N | Section: | 8 |
| Range: | 1E |
Location |
| Address: | 170 BEACH DR NORDLAND, WA 98358 | Mapsco: | 022/034 |
| Neighborhood: | FULLERS ACRES AND FULLERS 1ST ADDITION | Map ID: | |
| Neighborhood CD: | 4635 |
Owner |
| Name: | JAFFE-ISAACSON REV LIVING TRUST | Owner ID: | 112947 |
| Mailing Address: | ROBERT D JAFFE TRUSTEE SUSANE J ISAACSON TRUSTEE 151 BEACH DR NORDLAND, WA 98358-9601 | % Ownership: | 100.0000000000% |
| | | Exemptions: | |
Pay Tax Due
Select the appropriate checkbox next to the year to be paid. Multiple years may be selected.
*Convenience Fee not included
Taxes and Assessment Details
Property Tax Information as of
03/11/2026
Click on "Statement Details" to expand or collapse a tax statement.
* Please enter a valid date ** Please enter a valid date *
Statement Details |
| 2026 | 18717 | STATE - STATE LEVY (SCHOOL) | $1232.57 | $1232.55 | $0.00 | $0.00 | $0.00 | $2465.12 |
| 2026 | 18717 | COUNTY - COUNTY LEVIES (CE, DD, VET, MH) | $492.79 | $492.76 | $0.00 | $0.00 | $0.00 | $985.55 |
| 2026 | 18717 | CONSERVE - CONSERVATION FUTURES | $14.78 | $14.77 | $0.00 | $0.00 | $0.00 | $29.55 |
| 2026 | 18717 | COROADS - COUNTY ROADS (ROADS, DIV TO CE) | $397.53 | $397.53 | $0.00 | $0.00 | $0.00 | $795.06 |
| 2026 | 18717 | PORTPT - PORT DISTRICT | $199.03 | $199.01 | $0.00 | $0.00 | $0.00 | $398.04 |
| 2026 | 18717 | PUD1 - PUD #1 | $32.06 | $32.05 | $0.00 | $0.00 | $0.00 | $64.11 |
| 2026 | 18717 | LIB1 - LIBRARY DIST #1 | $153.80 | $153.80 | $0.00 | $0.00 | $0.00 | $307.60 |
| 2026 | 18717 | HD2 - HOSP DIST #2 | $28.74 | $28.74 | $0.00 | $0.00 | $0.00 | $57.48 |
| 2026 | 18717 | SD49 - SCHOOL DIST #49 | $678.48 | $678.47 | $0.00 | $0.00 | $0.00 | $1356.95 |
| 2026 | 18717 | FD1 - FIRE DISTRICT #1 | $652.55 | $652.55 | $0.00 | $0.00 | $0.00 | $1305.10 |
| 2026 | 18717 | EMS1 - FIRE DIST #1 EMS | $250.90 | $250.89 | $0.00 | $0.00 | $0.00 | $501.79 |
| 2026 | 18717 | FP - DNR Forest Fire Protection Assmt | $8.50 | $8.50 | $0.00 | $0.00 | $0.00 | $17.00 |
| 2026 | 18717 | FPLCA - DNR Landowner Contingency Assmt | $3.00 | $3.00 | $0.00 | $0.00 | $0.00 | $6.00 |
| 2026 | 18717 | JCCD - JC Conservation District | $2.55 | $2.55 | $0.00 | $0.00 | $0.00 | $5.10 |
| 2026 | 18717 | NWA - Noxious Weed Assessment | $2.98 | $2.97 | $0.00 | $0.00 | $0.00 | $5.95 |
| 2026 | 18717 | OSS - On Site Septic | $23.10 | $23.10 | $0.00 | $0.00 | $0.00 | $46.20 |
| 2026 | 18717 | WAT - Clean Water District | $13.00 | $13.00 | $0.00 | $0.00 | $0.00 | $26.00 |
| 2026 | 18717 | FP ADMIN - FP ADMIN | $0.50 | $0.00 | $0.00 | $0.00 | $0.00 | $0.50 |
| 2026 | 18717 | TOTAL: | $4186.86 | $4186.24 | $0.00 | $0.00 | $0.00 | $8373.10 |
|
| 2026 | 18717 | $4186.86 | $4186.24 | $0.00 | $0.00 | $0.00 | $8373.10 |
Statement Details |
| 2025 | 18776 | STATE - STATE LEVY (SCHOOL) | $378.95 | $378.94 | $0.00 | $0.00 | $757.89 | $0.00 |
| 2025 | 18776 | COUNTY - COUNTY LEVIES (CE, DD, VET, MH) | $149.04 | $149.01 | $0.00 | $0.00 | $298.05 | $0.00 |
| 2025 | 18776 | CONSERVE - CONSERVATION FUTURES | $4.47 | $4.47 | $0.00 | $0.00 | $8.94 | $0.00 |
| 2025 | 18776 | COROADS - COUNTY ROADS (ROADS, DIV TO CE) | $119.39 | $119.39 | $0.00 | $0.00 | $238.78 | $0.00 |
| 2025 | 18776 | PORTPT - PORT DISTRICT | $60.81 | $60.81 | $0.00 | $0.00 | $121.62 | $0.00 |
| 2025 | 18776 | PUD1 - PUD #1 | $9.75 | $9.75 | $0.00 | $0.00 | $19.50 | $0.00 |
| 2025 | 18776 | LIB1 - LIBRARY DIST #1 | $46.19 | $46.19 | $0.00 | $0.00 | $92.38 | $0.00 |
| 2025 | 18776 | HD2 - HOSP DIST #2 | $8.70 | $8.69 | $0.00 | $0.00 | $17.39 | $0.00 |
| 2025 | 18776 | SD49 - SCHOOL DIST #49 | $203.10 | $203.09 | $0.00 | $0.00 | $406.19 | $0.00 |
| 2025 | 18776 | FD1 - FIRE DISTRICT #1 | $196.65 | $196.64 | $0.00 | $0.00 | $393.29 | $0.00 |
| 2025 | 18776 | EMS1 - FIRE DIST #1 EMS | $75.64 | $75.63 | $0.00 | $0.00 | $151.27 | $0.00 |
| 2025 | 18776 | FP - DNR Forest Fire Protection Assmt | $8.50 | $8.50 | $0.00 | $0.00 | $17.00 | $0.00 |
| 2025 | 18776 | FPLCA - DNR Landowner Contingency Assmt | $3.00 | $3.00 | $0.00 | $0.00 | $6.00 | $0.00 |
| 2025 | 18776 | JCCD - JC Conservation District | $2.55 | $2.55 | $0.00 | $0.00 | $5.10 | $0.00 |
| 2025 | 18776 | NWA - Noxious Weed Assessment | $2.15 | $2.15 | $0.00 | $0.00 | $4.30 | $0.00 |
| 2025 | 18776 | OSS - On Site Septic | $21.50 | $21.50 | $0.00 | $0.00 | $43.00 | $0.00 |
| 2025 | 18776 | WAT - Clean Water District | $13.00 | $13.00 | $0.00 | $0.00 | $26.00 | $0.00 |
| 2025 | 18776 | FP ADMIN - FP ADMIN | $0.50 | $0.00 | $0.00 | $0.00 | $0.50 | $0.00 |
| 2025 | 18776 | TOTAL: | $1303.89 | $1303.31 | $0.00 | $0.00 | $2607.20 | $0.00 |
|
| 2025 | 18776 | $1303.89 | $1303.31 | $0.00 | $0.00 | $2607.20 | $0.00 |
Statement Details |
| 2024 | 18813 | STATE - STATE LEVY (SCHOOL) | $342.41 | $342.41 | $0.00 | $0.00 | $684.82 | $0.00 |
| 2024 | 18813 | COUNTY - COUNTY LEVIES (CE, DD, VET, MH) | $146.53 | $146.51 | $0.00 | $0.00 | $293.04 | $0.00 |
| 2024 | 18813 | CONSERVE - CONSERVATION FUTURES | $4.40 | $4.39 | $0.00 | $0.00 | $8.79 | $0.00 |
| 2024 | 18813 | COROADS - COUNTY ROADS (ROADS, DIV TO CE) | $117.91 | $117.89 | $0.00 | $0.00 | $235.80 | $0.00 |
| 2024 | 18813 | PORTPT - PORT DISTRICT | $60.52 | $60.52 | $0.00 | $0.00 | $121.04 | $0.00 |
| 2024 | 18813 | PUD1 - PUD #1 | $9.63 | $9.62 | $0.00 | $0.00 | $19.25 | $0.00 |
| 2024 | 18813 | LIB1 - LIBRARY DIST #1 | $45.62 | $45.61 | $0.00 | $0.00 | $91.23 | $0.00 |
| 2024 | 18813 | HD2 - HOSP DIST #2 | $8.55 | $8.55 | $0.00 | $0.00 | $17.10 | $0.00 |
| 2024 | 18813 | SD49 - SCHOOL DIST #49 | $152.90 | $152.90 | $0.00 | $0.00 | $305.80 | $0.00 |
| 2024 | 18813 | FD1 - FIRE DISTRICT #1 | $193.74 | $193.73 | $0.00 | $0.00 | $387.47 | $0.00 |
| 2024 | 18813 | EMS1 - FIRE DIST #1 EMS | $74.00 | $74.00 | $0.00 | $0.00 | $148.00 | $0.00 |
| 2024 | 18813 | JCCD - JC Conservation District | $2.55 | $2.55 | $0.00 | $0.00 | $5.10 | $0.00 |
| 2024 | 18813 | NWA - Noxious Weed Assessment | $2.15 | $2.15 | $0.00 | $0.00 | $4.30 | $0.00 |
| 2024 | 18813 | OSS - On Site Septic | $21.00 | $21.00 | $0.00 | $0.00 | $42.00 | $0.00 |
| 2024 | 18813 | WAT - Clean Water District | $12.50 | $12.50 | $0.00 | $0.00 | $25.00 | $0.00 |
| 2024 | 18813 | TOTAL: | $1194.41 | $1194.33 | $0.00 | $0.00 | $2388.74 | $0.00 |
|
| 2024 | 18813 | $1194.41 | $1194.33 | $0.00 | $0.00 | $2388.74 | $0.00 |
Statement Details |
| 2023 | 18850 | STATE - STATE LEVY (SCHOOL) | $361.54 | $361.54 | $0.00 | $0.00 | $723.08 | $0.00 |
| 2023 | 18850 | COUNTY - COUNTY LEVIES (CE, DD, VET, MH) | $157.78 | $157.75 | $0.00 | $0.00 | $315.53 | $0.00 |
| 2023 | 18850 | CONSERVE - CONSERVATION FUTURES | $4.73 | $4.73 | $0.00 | $0.00 | $9.46 | $0.00 |
| 2023 | 18850 | COROADS - COUNTY ROADS (ROADS, DIV TO CE) | $127.65 | $127.64 | $0.00 | $0.00 | $255.29 | $0.00 |
| 2023 | 18850 | PORTPT - PORT DISTRICT | $66.46 | $66.46 | $0.00 | $0.00 | $132.92 | $0.00 |
| 2023 | 18850 | PUD1 - PUD #1 | $10.46 | $10.46 | $0.00 | $0.00 | $20.92 | $0.00 |
| 2023 | 18850 | LIB1 - LIBRARY DIST #1 | $49.39 | $49.38 | $0.00 | $0.00 | $98.77 | $0.00 |
| 2023 | 18850 | HD2 - HOSP DIST #2 | $9.21 | $9.21 | $0.00 | $0.00 | $18.42 | $0.00 |
| 2023 | 18850 | SD49 - SCHOOL DIST #49 | $169.01 | $169.00 | $0.00 | $0.00 | $338.01 | $0.00 |
| 2023 | 18850 | FD1 - FIRE DISTRICT #1 | $129.97 | $129.97 | $0.00 | $0.00 | $259.94 | $0.00 |
| 2023 | 18850 | EMS1 - FIRE DIST #1 EMS | $55.29 | $55.28 | $0.00 | $0.00 | $110.57 | $0.00 |
| 2023 | 18850 | JCCD - JC Conservation District | $2.55 | $2.55 | $0.00 | $0.00 | $5.10 | $0.00 |
| 2023 | 18850 | NWA - Noxious Weed Assessment | $2.15 | $2.15 | $0.00 | $0.00 | $4.30 | $0.00 |
| 2023 | 18850 | OSS - On Site Septic | $20.50 | $20.50 | $0.00 | $0.00 | $41.00 | $0.00 |
| 2023 | 18850 | WAT - Clean Water District | $12.00 | $12.00 | $0.00 | $0.00 | $24.00 | $0.00 |
| 2023 | 18850 | TOTAL: | $1178.69 | $1178.62 | $0.00 | $0.00 | $2357.31 | $0.00 |
|
| 2023 | 18850 | $1178.69 | $1178.62 | $0.00 | $0.00 | $2357.31 | $0.00 |
Values
| (+) Improvement Homesite Value: | + | $0 | |
| (+) Improvement Non-Homesite Value: | + | $756,165 | |
| (+) Land Homesite Value: | + | $316,051 | |
| (+) Land Non-Homesite Value: | + | $0 | |
| (+) Curr Use (HS): | + | $0 | $0 |
| (+) Curr Use (NHS): | + | $0 | $0 |
| | | -------------------------- | |
| (=) Market Value: | = | $1,072,216 | |
| (–) Productivity Loss: | – | $0 | |
| | | -------------------------- | |
| (=) Subtotal: | = | $1,072,216 | |
| (+) Senior Appraised Value: | + | $0 | |
| (+) Non-Senior Appraised Value: | + | $1,072,216 | |
| | | -------------------------- | |
| (=) Total Appraised Value: | = | $1,072,216 | |
| (–) Senior Exemption Loss: | – | $0 | |
| (–) Exemption Loss: | – | $0 | |
| | | -------------------------- | |
| (=) Taxable Value: | = | $1,072,216 | |
Taxing Jurisdiction
| Owner: | JAFFE-ISAACSON REV LIVING TRUST | | |
| % Ownership: | 100.0000000000% | | |
| Total Value: | $1,072,216 | | |
| Tax Area: | 0211 - 1-49F1E1H2L1 |
| CE | COUNTY CURRENT EXPENSE | 0.9034619479 | $1,072,216 | $1,072,216 | $968.71 | | |
| CNTYDD | DEVELOPMENTAL DISABILITIES | 0.0052121823 | $1,072,216 | $1,072,216 | $5.59 | | |
| CNTYVET | VETERANS RELIEF | 0.0052777810 | $1,072,216 | $1,072,216 | $5.66 | | |
| MENTAL | MENTAL HEALTH | 0.0052121823 | $1,072,216 | $1,072,216 | $5.59 | | |
| ROADS | COUNTY ROADS | 0.7415066410 | $1,072,216 | $1,072,216 | $795.06 | | |
| ROADSCU | COUNTY ROADS TO CUR EXP | 0.0000000000 | $1,072,216 | $1,072,216 | $0.00 | | |
| HOSP2CASH | HOSP DIST #2 GENERAL | 0.0536075306 | $1,072,216 | $1,072,216 | $57.48 | | |
| SCH49CP | SCHOOL DIST #49 CAP PROJ | 0.6279093905 | $1,072,216 | $1,072,216 | $673.25 | | |
| SCH49MO | SCHOOL DIST #49 EP & O | 0.6376483602 | $1,072,216 | $1,072,216 | $683.70 | | |
| CONSERVE | CONSERVATION FUTURES | 0.0275621078 | $1,072,216 | $1,072,216 | $29.55 | | |
| EMS1 | FIRE DIST #1 EMS | 0.4679948282 | $1,072,216 | $1,072,216 | $501.79 | | |
| FD1 | FIRE DIST #1 GENERAL | 1.2171942929 | $1,072,216 | $1,072,216 | $1,305.10 | | |
| LIB1 | LIBRARY DIST #1 GENERAL | 0.2868827388 | $1,072,216 | $1,072,216 | $307.60 | | |
| PORTPT | PORT OF PT GENERAL | 0.1134941229 | $1,072,216 | $1,072,216 | $121.69 | | |
| PORTPTIDD | PORT OF PT IDD 2019 | 0.2577346692 | $1,072,216 | $1,072,216 | $276.35 | | |
| PUD1 | PUD #1 GENERAL | 0.0597888892 | $1,072,216 | $1,072,216 | $64.11 | | |
| STATE | STATE SCHOOL PART 1 | 1.4940692947 | $1,072,216 | $1,072,216 | $1,601.97 | | |
| STATE2 | STATE SCHOOL PART 2 | 0.8050170049 | $1,072,216 | $1,072,216 | $863.15 | | |
| | Total Tax Rate: | 7.7095739644 | | | | | |
| | | | | Taxes w/Current Exemptions: | $8,266.35 | | |
| | | | | Taxes w/o Exemptions: | $8,266.35 | | |
Improvement / Building
| Improvement #1: | Residential Bldg | State Code: | 11 | 2100.0 sqft | Value: | $624,025 |
| Bathrooms (#): | 2 (FULL) | Bedrooms (#): | 2 | | Exterior Wall: | SI/ST | Foundation: | CONPR | | Heating/Cooling: | HPUMP | Roof Cover: | METAL |
|
| | Type | Description | Class CD | Sub Class CD | Year Built | Area |
| | MA | Main Area | 5+ | 1S | 2025 | 2100.0 |
| | HDECK | House Deck | 5 | 1S | 2025 | 844.0 |
| | HCPOR | House Concrete Porch | 5 | 1S | 2025 | 32.0 |
| Improvement #2: | Residential Bldg | State Code: | 11 | 336.0 sqft | Value: | $132,140 |
| Bathrooms (#): | 1 (FULL) | Bedrooms (#): | 1 | | Exterior Wall: | SI/ST | Foundation: | CONPR | | Heating/Cooling: | OTHER | Roof Cover: | METAL |
|
| | Type | Description | Class CD | Sub Class CD | Year Built | Area |
| | MA | Main Area | 4 | ADU | 2025 | 336.0 |
| | GATT | House Attached Garage | 4 | ADU | 2025 | 624.0 |
Sketch
Property Image
Land
| 1 | 4635-1535F | | 0.0000 | 0.00 | 0.00 | 0.00 | 0.00 | $294,000 | $0 |
| 2 | 4635-1535F | | 0.0000 | 0.00 | 0.00 | 0.00 | 0.00 | $19,163 | $0 |
| 3 | 9301F | | 0.0000 | 0.00 | 0.00 | 0.00 | 0.00 | $2,888 | $0 |
Roll Value History
| 2026 | N/A | N/A | N/A | N/A | N/A |
| 2025 | $756,165 | $316,051 | $0 | $1,072,216 | $1,072,216 |
| 2024 | $0 | $316,051 | $0 | $316,051 | $316,051 |
| 2023 | $0 | $296,000 | $0 | $296,000 | $296,000 |
| 2022 | $16,152 | $291,000 | $0 | $307,152 | $307,152 |
Deed and Sales History
| 1 | 07/21/2025 | QCD | Quit Claim Deed | SUSAN ISAACSON | JAFFE-ISAACSON REV LIVING TRUST | | | | 144615 | |
| 2 | 02/11/2019 | BSD | Bargain and Sale Deed | ALICE L MCADOO | SUSAN ISAACSON | | | $258,500.00 | 131811 | |
| 3 | 07/07/1994 | QCD | Quit Claim Deed | SHUMAKER, MARY LUCILLE/ES | HIORTH, ALICE | 0 | 0 | $0.00 | 74600 | 0 |
| 4 | 09/27/1993 | QCD | Quit Claim Deed | SHUMAKER, MARY L | HIORTH, ALICE L | 0 | 0 | $0.00 | 72331 | 0 |
Payout Agreement
| No payout information available.. |