Property
Account |
| Property ID: | 29408 | Abbreviated Legal Description: | FULLER'S ACRES 1ST ADD LOT 3 |
| Parcel # / Geo ID: | 952500003 | Agent Code: | |
| Type: | Real | | |
| Tax Area: | 0211 - 1-49F1E1H2L1 | Land Use Code | 11 |
| Open Space: | N | DFL | N |
| Historic Property: | N | Remodel Property: | N |
| Multi-Family Redevelopment: | N | | |
| Township: | 29N | Section: | 8 |
| Range: | 1E |
Location |
| Address: | 111 BEACH DR NORDLAND, WA 98358 | Mapsco: | 022/041 |
| Neighborhood: | FULLERS ACRES AND FULLERS 1ST ADDITION | Map ID: | |
| Neighborhood CD: | 4635 |
Owner |
| Name: | JACOB N PERRITT-CRAVEY | Owner ID: | 112582 |
| Mailing Address: | 111 BEACH DR NORDLAND, WA 98358-9601 | % Ownership: | 100.0000000000% |
| | | Exemptions: | |
Pay Tax Due
Select the appropriate checkbox next to the year to be paid. Multiple years may be selected.
*Convenience Fee not included
Taxes and Assessment Details
Property Tax Information as of
03/12/2026
Click on "Statement Details" to expand or collapse a tax statement.
* Please enter a valid date ** Please enter a valid date *
Statement Details |
| 2026 | 18724 | STATE - STATE LEVY (SCHOOL) | $190.65 | $190.64 | $0.00 | $0.00 | $0.00 | $381.29 |
| 2026 | 18724 | COUNTY - COUNTY LEVIES (CE, DD, VET, MH) | $76.22 | $76.21 | $0.00 | $0.00 | $0.00 | $152.43 |
| 2026 | 18724 | CONSERVE - CONSERVATION FUTURES | $2.29 | $2.28 | $0.00 | $0.00 | $0.00 | $4.57 |
| 2026 | 18724 | COROADS - COUNTY ROADS (ROADS, DIV TO CE) | $61.49 | $61.49 | $0.00 | $0.00 | $0.00 | $122.98 |
| 2026 | 18724 | PORTPT - PORT DISTRICT | $30.78 | $30.78 | $0.00 | $0.00 | $0.00 | $61.56 |
| 2026 | 18724 | PUD1 - PUD #1 | $4.96 | $4.96 | $0.00 | $0.00 | $0.00 | $9.92 |
| 2026 | 18724 | LIB1 - LIBRARY DIST #1 | $23.79 | $23.79 | $0.00 | $0.00 | $0.00 | $47.58 |
| 2026 | 18724 | HD2 - HOSP DIST #2 | $4.45 | $4.44 | $0.00 | $0.00 | $0.00 | $8.89 |
| 2026 | 18724 | SD49 - SCHOOL DIST #49 | $104.95 | $104.94 | $0.00 | $0.00 | $0.00 | $209.89 |
| 2026 | 18724 | FD1 - FIRE DISTRICT #1 | $100.94 | $100.93 | $0.00 | $0.00 | $0.00 | $201.87 |
| 2026 | 18724 | EMS1 - FIRE DIST #1 EMS | $38.81 | $38.80 | $0.00 | $0.00 | $0.00 | $77.61 |
| 2026 | 18724 | FP - DNR Forest Fire Protection Assmt | $8.50 | $8.50 | $0.00 | $0.00 | $0.00 | $17.00 |
| 2026 | 18724 | FPLCA - DNR Landowner Contingency Assmt | $3.00 | $3.00 | $0.00 | $0.00 | $0.00 | $6.00 |
| 2026 | 18724 | JCCD - JC Conservation District | $2.55 | $2.55 | $0.00 | $0.00 | $0.00 | $5.10 |
| 2026 | 18724 | NWA - Noxious Weed Assessment | $2.98 | $2.97 | $0.00 | $0.00 | $0.00 | $5.95 |
| 2026 | 18724 | OSS - On Site Septic | $23.10 | $23.10 | $0.00 | $0.00 | $0.00 | $46.20 |
| 2026 | 18724 | WAT - Clean Water District | $13.00 | $13.00 | $0.00 | $0.00 | $0.00 | $26.00 |
| 2026 | 18724 | FP ADMIN - FP ADMIN | $0.50 | $0.00 | $0.00 | $0.00 | $0.00 | $0.50 |
| 2026 | 18724 | TOTAL: | $692.96 | $692.38 | $0.00 | $0.00 | $0.00 | $1385.34 |
|
| 2026 | 18724 | $692.96 | $692.38 | $0.00 | $0.00 | $0.00 | $1385.34 |
Statement Details |
| 2025 | 18783 | STATE - STATE LEVY (SCHOOL) | $113.31 | $113.30 | $0.00 | $0.00 | $226.61 | $0.00 |
| 2025 | 18783 | COUNTY - COUNTY LEVIES (CE, DD, VET, MH) | $44.56 | $44.55 | $0.00 | $0.00 | $89.11 | $0.00 |
| 2025 | 18783 | CONSERVE - CONSERVATION FUTURES | $1.34 | $1.33 | $0.00 | $0.00 | $2.67 | $0.00 |
| 2025 | 18783 | COROADS - COUNTY ROADS (ROADS, DIV TO CE) | $35.70 | $35.70 | $0.00 | $0.00 | $71.40 | $0.00 |
| 2025 | 18783 | PORTPT - PORT DISTRICT | $18.18 | $18.18 | $0.00 | $0.00 | $36.36 | $0.00 |
| 2025 | 18783 | PUD1 - PUD #1 | $2.92 | $2.91 | $0.00 | $0.00 | $5.83 | $0.00 |
| 2025 | 18783 | LIB1 - LIBRARY DIST #1 | $13.81 | $13.81 | $0.00 | $0.00 | $27.62 | $0.00 |
| 2025 | 18783 | HD2 - HOSP DIST #2 | $2.60 | $2.60 | $0.00 | $0.00 | $5.20 | $0.00 |
| 2025 | 18783 | SD49 - SCHOOL DIST #49 | $60.73 | $60.72 | $0.00 | $0.00 | $121.45 | $0.00 |
| 2025 | 18783 | FD1 - FIRE DISTRICT #1 | $58.80 | $58.80 | $0.00 | $0.00 | $117.60 | $0.00 |
| 2025 | 18783 | EMS1 - FIRE DIST #1 EMS | $22.62 | $22.61 | $0.00 | $0.00 | $45.23 | $0.00 |
| 2025 | 18783 | FPLCA - DNR Landowner Contingency Assmt | $3.00 | $3.00 | $0.00 | $0.00 | $6.00 | $0.00 |
| 2025 | 18783 | JCCD - JC Conservation District | $2.53 | $2.53 | $0.00 | $0.00 | $5.06 | $0.00 |
| 2025 | 18783 | NWA - Noxious Weed Assessment | $2.15 | $2.15 | $0.00 | $0.00 | $4.30 | $0.00 |
| 2025 | 18783 | OSS - On Site Septic | $21.50 | $21.50 | $0.00 | $0.00 | $43.00 | $0.00 |
| 2025 | 18783 | WAT - Clean Water District | $13.00 | $13.00 | $0.00 | $0.00 | $26.00 | $0.00 |
| 2025 | 18783 | TOTAL: | $416.75 | $416.69 | $0.00 | $0.00 | $833.44 | $0.00 |
|
| 2025 | 18783 | $416.75 | $416.69 | $0.00 | $0.00 | $833.44 | $0.00 |
Statement Details |
| 2024 | 18820 | STATE - STATE LEVY (SCHOOL) | $104.11 | $104.11 | $0.00 | $0.00 | $208.22 | $0.00 |
| 2024 | 18820 | COUNTY - COUNTY LEVIES (CE, DD, VET, MH) | $44.56 | $44.54 | $0.00 | $0.00 | $89.10 | $0.00 |
| 2024 | 18820 | CONSERVE - CONSERVATION FUTURES | $1.34 | $1.33 | $0.00 | $0.00 | $2.67 | $0.00 |
| 2024 | 18820 | COROADS - COUNTY ROADS (ROADS, DIV TO CE) | $35.85 | $35.84 | $0.00 | $0.00 | $71.69 | $0.00 |
| 2024 | 18820 | PORTPT - PORT DISTRICT | $18.40 | $18.40 | $0.00 | $0.00 | $36.80 | $0.00 |
| 2024 | 18820 | PUD1 - PUD #1 | $2.93 | $2.92 | $0.00 | $0.00 | $5.85 | $0.00 |
| 2024 | 18820 | LIB1 - LIBRARY DIST #1 | $13.87 | $13.87 | $0.00 | $0.00 | $27.74 | $0.00 |
| 2024 | 18820 | HD2 - HOSP DIST #2 | $2.60 | $2.60 | $0.00 | $0.00 | $5.20 | $0.00 |
| 2024 | 18820 | SD49 - SCHOOL DIST #49 | $46.50 | $46.49 | $0.00 | $0.00 | $92.99 | $0.00 |
| 2024 | 18820 | FD1 - FIRE DISTRICT #1 | $58.91 | $58.90 | $0.00 | $0.00 | $117.81 | $0.00 |
| 2024 | 18820 | EMS1 - FIRE DIST #1 EMS | $22.50 | $22.50 | $0.00 | $0.00 | $45.00 | $0.00 |
| 2024 | 18820 | FP - DNR Forest Fire Protection Assmt | $8.50 | $8.50 | $0.00 | $0.00 | $17.00 | $0.00 |
| 2024 | 18820 | FPLCA - DNR Landowner Contingency Assmt | $3.00 | $3.00 | $0.00 | $0.00 | $6.00 | $0.00 |
| 2024 | 18820 | JCCD - JC Conservation District | $2.53 | $2.53 | $0.00 | $0.00 | $5.06 | $0.00 |
| 2024 | 18820 | NWA - Noxious Weed Assessment | $2.15 | $2.15 | $0.00 | $0.00 | $4.30 | $0.00 |
| 2024 | 18820 | WAT - Clean Water District | $12.50 | $12.50 | $0.00 | $0.00 | $25.00 | $0.00 |
| 2024 | 18820 | FP ADMIN - FP ADMIN | $0.50 | $0.00 | $0.00 | $0.00 | $0.50 | $0.00 |
| 2024 | 18820 | TOTAL: | $380.75 | $380.18 | $0.00 | $0.00 | $760.93 | $0.00 |
|
| 2024 | 18820 | $380.75 | $380.18 | $0.00 | $0.00 | $760.93 | $0.00 |
Statement Details |
| 2023 | 18857 | STATE - STATE LEVY (SCHOOL) | $92.70 | $92.69 | $0.00 | $0.00 | $185.39 | $0.00 |
| 2023 | 18857 | COUNTY - COUNTY LEVIES (CE, DD, VET, MH) | $40.46 | $40.44 | $0.00 | $0.00 | $80.90 | $0.00 |
| 2023 | 18857 | CONSERVE - CONSERVATION FUTURES | $1.22 | $1.21 | $0.00 | $0.00 | $2.43 | $0.00 |
| 2023 | 18857 | COROADS - COUNTY ROADS (ROADS, DIV TO CE) | $32.73 | $32.72 | $0.00 | $0.00 | $65.45 | $0.00 |
| 2023 | 18857 | PORTPT - PORT DISTRICT | $17.05 | $17.03 | $0.00 | $0.00 | $34.08 | $0.00 |
| 2023 | 18857 | PUD1 - PUD #1 | $2.68 | $2.68 | $0.00 | $0.00 | $5.36 | $0.00 |
| 2023 | 18857 | LIB1 - LIBRARY DIST #1 | $12.66 | $12.66 | $0.00 | $0.00 | $25.32 | $0.00 |
| 2023 | 18857 | HD2 - HOSP DIST #2 | $2.36 | $2.36 | $0.00 | $0.00 | $4.72 | $0.00 |
| 2023 | 18857 | SD49 - SCHOOL DIST #49 | $43.33 | $43.33 | $0.00 | $0.00 | $86.66 | $0.00 |
| 2023 | 18857 | FD1 - FIRE DISTRICT #1 | $33.32 | $33.32 | $0.00 | $0.00 | $66.64 | $0.00 |
| 2023 | 18857 | EMS1 - FIRE DIST #1 EMS | $14.18 | $14.17 | $0.00 | $0.00 | $28.35 | $0.00 |
| 2023 | 18857 | FPLCA - DNR Landowner Contingency Assmt | $3.00 | $3.00 | $0.00 | $0.00 | $6.00 | $0.00 |
| 2023 | 18857 | JCCD - JC Conservation District | $2.53 | $2.53 | $0.00 | $0.00 | $5.06 | $0.00 |
| 2023 | 18857 | NWA - Noxious Weed Assessment | $2.15 | $2.15 | $0.00 | $0.00 | $4.30 | $0.00 |
| 2023 | 18857 | WAT - Clean Water District | $12.00 | $12.00 | $0.00 | $0.00 | $24.00 | $0.00 |
| 2023 | 18857 | TOTAL: | $312.37 | $312.29 | $0.00 | $0.00 | $624.66 | $0.00 |
|
| 2023 | 18857 | $312.37 | $312.29 | $0.00 | $0.00 | $624.66 | $0.00 |
Values
| (+) Improvement Homesite Value: | + | $0 | |
| (+) Improvement Non-Homesite Value: | + | $55,595 | |
| (+) Land Homesite Value: | + | $0 | |
| (+) Land Non-Homesite Value: | + | $110,250 | |
| (+) Curr Use (HS): | + | $0 | $0 |
| (+) Curr Use (NHS): | + | $0 | $0 |
| | | -------------------------- | |
| (=) Market Value: | = | $165,845 | |
| (–) Productivity Loss: | – | $0 | |
| | | -------------------------- | |
| (=) Subtotal: | = | $165,845 | |
| (+) Senior Appraised Value: | + | $0 | |
| (+) Non-Senior Appraised Value: | + | $165,845 | |
| | | -------------------------- | |
| (=) Total Appraised Value: | = | $165,845 | |
| (–) Senior Exemption Loss: | – | $0 | |
| (–) Exemption Loss: | – | $0 | |
| | | -------------------------- | |
| (=) Taxable Value: | = | $165,845 | |
Taxing Jurisdiction
| Owner: | JACOB N PERRITT-CRAVEY | | |
| % Ownership: | 100.0000000000% | | |
| Total Value: | N/A | | |
| Tax Area: | 0211 - 1-49F1E1H2L1 |
| CE | COUNTY CURRENT EXPENSE | N/A | N/A | N/A | N/A | | |
| CNTYDD | DEVELOPMENTAL DISABILITIES | N/A | N/A | N/A | N/A | | |
| CNTYVET | VETERANS RELIEF | N/A | N/A | N/A | N/A | | |
| MENTAL | MENTAL HEALTH | N/A | N/A | N/A | N/A | | |
| ROADS | COUNTY ROADS | N/A | N/A | N/A | N/A | | |
| HOSP2CASH | HOSP DIST #2 GENERAL | N/A | N/A | N/A | N/A | | |
| SCH49CP | SCHOOL DIST #49 CAP PROJ | N/A | N/A | N/A | N/A | | |
| SCH49MO | SCHOOL DIST #49 EP & O | N/A | N/A | N/A | N/A | | |
| CONSERVE | CONSERVATION FUTURES | N/A | N/A | N/A | N/A | | |
| EMS1 | FIRE DIST #1 EMS | N/A | N/A | N/A | N/A | | |
| FD1 | FIRE DIST #1 GENERAL | N/A | N/A | N/A | N/A | | |
| LIB1 | LIBRARY DIST #1 GENERAL | N/A | N/A | N/A | N/A | | |
| PORTPT | PORT OF PT GENERAL | N/A | N/A | N/A | N/A | | |
| PORTPTIDD | PORT OF PT IDD 2019 | N/A | N/A | N/A | N/A | | |
| PUD1 | PUD #1 GENERAL | N/A | N/A | N/A | N/A | | |
| STATE | STATE SCHOOL PART 1 | N/A | N/A | N/A | N/A | | |
| STATE2 | STATE SCHOOL PART 2 | N/A | N/A | N/A | N/A | | |
| | Total Tax Rate: | N/A | | | | | |
| | | | | Taxes w/Current Exemptions: | N/A | | |
| | | | | Taxes w/o Exemptions: | N/A | | |
Improvement / Building
| Improvement #1: | Residential Bldg | State Code: | 11 | 1348.0 sqft | Value: | $55,595 |
| Bathrooms (#): | 2 (FULL) | Bedrooms (#): | 2 | | Exterior Wall: | SI/ST | Foundation: | CONPR | | Heating/Cooling: | OTHER | Roof Cover: | COMP |
|
| | Type | Description | Class CD | Sub Class CD | Year Built | Area |
| | MA | Main Area | 4 | 1S | 2025 | 1348.0 |
| | CARPTN | Carport W/O Floor | 3 | 1S | 2025 | 462.0 |
| | SHED | Shed (Table Not Dep) | 4 | 1S | 2025 | 140.0 |
Sketch
Property Image
Land
| 1 | 4635-1355S | | 0.0000 | 0.00 | 0.00 | 0.00 | 1.00 | $110,250 | $0 |
Roll Value History
| 2026 | N/A | N/A | N/A | N/A | N/A |
| 2025 | $55,595 | $110,250 | $0 | $165,845 | $165,845 |
| 2024 | $0 | $94,500 | $0 | $94,500 | $94,500 |
| 2023 | $0 | $90,000 | $0 | $90,000 | $90,000 |
| 2022 | $0 | $78,750 | $0 | $78,750 | $78,750 |
Deed and Sales History
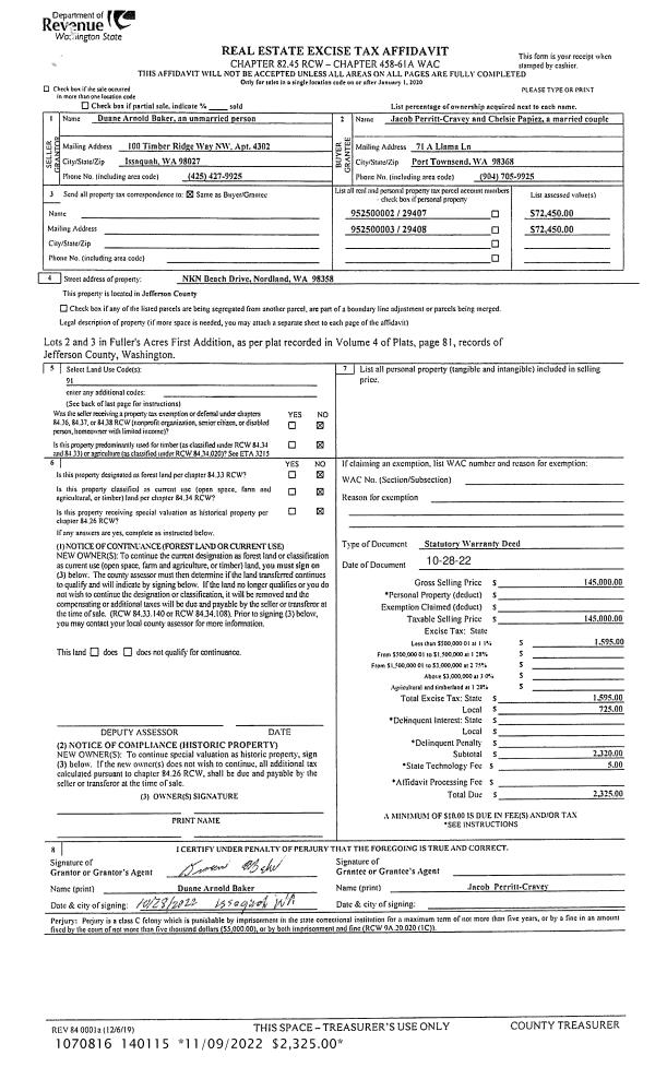
| 1 | 05/16/2025 | QCD | Quit Claim Deed | JACOB PERRITT CRAVEY & CHELSIE PAPIEZ | JACOB N PERRITT-CRAVEY | | | | 144295 | |
| 2 | 10/28/2022 | SWD | Statutory Warranty Deed | DUANE ARNOLD BAKER | JACOB PERRITT CRAVEY & CHELSIE PAPIEZ | | | $145,000.00 | 140115 | |
|   | |
Payout Agreement
| No payout information available.. |