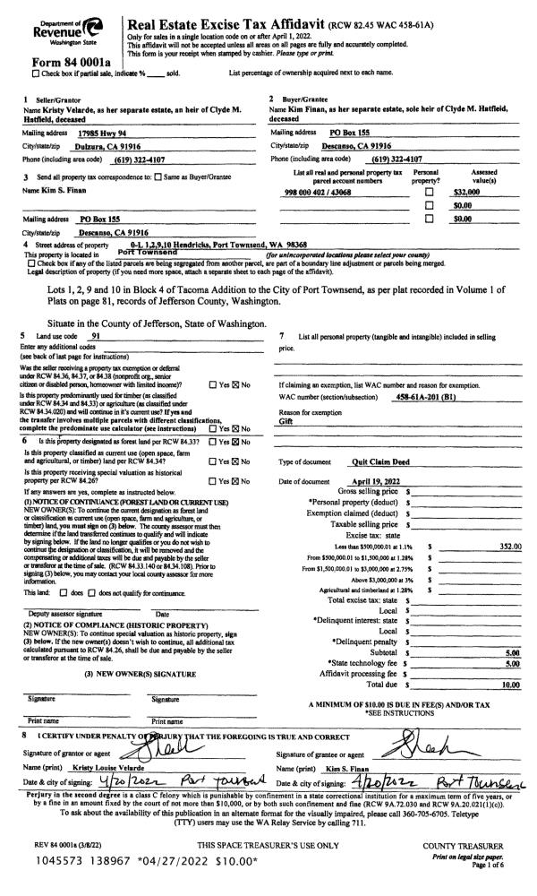
Property
Account |
| Property ID: | 29424 | Abbreviated Legal Description: | GALLEON VIEW ESTATES LOT 8 |
| Parcel # / Geo ID: | 952700008 | Agent Code: | |
| Type: | Real | | |
| Tax Area: | 0110 - C-50F1E1H2 | Land Use Code | 11 |
| Open Space: | N | DFL | N |
| Historic Property: | N | Remodel Property: | N |
| Multi-Family Redevelopment: | N | | |
| Township: | 30N | Section: | 10 |
| Range: | 1W |
Location |
| Address: | 8 KANU DR PORT TOWNSEND, WA 98368 | Mapsco: | 054/008 |
| Neighborhood: | GALLEON VIEW ESTATES, ISLAND VISTA, and TAX #14 15/30/1W | Map ID: | |
| Neighborhood CD: | 6230 |
Owner |
| Name: | MARGO GROVES SEPARATE PROPERTY TRUST | Owner ID: | 106574 |
| Mailing Address: | MARGO SUZANNE GROVES TRUSTEE 8 KANU DRIVE PORT TOWNSEND, WA 98368-3075 | % Ownership: | 100.0000000000% |
| | | Exemptions: | |
Pay Tax Due
Select the appropriate checkbox next to the year to be paid. Multiple years may be selected.
*Convenience Fee not included
Taxes and Assessment Details
Property Tax Information as of
03/11/2026
Click on "Statement Details" to expand or collapse a tax statement.
* Please enter a valid date ** Please enter a valid date *
Statement Details |
| 2026 | 18739 | STATE - STATE LEVY (SCHOOL) | $1155.52 | $1155.51 | $0.00 | $0.00 | $0.00 | $2311.03 |
| 2026 | 18739 | COUNTY - COUNTY LEVIES (CE, DD, VET, MH) | $461.98 | $461.97 | $0.00 | $0.00 | $0.00 | $923.95 |
| 2026 | 18739 | CONSERVE - CONSERVATION FUTURES | $13.86 | $13.85 | $0.00 | $0.00 | $0.00 | $27.71 |
| 2026 | 18739 | CITYPT - CITY OF PT | $655.73 | $655.73 | $0.00 | $0.00 | $0.00 | $1311.46 |
| 2026 | 18739 | PORTPT - PORT DISTRICT | $186.58 | $186.57 | $0.00 | $0.00 | $0.00 | $373.15 |
| 2026 | 18739 | PUD1 - PUD #1 | $30.05 | $30.05 | $0.00 | $0.00 | $0.00 | $60.10 |
| 2026 | 18739 | HD2 - HOSP DIST #2 | $26.95 | $26.94 | $0.00 | $0.00 | $0.00 | $53.89 |
| 2026 | 18739 | SD50 - SCHOOL DIST #50 | $915.42 | $915.42 | $0.00 | $0.00 | $0.00 | $1830.84 |
| 2026 | 18739 | FD1 - FIRE DISTRICT #1 | $611.76 | $611.76 | $0.00 | $0.00 | $0.00 | $1223.52 |
| 2026 | 18739 | EMS1 - FIRE DIST #1 EMS | $235.22 | $235.21 | $0.00 | $0.00 | $0.00 | $470.43 |
| 2026 | 18739 | JCCD - JC Conservation District | $2.55 | $2.55 | $0.00 | $0.00 | $0.00 | $5.10 |
| 2026 | 18739 | NWA - Noxious Weed Assessment | $2.98 | $2.97 | $0.00 | $0.00 | $0.00 | $5.95 |
| 2026 | 18739 | TOTAL: | $4298.60 | $4298.53 | $0.00 | $0.00 | $0.00 | $8597.13 |
|
| 2026 | 18739 | $4298.60 | $4298.53 | $0.00 | $0.00 | $0.00 | $8597.13 |
Statement Details |
| 2025 | 18798 | STATE - STATE LEVY (SCHOOL) | $1141.44 | $1141.42 | $0.00 | $0.00 | $2282.86 | $0.00 |
| 2025 | 18798 | COUNTY - COUNTY LEVIES (CE, DD, VET, MH) | $448.86 | $448.86 | $0.00 | $0.00 | $897.72 | $0.00 |
| 2025 | 18798 | CONSERVE - CONSERVATION FUTURES | $13.46 | $13.46 | $0.00 | $0.00 | $26.92 | $0.00 |
| 2025 | 18798 | CITYPT - CITY OF PT | $647.31 | $647.30 | $0.00 | $0.00 | $1294.61 | $0.00 |
| 2025 | 18798 | PORTPT - PORT DISTRICT | $183.17 | $183.16 | $0.00 | $0.00 | $366.33 | $0.00 |
| 2025 | 18798 | PUD1 - PUD #1 | $29.37 | $29.37 | $0.00 | $0.00 | $58.74 | $0.00 |
| 2025 | 18798 | HD2 - HOSP DIST #2 | $26.19 | $26.19 | $0.00 | $0.00 | $52.38 | $0.00 |
| 2025 | 18798 | SD50 - SCHOOL DIST #50 | $834.20 | $834.19 | $0.00 | $0.00 | $1668.39 | $0.00 |
| 2025 | 18798 | FD1 - FIRE DISTRICT #1 | $592.32 | $592.32 | $0.00 | $0.00 | $1184.64 | $0.00 |
| 2025 | 18798 | EMS1 - FIRE DIST #1 EMS | $227.83 | $227.82 | $0.00 | $0.00 | $455.65 | $0.00 |
| 2025 | 18798 | JCCD - JC Conservation District | $2.55 | $2.55 | $0.00 | $0.00 | $5.10 | $0.00 |
| 2025 | 18798 | NWA - Noxious Weed Assessment | $2.15 | $2.15 | $0.00 | $0.00 | $4.30 | $0.00 |
| 2025 | 18798 | TOTAL: | $4148.85 | $4148.79 | $0.00 | $0.00 | $8297.64 | $0.00 |
|
| 2025 | 18798 | $4148.85 | $4148.79 | $0.00 | $0.00 | $8297.64 | $0.00 |
Statement Details |
| 2024 | 18835 | STATE - STATE LEVY (SCHOOL) | $1095.46 | $1095.46 | $0.00 | $0.00 | $2190.92 | $0.00 |
| 2024 | 18835 | COUNTY - COUNTY LEVIES (CE, DD, VET, MH) | $468.77 | $468.74 | $0.00 | $0.00 | $937.51 | $0.00 |
| 2024 | 18835 | CONSERVE - CONSERVATION FUTURES | $14.06 | $14.05 | $0.00 | $0.00 | $28.11 | $0.00 |
| 2024 | 18835 | CITYPT - CITY OF PT | $669.79 | $669.78 | $0.00 | $0.00 | $1339.57 | $0.00 |
| 2024 | 18835 | PORTPT - PORT DISTRICT | $193.62 | $193.61 | $0.00 | $0.00 | $387.23 | $0.00 |
| 2024 | 18835 | PUD1 - PUD #1 | $30.79 | $30.79 | $0.00 | $0.00 | $61.58 | $0.00 |
| 2024 | 18835 | HD2 - HOSP DIST #2 | $27.35 | $27.35 | $0.00 | $0.00 | $54.70 | $0.00 |
| 2024 | 18835 | SD50 - SCHOOL DIST #50 | $886.29 | $886.28 | $0.00 | $0.00 | $1772.57 | $0.00 |
| 2024 | 18835 | FD1 - FIRE DISTRICT #1 | $619.81 | $619.81 | $0.00 | $0.00 | $1239.62 | $0.00 |
| 2024 | 18835 | EMS1 - FIRE DIST #1 EMS | $236.75 | $236.74 | $0.00 | $0.00 | $473.49 | $0.00 |
| 2024 | 18835 | JCCD - JC Conservation District | $2.55 | $2.55 | $0.00 | $0.00 | $5.10 | $0.00 |
| 2024 | 18835 | NWA - Noxious Weed Assessment | $2.15 | $2.15 | $0.00 | $0.00 | $4.30 | $0.00 |
| 2024 | 18835 | TOTAL: | $4247.39 | $4247.31 | $0.00 | $0.00 | $8494.70 | $0.00 |
|
| 2024 | 18835 | $4247.39 | $4247.31 | $0.00 | $0.00 | $8494.70 | $0.00 |
Statement Details |
| 2023 | 18872 | STATE - STATE LEVY (SCHOOL) | $1108.78 | $1108.78 | $0.00 | $0.00 | $2217.56 | $0.00 |
| 2023 | 18872 | COUNTY - COUNTY LEVIES (CE, DD, VET, MH) | $483.85 | $483.82 | $0.00 | $0.00 | $967.67 | $0.00 |
| 2023 | 18872 | CONSERVE - CONSERVATION FUTURES | $14.51 | $14.51 | $0.00 | $0.00 | $29.02 | $0.00 |
| 2023 | 18872 | CITYPT - CITY OF PT | $683.83 | $683.82 | $0.00 | $0.00 | $1367.65 | $0.00 |
| 2023 | 18872 | PORTPT - PORT DISTRICT | $203.82 | $203.81 | $0.00 | $0.00 | $407.63 | $0.00 |
| 2023 | 18872 | PUD1 - PUD #1 | $32.07 | $32.07 | $0.00 | $0.00 | $64.14 | $0.00 |
| 2023 | 18872 | HD2 - HOSP DIST #2 | $28.24 | $28.23 | $0.00 | $0.00 | $56.47 | $0.00 |
| 2023 | 18872 | SD50 - SCHOOL DIST #50 | $879.84 | $879.84 | $0.00 | $0.00 | $1759.68 | $0.00 |
| 2023 | 18872 | FD1 - FIRE DISTRICT #1 | $398.59 | $398.58 | $0.00 | $0.00 | $797.17 | $0.00 |
| 2023 | 18872 | EMS1 - FIRE DIST #1 EMS | $169.55 | $169.55 | $0.00 | $0.00 | $339.10 | $0.00 |
| 2023 | 18872 | JCCD - JC Conservation District | $2.55 | $2.55 | $0.00 | $0.00 | $5.10 | $0.00 |
| 2023 | 18872 | NWA - Noxious Weed Assessment | $2.15 | $2.15 | $0.00 | $0.00 | $4.30 | $0.00 |
| 2023 | 18872 | TOTAL: | $4007.78 | $4007.71 | $0.00 | $0.00 | $8015.49 | $0.00 |
|
| 2023 | 18872 | $4007.78 | $4007.71 | $0.00 | $0.00 | $8015.49 | $0.00 |
Values
| (+) Improvement Homesite Value: | + | $0 | |
| (+) Improvement Non-Homesite Value: | + | $671,196 | |
| (+) Land Homesite Value: | + | $0 | |
| (+) Land Non-Homesite Value: | + | $334,000 | |
| (+) Curr Use (HS): | + | $0 | $0 |
| (+) Curr Use (NHS): | + | $0 | $0 |
| | | -------------------------- | |
| (=) Market Value: | = | $1,005,196 | |
| (–) Productivity Loss: | – | $0 | |
| | | -------------------------- | |
| (=) Subtotal: | = | $1,005,196 | |
| (+) Senior Appraised Value: | + | $0 | |
| (+) Non-Senior Appraised Value: | + | $1,005,196 | |
| | | -------------------------- | |
| (=) Total Appraised Value: | = | $1,005,196 | |
| (–) Senior Exemption Loss: | – | $0 | |
| (–) Exemption Loss: | – | $0 | |
| | | -------------------------- | |
| (=) Taxable Value: | = | $1,005,196 | |
Taxing Jurisdiction
| Owner: | MARGO GROVES SEPARATE PROPERTY TRUST | | |
| % Ownership: | 100.0000000000% | | |
| Total Value: | $1,005,196 | | |
| Tax Area: | 0110 - C-50F1E1H2 |
| CE | COUNTY CURRENT EXPENSE | 0.9034619479 | $1,005,196 | $1,005,196 | $908.16 | | |
| CNTYDD | DEVELOPMENTAL DISABILITIES | 0.0052121823 | $1,005,196 | $1,005,196 | $5.24 | | |
| CNTYVET | VETERANS RELIEF | 0.0052777810 | $1,005,196 | $1,005,196 | $5.31 | | |
| MENTAL | MENTAL HEALTH | 0.0052121823 | $1,005,196 | $1,005,196 | $5.24 | | |
| PTGEN | CITY OF PT GENERAL | 0.8551967795 | $1,005,196 | $1,005,196 | $859.64 | | |
| PTLLL | CITY OF PT - LIBRARY LID LIFT | 0.4010114288 | $1,005,196 | $1,005,196 | $403.10 | | |
| PTMVBOND | CITY OF PT MV BOND | 0.0484717981 | $1,005,196 | $1,005,196 | $48.72 | | |
| HOSP2CASH | HOSP DIST #2 GENERAL | 0.0536075306 | $1,005,196 | $1,005,196 | $53.89 | | |
| SCH50BOND | SCHOOL DIST #50 BOND 2016 | 0.5377451389 | $1,005,196 | $1,005,196 | $540.54 | | |
| SCH50CP | SCHOOL DIST #50 CAP PROJ | 0.4573475088 | $1,005,196 | $1,005,196 | $459.72 | | |
| SCH50MO | SCHOOL DIST #50 EP & O | 0.8262822886 | $1,005,196 | $1,005,196 | $830.58 | | |
| CONSERVE | CONSERVATION FUTURES | 0.0275621078 | $1,005,196 | $1,005,196 | $27.71 | | |
| EMS1 | FIRE DIST #1 EMS | 0.4679948282 | $1,005,196 | $1,005,196 | $470.43 | | |
| FD1 | FIRE DIST #1 GENERAL | 1.2171942929 | $1,005,196 | $1,005,196 | $1,223.52 | | |
| PORTPT | PORT OF PT GENERAL | 0.1134941229 | $1,005,196 | $1,005,196 | $114.08 | | |
| PORTPTIDD | PORT OF PT IDD 2019 | 0.2577346692 | $1,005,196 | $1,005,196 | $259.07 | | |
| PUD1 | PUD #1 GENERAL | 0.0597888892 | $1,005,196 | $1,005,196 | $60.10 | | |
| STATE | STATE SCHOOL PART 1 | 1.4940692947 | $1,005,196 | $1,005,196 | $1,501.83 | | |
| STATE2 | STATE SCHOOL PART 2 | 0.8050170049 | $1,005,196 | $1,005,196 | $809.20 | | |
| | Total Tax Rate: | 8.5416817766 | | | | | |
| | | | | Taxes w/Current Exemptions: | $8,586.08 | | |
| | | | | Taxes w/o Exemptions: | $8,586.08 | | |
Improvement / Building
| Improvement #1: | Residential Bldg | State Code: | 11 | 1536.0 sqft | Value: | $671,196 |
| Bathrooms (#): | 2 (FULL) | Bathrooms (#): | 1 (HALF) | | Bedrooms (#): | 3 | Exterior Wall: | SI/ST | | Floor Construction: | FRAME | Foundation: | CONPR | | Heating/Cooling: | F/A | Inside Verify: | YES-FIX | | Roof Cover: | COMP |   |   |
|
| | Type | Description | Class CD | Sub Class CD | Year Built | Area |
| | MA | Main Area | 5- | 1S | 1989 | 1536.0 |
| | PATIO | House Patio | 5 | 1S | 1989 | 448.0 |
| | HDECK | House Deck | 5 | 1S | 1989 | 348.0 |
| | GATT | House Attached Garage | 5 | 1S | 1989 | 624.0 |
| | BSMTF | House basement finished | 5 | 1S | 1989 | 1536.0 |
Sketch
Property Image
Land
| 1 | 6230-1535F | | 0.0000 | 0.00 | 0.00 | 0.00 | 0.00 | $334,000 | $0 |
Roll Value History
| 2026 | N/A | N/A | N/A | N/A | N/A |
| 2025 | $671,196 | $334,000 | $0 | $1,005,196 | $1,005,196 |
| 2024 | $617,977 | $334,000 | $0 | $951,977 | $951,977 |
| 2023 | $617,977 | $329,000 | $0 | $946,977 | $946,977 |
| 2022 | $617,977 | $324,000 | $0 | $941,977 | $941,977 |
Deed and Sales History
| 1 | 02/03/2022 | QCD | Quit Claim Deed | MARGO S GROVES | MARGO GROVES SEPARATE PROPERTY TRUST | | | | 138685 | |
| 2 | 02/03/2022 | SWD | Statutory Warranty Deed | PATRICIA R LANDIS | MARGO S GROVES | | | $1,025,000.00 | 138513 | |
| 3 | 02/03/2022 | QCD | Quit Claim Deed | ROBERT HUNTER | MARGO S GROVES | | | | 138514 | |
| 4 | 07/28/2005 | PRD | Personal Representatives Deed | LANDIS, ROBERT P ESTATE O | LANDIS, PATRICIA R | | | $0.00 | 104313 | 0 |
| 5 | 11/30/1998 | SWD | Statutory Warranty Deed | CLEMENS, GLENN T/GAIL P | LANDIS, ROBERT P/SR & PATRICIA | 0 | 0 | $215,000.00 | 85784 | 0 |
Payout Agreement
| No payout information available.. |