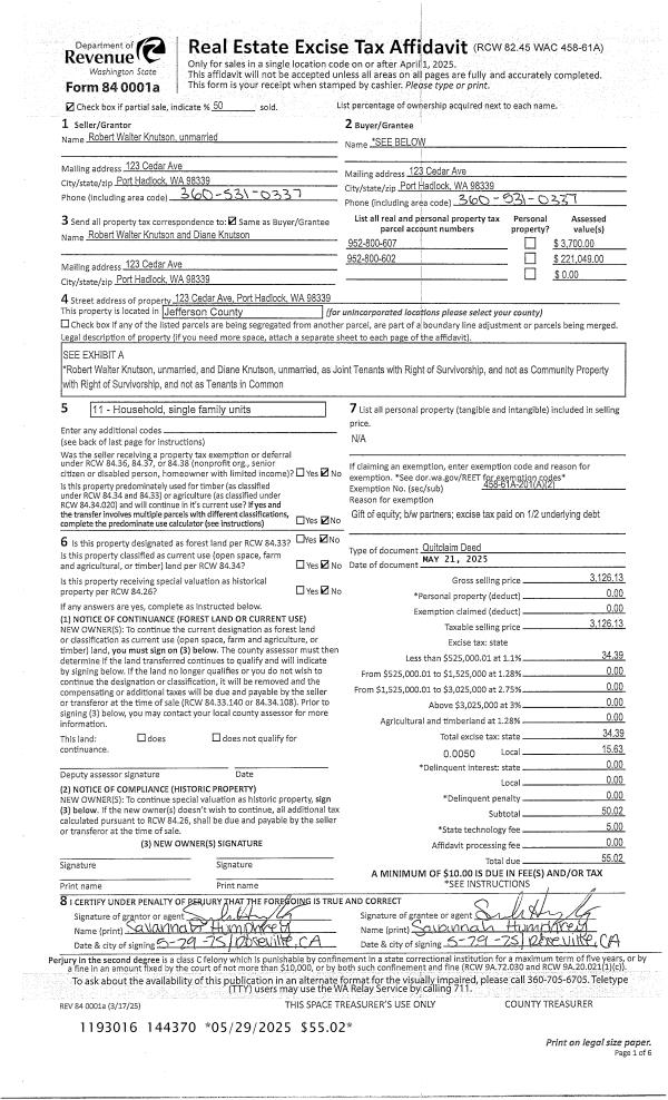
| 1 | 05/21/2025 | QCD | Quit Claim Deed | ROBERT W KNUTSON | DIANE KNUTSON | | | | 144370 | |
| 2 | 07/23/2013 | SWD | Statutory Warranty Deed | | ROBERT W KNUTSON | | | $126,000.00 | 119657 | |
|   | |
| 3 | 10/03/2008 | WD | Warranty Deed | CITIFINANCIAL MORTGAGE CO | POPP, MARY K/JOHN D | 0 | 0 | $104,900.00 | 112023 | 0 |
|   | |
| 4 | 04/09/2008 | TRED | Trustee Deed | QUALITY LOAN SERVICE CORP | CITIFINANCIAL MORTGAGE CO | | | $0.00 | 111106 | 0 |
| 5 | 01/14/1999 | SWD | Statutory Warranty Deed | BROOLING, SUSAN E | SMITH, RICHARD L/THERESA M | 0 | 0 | $93,778.00 | 86195 | 0 |
|   | |
| 6 | 03/30/1994 | QCD | Quit Claim Deed | MATHEWS, GERALD D | BROOLING, DAVID/SUSAN | 0 | 0 | $0.00 | 73719 | 0 |