Property
Account |
| Property ID: | 29485 | Abbreviated Legal Description: | GARTEN ESTATES LOT 9 SUBJ TO EASE/REST OF RECORD |
| Parcel # / Geo ID: | 952900009 | Agent Code: | |
| Type: | Real | | |
| Tax Area: | 0213 - 1-49F1E1H2L1 | Land Use Code | 11 |
| Open Space: | N | DFL | N |
| Historic Property: | N | Remodel Property: | N |
| Multi-Family Redevelopment: | N | | |
| Township: | 28N | Section: | 34 |
| Range: | 1E |
Location |
| Address: | 31 GEORGE LESLIE DR PORT LUDLOW, WA 98365 | Mapsco: | 026/028 |
| Neighborhood: | S34 T28N R1E/SHORT PLATS/MADRONA VISTA | Map ID: | |
| Neighborhood CD: | 3380 |
Owner |
| Name: | SCHORES FAMILY LIVING TRUST | Owner ID: | 26787 |
| Mailing Address: | DAVID O & WEI ZHOU SCHORES TRUSTEES 750 BLUE SKY DR PORT TOWNSEND, WA 98368-9691 | % Ownership: | 100.0000000000% |
| | | Exemptions: | |
Pay Tax Due
There is currently No Amount Due on this property.
Taxes and Assessment Details
Property Tax Information as of
03/11/2026
Click on "Statement Details" to expand or collapse a tax statement.
* Please enter a valid date ** Please enter a valid date *
Statement Details |
| | TOTAL: | $0.00 | $0.00 | $0.00 | $0.00 | $0.00 | $0.00 |
|
| | $0.00 | $0.00 | $0.00 | $0.00 | $0.00 | $0.00 |
Values
| (+) Improvement Homesite Value: | + | $0 | |
| (+) Improvement Non-Homesite Value: | + | $393,174 | |
| (+) Land Homesite Value: | + | $0 | |
| (+) Land Non-Homesite Value: | + | $103,500 | |
| (+) Curr Use (HS): | + | $0 | $0 |
| (+) Curr Use (NHS): | + | $0 | $0 |
| | | -------------------------- | |
| (=) Market Value: | = | $496,674 | |
| (–) Productivity Loss: | – | $0 | |
| | | -------------------------- | |
| (=) Subtotal: | = | $496,674 | |
| (+) Senior Appraised Value: | + | $0 | |
| (+) Non-Senior Appraised Value: | + | $496,674 | |
| | | -------------------------- | |
| (=) Total Appraised Value: | = | $496,674 | |
| (–) Senior Exemption Loss: | – | $0 | |
| (–) Exemption Loss: | – | $0 | |
| | | -------------------------- | |
| (=) Taxable Value: | = | $496,674 | |
Taxing Jurisdiction
| Owner: | SCHORES FAMILY LIVING TRUST | | |
| % Ownership: | 100.0000000000% | | |
| Total Value: | $496,674 | | |
| Tax Area: | 0213 - 1-49F1E1H2L1 |
| CE | COUNTY CURRENT EXPENSE | 0.9034619479 | $496,674 | $496,674 | $448.73 | | |
| CNTYDD | DEVELOPMENTAL DISABILITIES | 0.0052121823 | $496,674 | $496,674 | $2.59 | | |
| CNTYVET | VETERANS RELIEF | 0.0052777810 | $496,674 | $496,674 | $2.62 | | |
| MENTAL | MENTAL HEALTH | 0.0052121823 | $496,674 | $496,674 | $2.59 | | |
| ROADS | COUNTY ROADS | 0.7415066410 | $496,674 | $496,674 | $368.29 | | |
| ROADSCU | COUNTY ROADS TO CUR EXP | 0.0000000000 | $496,674 | $496,674 | $0.00 | | |
| HOSP2CASH | HOSP DIST #2 GENERAL | 0.0536075306 | $496,674 | $496,674 | $26.63 | | |
| SCH49CP | SCHOOL DIST #49 CAP PROJ | 0.6279093905 | $496,674 | $496,674 | $311.87 | | |
| SCH49MO | SCHOOL DIST #49 EP & O | 0.6376483602 | $496,674 | $496,674 | $316.70 | | |
| CONSERVE | CONSERVATION FUTURES | 0.0275621078 | $496,674 | $496,674 | $13.69 | | |
| EMS1 | FIRE DIST #1 EMS | 0.4679948282 | $496,674 | $496,674 | $232.44 | | |
| FD1 | FIRE DIST #1 GENERAL | 1.2171942929 | $496,674 | $496,674 | $604.55 | | |
| LIB1 | LIBRARY DIST #1 GENERAL | 0.2868827388 | $496,674 | $496,674 | $142.49 | | |
| PORTPT | PORT OF PT GENERAL | 0.1134941229 | $496,674 | $496,674 | $56.37 | | |
| PORTPTIDD | PORT OF PT IDD 2019 | 0.2577346692 | $496,674 | $496,674 | $128.01 | | |
| PUD1 | PUD #1 GENERAL | 0.0597888892 | $496,674 | $496,674 | $29.70 | | |
| STATE | STATE SCHOOL PART 1 | 1.4940692947 | $496,674 | $496,674 | $742.07 | | |
| STATE2 | STATE SCHOOL PART 2 | 0.8050170049 | $496,674 | $496,674 | $399.83 | | |
| | Total Tax Rate: | 7.7095739644 | | | | | |
| | | | | Taxes w/Current Exemptions: | $3,829.17 | | |
| | | | | Taxes w/o Exemptions: | $3,829.17 | | |
Improvement / Building
| Improvement #1: | Residential Bldg | State Code: | 11 | 2126.0 sqft | Value: | $393,174 |
| Bathrooms (#): | 2 (FULL) | Bathrooms (#): | 1 (HALF) | | Bedrooms (#): | 4 | Exterior Wall: | SI/ST | | Floor Construction: | FRAME | Foundation: | CONPR | | Heating/Cooling: | F/A | Inside Verify: | NO | | Roof Cover: | COMP |   |   |
|
| | Type | Description | Class CD | Sub Class CD | Year Built | Area |
| | MA | Main Area | 3+ | 2S | 2004 | 859.0 |
| | MA2 | Second Floor Main Area | 3 | 2S | 2004 | 1267.0 |
| | HCPOR | House Concrete Porch | 3 | * | 2004 | 96.0 |
| | GBLTIN | Builtin Garage | 3 | * | 2004 | 408.0 |
| | CONCD | Concrete Drive | 3 | * | 2004 | 750.0 |
Sketch
Property Image
Land
| 1 | 3380-1275L | Lots in Garten Estates No/Some View | 0.0000 | 0.00 | 0.00 | 0.00 | 1.00 | $103,500 | $0 |
Roll Value History
| 2026 | N/A | N/A | N/A | N/A | N/A |
| 2025 | $393,174 | $103,500 | $0 | $496,674 | $496,674 |
| 2024 | $376,792 | $99,000 | $0 | $475,792 | $475,792 |
| 2023 | $376,792 | $85,000 | $0 | $461,792 | $461,792 |
| 2022 | $360,409 | $80,000 | $0 | $440,409 | $440,409 |
Deed and Sales History
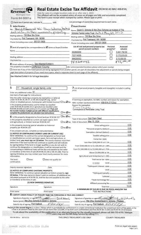
| 1 | 05/15/2024 | QCD | Quit Claim Deed | WEI ZHOU & DAVID SCHORES | SCHORES FAMILY LIVING TRUST | | | | 145591 | RERECORD |
| 2 | 05/15/2024 | QCD | Quit Claim Deed | WEI ZHOU & DAVID SCHORES | SCHORES FAMILY LIVING TRUST | | | | 142598 | |
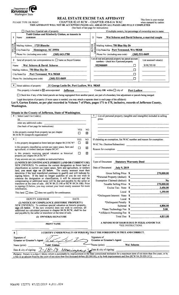
| 3 | 07/09/2019 | SWD | Statutory Warranty Deed | TODD GIAKAS | WEI ZHOU & DAVID SCHORES | | | $270,000.00 | 132771 | |
| 4 | 09/07/2004 | SWD | Statutory Warranty Deed | GE LAND LLC | GIAKAS, TODD & KIMBERLY | 0 | 0 | $170,457.00 | 101423 | 0 |
| 5 | 12/11/2003 | SWD | Statutory Warranty Deed | GARTEN, ROBERT L | NEW HOMES LLC | 0 | 0 | $28,000.00 | 99083 | 0 |
Payout Agreement
| No payout information available.. |