Property
Account |
| Property ID: | 29561 | Abbreviated Legal Description: | GLENNAN SUBURBAN ACRE BLK 4, LOT 2(W 1/2 OF S 94')LYING EAST OF RD & 1/20TH INT IN TL Q ADJ TO NOLTON AVE |
| Parcel # / Geo ID: | 953700408 | Agent Code: | |
| Type: | Real | | |
| Tax Area: | 0211 - 1-49F1E1H2L1 | Land Use Code | 91 |
| Open Space: | N | DFL | N |
| Historic Property: | N | Remodel Property: | N |
| Multi-Family Redevelopment: | N | | |
| Township: | 30N | Section: | 29 |
| Range: | 1E |
Location |
| Address: | | Mapsco: | 027/028 |
| Neighborhood: | GLENNANS LP INCLUDING JEANNETTE E CLARK & ORME SP | Map ID: | |
| Neighborhood CD: | 4538 |
Owner |
| Name: | ANDREW K & KELLY A HEINTZ | Owner ID: | 91008 |
| Mailing Address: | 45131 SE 130TH PL NORTH BEND, WA 98045-8761 | % Ownership: | 100.0000000000% |
| | | Exemptions: | |
Pay Tax Due
Select the appropriate checkbox next to the year to be paid. Multiple years may be selected.
*Convenience Fee not included
Taxes and Assessment Details
Property Tax Information as of
03/11/2026
Click on "Statement Details" to expand or collapse a tax statement.
* Please enter a valid date ** Please enter a valid date *
Statement Details |
| 2026 | 18875 | STATE - STATE LEVY (SCHOOL) | $198.40 | $198.38 | $0.00 | $0.00 | $0.00 | $396.78 |
| 2026 | 18875 | COUNTY - COUNTY LEVIES (CE, DD, VET, MH) | $79.32 | $79.31 | $0.00 | $0.00 | $0.00 | $158.63 |
| 2026 | 18875 | CONSERVE - CONSERVATION FUTURES | $2.38 | $2.38 | $0.00 | $0.00 | $0.00 | $4.76 |
| 2026 | 18875 | COROADS - COUNTY ROADS (ROADS, DIV TO CE) | $63.99 | $63.98 | $0.00 | $0.00 | $0.00 | $127.97 |
| 2026 | 18875 | PORTPT - PORT DISTRICT | $32.04 | $32.03 | $0.00 | $0.00 | $0.00 | $64.07 |
| 2026 | 18875 | PUD1 - PUD #1 | $5.16 | $5.16 | $0.00 | $0.00 | $0.00 | $10.32 |
| 2026 | 18875 | LIB1 - LIBRARY DIST #1 | $24.76 | $24.75 | $0.00 | $0.00 | $0.00 | $49.51 |
| 2026 | 18875 | HD2 - HOSP DIST #2 | $4.63 | $4.62 | $0.00 | $0.00 | $0.00 | $9.25 |
| 2026 | 18875 | SD49 - SCHOOL DIST #49 | $109.22 | $109.20 | $0.00 | $0.00 | $0.00 | $218.42 |
| 2026 | 18875 | FD1 - FIRE DISTRICT #1 | $105.04 | $105.03 | $0.00 | $0.00 | $0.00 | $210.07 |
| 2026 | 18875 | EMS1 - FIRE DIST #1 EMS | $40.39 | $40.38 | $0.00 | $0.00 | $0.00 | $80.77 |
| 2026 | 18875 | FPLCA - DNR Landowner Contingency Assmt | $3.00 | $3.00 | $0.00 | $0.00 | $0.00 | $6.00 |
| 2026 | 18875 | JCCD - JC Conservation District | $2.53 | $2.53 | $0.00 | $0.00 | $0.00 | $5.06 |
| 2026 | 18875 | NWA - Noxious Weed Assessment | $2.98 | $2.97 | $0.00 | $0.00 | $0.00 | $5.95 |
| 2026 | 18875 | WAT - Clean Water District | $13.00 | $13.00 | $0.00 | $0.00 | $0.00 | $26.00 |
| 2026 | 18875 | TOTAL: | $686.84 | $686.72 | $0.00 | $0.00 | $0.00 | $1373.56 |
|
| 2026 | 18875 | $686.84 | $686.72 | $0.00 | $0.00 | $0.00 | $1373.56 |
Statement Details |
| 2025 | 18934 | STATE - STATE LEVY (SCHOOL) | $126.00 | $125.98 | $0.00 | $0.00 | $251.98 | $0.00 |
| 2025 | 18934 | COUNTY - COUNTY LEVIES (CE, DD, VET, MH) | $49.55 | $49.54 | $0.00 | $0.00 | $99.09 | $0.00 |
| 2025 | 18934 | CONSERVE - CONSERVATION FUTURES | $1.49 | $1.48 | $0.00 | $0.00 | $2.97 | $0.00 |
| 2025 | 18934 | COROADS - COUNTY ROADS (ROADS, DIV TO CE) | $39.70 | $39.69 | $0.00 | $0.00 | $79.39 | $0.00 |
| 2025 | 18934 | PORTPT - PORT DISTRICT | $20.22 | $20.21 | $0.00 | $0.00 | $40.43 | $0.00 |
| 2025 | 18934 | PUD1 - PUD #1 | $3.24 | $3.24 | $0.00 | $0.00 | $6.48 | $0.00 |
| 2025 | 18934 | LIB1 - LIBRARY DIST #1 | $15.36 | $15.35 | $0.00 | $0.00 | $30.71 | $0.00 |
| 2025 | 18934 | HD2 - HOSP DIST #2 | $2.89 | $2.89 | $0.00 | $0.00 | $5.78 | $0.00 |
| 2025 | 18934 | SD49 - SCHOOL DIST #49 | $67.53 | $67.51 | $0.00 | $0.00 | $135.04 | $0.00 |
| 2025 | 18934 | FD1 - FIRE DISTRICT #1 | $65.38 | $65.38 | $0.00 | $0.00 | $130.76 | $0.00 |
| 2025 | 18934 | EMS1 - FIRE DIST #1 EMS | $25.15 | $25.14 | $0.00 | $0.00 | $50.29 | $0.00 |
| 2025 | 18934 | FPLCA - DNR Landowner Contingency Assmt | $3.00 | $3.00 | $0.00 | $0.00 | $6.00 | $0.00 |
| 2025 | 18934 | JCCD - JC Conservation District | $2.53 | $2.53 | $0.00 | $0.00 | $5.06 | $0.00 |
| 2025 | 18934 | NWA - Noxious Weed Assessment | $2.15 | $2.15 | $0.00 | $0.00 | $4.30 | $0.00 |
| 2025 | 18934 | WAT - Clean Water District | $13.00 | $13.00 | $0.00 | $0.00 | $26.00 | $0.00 |
| 2025 | 18934 | TOTAL: | $437.19 | $437.09 | $0.00 | $0.00 | $874.28 | $0.00 |
|
| 2025 | 18934 | $437.19 | $437.09 | $0.00 | $0.00 | $874.28 | $0.00 |
Statement Details |
| 2024 | 18971 | STATE - STATE LEVY (SCHOOL) | $63.71 | $63.70 | $0.00 | $0.00 | $127.41 | $0.00 |
| 2024 | 18971 | COUNTY - COUNTY LEVIES (CE, DD, VET, MH) | $27.28 | $27.24 | $0.00 | $0.00 | $54.52 | $0.00 |
| 2024 | 18971 | CONSERVE - CONSERVATION FUTURES | $0.82 | $0.81 | $0.00 | $0.00 | $1.63 | $0.00 |
| 2024 | 18971 | COROADS - COUNTY ROADS (ROADS, DIV TO CE) | $21.94 | $21.93 | $0.00 | $0.00 | $43.87 | $0.00 |
| 2024 | 18971 | PORTPT - PORT DISTRICT | $11.27 | $11.25 | $0.00 | $0.00 | $22.52 | $0.00 |
| 2024 | 18971 | PUD1 - PUD #1 | $1.79 | $1.79 | $0.00 | $0.00 | $3.58 | $0.00 |
| 2024 | 18971 | LIB1 - LIBRARY DIST #1 | $8.49 | $8.48 | $0.00 | $0.00 | $16.97 | $0.00 |
| 2024 | 18971 | HD2 - HOSP DIST #2 | $1.59 | $1.59 | $0.00 | $0.00 | $3.18 | $0.00 |
| 2024 | 18971 | SD49 - SCHOOL DIST #49 | $28.46 | $28.44 | $0.00 | $0.00 | $56.90 | $0.00 |
| 2024 | 18971 | FD1 - FIRE DISTRICT #1 | $36.05 | $36.04 | $0.00 | $0.00 | $72.09 | $0.00 |
| 2024 | 18971 | EMS1 - FIRE DIST #1 EMS | $13.77 | $13.77 | $0.00 | $0.00 | $27.54 | $0.00 |
| 2024 | 18971 | FP - DNR Forest Fire Protection Assmt | $8.50 | $8.50 | $0.00 | $0.00 | $17.00 | $0.00 |
| 2024 | 18971 | FPLCA - DNR Landowner Contingency Assmt | $3.00 | $3.00 | $0.00 | $0.00 | $6.00 | $0.00 |
| 2024 | 18971 | JCCD - JC Conservation District | $2.53 | $2.53 | $0.00 | $0.00 | $5.06 | $0.00 |
| 2024 | 18971 | NWA - Noxious Weed Assessment | $2.15 | $2.15 | $0.00 | $0.00 | $4.30 | $0.00 |
| 2024 | 18971 | WAT - Clean Water District | $12.50 | $12.50 | $0.00 | $0.00 | $25.00 | $0.00 |
| 2024 | 18971 | FP ADMIN - FP ADMIN | $0.50 | $0.00 | $0.00 | $0.00 | $0.50 | $0.00 |
| 2024 | 18971 | TOTAL: | $244.35 | $243.72 | $0.00 | $0.00 | $488.07 | $0.00 |
|
| 2024 | 18971 | $244.35 | $243.72 | $0.00 | $0.00 | $488.07 | $0.00 |
Statement Details |
| 2023 | 19008 | STATE - STATE LEVY (SCHOOL) | $64.83 | $64.82 | $0.00 | $0.00 | $129.65 | $0.00 |
| 2023 | 19008 | COUNTY - COUNTY LEVIES (CE, DD, VET, MH) | $28.30 | $28.28 | $0.00 | $0.00 | $56.58 | $0.00 |
| 2023 | 19008 | CONSERVE - CONSERVATION FUTURES | $0.85 | $0.85 | $0.00 | $0.00 | $1.70 | $0.00 |
| 2023 | 19008 | COROADS - COUNTY ROADS (ROADS, DIV TO CE) | $22.89 | $22.88 | $0.00 | $0.00 | $45.77 | $0.00 |
| 2023 | 19008 | PORTPT - PORT DISTRICT | $11.93 | $11.91 | $0.00 | $0.00 | $23.84 | $0.00 |
| 2023 | 19008 | PUD1 - PUD #1 | $1.88 | $1.87 | $0.00 | $0.00 | $3.75 | $0.00 |
| 2023 | 19008 | LIB1 - LIBRARY DIST #1 | $8.86 | $8.85 | $0.00 | $0.00 | $17.71 | $0.00 |
| 2023 | 19008 | HD2 - HOSP DIST #2 | $1.66 | $1.65 | $0.00 | $0.00 | $3.31 | $0.00 |
| 2023 | 19008 | SD49 - SCHOOL DIST #49 | $30.31 | $30.30 | $0.00 | $0.00 | $60.61 | $0.00 |
| 2023 | 19008 | FD1 - FIRE DISTRICT #1 | $23.31 | $23.30 | $0.00 | $0.00 | $46.61 | $0.00 |
| 2023 | 19008 | EMS1 - FIRE DIST #1 EMS | $9.92 | $9.91 | $0.00 | $0.00 | $19.83 | $0.00 |
| 2023 | 19008 | FP - DNR Forest Fire Protection Assmt | $8.50 | $8.50 | $0.00 | $0.00 | $17.00 | $0.00 |
| 2023 | 19008 | FPLCA - DNR Landowner Contingency Assmt | $3.00 | $3.00 | $0.00 | $0.00 | $6.00 | $0.00 |
| 2023 | 19008 | JCCD - JC Conservation District | $2.53 | $2.53 | $0.00 | $0.00 | $5.06 | $0.00 |
| 2023 | 19008 | NWA - Noxious Weed Assessment | $2.15 | $2.15 | $0.00 | $0.00 | $4.30 | $0.00 |
| 2023 | 19008 | WAT - Clean Water District | $12.00 | $12.00 | $0.00 | $0.00 | $24.00 | $0.00 |
| 2023 | 19008 | FP ADMIN - FP ADMIN | $0.50 | $0.00 | $0.00 | $0.00 | $0.50 | $0.00 |
| 2023 | 19008 | TOTAL: | $233.42 | $232.80 | $0.00 | $0.00 | $466.22 | $0.00 |
|
| 2023 | 19008 | $233.42 | $232.80 | $0.00 | $0.00 | $466.22 | $0.00 |
Values
| (+) Improvement Homesite Value: | + | $0 | |
| (+) Improvement Non-Homesite Value: | + | $0 | |
| (+) Land Homesite Value: | + | $0 | |
| (+) Land Non-Homesite Value: | + | $172,582 | |
| (+) Curr Use (HS): | + | $0 | $0 |
| (+) Curr Use (NHS): | + | $0 | $0 |
| | | -------------------------- | |
| (=) Market Value: | = | $172,582 | |
| (–) Productivity Loss: | – | $0 | |
| | | -------------------------- | |
| (=) Subtotal: | = | $172,582 | |
| (+) Senior Appraised Value: | + | $0 | |
| (+) Non-Senior Appraised Value: | + | $172,582 | |
| | | -------------------------- | |
| (=) Total Appraised Value: | = | $172,582 | |
| (–) Senior Exemption Loss: | – | $0 | |
| (–) Exemption Loss: | – | $0 | |
| | | -------------------------- | |
| (=) Taxable Value: | = | $172,582 | |
Taxing Jurisdiction
| Owner: | ANDREW K & KELLY A HEINTZ | | |
| % Ownership: | 100.0000000000% | | |
| Total Value: | $172,582 | | |
| Tax Area: | 0211 - 1-49F1E1H2L1 |
| CE | COUNTY CURRENT EXPENSE | 0.9034619479 | $172,582 | $172,582 | $155.92 | | |
| CNTYDD | DEVELOPMENTAL DISABILITIES | 0.0052121823 | $172,582 | $172,582 | $0.90 | | |
| CNTYVET | VETERANS RELIEF | 0.0052777810 | $172,582 | $172,582 | $0.91 | | |
| MENTAL | MENTAL HEALTH | 0.0052121823 | $172,582 | $172,582 | $0.90 | | |
| ROADS | COUNTY ROADS | 0.7415066410 | $172,582 | $172,582 | $127.97 | | |
| ROADSCU | COUNTY ROADS TO CUR EXP | 0.0000000000 | $172,582 | $172,582 | $0.00 | | |
| HOSP2CASH | HOSP DIST #2 GENERAL | 0.0536075306 | $172,582 | $172,582 | $9.25 | | |
| SCH49CP | SCHOOL DIST #49 CAP PROJ | 0.6279093905 | $172,582 | $172,582 | $108.37 | | |
| SCH49MO | SCHOOL DIST #49 EP & O | 0.6376483602 | $172,582 | $172,582 | $110.05 | | |
| CONSERVE | CONSERVATION FUTURES | 0.0275621078 | $172,582 | $172,582 | $4.76 | | |
| EMS1 | FIRE DIST #1 EMS | 0.4679948282 | $172,582 | $172,582 | $80.77 | | |
| FD1 | FIRE DIST #1 GENERAL | 1.2171942929 | $172,582 | $172,582 | $210.07 | | |
| LIB1 | LIBRARY DIST #1 GENERAL | 0.2868827388 | $172,582 | $172,582 | $49.51 | | |
| PORTPT | PORT OF PT GENERAL | 0.1134941229 | $172,582 | $172,582 | $19.59 | | |
| PORTPTIDD | PORT OF PT IDD 2019 | 0.2577346692 | $172,582 | $172,582 | $44.48 | | |
| PUD1 | PUD #1 GENERAL | 0.0597888892 | $172,582 | $172,582 | $10.32 | | |
| STATE | STATE SCHOOL PART 1 | 1.4940692947 | $172,582 | $172,582 | $257.85 | | |
| STATE2 | STATE SCHOOL PART 2 | 0.8050170049 | $172,582 | $172,582 | $138.93 | | |
| | Total Tax Rate: | 7.7095739644 | | | | | |
| | | | | Taxes w/Current Exemptions: | $1,330.55 | | |
| | | | | Taxes w/o Exemptions: | $1,330.55 | | |
Improvement / Building
Sketch
| No sketches available for this property. |
Property Image
Land
| 1 | 4538-1355S | | 0.0000 | 0.00 | 0.00 | 0.00 | 1.00 | $172,500 | $0 |
| 2 | 9301F | | 0.0000 | 0.00 | 0.00 | 0.00 | 0.00 | $82 | $0 |
Roll Value History
| 2026 | N/A | N/A | N/A | N/A | N/A |
| 2025 | $0 | $172,582 | $0 | $172,582 | $172,582 |
| 2024 | $0 | $105,075 | $0 | $105,075 | $105,075 |
| 2023 | $0 | $55,071 | $0 | $55,071 | $55,071 |
| 2022 | $0 | $55,071 | $0 | $55,071 | $55,071 |
Deed and Sales History
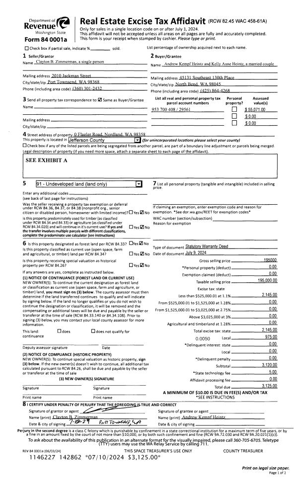
| 1 | 07/09/2024 | SWD | Statutory Warranty Deed | CLAYTON ZIMMERMAN | ANDREW K & KELLY A HEINTZ | | | $195,000.00 | 142862 | |
| 2 | 06/18/2013 | PRD | Personal Representatives Deed | MICHAELLA V GRIFFITH | CLAYTON ZIMMERMAN | | | $45,000.00 | 119448 | |
Payout Agreement
| No payout information available.. |