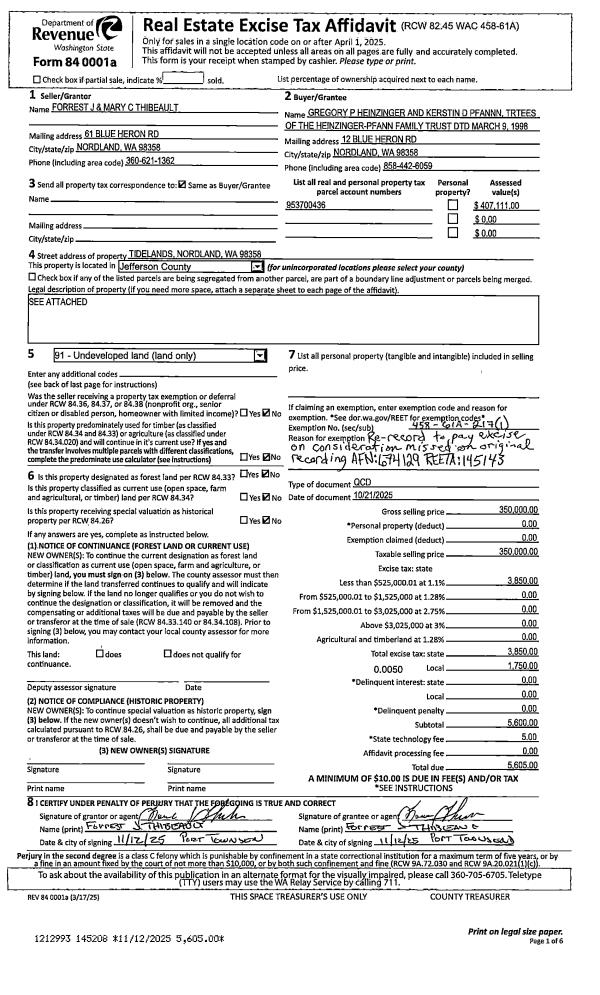
| 1 | 10/21/2025 | QCD | Quit Claim Deed | FORREST J & MARY C THIBEAULT | HEINZINGER PFANN FAMILY TRUST | | | $350,000.00 | 145208 | TO COMPLETE BLA RE-REC |
|   | |
| 2 | 10/21/2025 | BLA | Boundary Line Adjustment | FORREST J & MARY C THIBEAULT | FORREST THIBEAULT | | | | 145142 | |
| 3 | 10/21/2025 | BLA | Boundary Line Adjustment | FORREST J & MARY C THIBEAULT | HEINZINGER PFANN FAMILY TRUST | | | | 145142 | |
| 4 | 10/21/2025 | QCD | Quit Claim Deed | | HEINZINGER PFANN FAMILY TRUST | | | | 145143 | SEE #145208 |
| 5 | 04/10/2017 | QCD | Quit Claim Deed | NEVA ARLENE JOHNSON | FORREST J & MARY C THIBEAULT | | | | 127496 | |
| 6 | 04/04/2016 | BLA | Boundary Line Adjustment | NEVA ARLENE JOHNSON | FORREST J & MARY C THIBEAULT | | | | 125399 | |
| 7 | 05/24/2013 | SWD | Statutory Warranty Deed | GLADYS E HEINZINGER TSTE | FORREST J & MARY C THIBEAULT | | | $319,000.00 | 119321 | |
| 8 | 07/12/2012 | QCD | Quit Claim Deed | HEINZINGER, GLADYS E | HEINZINGER TRUST, G E | 0 | 0 | $0.00 | 118039 | 0 |
| 9 | 09/03/2002 | QCD | Quit Claim Deed | D & G HEINZINGER | DAVID R/GLADYS E HEINZINGER | 0 | 0 | $0.00 | 95554 | 0 |
| 10 | 06/23/1995 | QCD | Quit Claim Deed | HEINZINGER, DAVID R/GLADY | HEINZINGER, D & G/TRUST | 0 | 0 | $0.00 | 77208 | 0 |