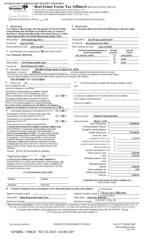
Property
Account |
| Property ID: | 29592 | Abbreviated Legal Description: | NORDBY-CLARK SHORT PLAT LOT 4 |
| Parcel # / Geo ID: | 953700441 | Agent Code: | |
| Type: | Real | | |
| Tax Area: | 0211 - 1-49F1E1H2L1 | Land Use Code | 91 |
| Open Space: | N | DFL | N |
| Historic Property: | N | Remodel Property: | N |
| Multi-Family Redevelopment: | N | | |
| Township: | 30N | Section: | 29 |
| Range: | 1E |
Location |
| Address: | 8340 FLAGLER RD NORDLAND, WA 98358 | Mapsco: | 238/053 |
| Neighborhood: | GLENNANS LP INCLUDING JEANNETTE E CLARK & ORME SP | Map ID: | |
| Neighborhood CD: | 4538 |
Owner |
| Name: | VINCENZINA & SCOTT E ROBERTSON | Owner ID: | 108498 |
| Mailing Address: | 8340 FLAGLER RD NORDLAND, WA 98358 | % Ownership: | 100.0000000000% |
| | | Exemptions: | |
Pay Tax Due
There is currently No Amount Due on this property.
Taxes and Assessment Details
Property Tax Information as of
03/10/2026
Click on "Statement Details" to expand or collapse a tax statement.
* Please enter a valid date ** Please enter a valid date *
Statement Details |
| | TOTAL: | $0.00 | $0.00 | $0.00 | $0.00 | $0.00 | $0.00 |
|
| | $0.00 | $0.00 | $0.00 | $0.00 | $0.00 | $0.00 |
Values
| (+) Improvement Homesite Value: | + | $0 | |
| (+) Improvement Non-Homesite Value: | + | $0 | |
| (+) Land Homesite Value: | + | $0 | |
| (+) Land Non-Homesite Value: | + | $218,121 | |
| (+) Curr Use (HS): | + | $0 | $0 |
| (+) Curr Use (NHS): | + | $0 | $0 |
| | | -------------------------- | |
| (=) Market Value: | = | $218,121 | |
| (–) Productivity Loss: | – | $0 | |
| | | -------------------------- | |
| (=) Subtotal: | = | $218,121 | |
| (+) Senior Appraised Value: | + | $0 | |
| (+) Non-Senior Appraised Value: | + | $218,121 | |
| | | -------------------------- | |
| (=) Total Appraised Value: | = | $218,121 | |
| (–) Senior Exemption Loss: | – | $0 | |
| (–) Exemption Loss: | – | $0 | |
| | | -------------------------- | |
| (=) Taxable Value: | = | $218,121 | |
Taxing Jurisdiction
| Owner: | VINCENZINA & SCOTT E ROBERTSON | | |
| % Ownership: | 100.0000000000% | | |
| Total Value: | $218,121 | | |
| Tax Area: | 0211 - 1-49F1E1H2L1 |
| CE | COUNTY CURRENT EXPENSE | 0.9034619479 | $218,121 | $218,121 | $197.06 | | |
| CNTYDD | DEVELOPMENTAL DISABILITIES | 0.0052121823 | $218,121 | $218,121 | $1.14 | | |
| CNTYVET | VETERANS RELIEF | 0.0052777810 | $218,121 | $218,121 | $1.15 | | |
| MENTAL | MENTAL HEALTH | 0.0052121823 | $218,121 | $218,121 | $1.14 | | |
| ROADS | COUNTY ROADS | 0.7415066410 | $218,121 | $218,121 | $161.74 | | |
| ROADSCU | COUNTY ROADS TO CUR EXP | 0.0000000000 | $218,121 | $218,121 | $0.00 | | |
| HOSP2CASH | HOSP DIST #2 GENERAL | 0.0536075306 | $218,121 | $218,121 | $11.69 | | |
| SCH49CP | SCHOOL DIST #49 CAP PROJ | 0.6279093905 | $218,121 | $218,121 | $136.96 | | |
| SCH49MO | SCHOOL DIST #49 EP & O | 0.6376483602 | $218,121 | $218,121 | $139.08 | | |
| CONSERVE | CONSERVATION FUTURES | 0.0275621078 | $218,121 | $218,121 | $6.01 | | |
| EMS1 | FIRE DIST #1 EMS | 0.4679948282 | $218,121 | $218,121 | $102.08 | | |
| FD1 | FIRE DIST #1 GENERAL | 1.2171942929 | $218,121 | $218,121 | $265.50 | | |
| LIB1 | LIBRARY DIST #1 GENERAL | 0.2868827388 | $218,121 | $218,121 | $62.58 | | |
| PORTPT | PORT OF PT GENERAL | 0.1134941229 | $218,121 | $218,121 | $24.76 | | |
| PORTPTIDD | PORT OF PT IDD 2019 | 0.2577346692 | $218,121 | $218,121 | $56.22 | | |
| PUD1 | PUD #1 GENERAL | 0.0597888892 | $218,121 | $218,121 | $13.04 | | |
| STATE | STATE SCHOOL PART 1 | 1.4940692947 | $218,121 | $218,121 | $325.89 | | |
| STATE2 | STATE SCHOOL PART 2 | 0.8050170049 | $218,121 | $218,121 | $175.59 | | |
| | Total Tax Rate: | 7.7095739644 | | | | | |
| | | | | Taxes w/Current Exemptions: | $1,681.63 | | |
| | | | | Taxes w/o Exemptions: | $1,681.63 | | |
Improvement / Building
Sketch
| No sketches available for this property. |
Property Image
Land
| 1 | 4538-1375S | Residential Sites 1+/- Ac Territorial Views | 1.0000 | 43560.00 | 0.00 | 0.00 | 1.00 | $115,000 | $0 |
| 2 | 1571A | Terr/Mtn/No View <6 Acres | 4.2700 | 186001.20 | 0.00 | 0.00 | 0.00 | $103,121 | $0 |
Roll Value History
| 2026 | N/A | N/A | N/A | N/A | N/A |
| 2025 | $0 | $218,121 | $0 | $218,121 | $218,121 |
| 2024 | $0 | $199,154 | $0 | $199,154 | $199,154 |
| 2023 | $0 | $185,400 | $0 | $185,400 | $185,400 |
| 2022 | $0 | $151,240 | $0 | $151,240 | $151,240 |
Deed and Sales History
| 1 | 03/07/2023 | SWD | Statutory Warranty Deed | ELAINE ROSECRANTS FAMILY TRUST | VINCENZINA & SCOTT E ROBERTSON | | | $275,000.00 | 140630 | |
| 2 | 02/06/2019 | QCD | Quit Claim Deed | ELAINE L ROSENCRANTS | ELAINE ROSECRANTS FAMILY TRUST | | | | 131834 | |
| 3 | 08/06/2013 | QCD | Quit Claim Deed | | ELAINE L ROSENCRANTS | | | | 119738 | |
| 4 | 07/15/2013 | QCD | Quit Claim Deed | DAVID T CLARK | GEORGE & NONA NORDBY | | | | 119691 | |
| 5 | 11/01/1994 | QCD | Quit Claim Deed | NORDBY, GEORGE R/CLARK, D | CLARK, DAVID T | 0 | 0 | $0.00 | 81466 | 0 |
Payout Agreement
| No payout information available.. |