Property
Account |
| Property ID: | 29638 | Abbreviated Legal Description: | GO-ONNA BEACH TR LOT 6 |
| Parcel # / Geo ID: | 954900006 | Agent Code: | |
| Type: | Real | | |
| Tax Area: | 0323 - 1-48F2E2P1H2C2L1 | Land Use Code | 18 |
| Open Space: | N | DFL | N |
| Historic Property: | N | Remodel Property: | N |
| Multi-Family Redevelopment: | N | | |
| Township: | 26N | Section: | 27 |
| Range: | 1W |
Location |
| Address: | 193 E GO-ONNA DR QUILCENE, WA 98376 | Mapsco: | 103/040 |
| Neighborhood: | GO-ONNA BEACH TRACTS | Map ID: | |
| Neighborhood CD: | 2255 |
Owner |
| Name: | ANDREW R DEMPSEY | Owner ID: | 14404 |
| Mailing Address: | 27184 WASHINGTON BLVD NE KINGSTON, WA 98346-7713 | % Ownership: | 100.0000000000% |
| | | Exemptions: | |
Pay Tax Due
Select the appropriate checkbox next to the year to be paid. Multiple years may be selected.
*Convenience Fee not included
Taxes and Assessment Details
Property Tax Information as of
03/12/2026
Click on "Statement Details" to expand or collapse a tax statement.
* Please enter a valid date ** Please enter a valid date *
Statement Details |
| 2026 | 18950 | STATE - STATE LEVY (SCHOOL) | $35.29 | $35.28 | $0.00 | $0.00 | $0.00 | $70.57 |
| 2026 | 18950 | COUNTY - COUNTY LEVIES (CE, DD, VET, MH) | $14.11 | $14.10 | $0.00 | $0.00 | $0.00 | $28.21 |
| 2026 | 18950 | CONSERVE - CONSERVATION FUTURES | $0.43 | $0.42 | $0.00 | $0.00 | $0.00 | $0.85 |
| 2026 | 18950 | COROADS - COUNTY ROADS (ROADS, DIV TO CE) | $11.38 | $11.38 | $0.00 | $0.00 | $0.00 | $22.76 |
| 2026 | 18950 | PORTPT - PORT DISTRICT | $5.70 | $5.69 | $0.00 | $0.00 | $0.00 | $11.39 |
| 2026 | 18950 | PUD1 - PUD #1 | $0.92 | $0.92 | $0.00 | $0.00 | $0.00 | $1.84 |
| 2026 | 18950 | LIB1 - LIBRARY DIST #1 | $4.41 | $4.40 | $0.00 | $0.00 | $0.00 | $8.81 |
| 2026 | 18950 | HD2 - HOSP DIST #2 | $0.83 | $0.82 | $0.00 | $0.00 | $0.00 | $1.65 |
| 2026 | 18950 | SD48 - SCHOOL DIST #48 | $21.67 | $21.67 | $0.00 | $0.00 | $0.00 | $43.34 |
| 2026 | 18950 | FD2 - FIRE DISTRICT #2 | $11.59 | $11.58 | $0.00 | $0.00 | $0.00 | $23.17 |
| 2026 | 18950 | EMS2 - FIRE DIST #2 EMS | $6.53 | $6.52 | $0.00 | $0.00 | $0.00 | $13.05 |
| 2026 | 18950 | CEM2 - CEMETERY DIST #2 | $0.37 | $0.37 | $0.00 | $0.00 | $0.00 | $0.74 |
| 2026 | 18950 | PARK1 - PARK & REC DIST #1 | $2.27 | $2.26 | $0.00 | $0.00 | $0.00 | $4.53 |
| 2026 | 18950 | FPLCA - DNR Landowner Contingency Assmt | $3.00 | $3.00 | $0.00 | $0.00 | $0.00 | $6.00 |
| 2026 | 18950 | JCCD - JC Conservation District | $2.53 | $2.53 | $0.00 | $0.00 | $0.00 | $5.06 |
| 2026 | 18950 | NWA - Noxious Weed Assessment | $2.98 | $2.97 | $0.00 | $0.00 | $0.00 | $5.95 |
| 2026 | 18950 | WAT - Clean Water District | $13.00 | $13.00 | $0.00 | $0.00 | $0.00 | $26.00 |
| 2026 | 18950 | TOTAL: | $137.01 | $136.91 | $0.00 | $0.00 | $0.00 | $273.92 |
|
| 2026 | 18950 | $137.01 | $136.91 | $0.00 | $0.00 | $0.00 | $273.92 |
Statement Details |
| 2025 | 19009 | STATE - STATE LEVY (SCHOOL) | $36.81 | $36.79 | $0.00 | $0.00 | $73.60 | $0.00 |
| 2025 | 19009 | COUNTY - COUNTY LEVIES (CE, DD, VET, MH) | $14.48 | $14.46 | $0.00 | $0.00 | $28.94 | $0.00 |
| 2025 | 19009 | CONSERVE - CONSERVATION FUTURES | $0.44 | $0.43 | $0.00 | $0.00 | $0.87 | $0.00 |
| 2025 | 19009 | COROADS - COUNTY ROADS (ROADS, DIV TO CE) | $11.60 | $11.59 | $0.00 | $0.00 | $23.19 | $0.00 |
| 2025 | 19009 | PORTPT - PORT DISTRICT | $5.91 | $5.90 | $0.00 | $0.00 | $11.81 | $0.00 |
| 2025 | 19009 | PUD1 - PUD #1 | $0.95 | $0.94 | $0.00 | $0.00 | $1.89 | $0.00 |
| 2025 | 19009 | LIB1 - LIBRARY DIST #1 | $4.49 | $4.48 | $0.00 | $0.00 | $8.97 | $0.00 |
| 2025 | 19009 | HD2 - HOSP DIST #2 | $0.85 | $0.84 | $0.00 | $0.00 | $1.69 | $0.00 |
| 2025 | 19009 | SD48 - SCHOOL DIST #48 | $21.67 | $21.67 | $0.00 | $0.00 | $43.34 | $0.00 |
| 2025 | 19009 | FD2 - FIRE DISTRICT #2 | $11.97 | $11.96 | $0.00 | $0.00 | $23.93 | $0.00 |
| 2025 | 19009 | EMS2 - FIRE DIST #2 EMS | $6.74 | $6.73 | $0.00 | $0.00 | $13.47 | $0.00 |
| 2025 | 19009 | CEM2 - CEMETERY DIST #2 | $0.38 | $0.38 | $0.00 | $0.00 | $0.76 | $0.00 |
| 2025 | 19009 | PARK1 - PARK & REC DIST #1 | $1.75 | $1.75 | $0.00 | $0.00 | $3.50 | $0.00 |
| 2025 | 19009 | FPLCA - DNR Landowner Contingency Assmt | $3.00 | $3.00 | $0.00 | $0.00 | $6.00 | $0.00 |
| 2025 | 19009 | JCCD - JC Conservation District | $2.55 | $2.55 | $0.00 | $0.00 | $5.10 | $0.00 |
| 2025 | 19009 | NWA - Noxious Weed Assessment | $2.15 | $2.15 | $0.00 | $0.00 | $4.30 | $0.00 |
| 2025 | 19009 | WAT - Clean Water District | $13.00 | $13.00 | $0.00 | $0.00 | $26.00 | $0.00 |
| 2025 | 19009 | TOTAL: | $138.74 | $138.62 | $0.00 | $0.00 | $277.36 | $0.00 |
|
| 2025 | 19009 | $138.74 | $138.62 | $0.00 | $0.00 | $277.36 | $0.00 |
Statement Details |
| 2024 | 19046 | STATE - STATE LEVY (SCHOOL) | $33.97 | $33.95 | $0.00 | $0.00 | $67.92 | $0.00 |
| 2024 | 19046 | COUNTY - COUNTY LEVIES (CE, DD, VET, MH) | $14.54 | $14.52 | $0.00 | $0.00 | $29.06 | $0.00 |
| 2024 | 19046 | CONSERVE - CONSERVATION FUTURES | $0.44 | $0.43 | $0.00 | $0.00 | $0.87 | $0.00 |
| 2024 | 19046 | COROADS - COUNTY ROADS (ROADS, DIV TO CE) | $11.70 | $11.69 | $0.00 | $0.00 | $23.39 | $0.00 |
| 2024 | 19046 | PORTPT - PORT DISTRICT | $6.01 | $6.00 | $0.00 | $0.00 | $12.01 | $0.00 |
| 2024 | 19046 | PUD1 - PUD #1 | $0.96 | $0.95 | $0.00 | $0.00 | $1.91 | $0.00 |
| 2024 | 19046 | LIB1 - LIBRARY DIST #1 | $4.53 | $4.52 | $0.00 | $0.00 | $9.05 | $0.00 |
| 2024 | 19046 | HD2 - HOSP DIST #2 | $0.85 | $0.85 | $0.00 | $0.00 | $1.70 | $0.00 |
| 2024 | 19046 | SD48 - SCHOOL DIST #48 | $15.21 | $15.21 | $0.00 | $0.00 | $30.42 | $0.00 |
| 2024 | 19046 | FD2 - FIRE DISTRICT #2 | $12.08 | $12.08 | $0.00 | $0.00 | $24.16 | $0.00 |
| 2024 | 19046 | EMS2 - FIRE DIST #2 EMS | $6.80 | $6.80 | $0.00 | $0.00 | $13.60 | $0.00 |
| 2024 | 19046 | CEM2 - CEMETERY DIST #2 | $0.39 | $0.38 | $0.00 | $0.00 | $0.77 | $0.00 |
| 2024 | 19046 | PARK1 - PARK & REC DIST #1 | $1.70 | $1.69 | $0.00 | $0.00 | $3.39 | $0.00 |
| 2024 | 19046 | FPLCA - DNR Landowner Contingency Assmt | $3.00 | $3.00 | $0.00 | $0.00 | $6.00 | $0.00 |
| 2024 | 19046 | JCCD - JC Conservation District | $2.55 | $2.55 | $0.00 | $0.00 | $5.10 | $0.00 |
| 2024 | 19046 | NWA - Noxious Weed Assessment | $2.15 | $2.15 | $0.00 | $0.00 | $4.30 | $0.00 |
| 2024 | 19046 | WAT - Clean Water District | $12.50 | $12.50 | $0.00 | $0.00 | $25.00 | $0.00 |
| 2024 | 19046 | TOTAL: | $129.38 | $129.27 | $0.00 | $0.00 | $258.65 | $0.00 |
|
| 2024 | 19046 | $129.38 | $129.27 | $0.00 | $0.00 | $258.65 | $0.00 |
Statement Details |
| 2023 | 19083 | STATE - STATE LEVY (SCHOOL) | $24.36 | $24.34 | $0.00 | $0.00 | $48.70 | $0.00 |
| 2023 | 19083 | COUNTY - COUNTY LEVIES (CE, DD, VET, MH) | $10.63 | $10.62 | $0.00 | $0.00 | $21.25 | $0.00 |
| 2023 | 19083 | CONSERVE - CONSERVATION FUTURES | $0.32 | $0.32 | $0.00 | $0.00 | $0.64 | $0.00 |
| 2023 | 19083 | COROADS - COUNTY ROADS (ROADS, DIV TO CE) | $8.60 | $8.59 | $0.00 | $0.00 | $17.19 | $0.00 |
| 2023 | 19083 | PORTPT - PORT DISTRICT | $4.48 | $4.47 | $0.00 | $0.00 | $8.95 | $0.00 |
| 2023 | 19083 | PUD1 - PUD #1 | $0.71 | $0.70 | $0.00 | $0.00 | $1.41 | $0.00 |
| 2023 | 19083 | LIB1 - LIBRARY DIST #1 | $3.33 | $3.32 | $0.00 | $0.00 | $6.65 | $0.00 |
| 2023 | 19083 | HD2 - HOSP DIST #2 | $0.62 | $0.62 | $0.00 | $0.00 | $1.24 | $0.00 |
| 2023 | 19083 | SD48 - SCHOOL DIST #48 | $11.76 | $11.76 | $0.00 | $0.00 | $23.52 | $0.00 |
| 2023 | 19083 | FD2 - FIRE DISTRICT #2 | $9.23 | $9.22 | $0.00 | $0.00 | $18.45 | $0.00 |
| 2023 | 19083 | EMS2 - FIRE DIST #2 EMS | $5.17 | $5.17 | $0.00 | $0.00 | $10.34 | $0.00 |
| 2023 | 19083 | CEM2 - CEMETERY DIST #2 | $0.30 | $0.29 | $0.00 | $0.00 | $0.59 | $0.00 |
| 2023 | 19083 | PARK1 - PARK & REC DIST #1 | $1.16 | $1.15 | $0.00 | $0.00 | $2.31 | $0.00 |
| 2023 | 19083 | FPLCA - DNR Landowner Contingency Assmt | $3.00 | $3.00 | $0.00 | $0.00 | $6.00 | $0.00 |
| 2023 | 19083 | JCCD - JC Conservation District | $2.55 | $2.55 | $0.00 | $0.00 | $5.10 | $0.00 |
| 2023 | 19083 | NWA - Noxious Weed Assessment | $2.15 | $2.15 | $0.00 | $0.00 | $4.30 | $0.00 |
| 2023 | 19083 | WAT - Clean Water District | $12.00 | $12.00 | $0.00 | $0.00 | $24.00 | $0.00 |
| 2023 | 19083 | TOTAL: | $100.37 | $100.27 | $0.00 | $0.00 | $200.64 | $0.00 |
|
| 2023 | 19083 | $100.37 | $100.27 | $0.00 | $0.00 | $200.64 | $0.00 |
Values
| (+) Improvement Homesite Value: | + | $0 | |
| (+) Improvement Non-Homesite Value: | + | $792 | |
| (+) Land Homesite Value: | + | $0 | |
| (+) Land Non-Homesite Value: | + | $29,900 | |
| (+) Curr Use (HS): | + | $0 | $0 |
| (+) Curr Use (NHS): | + | $0 | $0 |
| | | -------------------------- | |
| (=) Market Value: | = | $30,692 | |
| (–) Productivity Loss: | – | $0 | |
| | | -------------------------- | |
| (=) Subtotal: | = | $30,692 | |
| (+) Senior Appraised Value: | + | $0 | |
| (+) Non-Senior Appraised Value: | + | $30,692 | |
| | | -------------------------- | |
| (=) Total Appraised Value: | = | $30,692 | |
| (–) Senior Exemption Loss: | – | $0 | |
| (–) Exemption Loss: | – | $0 | |
| | | -------------------------- | |
| (=) Taxable Value: | = | $30,692 | |
Taxing Jurisdiction
| Owner: | ANDREW R DEMPSEY | | |
| % Ownership: | 100.0000000000% | | |
| Total Value: | N/A | | |
| Tax Area: | 0323 - 1-48F2E2P1H2C2L1 |
| CE | COUNTY CURRENT EXPENSE | N/A | N/A | N/A | N/A | | |
| CNTYDD | DEVELOPMENTAL DISABILITIES | N/A | N/A | N/A | N/A | | |
| CNTYVET | VETERANS RELIEF | N/A | N/A | N/A | N/A | | |
| MENTAL | MENTAL HEALTH | N/A | N/A | N/A | N/A | | |
| ROADS | COUNTY ROADS | N/A | N/A | N/A | N/A | | |
| HOSP2CASH | HOSP DIST #2 GENERAL | N/A | N/A | N/A | N/A | | |
| SCH48MO | SCHOOL DIST #48 EP & O | N/A | N/A | N/A | N/A | | |
| CEM2 | CEMETERY DIST #2 GENERAL | N/A | N/A | N/A | N/A | | |
| CONSERVE | CONSERVATION FUTURES | N/A | N/A | N/A | N/A | | |
| FD2 | FIRE DIST #2 GENERAL | N/A | N/A | N/A | N/A | | |
| LIB1 | LIBRARY DIST #1 GENERAL | N/A | N/A | N/A | N/A | | |
| PARK1 | PARK & REC DIST #1 GENERAL | N/A | N/A | N/A | N/A | | |
| PORTPT | PORT OF PT GENERAL | N/A | N/A | N/A | N/A | | |
| PORTPTIDD | PORT OF PT IDD 2019 | N/A | N/A | N/A | N/A | | |
| PUD1 | PUD #1 GENERAL | N/A | N/A | N/A | N/A | | |
| STATE | STATE SCHOOL PART 1 | N/A | N/A | N/A | N/A | | |
| STATE2 | STATE SCHOOL PART 2 | N/A | N/A | N/A | N/A | | |
| EMS2 | FIRE DIST #2 EMS | N/A | N/A | N/A | N/A | | |
| | Total Tax Rate: | N/A | | | | | |
| | | | | Taxes w/Current Exemptions: | N/A | | |
| | | | | Taxes w/o Exemptions: | N/A | | |
Improvement / Building
| Improvement #1: | Residential Bldg | State Code: | 91 | 0.0 sqft | Value: | $792 |
Sketch
| No sketches available for this property. |
Property Image
Land
| 1 | 9801 | | 0.0000 | 0.00 | 0.00 | 0.00 | 1.00 | $4,600 | $0 |
| 2 | 2255-1283S | | 0.0000 | 0.00 | 0.00 | 0.00 | 1.00 | $25,300 | $0 |
Roll Value History
| 2026 | N/A | N/A | N/A | N/A | N/A |
| 2025 | $792 | $29,900 | $0 | $30,692 | $30,692 |
| 2024 | $792 | $29,900 | $0 | $30,692 | $30,692 |
| 2023 | $758 | $28,600 | $0 | $29,358 | $29,358 |
| 2022 | $689 | $20,000 | $0 | $20,689 | $20,689 |
Deed and Sales History
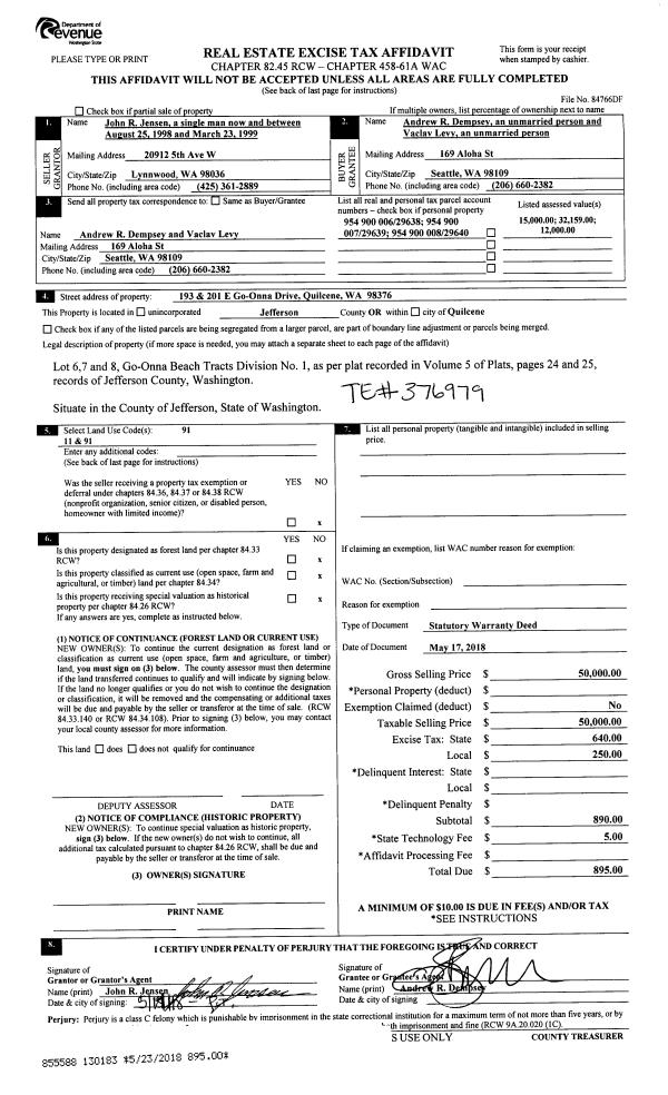
| 1 | 11/18/2018 | QCD | Quit Claim Deed | | | | | | 131543 | |
| 2 | 05/17/2018 | SWD | Statutory Warranty Deed | JOHN R JENSEN | ANDREW DEMPSEY | | | $50,000.00 | 130183 | |
|   | |
| 3 | 11/30/2011 | QCD | Quit Claim Deed | JENSEN TRSTE, JOHN R | JENSEN, JOHN R | 0 | 0 | $0.00 | 116890 | 0 |
| 4 | 01/31/2003 | QCD | Quit Claim Deed | JENSEN, JOHN R | JENSEN, JOHN R TRUST | 0 | 0 | $0.00 | 97468 | 0 |
| 5 | 04/11/2002 | SWD | Statutory Warranty Deed | KRAUT, FRED J | JENSEN, JOHN R | 0 | 0 | $12,000.00 | 94439 | 0 |
| 6 | 01/30/2000 | QCD | Quit Claim Deed | OLSEN, LYNN A | KRAUT, FRED J | 0 | 0 | $3,500.00 | 88994 | 0 |
| 7 | 08/10/1998 | QCD | Quit Claim Deed | KRAUT, FRED J/LINDA D | OLSON, LYNN A | 0 | 0 | $4,000.00 | 85209 | 0 |
| 8 | 07/06/1998 | SWD | Statutory Warranty Deed | SCHECHERT, MAE M | KRAUT, FRED J/LINDA D | 0 | 0 | $10,000.00 | 84810 | 0 |
Payout Agreement
| No payout information available.. |