Property
Account |
| Property ID: | 29674 | Abbreviated Legal Description: | GO-ONNA BEACH TR DIV 2 LOT 9 |
| Parcel # / Geo ID: | 955000009 | Agent Code: | |
| Type: | Real | | |
| Tax Area: | 0323 - 1-48F2E2P1H2C2L1 | Land Use Code | 91 |
| Open Space: | N | DFL | N |
| Historic Property: | N | Remodel Property: | N |
| Multi-Family Redevelopment: | N | | |
| Township: | 26N | Section: | 27 |
| Range: | 1W |
Location |
| Address: | 116 W GO-ONNA DR QUILCENE, WA 98376 | Mapsco: | 103/076 |
| Neighborhood: | GO-ONNA BEACH TRACTS | Map ID: | |
| Neighborhood CD: | 2255 |
Owner |
| Name: | FWPT INC | Owner ID: | 109561 |
| Mailing Address: | 2005 E SIMS WAY PORT TOWNSEND, WA 98368-6905 | % Ownership: | 100.0000000000% |
| | | Exemptions: | |
Pay Tax Due
There is currently No Amount Due on this property.
Taxes and Assessment Details
Property Tax Information as of
03/12/2026
Click on "Statement Details" to expand or collapse a tax statement.
* Please enter a valid date ** Please enter a valid date *
Statement Details |
| | TOTAL: | $0.00 | $0.00 | $0.00 | $0.00 | $0.00 | $0.00 |
|
| | $0.00 | $0.00 | $0.00 | $0.00 | $0.00 | $0.00 |
Values
| (+) Improvement Homesite Value: | + | $0 | |
| (+) Improvement Non-Homesite Value: | + | $0 | |
| (+) Land Homesite Value: | + | $0 | |
| (+) Land Non-Homesite Value: | + | $28,750 | |
| (+) Curr Use (HS): | + | $0 | $0 |
| (+) Curr Use (NHS): | + | $0 | $0 |
| | | -------------------------- | |
| (=) Market Value: | = | $28,750 | |
| (–) Productivity Loss: | – | $0 | |
| | | -------------------------- | |
| (=) Subtotal: | = | $28,750 | |
| (+) Senior Appraised Value: | + | $0 | |
| (+) Non-Senior Appraised Value: | + | $28,750 | |
| | | -------------------------- | |
| (=) Total Appraised Value: | = | $28,750 | |
| (–) Senior Exemption Loss: | – | $0 | |
| (–) Exemption Loss: | – | $0 | |
| | | -------------------------- | |
| (=) Taxable Value: | = | $28,750 | |
Taxing Jurisdiction
| Owner: | FWPT INC | | |
| % Ownership: | 100.0000000000% | | |
| Total Value: | $28,750 | | |
| Tax Area: | 0323 - 1-48F2E2P1H2C2L1 |
| CE | COUNTY CURRENT EXPENSE | 0.9034619479 | $28,750 | $28,750 | $25.97 | | |
| CNTYDD | DEVELOPMENTAL DISABILITIES | 0.0052121823 | $28,750 | $28,750 | $0.15 | | |
| CNTYVET | VETERANS RELIEF | 0.0052777810 | $28,750 | $28,750 | $0.15 | | |
| MENTAL | MENTAL HEALTH | 0.0052121823 | $28,750 | $28,750 | $0.15 | | |
| ROADS | COUNTY ROADS | 0.7415066410 | $28,750 | $28,750 | $21.32 | | |
| ROADSCU | COUNTY ROADS TO CUR EXP | 0.0000000000 | $28,750 | $28,750 | $0.00 | | |
| HOSP2CASH | HOSP DIST #2 GENERAL | 0.0536075306 | $28,750 | $28,750 | $1.54 | | |
| SCH48MO | SCHOOL DIST #48 EP & O | 1.4120478917 | $28,750 | $28,750 | $40.60 | | |
| CEM2 | CEMETERY DIST #2 GENERAL | 0.0241266154 | $28,750 | $28,750 | $0.69 | | |
| CONSERVE | CONSERVATION FUTURES | 0.0275621078 | $28,750 | $28,750 | $0.79 | | |
| FD2 | FIRE DIST #2 GENERAL | 0.7549976873 | $28,750 | $28,750 | $21.71 | | |
| LIB1 | LIBRARY DIST #1 GENERAL | 0.2868827388 | $28,750 | $28,750 | $8.25 | | |
| PARK1 | PARK & REC DIST #1 GENERAL | 0.1474441110 | $28,750 | $28,750 | $4.24 | | |
| PORTPT | PORT OF PT GENERAL | 0.1134941229 | $28,750 | $28,750 | $3.26 | | |
| PORTPTIDD | PORT OF PT IDD 2019 | 0.2577346692 | $28,750 | $28,750 | $7.41 | | |
| PUD1 | PUD #1 GENERAL | 0.0597888892 | $28,750 | $28,750 | $1.72 | | |
| STATE | STATE SCHOOL PART 1 | 1.4940692947 | $28,750 | $28,750 | $42.95 | | |
| STATE2 | STATE SCHOOL PART 2 | 0.8050170049 | $28,750 | $28,750 | $23.14 | | |
| EMS2 | FIRE DIST #2 EMS | 0.4251727858 | $28,750 | $28,750 | $12.22 | | |
| | Total Tax Rate: | 7.5226161838 | | | | | |
| | | | | Taxes w/Current Exemptions: | $216.26 | | |
| | | | | Taxes w/o Exemptions: | $216.26 | | |
Improvement / Building
Sketch
| No sketches available for this property. |
Property Image
Land
| 1 | 2255-1248S | Wooded Sloped Good View/Access Sites | 0.0000 | 0.00 | 0.00 | 0.00 | 1.00 | $28,750 | $0 |
Roll Value History
| 2026 | N/A | N/A | N/A | N/A | N/A |
| 2025 | $0 | $28,750 | $0 | $28,750 | $28,750 |
| 2024 | $0 | $28,750 | $0 | $28,750 | $28,750 |
| 2023 | $0 | $27,500 | $0 | $27,500 | $27,500 |
| 2022 | $0 | $25,000 | $0 | $25,000 | $25,000 |
Deed and Sales History
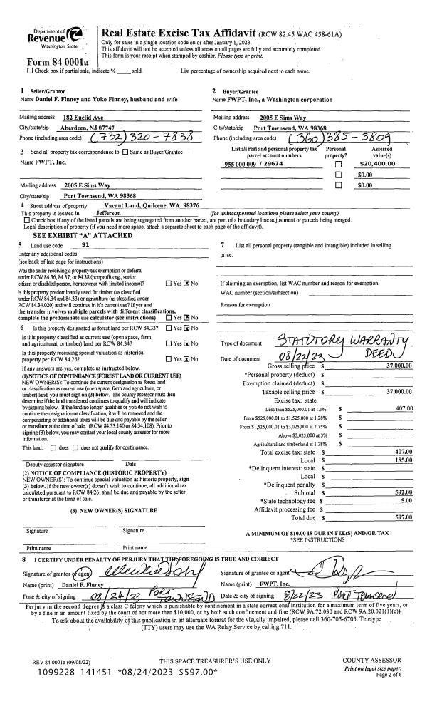
| 1 | 08/22/2023 | SWD | Statutory Warranty Deed | DANIEL F FINNEY | FWPT INC | | | $37,000.00 | 141451 | |
| 2 | 07/05/2006 | SWD | Statutory Warranty Deed | EDWARDS, STEPHEN O/CHRIST | FINNEY, DANIEL F/YOKO | | | $20,000.00 | 107049 | 0 |
| 3 | 03/27/1996 | REC | Real Estate Contract | PITTS, WILLIAM/JEANNE | EDWARDS, STEPHEN O/CHRISTINE B | 0 | 0 | $12,000.00 | 79106 | 0 |
Payout Agreement
| No payout information available.. |