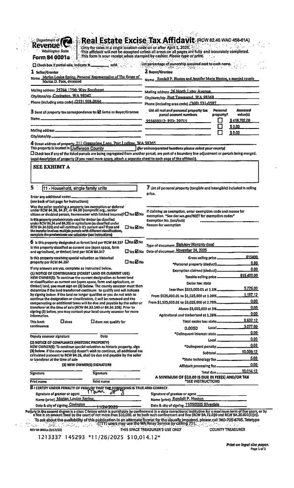
Property
Account |
| Property ID: | 29715 | Abbreviated Legal Description: | GREENVIEW VILLAGE LOT 12 |
| Parcel # / Geo ID: | 955600012 | Agent Code: | |
| Type: | Real | | |
| Tax Area: | 0213 - 1-49F1E1H2L1 | Land Use Code | 11 |
| Open Space: | N | DFL | N |
| Historic Property: | N | Remodel Property: | N |
| Multi-Family Redevelopment: | N | | |
| Township: | 28N | Section: | 21 |
| Range: | 1E |
Location |
| Address: | 211 GREENVIEW LN PORT LUDLOW, WA 98365 | Mapsco: | 029/012 |
| Neighborhood: | SOUTH BAY 1, 2, & 3; EDGEWOOD AND GREENVIEW VILLAGES | Map ID: | |
| Neighborhood CD: | 3355 |
Owner |
| Name: | RANDALL P & JENNIFER M HUSTON | Owner ID: | 113725 |
| Mailing Address: | 26 N LYTER AVE PORT TOWNSEND, WA 98368-2554 | % Ownership: | 100.0000000000% |
| | | Exemptions: | |
Pay Tax Due
Select the appropriate checkbox next to the year to be paid. Multiple years may be selected.
*Convenience Fee not included
Taxes and Assessment Details
Property Tax Information as of
03/13/2026
Click on "Statement Details" to expand or collapse a tax statement.
* Please enter a valid date ** Please enter a valid date *
Statement Details |
| 2026 | 19026 | STATE - STATE LEVY (SCHOOL) | $720.29 | $720.27 | $0.00 | $0.00 | $0.00 | $1440.56 |
| 2026 | 19026 | COUNTY - COUNTY LEVIES (CE, DD, VET, MH) | $287.99 | $287.95 | $0.00 | $0.00 | $0.00 | $575.94 |
| 2026 | 19026 | CONSERVE - CONSERVATION FUTURES | $8.64 | $8.63 | $0.00 | $0.00 | $0.00 | $17.27 |
| 2026 | 19026 | COROADS - COUNTY ROADS (ROADS, DIV TO CE) | $232.31 | $232.30 | $0.00 | $0.00 | $0.00 | $464.61 |
| 2026 | 19026 | PORTPT - PORT DISTRICT | $116.31 | $116.29 | $0.00 | $0.00 | $0.00 | $232.60 |
| 2026 | 19026 | PUD1 - PUD #1 | $18.73 | $18.73 | $0.00 | $0.00 | $0.00 | $37.46 |
| 2026 | 19026 | LIB1 - LIBRARY DIST #1 | $89.88 | $89.87 | $0.00 | $0.00 | $0.00 | $179.75 |
| 2026 | 19026 | HD2 - HOSP DIST #2 | $16.80 | $16.79 | $0.00 | $0.00 | $0.00 | $33.59 |
| 2026 | 19026 | SD49 - SCHOOL DIST #49 | $396.49 | $396.49 | $0.00 | $0.00 | $0.00 | $792.98 |
| 2026 | 19026 | FD1 - FIRE DISTRICT #1 | $381.34 | $381.33 | $0.00 | $0.00 | $0.00 | $762.67 |
| 2026 | 19026 | EMS1 - FIRE DIST #1 EMS | $146.62 | $146.62 | $0.00 | $0.00 | $0.00 | $293.24 |
| 2026 | 19026 | JCCD - JC Conservation District | $2.55 | $2.55 | $0.00 | $0.00 | $0.00 | $5.10 |
| 2026 | 19026 | NWA - Noxious Weed Assessment | $2.98 | $2.97 | $0.00 | $0.00 | $0.00 | $5.95 |
| 2026 | 19026 | TOTAL: | $2420.93 | $2420.79 | $0.00 | $0.00 | $0.00 | $4841.72 |
|
| 2026 | 19026 | $2420.93 | $2420.79 | $0.00 | $0.00 | $0.00 | $4841.72 |
Statement Details |
| 2025 | 19085 | STATE - STATE LEVY (SCHOOL) | $326.37 | $326.36 | $0.00 | $0.00 | $652.73 | $0.00 |
| 2025 | 19085 | COUNTY - COUNTY LEVIES (CE, DD, VET, MH) | $197.43 | $197.40 | $0.00 | $0.00 | $394.83 | $0.00 |
| 2025 | 19085 | CONSERVE - CONSERVATION FUTURES | $5.92 | $5.92 | $0.00 | $0.00 | $11.84 | $0.00 |
| 2025 | 19085 | COROADS - COUNTY ROADS (ROADS, DIV TO CE) | $158.17 | $158.16 | $0.00 | $0.00 | $316.33 | $0.00 |
| 2025 | 19085 | PORTPT - PORT DISTRICT | $80.56 | $80.55 | $0.00 | $0.00 | $161.11 | $0.00 |
| 2025 | 19085 | PUD1 - PUD #1 | $12.92 | $12.92 | $0.00 | $0.00 | $25.84 | $0.00 |
| 2025 | 19085 | LIB1 - LIBRARY DIST #1 | $61.19 | $61.19 | $0.00 | $0.00 | $122.38 | $0.00 |
| 2025 | 19085 | HD2 - HOSP DIST #2 | $11.52 | $11.52 | $0.00 | $0.00 | $23.04 | $0.00 |
| 2025 | 19085 | SD49 - SCHOOL DIST #49 | $0.00 | $0.00 | $0.00 | $0.00 | $0.00 | $0.00 |
| 2025 | 19085 | FD1 - FIRE DISTRICT #1 | $260.52 | $260.51 | $0.00 | $0.00 | $521.03 | $0.00 |
| 2025 | 19085 | EMS1 - FIRE DIST #1 EMS | $100.20 | $100.20 | $0.00 | $0.00 | $200.40 | $0.00 |
| 2025 | 19085 | TOTAL: | $1214.80 | $1214.73 | $0.00 | $0.00 | $2429.53 | $0.00 |
|
| 2025 | 19085 | $1214.80 | $1214.73 | $0.00 | $0.00 | $2429.53 | $0.00 |
Statement Details |
| 2024 | 19122 | STATE - STATE LEVY (SCHOOL) | $315.25 | $315.24 | $0.00 | $0.00 | $630.49 | $0.00 |
| 2024 | 19122 | COUNTY - COUNTY LEVIES (CE, DD, VET, MH) | $207.27 | $207.25 | $0.00 | $0.00 | $414.52 | $0.00 |
| 2024 | 19122 | CONSERVE - CONSERVATION FUTURES | $6.22 | $6.21 | $0.00 | $0.00 | $12.43 | $0.00 |
| 2024 | 19122 | COROADS - COUNTY ROADS (ROADS, DIV TO CE) | $166.78 | $166.77 | $0.00 | $0.00 | $333.55 | $0.00 |
| 2024 | 19122 | PORTPT - PORT DISTRICT | $85.61 | $85.60 | $0.00 | $0.00 | $171.21 | $0.00 |
| 2024 | 19122 | PUD1 - PUD #1 | $13.62 | $13.61 | $0.00 | $0.00 | $27.23 | $0.00 |
| 2024 | 19122 | LIB1 - LIBRARY DIST #1 | $64.53 | $64.52 | $0.00 | $0.00 | $129.05 | $0.00 |
| 2024 | 19122 | HD2 - HOSP DIST #2 | $12.10 | $12.09 | $0.00 | $0.00 | $24.19 | $0.00 |
| 2024 | 19122 | SD49 - SCHOOL DIST #49 | $0.00 | $0.00 | $0.00 | $0.00 | $0.00 | $0.00 |
| 2024 | 19122 | FD1 - FIRE DISTRICT #1 | $274.05 | $274.04 | $0.00 | $0.00 | $548.09 | $0.00 |
| 2024 | 19122 | EMS1 - FIRE DIST #1 EMS | $104.68 | $104.67 | $0.00 | $0.00 | $209.35 | $0.00 |
| 2024 | 19122 | TOTAL: | $1250.11 | $1250.00 | $0.00 | $0.00 | $2500.11 | $0.00 |
|
| 2024 | 19122 | $1250.11 | $1250.00 | $0.00 | $0.00 | $2500.11 | $0.00 |
Statement Details |
| 2023 | 19159 | STATE - STATE LEVY (SCHOOL) | $321.10 | $321.09 | $0.00 | $0.00 | $642.19 | $0.00 |
| 2023 | 19159 | COUNTY - COUNTY LEVIES (CE, DD, VET, MH) | $215.07 | $215.05 | $0.00 | $0.00 | $430.12 | $0.00 |
| 2023 | 19159 | CONSERVE - CONSERVATION FUTURES | $6.45 | $6.45 | $0.00 | $0.00 | $12.90 | $0.00 |
| 2023 | 19159 | COROADS - COUNTY ROADS (ROADS, DIV TO CE) | $174.01 | $173.99 | $0.00 | $0.00 | $348.00 | $0.00 |
| 2023 | 19159 | PORTPT - PORT DISTRICT | $90.60 | $90.59 | $0.00 | $0.00 | $181.19 | $0.00 |
| 2023 | 19159 | PUD1 - PUD #1 | $14.26 | $14.25 | $0.00 | $0.00 | $28.51 | $0.00 |
| 2023 | 19159 | LIB1 - LIBRARY DIST #1 | $67.32 | $67.32 | $0.00 | $0.00 | $134.64 | $0.00 |
| 2023 | 19159 | HD2 - HOSP DIST #2 | $12.55 | $12.55 | $0.00 | $0.00 | $25.10 | $0.00 |
| 2023 | 19159 | SD49 - SCHOOL DIST #49 | $0.00 | $0.00 | $0.00 | $0.00 | $0.00 | $0.00 |
| 2023 | 19159 | FD3 - FIRE DISTRICT #3 | $213.96 | $213.95 | $0.00 | $0.00 | $427.91 | $0.00 |
| 2023 | 19159 | EMS3 - FIRE DIST #3 EMS | $76.49 | $76.49 | $0.00 | $0.00 | $152.98 | $0.00 |
| 2023 | 19159 | TOTAL: | $1191.81 | $1191.73 | $0.00 | $0.00 | $2383.54 | $0.00 |
|
| 2023 | 19159 | $1191.81 | $1191.73 | $0.00 | $0.00 | $2383.54 | $0.00 |
Values
| (+) Improvement Homesite Value: | + | $516,580 | |
| (+) Improvement Non-Homesite Value: | + | $0 | |
| (+) Land Homesite Value: | + | $110,000 | |
| (+) Land Non-Homesite Value: | + | $0 | |
| (+) Curr Use (HS): | + | $0 | $0 |
| (+) Curr Use (NHS): | + | $0 | $0 |
| | | -------------------------- | |
| (=) Market Value: | = | $626,580 | |
| (–) Productivity Loss: | – | $0 | |
| | | -------------------------- | |
| (=) Subtotal: | = | $626,580 | |
| (+) Senior Appraised Value: | + | $0 | |
| (+) Non-Senior Appraised Value: | + | $626,580 | |
| | | -------------------------- | |
| (=) Total Appraised Value: | = | $626,580 | |
| (–) Senior Exemption Loss: | – | $0 | |
| (–) Exemption Loss: | – | $0 | |
| | | -------------------------- | |
| (=) Taxable Value: | = | $626,580 | |
Taxing Jurisdiction
| Owner: | RANDALL P & JENNIFER M HUSTON | | |
| % Ownership: | 100.0000000000% | | |
| Total Value: | $626,580 | | |
| Tax Area: | 0213 - 1-49F1E1H2L1 |
| CE | COUNTY CURRENT EXPENSE | 0.9034619479 | $626,580 | $626,580 | $566.09 | | |
| CNTYDD | DEVELOPMENTAL DISABILITIES | 0.0052121823 | $626,580 | $626,580 | $3.27 | | |
| CNTYVET | VETERANS RELIEF | 0.0052777810 | $626,580 | $626,580 | $3.31 | | |
| MENTAL | MENTAL HEALTH | 0.0052121823 | $626,580 | $626,580 | $3.27 | | |
| ROADS | COUNTY ROADS | 0.7415066410 | $626,580 | $626,580 | $464.61 | | |
| ROADSCU | COUNTY ROADS TO CUR EXP | 0.0000000000 | $626,580 | $626,580 | $0.00 | | |
| HOSP2CASH | HOSP DIST #2 GENERAL | 0.0536075306 | $626,580 | $626,580 | $33.59 | | |
| SCH49CP | SCHOOL DIST #49 CAP PROJ | 0.6279093905 | $626,580 | $626,580 | $393.44 | | |
| SCH49MO | SCHOOL DIST #49 EP & O | 0.6376483602 | $626,580 | $626,580 | $399.54 | | |
| CONSERVE | CONSERVATION FUTURES | 0.0275621078 | $626,580 | $626,580 | $17.27 | | |
| EMS1 | FIRE DIST #1 EMS | 0.4679948282 | $626,580 | $626,580 | $293.24 | | |
| FD1 | FIRE DIST #1 GENERAL | 1.2171942929 | $626,580 | $626,580 | $762.67 | | |
| LIB1 | LIBRARY DIST #1 GENERAL | 0.2868827388 | $626,580 | $626,580 | $179.75 | | |
| PORTPT | PORT OF PT GENERAL | 0.1134941229 | $626,580 | $626,580 | $71.11 | | |
| PORTPTIDD | PORT OF PT IDD 2019 | 0.2577346692 | $626,580 | $626,580 | $161.49 | | |
| PUD1 | PUD #1 GENERAL | 0.0597888892 | $626,580 | $626,580 | $37.46 | | |
| STATE | STATE SCHOOL PART 1 | 1.4940692947 | $626,580 | $626,580 | $936.15 | | |
| STATE2 | STATE SCHOOL PART 2 | 0.8050170049 | $626,580 | $626,580 | $504.41 | | |
| | Total Tax Rate: | 7.7095739644 | | | | | |
| | | | | Taxes w/Current Exemptions: | $4,830.67 | | |
| | | | | Taxes w/o Exemptions: | $4,830.67 | | |
Improvement / Building
| Improvement #1: | Residential Bldg | State Code: | 11 | 2518.0 sqft | Value: | $516,580 |
| Bathrooms (#): | 2 (FULL) | Bathrooms (#): | 1 (HALF) | | Bedrooms (#): | 3 | Exterior Wall: | SI/ST | | Fireplace: | SIN 1-GOOD | Fireplace: | WD ST-AVG | | Floor Construction: | FRAME | Foundation: | CONPR | | Heating/Cooling: | F/A | Inside Verify: | NO | | Roof Cover: | SHAKE |   |   |
|
| | Type | Description | Class CD | Sub Class CD | Year Built | Area |
| | MA | Main Area | 4+ | 1S | 1991 | 2518.0 |
| | HCPOR | House Concrete Porch | 4 | 1S | 1991 | 220.0 |
| | HDECK | House Deck | 4 | 1S | 1991 | 557.0 |
| | GATT | House Attached Garage | 4 | 1S | 1991 | 598.0 |
| | CONCD | Concrete Drive | 4 | 1S | 1991 | 650.0 |
Sketch
Property Image
Land
| 1 | 3355-1173L | | 0.0000 | 0.00 | 0.00 | 0.00 | 1.00 | $110,000 | $0 |
Roll Value History
| 2026 | N/A | N/A | N/A | N/A | N/A |
| 2025 | $516,580 | $110,000 | $0 | $626,580 | $626,580 |
| 2024 | $516,580 | $110,000 | $0 | $626,580 | $418,702 |
| 2023 | $516,580 | $105,000 | $0 | $621,580 | $418,702 |
| 2022 | $516,580 | $100,000 | $0 | $616,580 | $418,702 |
Deed and Sales History
| 1 | 11/24/2025 | SWD | Statutory Warranty Deed | VINCENT C PACE | RANDALL P & JENNIFER M HUSTON | | | $615,400.00 | 145293 | |
| 2 | 06/12/1992 | SWD | Statutory Warranty Deed | VINCENT C PACE | | | | | 68588 | |
Payout Agreement
| No payout information available.. |