Property
Account |
| Property ID: | 29752 | Abbreviated Legal Description: | HAMILTON HEIGHTS LOT 7 |
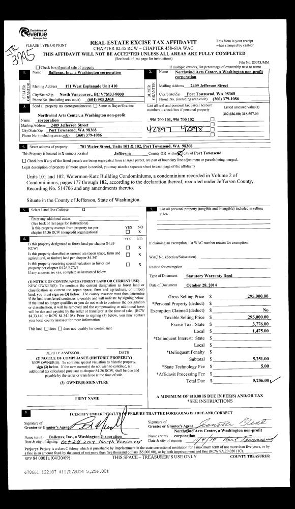
| Parcel # / Geo ID: | 955900007 | Agent Code: | |
| Type: | Real | | |
| Tax Area: | 0110 - C-50F1E1H2 | Land Use Code | 11 |
| Open Space: | N | DFL | N |
| Historic Property: | N | Remodel Property: | N |
| Multi-Family Redevelopment: | N | | |
| Township: | 30N | Section: | 4 |
| Range: | 1W |
Location |
| Address: | 2344 RAINIER ST PORT TOWNSEND, WA 98368 | Mapsco: | 055/007 |
| Neighborhood: | S 1/2 S4-30-1W INC HAMILTON HEIGHTS & PHOENIX | Map ID: | |
| Neighborhood CD: | 6100 |
Owner |
| Name: | CATHERINE M MORTON | Owner ID: | 100833 |
| Mailing Address: | 2344 RAINIER ST PORT TOWNSEND, WA 98368-5918 | % Ownership: | 100.0000000000% |
| | | Exemptions: | |
Pay Tax Due
Select the appropriate checkbox next to the year to be paid. Multiple years may be selected.
*Convenience Fee not included
Taxes and Assessment Details
Property Tax Information as of
03/10/2026
Click on "Statement Details" to expand or collapse a tax statement.
* Please enter a valid date ** Please enter a valid date *
Statement Details |
| 2026 | 19063 | STATE - STATE LEVY (SCHOOL) | $397.67 | $397.66 | $0.00 | $0.00 | $0.00 | $795.33 |
| 2026 | 19063 | COUNTY - COUNTY LEVIES (CE, DD, VET, MH) | $158.99 | $158.98 | $0.00 | $0.00 | $0.00 | $317.97 |
| 2026 | 19063 | CONSERVE - CONSERVATION FUTURES | $4.77 | $4.76 | $0.00 | $0.00 | $0.00 | $9.53 |
| 2026 | 19063 | CITYPT - CITY OF PT | $225.67 | $225.66 | $0.00 | $0.00 | $0.00 | $451.33 |
| 2026 | 19063 | PORTPT - PORT DISTRICT | $64.21 | $64.21 | $0.00 | $0.00 | $0.00 | $128.42 |
| 2026 | 19063 | PUD1 - PUD #1 | $10.34 | $10.34 | $0.00 | $0.00 | $0.00 | $20.68 |
| 2026 | 19063 | HD2 - HOSP DIST #2 | $9.27 | $9.27 | $0.00 | $0.00 | $0.00 | $18.54 |
| 2026 | 19063 | SD50 - SCHOOL DIST #50 | $315.04 | $315.03 | $0.00 | $0.00 | $0.00 | $630.07 |
| 2026 | 19063 | FD1 - FIRE DISTRICT #1 | $210.54 | $210.53 | $0.00 | $0.00 | $0.00 | $421.07 |
| 2026 | 19063 | EMS1 - FIRE DIST #1 EMS | $80.95 | $80.94 | $0.00 | $0.00 | $0.00 | $161.89 |
| 2026 | 19063 | JCCD - JC Conservation District | $2.55 | $2.55 | $0.00 | $0.00 | $0.00 | $5.10 |
| 2026 | 19063 | NWA - Noxious Weed Assessment | $2.98 | $2.97 | $0.00 | $0.00 | $0.00 | $5.95 |
| 2026 | 19063 | TOTAL: | $1482.98 | $1482.90 | $0.00 | $0.00 | $0.00 | $2965.88 |
|
| 2026 | 19063 | $1482.98 | $1482.90 | $0.00 | $0.00 | $0.00 | $2965.88 |
Statement Details |
| 2025 | 19122 | STATE - STATE LEVY (SCHOOL) | $400.28 | $400.28 | $0.00 | $0.00 | $800.56 | $0.00 |
| 2025 | 19122 | COUNTY - COUNTY LEVIES (CE, DD, VET, MH) | $157.41 | $157.40 | $0.00 | $0.00 | $314.81 | $0.00 |
| 2025 | 19122 | CONSERVE - CONSERVATION FUTURES | $4.72 | $4.72 | $0.00 | $0.00 | $9.44 | $0.00 |
| 2025 | 19122 | CITYPT - CITY OF PT | $227.01 | $227.00 | $0.00 | $0.00 | $454.01 | $0.00 |
| 2025 | 19122 | PORTPT - PORT DISTRICT | $64.24 | $64.22 | $0.00 | $0.00 | $128.46 | $0.00 |
| 2025 | 19122 | PUD1 - PUD #1 | $10.30 | $10.30 | $0.00 | $0.00 | $20.60 | $0.00 |
| 2025 | 19122 | HD2 - HOSP DIST #2 | $9.19 | $9.18 | $0.00 | $0.00 | $18.37 | $0.00 |
| 2025 | 19122 | SD50 - SCHOOL DIST #50 | $292.55 | $292.53 | $0.00 | $0.00 | $585.08 | $0.00 |
| 2025 | 19122 | FD1 - FIRE DISTRICT #1 | $207.72 | $207.72 | $0.00 | $0.00 | $415.44 | $0.00 |
| 2025 | 19122 | EMS1 - FIRE DIST #1 EMS | $79.90 | $79.89 | $0.00 | $0.00 | $159.79 | $0.00 |
| 2025 | 19122 | JCCD - JC Conservation District | $2.55 | $2.55 | $0.00 | $0.00 | $5.10 | $0.00 |
| 2025 | 19122 | NWA - Noxious Weed Assessment | $2.15 | $2.15 | $0.00 | $0.00 | $4.30 | $0.00 |
| 2025 | 19122 | TOTAL: | $1458.02 | $1457.94 | $0.00 | $0.00 | $2915.96 | $0.00 |
|
| 2025 | 19122 | $1458.02 | $1457.94 | $0.00 | $0.00 | $2915.96 | $0.00 |
Statement Details |
| 2024 | 19159 | STATE - STATE LEVY (SCHOOL) | $363.17 | $363.16 | $0.00 | $0.00 | $726.33 | $0.00 |
| 2024 | 19159 | COUNTY - COUNTY LEVIES (CE, DD, VET, MH) | $155.41 | $155.39 | $0.00 | $0.00 | $310.80 | $0.00 |
| 2024 | 19159 | CONSERVE - CONSERVATION FUTURES | $4.66 | $4.66 | $0.00 | $0.00 | $9.32 | $0.00 |
| 2024 | 19159 | CITYPT - CITY OF PT | $222.05 | $222.04 | $0.00 | $0.00 | $444.09 | $0.00 |
| 2024 | 19159 | PORTPT - PORT DISTRICT | $64.19 | $64.19 | $0.00 | $0.00 | $128.38 | $0.00 |
| 2024 | 19159 | PUD1 - PUD #1 | $10.21 | $10.20 | $0.00 | $0.00 | $20.41 | $0.00 |
| 2024 | 19159 | HD2 - HOSP DIST #2 | $9.07 | $9.06 | $0.00 | $0.00 | $18.13 | $0.00 |
| 2024 | 19159 | SD50 - SCHOOL DIST #50 | $293.83 | $293.81 | $0.00 | $0.00 | $587.64 | $0.00 |
| 2024 | 19159 | FD1 - FIRE DISTRICT #1 | $205.48 | $205.47 | $0.00 | $0.00 | $410.95 | $0.00 |
| 2024 | 19159 | EMS1 - FIRE DIST #1 EMS | $78.49 | $78.48 | $0.00 | $0.00 | $156.97 | $0.00 |
| 2024 | 19159 | JCCD - JC Conservation District | $2.55 | $2.55 | $0.00 | $0.00 | $5.10 | $0.00 |
| 2024 | 19159 | NWA - Noxious Weed Assessment | $2.15 | $2.15 | $0.00 | $0.00 | $4.30 | $0.00 |
| 2024 | 19159 | TOTAL: | $1411.26 | $1411.16 | $0.00 | $0.00 | $2822.42 | $0.00 |
|
| 2024 | 19159 | $1411.26 | $1411.16 | $0.00 | $0.00 | $2822.42 | $0.00 |
Statement Details |
| 2023 | 19196 | STATE - STATE LEVY (SCHOOL) | $363.65 | $363.64 | $0.00 | $0.00 | $727.29 | $0.00 |
| 2023 | 19196 | COUNTY - COUNTY LEVIES (CE, DD, VET, MH) | $158.68 | $158.68 | $0.00 | $0.00 | $317.36 | $0.00 |
| 2023 | 19196 | CONSERVE - CONSERVATION FUTURES | $4.76 | $4.76 | $0.00 | $0.00 | $9.52 | $0.00 |
| 2023 | 19196 | CITYPT - CITY OF PT | $224.28 | $224.26 | $0.00 | $0.00 | $448.54 | $0.00 |
| 2023 | 19196 | PORTPT - PORT DISTRICT | $66.85 | $66.84 | $0.00 | $0.00 | $133.69 | $0.00 |
| 2023 | 19196 | PUD1 - PUD #1 | $10.52 | $10.52 | $0.00 | $0.00 | $21.04 | $0.00 |
| 2023 | 19196 | HD2 - HOSP DIST #2 | $9.26 | $9.26 | $0.00 | $0.00 | $18.52 | $0.00 |
| 2023 | 19196 | SD50 - SCHOOL DIST #50 | $288.56 | $288.55 | $0.00 | $0.00 | $577.11 | $0.00 |
| 2023 | 19196 | FD1 - FIRE DISTRICT #1 | $130.73 | $130.72 | $0.00 | $0.00 | $261.45 | $0.00 |
| 2023 | 19196 | EMS1 - FIRE DIST #1 EMS | $55.61 | $55.60 | $0.00 | $0.00 | $111.21 | $0.00 |
| 2023 | 19196 | JCCD - JC Conservation District | $2.55 | $2.55 | $0.00 | $0.00 | $5.10 | $0.00 |
| 2023 | 19196 | NWA - Noxious Weed Assessment | $2.15 | $2.15 | $0.00 | $0.00 | $4.30 | $0.00 |
| 2023 | 19196 | TOTAL: | $1317.60 | $1317.53 | $0.00 | $0.00 | $2635.13 | $0.00 |
|
| 2023 | 19196 | $1317.60 | $1317.53 | $0.00 | $0.00 | $2635.13 | $0.00 |
Values
| (+) Improvement Homesite Value: | + | $0 | |
| (+) Improvement Non-Homesite Value: | + | $250,932 | |
| (+) Land Homesite Value: | + | $0 | |
| (+) Land Non-Homesite Value: | + | $95,000 | |
| (+) Curr Use (HS): | + | $0 | $0 |
| (+) Curr Use (NHS): | + | $0 | $0 |
| | | -------------------------- | |
| (=) Market Value: | = | $345,932 | |
| (–) Productivity Loss: | – | $0 | |
| | | -------------------------- | |
| (=) Subtotal: | = | $345,932 | |
| (+) Senior Appraised Value: | + | $0 | |
| (+) Non-Senior Appraised Value: | + | $345,932 | |
| | | -------------------------- | |
| (=) Total Appraised Value: | = | $345,932 | |
| (–) Senior Exemption Loss: | – | $0 | |
| (–) Exemption Loss: | – | $0 | |
| | | -------------------------- | |
| (=) Taxable Value: | = | $345,932 | |
Taxing Jurisdiction
| Owner: | CATHERINE M MORTON | | |
| % Ownership: | 100.0000000000% | | |
| Total Value: | $345,932 | | |
| Tax Area: | 0110 - C-50F1E1H2 |
| CE | COUNTY CURRENT EXPENSE | 0.9034619479 | $345,932 | $345,932 | $312.54 | | |
| CNTYDD | DEVELOPMENTAL DISABILITIES | 0.0052121823 | $345,932 | $345,932 | $1.80 | | |
| CNTYVET | VETERANS RELIEF | 0.0052777810 | $345,932 | $345,932 | $1.83 | | |
| MENTAL | MENTAL HEALTH | 0.0052121823 | $345,932 | $345,932 | $1.80 | | |
| PTGEN | CITY OF PT GENERAL | 0.8551967795 | $345,932 | $345,932 | $295.84 | | |
| PTLLL | CITY OF PT - LIBRARY LID LIFT | 0.4010114288 | $345,932 | $345,932 | $138.72 | | |
| PTMVBOND | CITY OF PT MV BOND | 0.0484717981 | $345,932 | $345,932 | $16.77 | | |
| HOSP2CASH | HOSP DIST #2 GENERAL | 0.0536075306 | $345,932 | $345,932 | $18.54 | | |
| SCH50BOND | SCHOOL DIST #50 BOND 2016 | 0.5377451389 | $345,932 | $345,932 | $186.02 | | |
| SCH50CP | SCHOOL DIST #50 CAP PROJ | 0.4573475088 | $345,932 | $345,932 | $158.21 | | |
| SCH50MO | SCHOOL DIST #50 EP & O | 0.8262822886 | $345,932 | $345,932 | $285.84 | | |
| CONSERVE | CONSERVATION FUTURES | 0.0275621078 | $345,932 | $345,932 | $9.53 | | |
| EMS1 | FIRE DIST #1 EMS | 0.4679948282 | $345,932 | $345,932 | $161.89 | | |
| FD1 | FIRE DIST #1 GENERAL | 1.2171942929 | $345,932 | $345,932 | $421.07 | | |
| PORTPT | PORT OF PT GENERAL | 0.1134941229 | $345,932 | $345,932 | $39.26 | | |
| PORTPTIDD | PORT OF PT IDD 2019 | 0.2577346692 | $345,932 | $345,932 | $89.16 | | |
| PUD1 | PUD #1 GENERAL | 0.0597888892 | $345,932 | $345,932 | $20.68 | | |
| STATE | STATE SCHOOL PART 1 | 1.4940692947 | $345,932 | $345,932 | $516.85 | | |
| STATE2 | STATE SCHOOL PART 2 | 0.8050170049 | $345,932 | $345,932 | $278.48 | | |
| | Total Tax Rate: | 8.5416817766 | | | | | |
| | | | | Taxes w/Current Exemptions: | $2,954.83 | | |
| | | | | Taxes w/o Exemptions: | $2,954.83 | | |
Improvement / Building
| Improvement #1: | Manufactured Home | State Code: | 11 | 1440.0 sqft | Value: | $250,932 |
| Bathrooms (#): | 2 (FULL) | Bedrooms (#): | 3 | | Exterior Wall: | SI/ST | Fireplace: | SIN 1-GOOD | | Floor Construction: | FRAME | Foundation: | CONBL | | Heating/Cooling: | F/A | Roof Cover: | COMP |
|
| | Type | Description | Class CD | Sub Class CD | Year Built | Area |
| | MA | Main Area | 5 | MDBL | 1998 | 1440.0 |
| | MPATIO | MH Patio | 5 | * | 1998 | 120.0 |
| | MWPOR | MH Wood Porch | 5 | * | 1998 | 144.0 |
| | MATT | MH Attached Garage | 5 | MDBL | 1998 | 270.0 |
| | SHED | Shed (Table Not Dep) | 4 | * | 1998 | 96.0 |
| | CONCD | Concrete Drive | 5 | * | 1998 | 400.0 |
Sketch
Property Image
Land
| 1 | 6100-1175L | | 0.0000 | 0.00 | 0.00 | 0.00 | 1.00 | $95,000 | $0 |
Roll Value History
| 2026 | N/A | N/A | N/A | N/A | N/A |
| 2025 | $250,932 | $95,000 | $0 | $345,932 | $345,932 |
| 2024 | $239,344 | $94,500 | $0 | $333,844 | $333,844 |
| 2023 | $228,938 | $85,000 | $0 | $313,938 | $313,938 |
| 2022 | $228,937 | $80,000 | $0 | $308,937 | $308,937 |
Deed and Sales History
| 1 | 04/10/2019 | SWD | Statutory Warranty Deed | RACHAEL ROPKEY | CATHERINE M MORTON | | | $249,000.00 | 132124 | |
| 2 | 12/02/2014 | SWD | Statutory Warranty Deed | CHESTER B RIDEOUT | RACHAEL ROPKEY | | | $163,900.00 | 122346 | |
| 3 | 04/13/2004 | WD | Warranty Deed | CHASE MANHATTAN MORTGAGE | RIDEOUT, CHESTER B & ELEANOR W | 0 | 0 | $134,900.00 | 99980 | 0 |
| 4 | 06/16/2003 | QCD | Quit Claim Deed | VETERAN'S AFFAIRS | CHASE MANHATTAN MORTGAGE CORP | 0 | 0 | $0.00 | 97574 | 0 |
| 5 | 03/14/2002 | SWD | Statutory Warranty Deed | MARTIN DE BERRY | SECRETARY OF VETERANS AFFAIRS | 0 | 0 | $0.00 | 95147 | 0 |
| 6 | 11/17/1999 | SWD | Statutory Warranty Deed | HAMILTON HEIGHTS LLC | DE BERRY, MARTIN | 0 | 0 | $120,900.00 | 88405 | 0 |
Payout Agreement
| No payout information available.. |